Erste eigene Küche

dnniem

Mitglied
Beiträge
7
Hallo zusammen,

erstmalalle Achtung für alle, die unermütlich Tipps zur Küchenplanunggeben. Habe mir schon einige Beiträge durchgelesen. Es wurdenwirklich viele wertvolle Tipps gegeben.

Wirhaben gerade unseren neuen Mietvertrag unterschrieben und werden imJuli in unser neues Haus einziehen (aus einer zur Zeit 85 qm Wohnung)mit sehr kleiner Küche (keine 6 qm).
Es sah erst so aus, als würde die Küche vom Vormieter in der Wohnungbleiben. Leider nimmt er sie jetzt doch mit.

So müssen wir uns jetzt damit beschäftigen eine Küche zu besorgen. Dawir das Haus nur mieten und durch andere Ausgaben kein großes Budgetin der Kasse ist, darf die Küche nicht zu teuer werden.

Das einzige was vorhanden ist, ist ein Kühlschrank. Ist eine Kühl-Gefrierkombination in Edelstahl-Optik von Siemens .

Da das Fensterbrett bei 94 cm anfängt und etwas übersteht, kann die Arbeitsplatte wohl nicht höher.

Oder wäre es sinnvoll die Arbeitsplatte über das Fensterbrett laufen zulassen? Das wäre möglich da zwischen Fensterbrett und Unterkante vom eigentlichen Fenster noch ca. 5,5 cm Platz sind.

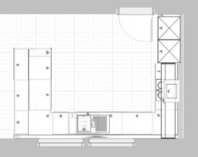
Wie in dem Plan zu sehen, hätte ich gerne eine Kochinsel. Leider ist der Abzug nach draußen hinten in der Ecke (wie eingezeichnet).

Hier stellt sich die ob Umluft bzw. ob man das Abluftrohr relativ elegantdurch den Raum gelegt bekommt.

Bei der Raumhöhe von ca. 230 cm muss der Dunstabzug auch relativ hochhängen und es darf gerade kein Balken im Weg sein.

Die Kochinsel hätte ich gerne ca. 100 cm tief. Ich habe gesehen, dass es bei IKEA Schränke gibt, die nur 37 cm tief sind. Vielleicht wäre das eine Lösung zum Essbereich hin. Da könnten wir Dinge verstauen,die in der Küche nicht so häufig benötigt werden. Bzw. auch ein Teil unseres Geschirrs.

Aus oben genannten Gründen, soll es nicht zu teuer werden. Wir würdenuns über Tipps zu Geräten und zu der allgemeinen Planung freuen.

Haben uns schon nach Musterküchen und Küchenblöcken umgesehen. Leider haben wir nichts passendes gefunden.

Von den Fronten würde uns etwas in weiß matt wie von IKEA Ramsjö oder Lidingö gefallen.
http://www.ikea.com/de/de/catalog/products/S99891403/[/FONT]
http://www.ikea.com/de/de/catalog/products/S59850225/[/FONT]

Hier stellt sich auch die Frage was besser ist MDF oder Echtholz.

Wäre als Arbeitsplatte eine in Echtholz geeignet? Dass diese entsprechend gepflegt werden muss und mit der Zeit neuert, ist klar. Was wäre sonst eine gute Alternative in Holzoptik?

Wenn noch Infos fehlen, liefere ich diese gerne nach.

VieleGrüße
Daniel



Checkliste zur Küchenplanung von dnniem

Anzahl Personen im Haushalt : 2
Davon Kinder? : keine
Körpergrössen aller Hauptbenutzer (wegen Arbeitshöhe ) in cm : 178 und 183 cm
Art des Gebäudes? : Bestandsbau, Umbauten ausgeschlossen
Brüstungshöhe des Fensters (in cm) : 94 cm
Fensterhöhe (in cm) : 130 cm
Raumhöhe in cm: : 229-232 cm
Heizung : Fussbodenheizung
Sanitäranschlüsse : fix
Ausführung Kühlgerät? : Stand-Alone bis 60 cm Breite
Kühlgerät Größe : bis 175 cm Höhe
Ausführung Tiefkühl (TK)-Gerät : Im Kühlschrank ab 3 Schubladen unten
Dunstabzugshaube? : Abluft
Hochgebauter Backofen ? : Nein
Hochgebauter Geschirrspüler ? : nein
Kochfeldart? : Induktion
Kochfeldbreite ca. (in cm)? : 60
Spülenform: : 1,5 Becken mit Abtropffläche
Weitere geplante Heißgeräte :
Küchenstil? : Landhaus
Sitzmöglichkeit in der Küche / im Küchenbereich als : Keine
Sitzmöglichkeit: Für wieviel Personen? : nein
Sitzmöglichkeit: Tisch - wenn gesonderter Tisch oder offene Küche : Wird nach Bedarf neu gekauft
Gewünschte o. vorhandene Tischgröße : 200*100cm mit Möglichkeit zum Ausziehen
Wofür soll der Sitzplatz in der Küche genutzt werden? Wie häufig? : Essen, spielen, quatschen, etc.
Welche Arbeitshöhe ist angedacht (in cm)? : 93 cm
Was steht auf der Arbeitsplatte oder soll dort stehen? : Kaffeemaschine, Wasserkocher, Küchenmaschine, Toaster, Obstschale
Welche weiteren Küchenmaschinen müssen in der Küche untergebracht werden? : Handrührgerät, Mixer, Pürierstab, Eierkocher
Was soll in der Küche außer den Standards untergebracht werden? : Geschirr komplett (nichts in Ess-/Wohnzimmer)
Welchen Stauraum gibt es sonst noch? : Hauswirtschaftsraum
Was/wie wird gekocht? (Alltagsküche, Menüs, Snacks usw) : Unter der Woche einfach. Am Wochenende auch gerne 2-3 Gänge
Wie häufig wird gekocht? : (fast) täglich 1x warm
Wird alleine gekocht? Oder auch gemeinsam? Mit und für Gäste? : Meist zu zweit. Selten mit Freunden.
Was stört an der bisherigen Küche und was soll die neue Küche unbedingt können? Warum? : Unsere Küche ist zur Zeit sehr klein - wenig Arbeitsfläche, kein Platz zu zweit (ist ja auch eine andere Wohnung)
Steht schon ein Küchenhersteller fest oder wird bevorzugt? : nein. Evtl. IKEA
Steht schon ein Gerätehersteller fest oder wird bevorzugt? : nein
Preisvorstellung (Budget) : bis 10.000,-
 

Anhänge

  • Küche_1.POS
    5,3 KB · Aufrufe: 167
  • Küche_1.KPL
    3,9 KB · Aufrufe: 165
  • sshot-12.jpg
    sshot-12.jpg
    59,6 KB · Aufrufe: 202
  • sshot-10.jpg
    sshot-10.jpg
    32,5 KB · Aufrufe: 193
  • 2.jpg
    2.jpg
    29 KB · Aufrufe: 215
  • 1.jpg
    1.jpg
    41,2 KB · Aufrufe: 234
AW: Erste eigene Küche

Hallöle und erst ein mal ganz herzlich :welcome: hier.
Schöne Threaderöffnung:top: , das einzig was ggf noch wichtig wäre ist die Position des Wassers (Maße von bis).

Ansonsten wünsche ich mal viel Spass hier und viel nützlichen Input

Samy
 
AW: Erste eigene Küche

Den Wasseranschluss konnte ich noch nicht genau messen, da die Küche der Vormieter noch steht. Ist etwa mittig an der rechten Wand.
 
AW: Erste eigene Küche

Also Landhausstil und Kochinsel mit 10000 Euro find ich heftig. Erstens ist die Abluftführung wegen der Balken und dem vorgegebenen Loch nicht einfach und zweitens kostet eine gute Inselhaube schon eine schöne Stange Geld.

LG
Sabine
 
AW: Erste eigene Küche

Hm, der Wasseranschluss sitzt natürlich doof und gleich neben dem Herd, bzw. Abluftloch... Wie soll die Abluft geführt werden, bei einer Kochinsel? Wäre eine Verlegung des Wassers, aufputz denkbar?
 
AW: Erste eigene Küche

Hallo Conny,

Wasserverlegung wäre prinzipiell möglich.
Abluftverlegung ist das deutlich schwierigere Thema. Kamin ist in der Nähe. Der ist aber
still gelegt. Neues Außenloch kommt nicht in Frage. Verlegung unter den Balken würde natürlich bescheiden aussehen.
Evtl. würde ich hier Umluft favorisieren.

Andere Alternative wäre den Herd hinten in die Ecke zu packen (dort wo der Abzug ist), fände ich aber eher ungünstig.
 
AW: Erste eigene Küche

Was findest du denn an dem Kochfeld an der Wand "ungünstig"? Wäre schon gut genau zu wissen was dir daran nicht gefällt.

LG
Sabine
 
AW: Erste eigene Küche

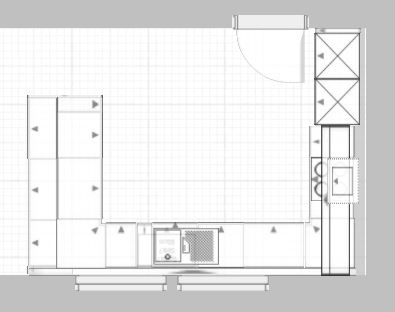
Ich hab mal ein bisschen geschoben. An der Unterschrankaufteilung kann man vielleicht noch ein bisschen feilen, mir ist erst später eingefallen, das es das Ausgleichsregal bei Ikea nur in Weiß oder Holz gibt. Hab jetzt aber keine Zeit mehr, dass noch zu ändern.

Die Wandzeilen habe ich alle etwas von der Wand abgezogen, um Platz für die Rohre, die aufputz verlegt werden, zu schaffen...
Den Kühlschrank habe ich mal durch einen integrierten ersetzt und auch einen BO-Hochschrank dazu gestellt, finde ich einfach hübscher und sollte man sich zumindest mal überdenken und rechnen...:rose:

Über dem Kochfeld habe ich eine Dunstesse aus Trockenbau, mit einem Lüfterbaustein angedacht, diese mit einem Kranzprofil verziert. Ich weiß nicht ob Ikea Kranzprofile hat, aber da kann man vielleicht auch auf Polystyrol ausweichen, die gibt es auch in sehr fest.

Zur Unterschrankaufteilung sag ich jetzt mal nichts, der 40er neben der Spüle, ist für Müll unter der APL angedacht.

Bei einer Planung mit Ikea, ist zu bedenken, das der Sockel sehr hoch wird. Evtl. sollte man überlegen, eine dickere APL zu nehmen.
 

Anhänge

  • dnniem1.jpg
    dnniem1.jpg
    49,3 KB · Aufrufe: 178
  • dnniem2.jpg
    dnniem2.jpg
    46 KB · Aufrufe: 181
  • dnniem3.jpg
    dnniem3.jpg
    49,4 KB · Aufrufe: 176
  • dnniem4.jpg
    dnniem4.jpg
    44,7 KB · Aufrufe: 166
  • dnniem.JPG
    dnniem.JPG
    21,9 KB · Aufrufe: 182
  • dnniem-conny.KPL
    3,9 KB · Aufrufe: 165
  • dnniem-conny.POS
    9,7 KB · Aufrufe: 184
AW: Erste eigene Küche

Hallo Conny,

vielen Dank für die Planung. Sieht sehr gut aus.

Den Herd hätte ich gerne in der Kochinsel, da man dann nicht so weit weg ist vom Geschehen in Ess- und Wohnzimmer.

Werde mich mal erkundigen wie aufwändig die Verlegung des Wasseranschlusses ist.

Arbeitsplatte müsste dann ja etwas tiefer sein, richtig?

Mit der Konstruktion des Dunstabzugs kann ich mir jetzt noch nicht vorstellen.
Wäre ein fester Kasten, der in die Ecke gesetzt wird?
Habe so etwas noch nicht gesehen.

Wir haben heute Nachmittag einen Termin in einem Küchenstudio . Mal schauen was dabei heraus kommt.

Viele Grüße
Daniel
 
AW: Erste eigene Küche

Kochfeld in der Halbinsel ist aber egal ob Um- oder Abluft nicht so besonders schön zu gestalten.

Und dann überlege mal, was man eigentlich so lange am Kochfeld macht, wobei man auch Unterhaltung braucht? ..

Kochfeld ist doch oft:
- etwas anbraten .. da ist man meist konzentriert und saut auch ein wenig rum
- etwas auf den Punkt braten, da kann man Ablenkung auch schlecht gebrauchen

... für beide Bratsachen wäre Abluft auch die beste DAH-Lösung.

Ja und dann läßt man noch mal etwas schmoren, das ab und zu umgerührt werden will. Das dauert aber nicht ewig.

Im Gegensatz dazu schnippelt man oft sehr lange oder braucht mal viel Platz, z. B. beim Kekse backen, Buffet anrichten etc., wo dann die übertiefe Halbinsel gerade recht kommt.
 
AW: Erste eigene Küche

Genau das war mein Gedanke bei der Planung der Kochstelle in der Mitte.
Schnippel im Momente immer neben dem Herd. Da kann ich schon Dinge anbraten, während ich noch schnippel. Hab alles im Blickfeld und kann bei Bedarf umrühren.
So müsste ich dann immer hin und her laufen.
Bei der Kochstelle an der Wand, müsste ich immer hin und her laufen.
Vorteil wäre natürlich die Nähe zum Kühlschrank..

Für Buffets könnte ich das Kochfeld einfach abdecken.
 
AW: Erste eigene Küche

Ich sage hmmm ... ich sehe gerade, du hast auch eine Alnodatei angehängt.

Wäre nett, wenn du wie wir auch, aus einer Alnoplanung ein oder zwei Ansichten und den Grundriss fabrizierst. --> Alnohilfe Kapitel 3 ... dann muss nicht jeder erst 2 Dateien herunterladen, den Alnoplaner starten und die heruntergeladenen Dateien öffnen, um überhaupt mal zu sehen, was du geplant hast. Und, die Profis sehen überhaupt mal was, denn die haben den Alnoplaner nicht installiert.

Den Grundriss deiner Planung füge ich hier mal ein:
dnniem_EigPlanGrundriss.jpg

So geht das aber nicht ... die Spüle ist viel zu weit weg vom Kochfeld .. ideal sind so um die 100 cm Abstand.

Ich gehe davon aus, dass die Balken im richtigen Abstand im Alnoplan integriert sind ... oder?

Die 230 cm sind Unterkante Balken? Wie hoch sind die Balken denn, also die echte Raumhöhe?

Kannst du den Gesamtgrundriss vielleicht nochmal leserlich mit den Maßen für den Essbereich ergänzen? Es ist immer besser, den gesamten Raum im Alnoplaner anzulegen. Man bekommt dann ein besseres Gefühl für den Raum.

Und dann sind da noch die Maße (Breite, Tiefe und Höhe) vom vorhandenem Kühlschrank wichtig.
 
AW: Erste eigene Küche

Heute waren wir unterwegs um einige Vergleichsangebote zu IKEA machen zu lassen.

Station 1 war ein großes Möbelhaus mit über 100 Ausstellungsküchen. Vom Personal waren wir nicht besonders angetan. Der Fachberater wollte keinen richtigen Vorschlag und nur alles grob durchgerechnet und ist auf ca. 9000 Euro gekommen. Küche wäre von Nobilia . Geräte von Neff .
Wir sollten noch einmal wiederkommen, wenn wir genau wüssten was wir wollen.
Er musste dann auch weiter.
Vielleicht sahen wir zu jung und zu wenig betucht aus. War aber nicht schlimm, haben uns dort nicht besonders gut aufgehoben gefühlt.

Station 2 war ein Küchenstudio . Hier war der Berater noch schlimmer. Will jetzt aber nicht auf Einzelheiten eingehen. Für eine genaue Planung müssen wir einen Termin machen. Das kann ich natürlich verstehen, da Samstags immer etwas mehr zu tun ist.
Er hat uns aber schon ein Raster aufgezeichnet, auf dem er Schränke eingezeichnet hat. Fazit: Unter 10000 Euro ist nichts zu machen.
Auch hier hatten wir nicht das Gefühl, dass man uns etwas verkaufen will.

Wir sind dann noch direkt bei uns im die Ecke zu einer Firma, die eigentlich hauptsächlich Großhandel macht (also Hausbau und Haustechnik). Küchen bekommt man aber auch als Privatmann.

Dort sind wir dann auf einen sehr kompetenten Berater getroffen, der sich Zeit für uns genommen und verschiedene Möglichkeiten mit uns durchgegangen ist.
Von seiner Seite kamen genau die gleichen Vorschläge wie ich sie hier im Forum als Tipps gefunden habe (z.B. verkauft er von sich aus nur, wenn es nicht anders geht, Eckschränke).

Er hat dann unseren favorisierten Plan durchgerechnet und ist auf knapp unter 8000 Euro gekommen. Wir haben dafür aber nicht überall Auszugsschränke (unter der Spüle nicht). Dies wird er und aber auch noch einmal als Vergleich ausrechen.
Für nächsten Freitag haben wir dann einen Termin zur genauen Vermessung der Küche gemacht. Dann wird er die genauen Pläne der Schränke mitbringen und auch die zwei Fronten, die uns am besten gefallen haben.
Da wird er uns auch ausrechnen was für die Verlegung des Wasseranschlusses dazu käme. Somit kommen wir ganz nah an die Planung von Conny. Vielen Dank noch einmal dafür.

Küche wäre von Häcker und Geräte von Miele .

Wir würden dieses Angebot dem Kauf bei IKEA bevorzugen, da die heimische Wirtschaft unterstützt wird. Ist ja fast alles Made in Germany.
Außerdem fühlen wir uns sehr gut beraten.
 
AW: Erste eigene Küche

Hallo,

wenn der letzte KFB Häcker -Küchen hatte, hat er Euch die Küche im 5-Raster oder 6-Raster geplant?
Soviel teuerer finde ich das 6-Raster nicht (bei uns ca. 800,- € teurer als das 5-Raster), aber Du hast ungleich mehr Stauraum. Gerade bei Eurer Größe wäre eine Höhe von 94 cm angenehm.

Ikea -Küche wollte ich auch erst, weil ich dachte, die wär soviel günstiger als 'ne freigeplante beim Händler. Aber soviel Unterschied ist da nicht und oft ist im Preis der Händler ja auch der Aufbau und das Aufmaß-Nehmen noch mit drin.

Ausserdem haben wir jetzt schon eine Ikea-Küche und einen verdammt hohen Sockel , bei dem eigentlich viel Stauraum verloren geht.
 
AW: Erste eigene Küche

Wird es denn jetzt eine Arbeitsinsel und das Wasser wird verlegt, oder doch Kochen auf der Insel?
Welche Fronten habt ihr denn in der engeren Wahl? Folienfronten? 8K kommt mir ein bisschen wenig vor, bei Landhaus.
 
AW: Erste eigene Küche

Es ist im Moment das 5er-Raster geplant. Glaube ich zumindest. Werde ich nochmal abklären.
Die genaue Höhe muss noch vermessen werden, da bei etwa 95cm das Fensterbrett anfängt.

Unser favorisierter Vorschlag ist mit Kochinsel.
Die Verlegung des Wasseranschluss hängt davon ab, ob wie hoch der Aufpreis ist.
Müssen dann auch schauen, ob die Planung so passt, dass er genau zwischen den Fenstern ist, damit diese auch noch aufgehen.
 
AW: Erste eigene Küche

Das mit der 'Kochinsel' ist einfach eine fixe Idee, durch die Kochshows ... in Deiner Planung und Küchenplanung funktioniert es besonders schlecht. Funktional ist Deine Planung ein Murks - darin Kochen wird eine Strafe sein... ausser ihr kocht eh nicht und es ist nur eine Show-Küche, dann könnt ihr auch auf die teure DAH verzichten und eine Glasplatte mit aufgemalten Kochstellen in die Insel einlassen.
 
AW: Erste eigene Küche

Da war die neue Küche auf dem Bild aber besser geplant.
Ich würde auf jeden Fall den Kochbereich in Abluftnähe planen.
Abgesehen davon halte ich 8000k bei Häcker mit Mielegeräten
auch für sehr sportlich.
LG Bibbi
 

Ähnliche Beiträge

Neff Hausgeräte Ballerina Küchen Blum Bewegungstechnologie Weibel - Intelligente Küchenlüftung

Neff Spezial

Blum Zonenplaner

Weibel Abluft-Tuning

Weibel Abluft-Tuning
Zurück
Oben