banana_yoshimoto
Mitglied
- Beiträge
- 137
- Wohnort
- Berlin
Liebes Küchenforum,
nach einiger Abstinenz melde ich mich wieder.
Mein Planungsthread ist hier:
Optimierung kleiner Allraum (Küche für ETW) -
Wir haben vor einiger Weile die Küchenanschlussplanung mithilfe der Anleitungen vom Küchenforum selber gemacht (bzw mein Mann *hüstel*) und haben dann diese Planung bei der Sonderwunschkoordinatorin vorgestellt, die diese handschriftlich ergänzt hat. Jetzt kurz vor den Feiertagen haben wir die Dokumente zur Prüfung (bis zum 04. Januar....) bekommen.
Ich werde die Deadline nachverhandeln, aber vielleicht hat ja zufälligerweise doch jemand gerade einwenig Muße um über die Planung rüberzuschauen...
von rechts nach links:
SBS: 90cm
HS: 60 cm
GSP: 60cm
Spüle: 80 cm
US: 80 cm
Ecke: 75 cm
von rechts nach links:
Ecke: 65cm
Induktionskochfeld: 110cm
Halbinsel: 60 cm
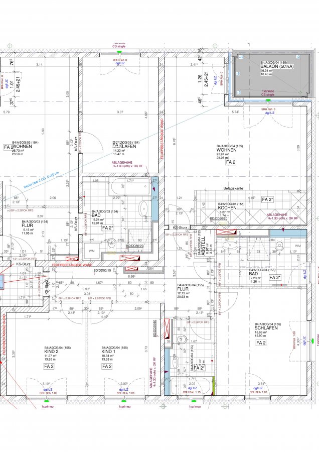
Grundriss:
W155
Dass es einen Lüfter an dieser Wand geben muss, war uns leider erst bei dem Sonderwunschtermin bewusst geworden :-/ Eigentlich war dort ein Oberschrank geplant...
Bitte bescheid geben, wenn wichtige Infos oder Erklärungen fehlen. (Arbeitshöhe : 92cm)
Wären wirklich sehr dankbar, wenn da jemand nochmal drüber schauen könnte!
Die Wohnung wird erst Ende Juni 2021 fertig gestellt und wir wollten noch nicht verbindlich bei einem Küchenstudio unterzeichnen oder Anschlusspläne für mehrere hundert Euro kaufen.
Die Wahl des Herstellers würde momentan noch stark von den Fronten (Material) abhängen und das kann sich ja auch noch bis 2021 ändern...
Bei dem Layout sind wir uns aber sicher. Danke nochmal @Evelin, auf deren Planung das ganze beruht (leicht abgewandelt).
Herzlichen Dank,
Banana
nach einiger Abstinenz melde ich mich wieder.
Mein Planungsthread ist hier:
Optimierung kleiner Allraum (Küche für ETW) -
Wir haben vor einiger Weile die Küchenanschlussplanung mithilfe der Anleitungen vom Küchenforum selber gemacht (bzw mein Mann *hüstel*) und haben dann diese Planung bei der Sonderwunschkoordinatorin vorgestellt, die diese handschriftlich ergänzt hat. Jetzt kurz vor den Feiertagen haben wir die Dokumente zur Prüfung (bis zum 04. Januar....) bekommen.
Ich werde die Deadline nachverhandeln, aber vielleicht hat ja zufälligerweise doch jemand gerade einwenig Muße um über die Planung rüberzuschauen...
von rechts nach links:
SBS: 90cm
HS: 60 cm
GSP: 60cm
Spüle: 80 cm
US: 80 cm
Ecke: 75 cm
von rechts nach links:
Ecke: 65cm
Induktionskochfeld: 110cm
Halbinsel: 60 cm
Grundriss:
W155
Dass es einen Lüfter an dieser Wand geben muss, war uns leider erst bei dem Sonderwunschtermin bewusst geworden :-/ Eigentlich war dort ein Oberschrank geplant...
Bitte bescheid geben, wenn wichtige Infos oder Erklärungen fehlen. (Arbeitshöhe : 92cm)
Wären wirklich sehr dankbar, wenn da jemand nochmal drüber schauen könnte!
Die Wohnung wird erst Ende Juni 2021 fertig gestellt und wir wollten noch nicht verbindlich bei einem Küchenstudio unterzeichnen oder Anschlusspläne für mehrere hundert Euro kaufen.
Die Wahl des Herstellers würde momentan noch stark von den Fronten (Material) abhängen und das kann sich ja auch noch bis 2021 ändern...
Bei dem Layout sind wir uns aber sicher. Danke nochmal @Evelin, auf deren Planung das ganze beruht (leicht abgewandelt).
Herzlichen Dank,
Banana


