Caileann
Mitglied
- Beiträge
- 2
- Wohnort
- zwischen den Meeren
Hallo allerseits,
wir haben uns gerade ein Haus gekauft und sind nun bei der Planung der Küche- da ich dieses tolle Forum gefunden habe, habe ich auch schon einige Küchenverkäufer mit meiner Abneigung gegen Apothekerschränke und Eckkarussels geärgert.
Vielen Dank schon mal an alle für die super Informationen!
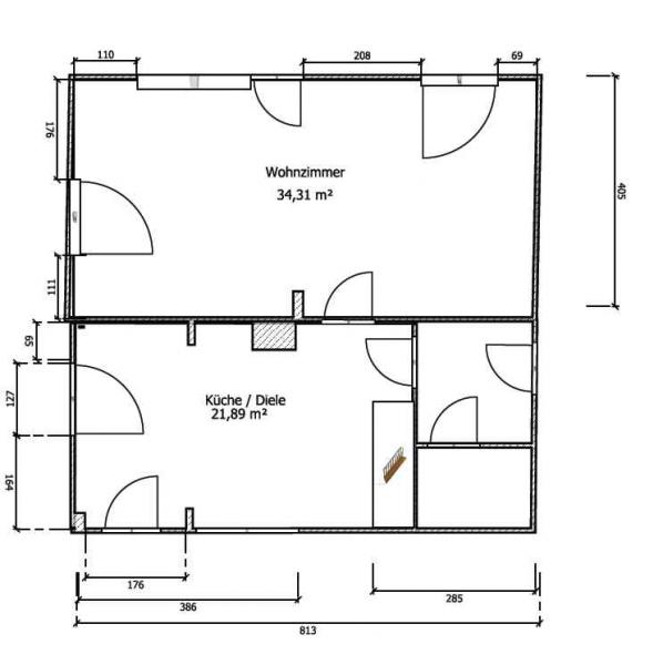
Wir haben zwei völlig unterschiedliche Varianten der Planung bekommen, und sind nun unsicher, was denn zweckmäßiger und schicker ist. Die meisten planen an den beiden Wänden lang, wobei die Wand mit der Terrassentür nur 55 cm Tiefe bietet.
Die Anschlüsse für das Kochfeld sowie die Spüle liegen an den Stellen, wie es in Planung 1 gestellt worden ist. Für Planung 2 müßten die Anschlüsse verlegt werden, was nach Aussage des
nicht so problematisch ist, da der Keller hier gute Möglichkeiten bietet.
Der Raum ist an der "unteren" Wand nicht zuende, dort sind "Fluranteile" ins Wohnzimmer (hinter dem Kaminschacht) sowie die Treppe nach oben und in den Keller sowie die Tür zum Windfang- machte der Planer halt nicht. Ach so, die komischen Mauerstummel sind Wandreste, die nach bisheriger Aussage des Architekten stehen bleiben müssen als Halter für nen Stahlträger (noch ist die Wand da...)
Nun frage ich mich, ob bei Variante 2 der Stauraum reicht. Und irgendwie wollte der Alnoplaner weder meine GSP- Konstruktion, noch den Überstand hinter der Spüle oder das Kochfeld in die Mitte des Unterschrankes bzw. die Inselesse richtig machen...
Hersteller ist noch nicht festgelegt, in der Wahl sind Selektion 2, Leicht und Nobilia . Farbe weiß, Schichtstoff mit dunkler Arbeitsplatte . An besonderen Geräten möchten wir einen Dampfgarer statt (Mikrowelle ).
Die Sitzplätze sind fürs schnelle Frühstück und zum schnippeln, der Eßtisch steht im Wohnzimmer.
Ich hoffe, ich habe nichts wesentliches vergessen und freue mich über Meinungen zu den Ideen!
Viele Grüße,
Caileann
wir haben uns gerade ein Haus gekauft und sind nun bei der Planung der Küche- da ich dieses tolle Forum gefunden habe, habe ich auch schon einige Küchenverkäufer mit meiner Abneigung gegen Apothekerschränke und Eckkarussels geärgert.
Wir haben zwei völlig unterschiedliche Varianten der Planung bekommen, und sind nun unsicher, was denn zweckmäßiger und schicker ist. Die meisten planen an den beiden Wänden lang, wobei die Wand mit der Terrassentür nur 55 cm Tiefe bietet.
Die Anschlüsse für das Kochfeld sowie die Spüle liegen an den Stellen, wie es in Planung 1 gestellt worden ist. Für Planung 2 müßten die Anschlüsse verlegt werden, was nach Aussage des
Der Raum ist an der "unteren" Wand nicht zuende, dort sind "Fluranteile" ins Wohnzimmer (hinter dem Kaminschacht) sowie die Treppe nach oben und in den Keller sowie die Tür zum Windfang- machte der Planer halt nicht. Ach so, die komischen Mauerstummel sind Wandreste, die nach bisheriger Aussage des Architekten stehen bleiben müssen als Halter für nen Stahlträger (noch ist die Wand da...)
Nun frage ich mich, ob bei Variante 2 der Stauraum reicht. Und irgendwie wollte der Alnoplaner weder meine GSP- Konstruktion, noch den Überstand hinter der Spüle oder das Kochfeld in die Mitte des Unterschrankes bzw. die Inselesse richtig machen...
Hersteller ist noch nicht festgelegt, in der Wahl sind Selektion 2, Leicht und Nobilia . Farbe weiß, Schichtstoff mit dunkler Arbeitsplatte . An besonderen Geräten möchten wir einen Dampfgarer statt (Mikrowelle ).
Die Sitzplätze sind fürs schnelle Frühstück und zum schnippeln, der Eßtisch steht im Wohnzimmer.
Ich hoffe, ich habe nichts wesentliches vergessen und freue mich über Meinungen zu den Ideen!
Viele Grüße,
Caileann
Anhänge
-
Grundriss 100425.JPG31,2 KB · Aufrufe: 189 -
Küche 100425 b2.jpg43,5 KB · Aufrufe: 198 -
Küche 100425 2.jpg43 KB · Aufrufe: 259 -
Küche 100425 b1.jpg40,4 KB · Aufrufe: 194 -
Küche 100425 1.jpg42,4 KB · Aufrufe: 314 -
küche 100425b.POS7,6 KB · Aufrufe: 190
-
küche 100425b.KPL4,1 KB · Aufrufe: 196
-
küche 100425.POS6,9 KB · Aufrufe: 176
-
küche 100425.KPL4,1 KB · Aufrufe: 193
