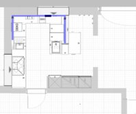
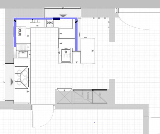
Warum habt ihr eigentlich diese freie Ecke Plan oben in der Halbinsel geplant? Ich kann mir vorstellen, dass man dort schlecht putzen kann, zumindest mit einem Staubsauger wird es eng...
Ich würde die Insel dort durchziehen, dann hat man eine gerade Fläche zum sauber halten.
Gut es verbleiben bis zur Wand dann nur noch 60cm, aber Auszüge eines U-Schrankes sollte man trotzdem noch öffnen können und als Stehklönplatz reicht es auch aus. ...oder man macht die rückseitigen Inselschränke nur 50cm tief, dann verleiben 70cm Raum bis zur Wand.