Unbeendet neue Küche - vom L zum U

Lialma

Mitglied
Beiträge
7
neue Küche - vom L zum U

Liebe Küchenforums-Mitglieder,

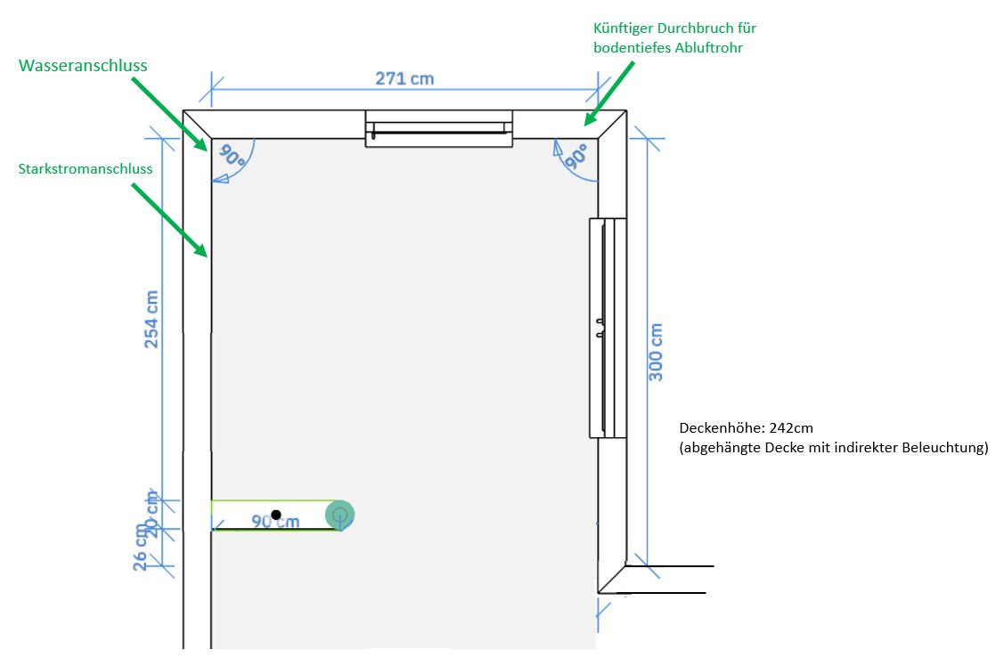
unsere Küche ist uns leider zu klein, sowohl von der Höhe her (nur 86cm, wir sind beide 176cm bzw. 194cm groß), als auch fehlt es an Arbeitsfläche und Stauraum.
Daher wollen wir statt einer L-Küche nun eine U-Küche haben. Aktuell befindet sich an der noch schrankfreien Seite ein fast bodentiefes Fenster, dieses würden wir verkleinern und auch das andere Fenster (rechts der Spüle) an die neue Arbeitshöhe anpassen.

Wir haben unseren aktuellen Entwurf derzeit nur im Online-Alnoplaner erstellt. Die Lücken zwischen den Möbeln konnten wir leider nicht entfernen, hoffen aber, dass es für die Visualisierung unserer Fragen reicht.

Für die Küche präferieren wir Maxischränke in der Höhe von 84cm und einen 8cm Sockel (bestenfalls, falls es mit dem Muldenlüfter mit Abluft funktioniert).

1.
Bisher haben wir keinen anderen Hersteller als Musterring gefunden, der einen Eckschrank in 84cm Höhe mit Apothekerauszug anbietet (siehe bei unserem Entwurf beim U ganz rechts). Gibt es noch andere Hersteller? Wir waren in drei weiteren Küchenstudios, welche diese nicht hatten.

2.
An der Stirnseite vom U befindet sich der Spülschrank mit Abfallbehälter, rechts daneben der Geschirrspüler und daneben ein 15cm Apothekerschrank .
Beim Spülschrank befindet handelt es sich im Angebot um einen Auszugsschrank, bei dem die Mülleimer mit rausgezogen werden. Aufgrund der Schrankhöhe empfinden wir, dass die Mülleimer sehr weit unten sind, das Auszugsbrett sehr groß und man im Zweifel den richtigen Behälter aus der hohen Wurfhöhe nicht trifft und auch die Hebelwirkung des langen Brettes nicht optimal ist (Brett steht weit nach oben frei hoch. Die Abfallbehälter müssen auch nicht sonderlich hoch sein, da wir kaum Müll in der Küche produzieren (Bio und Kunststoff wird direkt auf Kompost/gelbe Tonne gebracht)
Gibt es einen MUPL in 15cm Breite? Oder könnte man den Apothekerschrank rechts neben der Spülmaschine dafür umrüsten?

3.
In den toten Ecken wurden uns jeweils Le Mans Schränke angeboten, so ist es auch auf dem 3D-Entwurf erkennbar. Nun wird im Forum von diesen Schränken abgeraten.
An der linken Ecke würden wir gern die Schrankart ausprobieren.
Auf der rechten Ecke des Us sind die Schränke aktuell 60 (Le Mans), 90, 60, 30.
Im 90er Schrank ist der Muldenlüfter, bei dem die oberste „Schublade“ ja dann nicht benutzbar ist und viel Platz verloren geht, bzw. der gesamte 90er Schrank durch die Abluft nur eine geringe Tiefe hat.

Daher würden wir an der rechten Ecke (entgegen dem Entwurf) die tote Ecke in Kauf nehmen, dann einen vollwertigen 90er Schubladenschrank stellen, dann einen 60er mit Muldenlüfter (und dann noch wie gehabt dann den 60er und 30er).
Was meint das Forum dazu?

Wir würden uns sehr über Ratschläge und Hinweise freuen! Vielen Dank!

Checkliste zur Kuechenplanung

Personenkriterien und Ergonomie
Anzahl Personen im Haushalt: 5
Davon Kinder: 3
Körpergrößen aller Hauptbenutzer in cm (wegen Arbeitshoehe): 193 und 175
Welche Arbeitshöhe ist angedacht (in cm)?: 97

Gebäudekriterien
Art des Gebäudes: Bestandsbau > (kleinere) Umbauten möglich, Eigentum
Bruestungshöhe des Fensters (in cm): Fensterhöhe wird angepasst, da aktuell zu niedrig
Fensterhöhe (in cm): kann angepasst werden
Raumhöhe in cm: 242 (abgehängte Decke mit indirekter Beleuchtung)
Heizung: Fußbodenheizung
Sanitäranschlüsse: variabel an aktueller Wand

Einbaugerätekriterien
Ausführung Kühlgerät: Integriert im Hochschrank (60cm)
Einbaukühlgerät Größe: 178cm
Ausführung Tiefkühl (TK)-Gerät: Nicht erforderlich bzw. steht woanders
Dunstabzugshaube: Abluft
Hochgebauter Backofen : ja
Geplante Heißgeräte: Einbaumikrowelle, Backofen
Hochgebauter Geschirrspüler : wenn möglich
Art des Kochfeldes: Induktionskochfeld
Kochfeldbreite (ca. in cm): 90

Sitzmöglichkeiten
Sitzmöglichkeit in der Küche / im Küchenbereich: Keine
Sitzmöglichkeit: Für wieviel Personen?: nein
Sitzmöglichkeit: Tisch - wenn gesonderter Tisch oder offene Küche: Keiner
Gewünschte oder vorhandene Tischgröße: N. a.
Wofür soll der Sitzplatz in der Küche genutzt werden und wie häufig: N. a.

Stauraum-Planung
Was steht auf der Arbeitsplatte oder soll dort stehen?: Wasserkocher, Messerblock, Toaster, Obstschale
Welche weiteren Küchenmaschinen müssen in der Küche untergebracht werden: Küchenmaschine, Mixer, Pürierstab
Was soll in der Küche außer den Standards untergebracht werden: Geschirr komplett (nichts in Ess-/Wohnzimmer)
Welchen Stauraum gibt es sonst noch: Hauswirtschaftsraum

Kochgewohnheiten
Was/wie wird gekocht? (Alltagsküche, Menüs, Snacks usw): Alltagsküche, am Wochenende auch aufwendige Gerichte bzw. Gerichte für viele (9) Personen
Wie häufig wird gekocht: (fast) täglich 1x warm
Wird alleine gekocht? Oder auch gemeinsam? Mit und für Gäste?: Gemeinsam, Kinder (10, 4 und 1 Jahre) helfen gerne mit. Aktuell wird Hocker für den 4Jährigen genutzt

Spülen und Müll
Spülenform: 1 Becken ohne Abtropffläche
Welche Mülltrennung soll in der Küche vorgehalten werden: Restmüll

Sonstiges
Steht schon ein Küchenhersteller fest oder wird bevorzugt: Aufgrund von fehlenden Alternativen nur Musterring , da sie Maxikorpus mit Eck-Apothekerschrank anbieten. Bisher keinen anderen Hersteller gefunden, der das hat
Steht schon ein Gerätehersteller fest oder wird bevorzugt: : N. a. . Möglichst leise Geräte, da offene Küche. Den Kühlschrank (Liebherr ) wollen wir behalten, auch unseren Backofen von AEG .
Küchenstil: Klassisch
Was stört an der bisherigen Küche und was soll die neue Küche unbedingt können? Warum?: • Aktuelle Küche gefällt uns optisch gut, allerdings benötigen wir eine höhere Arbeitsfläche (aktuell nur 86cm). Der Stil soll beibehalten werden.
• Es fehlt an Arbeitsfläche und Stauraum, daher soll aus der bisherigen L-Form eine U-Form werden
• Wir möchten sehr hohe Korpi und einen möglichst kleinen Sockel, der aber die Möglichkeit einer Muldenlüfterabluft nach außen bietet
• Wir haben eine offene Küche. Aktuell wendet der „Koch“ vor dem Kochfeld dem Wohnzimmer/Esszimmer den Rücken zu und bekommt nichts mit. Wenn das Kochfeld auf die gegenüberliegende Seite (aktuell mit fast bodentiefem Fenster) kommt, kann er leichter in den Wohnraum und/oder aus dem Fenster schauen (Kochfeld vor Fenster großer Nachteil?)

Preisvorstellung (Budget): 15k-25k

Angehängte Dateien
 

Anhänge

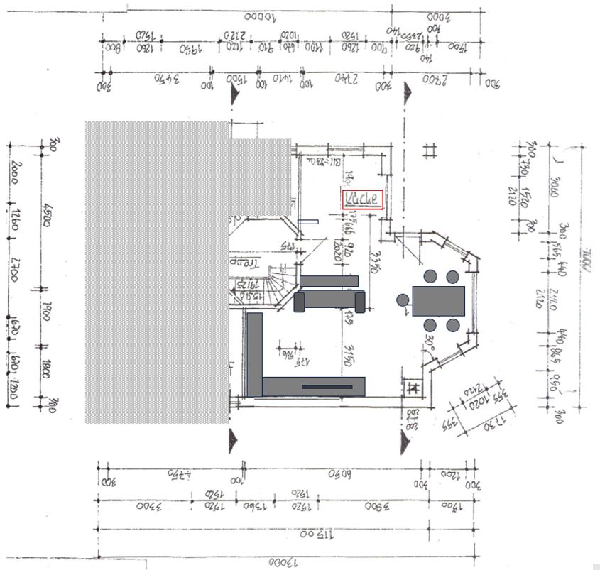
  • Grundriss_Kueche.JPG
    Grundriss_Kueche.JPG
    49,3 KB · Aufrufe: 216
  • Kueche_alt.JPG
    Kueche_alt.JPG
    86,1 KB · Aufrufe: 222
  • Planung_1.JPG
    Planung_1.JPG
    55,9 KB · Aufrufe: 226
  • Planung_2.JPG
    Planung_2.JPG
    49,1 KB · Aufrufe: 200
  • Grundriss.JPG
    Grundriss.JPG
    91,4 KB · Aufrufe: 215
Hallo Lialmau,

wenn ich euren Grundriss richtig verstehe geht das fast bodentiefe Fenster in Richtung eurer Terrasse. In der Wohnung meiner Eltern haben wir die Küche extra in Richtung Terrasse verlegt und einen schmalen Durchgang zum breiten Durchgang gemacht. Seitdem wird viel mehr draußen gegessen.

Darüber hinaus sehe ich an der neuen Lösung für den großen Umfang der Maßnahme nur geringfügig mehr Stauraum als aktuell vorhanden. Wie Du ja richtig mitgelesen hast ist der Mehrwert von Eckschränken sehr bedingt.

Daher würde ich an eurer Stelle eine andere Variante prüfen:

- Fenster planoben wie angedacht auf die Höhe bringen dass eine Arbeitsfläche als Fensterbank in dieses reingehen kann.
- Das Fenster planrechts würde ich sogar auf bodentief erweitern und als Schiebefenster umbauen so dass eine direkte Verbindung nach draußen geschaffen wird.
- An der Wandplanlinks würde ich eine Schrankzeile mit Übertiefe installieren. Es gibt Auszüge mit Übertiefe und damit erhöht sich der Staraum elementar.
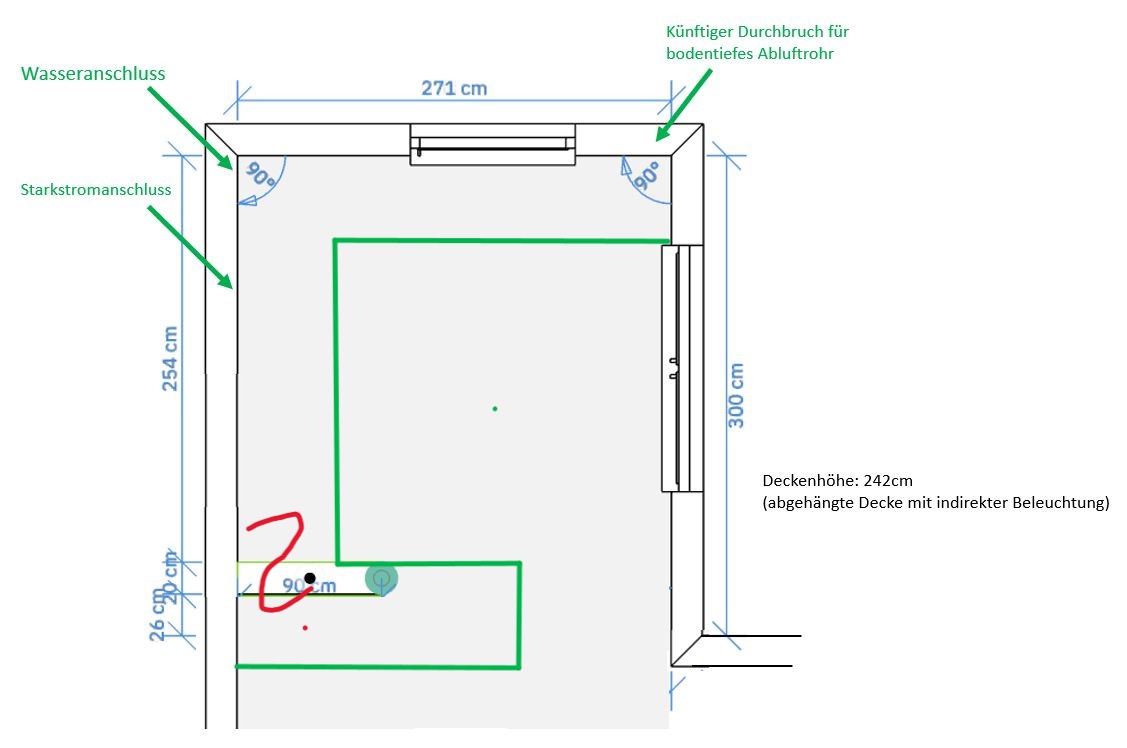
- Das Wandstück von Küche in Richtung Allraum mit 90 cm würde ich überprüfen ob es eine tragende Funktion hat oder ob es entfernt, bzw. reduziert werden kann.
- Ansonsten würde ich in den Durchgang und vor das zu überprüfende Wandstück einen Schrank (Unterschränke) stellen. Hierdurch erreichst Du einen Tätigkeitsbereich der eine Verbindung zum Allraum hat und erweiterst Stauraum und Arbeitsfläche.

Grundriss_Kueche.JPG


Sicherlich benötigt die Variante nochmal eine Detailüberprüfung, aber ich denke den Gedankengang ist sie wert.

VG

Der Hesse
 
Hallo,

Was ist ein Eckschrank mit Apotheker? Hast du ein Bild?

Was verstehst du unter einem MUPL in einem 15 er US?

Ich empfehle dir, im Forum etwas quer zu lesen, da einige deiner Kommentare nicht stimmen.

Wie lang darf die Fensterzeile werden?
 
Hi; über den Eckschrankapotheker möchte ich auch gerne mehr erfahren. Ich würde dir raten, die Küche nicht nach der Möglichkeit eines Eckschranks auszusuchen. Wichtiger sind Korpushöhe, Rastermaße, Materialien, Flexibilität der Schränke, Qualität und nicht zuletzt ein Küchenstudio , wo ihr euch gut aufgehoben fühlt.
Eine 60er Tür für einen Lemans ist ohnehin Unsinn, das bringt dir stauraummäßig nichts, weil du statt beispielsweise 4 Stauebenen nur zwei hast. Wenn überhaupt macht der Lemans oder ein Karussell nur bei sehr kleinen Küchen und mit 40er oder 45er Tür Sinn (wie bei mir).

Übrigens ist das ein sehr schöner heller Raum, mir würde auch ein wenig das Herz bluten, das Fenster zu verkleinern. Für die Küche, finde ich, wäre es schon ein Gewinn, ich würde dann ein U planen.

Und mich würde interessieren, wo die Küchentür hinführt und welchen alternativen Ausgang ihr habt.

Wie lange dürfte die Zeile planrechts gehen?
 

Anhänge

  • IMG_3811.jpeg
    IMG_3811.jpeg
    108,2 KB · Aufrufe: 76
Zuletzt bearbeitet:
Kann man das bodentiefe Fenster nicht nach außen öffnen?

Da ihr den Kühlschrank behalten wollt; welche Maße hat er?
 
Vielen herzlichen Dank für die zahlreichen Rückmeldungen!

Wir haben nicht mit so schnellem und zahlreichem Feedback gerechnet. Es sind gute Ideen dabei.

Nun möchten wir auf einige Fragen eingehen:

Leider war es falsch ausgedrückt – mit Apotheker-Eckschrank meinen wir einen Apotheker-Endschrank, ein ca 45 Grad abgeschrägter Eckschrank unter der Arbeitsplatte . Also den Schrank an der rechten Seite am Ende, der leicht abgeschrägt sein soll. So wie er auch auf der 3D-Zeichnung an der langen Fensterseite zu sehen ist.
Nach Rückfrage mit meinem Mann gab es diesen End-Schrank in Maxigröße geschlossen (und Apotheker-Innenleben) nirgendwo außer bei Musterring . Wenn, dann gab es ihn nur offen (mit drei Einlegebrettchen).
Da dies der erste Blickfang beim Betreten des Raumes ist und offen nur verstauben und unordentlich aussehen würde, ist soll dieser Schrank unbedingt geschlossen sein.
Kennt jemand weitere Anbieter?


An der langen Fensterseite können die vollen 3m mit Schränken ausgenutzt werden, die Wand ist 3,03m lang.

Morgen senden wir noch ein Foto, bei dem der Zugang zum Raum und auch zur Terrasse besser ersichtlich ist.
Dann sieht man auch, dass diese kleine 90er Trennwand bleiben muss.

Bezüglich des MUPL in 15cm -> wahrscheinlich gibt es sowas nicht?
Wir haben versucht auszudrücken, dass uns der angebotene Mülleimer unter der Spüle als Ausziehschrank nicht gefällt, wir uns stattdessen einen MUPL wünschen würden. Nur haben wir für einen Standard-MUPL keinen Platz, sondern nur diesen 15cm breitem Schrank ... . Vielleicht haben wir aber auch beim Querlesen im Forum und Internet etwas falsch verstanden.

Bis dahin nochmals vielen Dank und einen schönen Abend!
 
Dachte mir schon, ich spinne. Weil in der Liste steht wieder Einbaugerät.
Auf dem Foto erkennt man es vielleicht nicht so gut, aber es handelt sich tatsächlich um ein Einbaugerät. Das Gerät ist erst ein Jahr alt, wir haben keine passende Front anfertigen lassen, da wir die Küche ja sowieso erneuern wollen (falls die Frage kommt: ja, das Öffnen vom Kühlschrank ohne Griff ist unbequem, aber machbar. Quasi eine integrierte Kindersicherung ;-) )

Die Maße vom Kühlschrank sind: Breite 55.9 cm, Höhe 177cm, Tiefe 54,6cm
 
Wofür braucht ihr diesen schrägen Schrank, wenn ihr das Fenster verkleinert und mit einem U um die Ecke wollt? Dann macht doch dieser Schrank gar keinen Sinn mehr?
 
gibt es diese Terrassentür wie im EG Plan im Essbereich? vermutlich ja, denn irgendwie muss man ja rauskommen wenn nicht durch die Küche.

wie groß ist euer Esstisch?

könntest du ein Bild von den Wasseranschlüssen unter der Spüle hochladen?

könntet ihr euch Schüller auch als Hersteller vorstellen?
Hat Bauformat übertiefe US/HS mit 86er Korpushöhe?

Darüber hinaus sehe ich an der neuen Lösung für den großen Umfang der Maßnahme nur geringfügig mehr Stauraum als aktuell vorhanden.
wie kommst du zu diesem Schluss? Die Küche ist bez Stauraum und Arbeitsfläche mehr für eine Studentenbude geeignet als eine Familie mit 5 P. Jeder Zentimeter mehr ist ein Gewinn, koste es was es wolle.
 
Zuletzt bearbeitet:
wie kommst du zu diesem Schluss? Die Küche ist bez Stauraum und Arbeitsfläche mehr für eine Studentenbude geeignet als eine Familie mit 5 P. Jeder Zentimeter mehr ist ein Gewinn, koste es was es wolle.

Meine Aussage war ins Verhältnis zum Umfang der Maßnahme gesetzt.

Da der le Mans Schrank sehr uneffektiv ist habe ich den Eckschrank mal außer Acht gelassen. Dann wird ein 90er, ein 60er Schrank und das Ding übers Eck vorne gewonnen und das zu dem Preis dass das Licht durch das große Fenster wegfällt und sich damit die Atmossphöre in die Küche aus meiner Perspektive nachteilig verändert und mit der Annahme das die Terrasse vor diesem Fenster ist die funktionalen Zusammenhänge sich verschlechtern.

Daher der Alternativvorschlag der 2 90 er Schränke mit Normaltiefe bringt und wenn man will sogar noch ein 90er Regal mit 20 cm Tiefe. Plus die Veränderung der Übertiefe an der Wand planlinks. Wenn ich mich recht entsinne habe ich gelesen das Schränke mit Übertiefe das Stauraumvolumen um 20 % steigern.
 
Zum Mupl - das könnte sich ausgehen.
ihr habt 271 Raumbreite. Je 65 für die Ecken, 60 Geschirrspüler ; bleiben 80 cm über.
Ich würde einen 50er Spülenschrank nehmen und einen 30er Mupl. Unter 30 macht der Mupl keinen Sinn. @isabella hat einen 30er. Für den Spülenschrank kann ich dir die Spüle von Blanco Andano empfehlen, die ist aufgrund der Radien innen sehr großzügig und man kann die Etagonstäbe als zeitweise Abtropfe darüberlegen.

Und falls das Kochfeld nach planrechts wandert, würde ich Ecke, Geschirrspüler , Spüle, Mupl, Ecke planen.
 
@Hesse: Der Spacecorner ist vielleicht etwas weniger fehleranfällig als LeMans oder die klassischen Rondelle, aber mehr Platz bietet er auch nicht.
Auf einem der Fotos auf der Blum Webseite sieht man recht schön, dass der Eckschrank auf beiden Seiten innen quasi eine zusätzliche Innenwand hat, an der die Führungsschienen der Auszüge laufen. Dabei wird die tote Ecke nur nach links und rechts aufgeteilt - du hast dann also zwei tote Dreiecke (ergibt in Summe wieder eine tote Ecke).
Und das ganze hat sicher seinen Preis, ist aufgrund der Form weniger praktisch als ein schlichter gerader Auszug und der Klappmechanismus der Fronten kann irgendwann auch kaputt gehen.
 
Der Spacecorner gibt es schon seit Jahren, hier wird eher generell von Ecklösungen abgeraten, weil der Verzicht darauf meistens zu besser erreichbarer Stauraum bei geringen Kosten führt. Hier nachzulesen: * Tote Ecken - gute Ecken *
 
Wenn ihr den ganzen Thread verfolgt habe ich das Thema tote Ecken selbst thematisiert und sogar eine Alternative vorgeschlagen die eine Ecklösung weniger hat.

Die Threaderstellerin scheint jedoch an der Grundformation des U's festhalten zu wollen.

Ja der Spacecorner hat ebenfalls tote Ecken aber dafür mehr Nutzungsebenen als Le Mans und Rondell. Daher kann er wenn man schon eine Ecklösung möchte eine sinnvolle Alternative sein.
 
gibt es diese Terrassentür wie im EG Plan im Essbereich? vermutlich ja, denn irgendwie muss man ja rauskommen wenn nicht durch die Küche.

wie groß ist euer Esstisch?

könntest du ein Bild von den Wasseranschlüssen unter der Spüle hochladen?

Hallo Evelin, vielen Dank!
Eine separate Terrassentür gibt es, ein Foto werde ich gleich hochladen.

Der Esstisch ist ca 90x140cm und ausziehbar. Er steht im Erker, der Weg zur Küche ist kurz.

Hier das Foto vom Wasseranschluss, er ist ca 20cm von der Außenwand weg in ca 45cm Höhe.
könntet ihr euch Schüller auch als Hersteller vorstellen?
Hat Bauformat übertiefe US/HS mit 86er Korpushöhe?

Bezüglich Hersteller sind wir völlig offen, wir schauen uns dann Schüller an - danke für den Tipp.

Schönes Wochenende!
 

Anhänge

  • Wasseranschluss.JPG
    Wasseranschluss.JPG
    52,8 KB · Aufrufe: 72

Ähnliche Beiträge

Neff Hausgeräte Ballerina Küchen Blum Bewegungstechnologie Weibel - Intelligente Küchenlüftung

Neff Spezial

Blum Zonenplaner

Weibel Abluft-Tuning

Weibel Abluft-Tuning
Zurück
Oben