Neue Küche in unserem Haus

Lamonta

Mitglied
Beiträge
11
Hallo zusammen,

nachdem ich nun schon eine Weile mitlese, eröffne ich nun endlich meinen Planungsthread, wir
wollen uns eine neue Küche kaufen, nachdem die Alte von Siematic quasi auseinanderfällt.
unsere Küche ist nicht ganz einfach, da sie lang aber schmal ist und 2 Türen hat. Das Fenster ist auch so tief,
dass keine normale Arbeitshöhe möglich ist,wir haben darunter dennoch Unterschränke mit einer Natursteinplatte aus Naturstein, schwarz poliert, über die ganze Küchenbreite, die ins Fensterbrett übergeht, das soll auch so bleiben, die Höhe ist/ war praktisch für die Kinder und ich liebe es als
"Anrichtetisch, von dort aus können meine fleissigen Helferlein auftragen.
Wir planen an einer Wand einen Geräteblock mit Vorratsschrank, auf der gegenüberliegenden Seite eine 4m lange Arbeitsplatte aus dem gleichen Naturstein mit Unterschränken für Spüle und Kochfeld, Spülmaschine ohne Oberschränke.
Die Arbeitsplatte endet an den Schränken unter dem Fenster und ist nat. höher, mit dem Versatz kann ich ganz gut leben.
Die Küche soll weiss lackiert sein evtl grifflos, wir brauchen einen grossen Kühlschrank, bei Neff gibt es einen mit 306l,
einen kleinen Gefrierer, einen Backofen , einen Dampfgarer oder Dampfgarbackofen?, ein 80 - 90er Induktionsfeld,
eine neue Spülmaschine und eine neue Abzugshaube.
Ich brauche dringend Hilfe mit dem Alnoplaner, ich kann keine Geräte und Fenster einfügen und bekomme auch die 3d Ansicht nicht ganz hin, daher habe ich noch nichts angehängt. Ich habe windows Vista auf meinem Pc.

LG Friederike


Checkliste zur Küchenplanung von Lamonta

Anzahl Personen im Haushalt : 8
Davon Kinder? : 5
Körpergrössen aller Hauptbenutzer (wegen Arbeitshöhe) in cm : 190, 175 cccc
Art des Gebäudes? : Bestandsbau, Umbauten ausgeschlossen
Brüstungshöhe des Fensters (in cm) : 81 cm
Fensterhöhe (in cm) : 150
Raumhöhe in cm: : 270
Heizung : Fussbodenheizung
Sanitäranschlüsse : variabel an aktueller Wand
Ausführung Kühlgerät? : Integriert im Hochschrank (60cm)
Kühlgerät Größe : bis 175 cm Höhe
Ausführung Tiefkühl (TK)-Gerät : Im Kühlschrank bis 2 Schubladen unten
Dunstabzugshaube? : Abluft
Hochgebauter Backofen ? : Ja
Hochgebauter Geschirrspüler ? : nein
Kochfeldart? : Induktion
Kochfeldbreite ca. (in cm)? : 80 - 90 cm
Spülenform: : 1 Becken ohne Abtropffläche
Weitere geplante Heißgeräte : Dampfgarer ohne Wasseranschluß
Küchenstil? : klassisch
Sitzmöglichkeit in der Küche / im Küchenbereich als : Keine
Sitzmöglichkeit: Für wieviel Personen? : nein
Sitzmöglichkeit: Tisch - wenn gesonderter Tisch oder offene Küche : Keine
Gewünschte o. vorhandene Tischgröße : Kein Tisch
Wofür soll der Sitzplatz in der Küche genutzt werden? Wie häufig? : Kein Sitzplatz
Welche Arbeitshöhe ist angedacht (in cm)? : 94 cm
Was steht auf der Arbeitsplatte oder soll dort stehen? : Kaffeevollautomat, Obstschale
Welche weiteren Küchenmaschinen müssen in der Küche untergebracht werden? : Küchenmaschine, Wasserkocher, Toaster, Handrührgerät, Mixer, Eierkocher
Was soll in der Küche außer den Standards untergebracht werden? : ALLE Vorräte, Getränkekisten
Welchen Stauraum gibt es sonst noch? : Geschirr/Gläserschrank im Wohn-/Esszimmer, Keller
Was/wie wird gekocht? (Alltagsküche, Menüs, Snacks usw) : Alltagsküche, Menus
Wie häufig wird gekocht? : (fast) täglich 1x warm
Wird alleine gekocht? Oder auch gemeinsam? Mit und für Gäste? : Gemeinsam mit mehreren Personen
Was stört an der bisherigen Küche und was soll die neue Küche unbedingt können? Warum? : Dampfgarer , kein side by side Kühlschrank mehr,
Steht schon ein Küchenhersteller fest oder wird bevorzugt? : Nein
Steht schon ein Gerätehersteller fest oder wird bevorzugt? : Neff und Miele
Preisvorstellung (Budget) : bis 15.000,-
__________________________Im Threadverlauf eingestellte Bilder
- Gesamtgrundriss
lamonta_Gesamtgrundriss.jpg

- Küchengrundriss - Skizze
lamonta_Kuechengrundriss.jpg
111249d1367918587-neue-kueche-in-unserem-haus-image.jpg

- Küchengrundriss mit Maßen vom Küchenstudio
111711d1368470827-neue-kueche-in-unserem-haus-foto.jpg
 
Zuletzt bearbeitet von einem Moderator:
AW: Neue Küche in unserem Haus

Hallo Friederike,

da sich bisher noch keiner gerührt hat, zumindest von mir schon mal ein "herzlich willkommen".

So ganz ohne nähere Raumangaben, ist es natürlich auch schwierig, irgendetwas Konstruktives beizutragen.
Einen vermaßten Grundriss des Küchenraums sowie einen Gesamtgrundriss der Etage kannst Du ja auch ohne Alno -Planer zeichnen und anhängen.

Deine Probleme mit dem Alno-Planer sind so natürlcih auch schwierig einzuschätzen. Es sieht aber ja so aus, dass die grundlegende Installation und Benutzung funktioniert. Die Fenster zieht man ja ansich genau wie die Möbel in den Grundriss und plaziert sie an der gewünschten Stelle am "Rand" des Raums.
Mit der 3D-Ansicht muss man anfangs einfach etwas rumspielen und ausprobieren wie sich das drücken der 3 Maustasten zusammen mit Mausbewegungen auf die Ansicht auswirkt.
Meine ersten 3D-Ansichten sahen auch noch sehr schräg aus, aber das gibt sich.

Beste Grüße
Winfried

P.S. Wow, 5 Kinder! Das ist toll! :clap:
 
AW: Neue Küche in unserem Haus

Hallo,
ich kann mich Winfried nur anschließen.
Ein Grundriss, auch als "Schnappschusss/Sreenshot", ist immer gern gesehen.

Mit dem Alnoplaner hole ich mal ein bisschen aus:
In der Planung unter Raum/Fenster/Türen auf das Kreuz vor "Fenster" klicken, die ungefähre Breite des Fensters aussuchen und anklicken, dann kannst du dir links davon die Fensterform aussuchen und an die richtige Stelle ziehen. Mit der Taste F4 (rechts öffnet sich dann ein anderes Fenster) lassen sich dann noch die genauen Maße und Brüstungshöhe anpassen.

Toll, dass ihr so viele Kinder habt!

LG, Blumenlady
 
AW: Neue Küche in unserem Haus

Auch von mir ein herzlichen Willkommen! :welcome:

...uns würde für die Planung, zunächst auch eine eingescante oder abfotografierte Handskizze reichen, insbesondere brauchen wir auch einen genau vermaßten Grundriss.
 
AW: Neue Küche in unserem Haus

Hallo,
vielen lieben Dank für Eure herzlichen Willkommensgrüsse,
Natürlich waren meine Angabe ohne Plan nicht besonders sinnvoll,
ichhabe jetzt den Grundriss unseres Erdgeschoss angehängt
dort ist allerdings die 2 . Tür nicht eingezeichnet
und 2 Handskizzen unserer Küche mit einem ersten Entwurf,
mit dem Alnoplaner befasse ich mich erst wieder heute Abend in Ruhe.

Ich habe zum Beispiel kein Kochfeld gefunden und die Spüle schwebte über der Arbeistsplatte:(

Aber es kann ja noch werden.

Ersteinmal vielen Dank für Eure Hilfe


LG Friederike
 

Anhänge

  • image.jpg
    image.jpg
    103,6 KB · Aufrufe: 253
  • image.jpg
    image.jpg
    54,7 KB · Aufrufe: 245
  • image.jpg
    image.jpg
    49,3 KB · Aufrufe: 643
AW: Neue Küche in unserem Haus

und jetzte reiche ich noch die Bilder vom Alnoplaner nach
leider schaffe ich es nicht, de Versatz der Arbeitsplaten darzustellen und die
Arbeitsplatte in die Ecke zu führen, auch soll das Kochfeld mittig auf die beiden 90er Auszugsschränke und nicht ganz nach aussen.
Ich würde gerne 1 grosses Spülbecken ohne Ablaufbereich haben,
wie sind da Eure Erfahrungen, ist das eher unpraktisch, wen doch etwas mit der Hand gespült wird.
Reicht ein 60 er Schrank für den Müll?
Eigentlich dachte ich an etwas größeres, aber der Symmetrie wegen habe ich es gelassen.

Viele Grüße Friederike2013 Küche 2.jpg2013 Küche 1.jpgfebruar märz 2013 023 Küche 3.jpg
 
AW: Neue Küche in unserem Haus

Würdest du auch noch bitte zu deinen Bilder die kpl.- und pos.-Dateien hochladen, damit wir damit weiter arbeiten können. Denn leider ist dein Grundriss nicht vermaßt.
 
AW: Neue Küche in unserem Haus

Guten Morgen,
das ist natürlich richtig, ich stelle mich wohl ziemlich dämlich an.

  • :-[
Und ich weiß leider auch nicht, wie ich einen vermassten Plan und eine Teile Liste erstelle.
Kann ich die einzelen Elemente auch einfach so hier auflisten und in meine Skizze
noch die Maße nachtragen.
LG Friederike
 
AW: Neue Küche in unserem Haus

Moin Friederike,

ja, so kannst du das machen. ;-) ...noch besser wäre, wenn du zusätzlich, die POS und KPL Datei von deiner Alnoplanung mit hochladen könntest. :top:
 
AW: Neue Küche in unserem Haus

Leider finde ich nicht die Pos und Plandateien bei alno zum Runterladen.
Gibt es da einen Tip?
LG Friederike
 
AW: Neue Küche in unserem Haus

Wenn du speicherst, musst du hinschauen, wohin gespeichert wird.
Ich habe mir bei den Dokumenten extra einen Ordner "KÜCHE" angelegt, wo ich die K-Sachen hinspeicher.
 
AW: Neue Küche in unserem Haus

vielen Dank für die Info,
aber ich habe bereits auch einen Ordner angelegt,
aber weder der Plan noch die Pos Datei lassen sich öffnen,
ich bekomme immer eine Fehlermeldung.
Ich werde mal bei meinem Sohn nachfragen, sonst gebe ich es auf.
LG Friederike
 
AW: Neue Küche in unserem Haus

Die Dateien kannst du auch nicht direkt öffnen, das geht nur über den Alnoplaner.

Die Dateinen hochladen, schaffst du auch ohne deinen Sohn. ;-) Anhänge verwalten anklicken - Dateien hochladen - Durchsuchen - Ordner anklicken - KPL oder POS Datei anklicken - Datei hochladen - fertig :cool:
 
AW: Neue Küche in unserem Haus

Du musst die auch nicht öffnen, sondern genau so hoch laden, wie die Bilder, da gibt es keinen Unterschied.
Öffnen lassen sich die Dateien eh nur gemeinsam IM Alno , deswegen brauchen wir auch immer beide.
In der Alnohilfe ist das alles sehr gut erklärt, nur Mut, nicht immer auf die Kids verlassen;-)
 
AW: Neue Küche in unserem Haus

okay:-)

hier sind jetzt die Dateien, ich hoffe, es verbirgt sich das Richtige dahinter.

Lieben Dank für Eure Worte
Friederike
 

Anhänge

  • PLAN1.POS
    4,8 KB · Aufrufe: 198
  • PLAN1.KPL
    3,9 KB · Aufrufe: 183
AW: Neue Küche in unserem Haus

Angelika,
leider bin ich kein Computercrack, sonder kann nur das KF und den Alno händeln. Jedoch darf nichts Unvorhergesehenes geschehen.
 
AW: Neue Küche in unserem Haus

Man (frau ;-)) wächst an seinen Aufgaben, also je mehr man sich mit etwas beschäftigt, um so besser wird man.
 
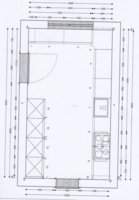
AW: Neue Küche in unserem Haus jetzt mit Grundriss

Guten Abend,
nun war ich am Wochenende zum 1.Mal in einem Küchenstudio
und habe jetzt einen vermassten Grundriss unserer Küche, den ich anhänge.
Schüller nova gloss hochglanz weiss mit Griffleisten und Nero assuluto Arbeitsplatte .
Arbeitshöhe 94cm durch 6 er Raster.

Als Einbaugeräte habe ich ausgesucht

Neff Geschirrspüler GX 964
Blanco Spüle Blancosubline 500-IF anthrazit
Neff Induktions Kochfeld 80 cm mit Flexzone TI 8586X
Neff Kühlschrank K 325
Neff Kombidampfgarer Mega CC 8762 N
Neff Backofen Mega BE 1542 N
und Neff Kaffeevollautomat CV 7760 N

die letzten 4 Geräte eingebaut in den Hochschränken, die ca 2 m hoch werden

bei der Abzugshaube bin ich noch nicht ganz sicher, ich hätte gerne eine weisse aus Glas und kopffrei, das Küchenstudio empfiehlt Silverline Pegasus Premium.

die Unterschränke vor dem Fenster sollen tiefengekürzt werden auf ca 43cm,
ebenso kommt von der Höhe noch etwas herunter, damit die Sockelhöhe angeglichen werden kann

Leider habe ich es (noch) nicht geschaftt den Müll unter die Aerbeitspneute zu bekomme, KPL will ihn unter die Spüle setzten, um die 90 er Auszugsschränke nicht zu unterbrechen.
Auch finde ich Kochfeld und Spüle etwas nah zusammen, aber der Wasseranschluss kann nicht weiter zum Fenster gelegt werden .
Vielleicht gibt es alternative Planungsvorschläge?
Liebe Grüße Friederike


Foto.jpg
 

Ähnliche Beiträge

Neff Hausgeräte Ballerina Küchen Blum Bewegungstechnologie Weibel - Intelligente Küchenlüftung

Neff Spezial

Blum Zonenplaner

Weibel Abluft-Tuning

Weibel Abluft-Tuning
Zurück
Oben