- Beiträge
- 32
So Ihr Lieben,
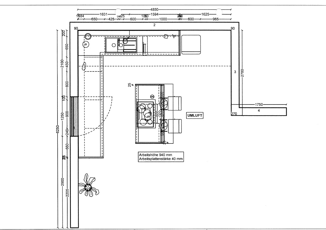
hier nun die (hoffentlich?) endgültige Planung von meinem Küchenstudio . Bis zum Aufmass kann ich jedoch immer noch problemlos ändern. (Und das wird voraussichtlich nächsten Augsut sein...)
Es wird eine Häcker Systemat Front aus Kunststoff weiss (AV 2050), Arbeitsplatte wird Holzoptik dunkel werden, da hab ich mich jedoch noch nicht endgültig entschieden.
Kaufpreis 12.800€, Anzahlung 1.000€, das finde ich auch in Ordnung so.
Geräte werden es folgende:
Kühlschrank wahrscheinlich einer von Gorenje, das werde ich jedoch erst später entscheiden
Miele Einbau-Backofen H2663BED
Miele Autark-Induktions-Kochfed KM6118ED 76cm
Siemens Geschirrspüler SX66N057EU
Constructa Inselesse CD939352 90cm
Spüle Blanco Metra 6S Silgranit PuraDur II
Armatur Blanco Zenos
Schränke sind wie folgt, beginnend am Fenster Richtung Kühlschrank:
3x 90cm (1-1-2-2 & 2x 2-2-2)
1x MUPL 45cm
Tote Ecke
60cm Spülenunterschrank (2 Auszüge, oberer 46cm tief)
Spülmaschine
Unterschrank -Regal 15cm mit Handtuchhalter
1x 100cm 1-2-3
Insel:
übertiefe Auszüge
links vom Herd 60cm 2-2-2
rechts vom Herd 60cm 1-1-2-2
unter dem Herd 1 Schubkasten für Backbleche
Was sagt Ihr dazu? Habt Ihr noch weitere Anregungen, Verbesserungsvorschläge?
hier nun die (hoffentlich?) endgültige Planung von meinem Küchenstudio . Bis zum Aufmass kann ich jedoch immer noch problemlos ändern. (Und das wird voraussichtlich nächsten Augsut sein...)
Es wird eine Häcker Systemat Front aus Kunststoff weiss (AV 2050), Arbeitsplatte wird Holzoptik dunkel werden, da hab ich mich jedoch noch nicht endgültig entschieden.
Kaufpreis 12.800€, Anzahlung 1.000€, das finde ich auch in Ordnung so.
Geräte werden es folgende:
Kühlschrank wahrscheinlich einer von Gorenje, das werde ich jedoch erst später entscheiden
Miele Einbau-Backofen H2663BED
Miele Autark-Induktions-Kochfed KM6118ED 76cm
Siemens Geschirrspüler SX66N057EU
Constructa Inselesse CD939352 90cm
Spüle Blanco Metra 6S Silgranit PuraDur II
Armatur Blanco Zenos
Schränke sind wie folgt, beginnend am Fenster Richtung Kühlschrank:
3x 90cm (1-1-2-2 & 2x 2-2-2)
1x MUPL 45cm
Tote Ecke
60cm Spülenunterschrank (2 Auszüge, oberer 46cm tief)
Spülmaschine
Unterschrank -Regal 15cm mit Handtuchhalter
1x 100cm 1-2-3
Insel:
übertiefe Auszüge
links vom Herd 60cm 2-2-2
rechts vom Herd 60cm 1-1-2-2
unter dem Herd 1 Schubkasten für Backbleche
Was sagt Ihr dazu? Habt Ihr noch weitere Anregungen, Verbesserungsvorschläge?
