Boomslang
Mitglied
- Beiträge
- 12
Hallo zusammen,
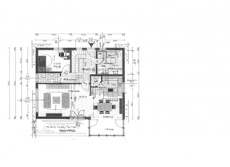
wir sind gerade in der Planungsphase unseres Neubaus und beginnen mit unserer Küchenplanung . Von der Idee her dachte ich mir, dass eine U-Küche mit zusätzlicher Schrankwand am besten passt (und wahrscheinlich vom Stauraum notwendig sein wird, da ich nie wieder zu wenig Platz haben will und wir keinen Keller besitzen werden). Auf Anregungen und Kritik bin ich sehr gespannt
Die Raummaße sind wie im Alnoplan angegeben und können auch noch etwas verändert werden, allerdings sollten sie schon grob so bleiben. Das Fenster ist sowohl in der Position als auch in der Höhe noch verschiebbar. Die Sitzgruppe steht (zum Teil) im geplanten Wintergarten, die 3 Türen stellen in der Realität einen komplett offenen Durchgang zum Wohnzimmer dar. Die Wände in der Küche sollen einen Vorratsraum darstellen, welcher auch eine Tür bekommt.
Folgende Gedanken haben wir uns bei der Planung gemacht:
Eine Frage habe ich noch: Wir sind auch gerade am Überlegen bzgl. geeignetem Bodenbelag - bei Fliesen haben wir etwas Angst, das wenn etwas runterfällt Gläser/Teller und/oder sogar die Fliesen gleich kaputt sind. Hat jemand Linoleum in der Küche?
Einige Planungswünsche sind Budgetabhängig und können gerne zur Disposition gestellt werden, z.B.:
Die Front soll Melamin werden, auf einen Küchenhersteller haben wir uns noch nicht eingeschossen.
Was haltet ihr davon? Was kann man besser machen, was haben wir nicht bedacht? Ist das Budget realistisch?
Schon mal vielen Dank und viele Grüße,
Michael
Anhang anzeigen PLAN2.KPLAnhang anzeigen PLAN2.POS




Checkliste zur Küchenplanung von Boomslang
Anzahl Personen im Haushalt : 3
Davon Kinder? : 1
Körpergrössen aller Hauptbenutzer (wegen Arbeitshöhe ) in cm : 185, 178
Art des Gebäudes? : Neu-/Umbau, Planänderungen möglich
Brüstungshöhe des Fensters (in cm) : 86
Fensterhöhe (in cm) :
Raumhöhe in cm: : 250
Heizung : Fussbodenheizung
Sanitäranschlüsse : vollkommen variabel
Ausführung Kühlgerät? : Integriert im Hochschrank (60cm)
Kühlgerät Größe : noch unbekannt
Ausführung Tiefkühl (TK)-Gerät : Im Kühlschrank ab 3 Schubladen unten
Dunstabzugshaube? : Umluft
Hochgebauter Backofen ? : Ja
Hochgebauter Geschirrspüler ? : wenn möglich
Kochfeldart? : Induktion
Kochfeldbreite ca. (in cm)? : 80
Spülenform: : 1,5 Becken mit Abtropffläche
Weitere geplante Heißgeräte : Standmikrowelle, Dampfgarer mit Wasseranschluß
Küchenstil? : klassisch
Sitzmöglichkeit in der Küche / im Küchenbereich als : Überstehende Arbeitsplatte
Sitzmöglichkeit: Für wieviel Personen? : für 2 Personen
Sitzmöglichkeit: Tisch - wenn gesonderter Tisch oder offene Küche : Wird nach Bedarf neu gekauft
Gewünschte o. vorhandene Tischgröße : 150x100
Wofür soll der Sitzplatz in der Küche genutzt werden? Wie häufig? : Imbiß, gemeinsames Kochen
Welche Arbeitshöhe ist angedacht (in cm)? : 99
Was steht auf der Arbeitsplatte oder soll dort stehen? : Kaffeevollautomat, Wasserkocher, Toaster, Obstschale
Welche weiteren Küchenmaschinen müssen in der Küche untergebracht werden? : Handrührgerät, Pürierstab, Eierkocher
Was soll in der Küche außer den Standards untergebracht werden? : Geschirr komplett (nichts in Ess-/Wohnzimmer)
Welchen Stauraum gibt es sonst noch? : Speisekammer, Hauswirtschaftsraum
Was/wie wird gekocht? (Alltagsküche, Menüs, Snacks usw) : Alltagsküche & Menüs
Wie häufig wird gekocht? : (fast) täglich 1x warm
Wird alleine gekocht? Oder auch gemeinsam? Mit und für Gäste? : Sowohl als auch
Was stört an der bisherigen Küche und was soll die neue Küche unbedingt können? Warum? : Bisherige Küche hatte zu wenig Staumöglichkeiten - ein Großteil der Arbeitsfläche steht voll
Steht schon ein Küchenhersteller fest oder wird bevorzugt? : nein
Steht schon ein Gerätehersteller fest oder wird bevorzugt? : nein
Preisvorstellung (Budget) : bis 15.000,-
wir sind gerade in der Planungsphase unseres Neubaus und beginnen mit unserer Küchenplanung . Von der Idee her dachte ich mir, dass eine U-Küche mit zusätzlicher Schrankwand am besten passt (und wahrscheinlich vom Stauraum notwendig sein wird, da ich nie wieder zu wenig Platz haben will und wir keinen Keller besitzen werden). Auf Anregungen und Kritik bin ich sehr gespannt
Die Raummaße sind wie im Alnoplan angegeben und können auch noch etwas verändert werden, allerdings sollten sie schon grob so bleiben. Das Fenster ist sowohl in der Position als auch in der Höhe noch verschiebbar. Die Sitzgruppe steht (zum Teil) im geplanten Wintergarten, die 3 Türen stellen in der Realität einen komplett offenen Durchgang zum Wohnzimmer dar. Die Wände in der Küche sollen einen Vorratsraum darstellen, welcher auch eine Tür bekommt.
Folgende Gedanken haben wir uns bei der Planung gemacht:
- Kochfeld an der Wand, da dort hoffentlich weniger Kochdunst in den Essbereich/Wohnzimmer zieht und die breite Arbeitsfläche in der Mitte der Küche voll variabel genutzt werden kann.
- Von der großen Arbeitsfläche hat man auch einen guten Blick in das Ess-/Wohnzimmer und kann bei Bedarf auch die Stühle nutzen um im sitzen zu arbeiten.
- Die Schrankwand zwischen Speisekammer und Wohnzimmerdurchgang soll Vorräte (60er Schrank mit Innenauszügen) beheimaten und die Kühl-/Gefrierkombination. Das offene Regal soll den Übergang zum Wohnzimmer etwas auflockern, Kochbücher aufnehmen und auch als Zwischenabstellfläche für den Kühlschrank dienen (z.B. nach Einkäufen)
- Die Speisekammer soll weitere/größere Vorräte/Wasserkästen und größere/nicht gebrauchte Elektrogeräte (Raclette usw.) aufnehmen.
- Backofen /Dampfgarer sollen hochgebaut sein (und am besten 2 Geräte - zur Not auch Kombigerät) und in der Nähe des Kochfeldes (Induktion ).
- Umlufthaube ist gewünscht - wg. Form bin ich für Anregungen offen
- Die Hochschränke sollen v.a. Gläser aufnehmen
- Spüle soll vor dem Fenster sein (wird ein Kempfer) und unbedingt eine Abtropffläche und ein kleines Zusatzbecken enthalten
- Abfallbehälter unter der APL halte ich (nach dem Blättern im Forum
) für eine sehr gute Idee
- Die Spülmaschine hochgebaut wäre nett, allerdings fällt mir hier kein passender Ort ein - aus Erfahrung in der aktuellen Küche möchte ich sie gerne in der Nähe der Spüle haben um mal Reste wegzukippen oder kurz über die Teller spülen zu können
- Die schmalen Unterbauschränke sollen Backbleche und Geschirrtücher aufnehmen - etwas, dass bei uns bisher immer irgendwo im Weg herumflog und ziemlich genervt hat.
- Die restlichen Unterbauschränke sollen Geschirr- und Kochutensilien aufnehmen - sind die Aufteilungen aus eurer Erfahrung zweckmäßig?
- Der Rolladenaufsatzschrank soll Wasserkocher/Toaster/Eierkocher verstecken, daneben soll unser Kaffeevollautomat (neben die Spüle) hin
- Das danebenstehende Regal muss nicht sein - im allgemeinen sind wir noch nicht 100% zufrieden mit dem Bereich rechst von der Spüle
- Der Tisch im Esszimmer (in der Planung im Moment 100x150) soll später auch mal ausziehbar sein - daher kann und soll die Küche nicht beliebig "länger" werden, da es sonst sehr eng wird
Eine Frage habe ich noch: Wir sind auch gerade am Überlegen bzgl. geeignetem Bodenbelag - bei Fliesen haben wir etwas Angst, das wenn etwas runterfällt Gläser/Teller und/oder sogar die Fliesen gleich kaputt sind. Hat jemand Linoleum in der Küche?
Einige Planungswünsche sind Budgetabhängig und können gerne zur Disposition gestellt werden, z.B.:
- Dampfgarer auch ohne Festwasseranschluß oder Kombidampfgarer
- Karusseleckschrank (den 1 Le-Mans-Eckschrank würde ich gerne wg. Töpfen behalten)
- Einklappbarer Brotschneider
- Rolladenschrank
Die Front soll Melamin werden, auf einen Küchenhersteller haben wir uns noch nicht eingeschossen.
Was haltet ihr davon? Was kann man besser machen, was haben wir nicht bedacht? Ist das Budget realistisch?
Schon mal vielen Dank und viele Grüße,
Michael
Anhang anzeigen PLAN2.KPLAnhang anzeigen PLAN2.POS




Checkliste zur Küchenplanung von Boomslang
Anzahl Personen im Haushalt : 3
Davon Kinder? : 1
Körpergrössen aller Hauptbenutzer (wegen Arbeitshöhe ) in cm : 185, 178
Art des Gebäudes? : Neu-/Umbau, Planänderungen möglich
Brüstungshöhe des Fensters (in cm) : 86
Fensterhöhe (in cm) :
Raumhöhe in cm: : 250
Heizung : Fussbodenheizung
Sanitäranschlüsse : vollkommen variabel
Ausführung Kühlgerät? : Integriert im Hochschrank (60cm)
Kühlgerät Größe : noch unbekannt
Ausführung Tiefkühl (TK)-Gerät : Im Kühlschrank ab 3 Schubladen unten
Dunstabzugshaube? : Umluft
Hochgebauter Backofen ? : Ja
Hochgebauter Geschirrspüler ? : wenn möglich
Kochfeldart? : Induktion
Kochfeldbreite ca. (in cm)? : 80
Spülenform: : 1,5 Becken mit Abtropffläche
Weitere geplante Heißgeräte : Standmikrowelle, Dampfgarer mit Wasseranschluß
Küchenstil? : klassisch
Sitzmöglichkeit in der Küche / im Küchenbereich als : Überstehende Arbeitsplatte
Sitzmöglichkeit: Für wieviel Personen? : für 2 Personen
Sitzmöglichkeit: Tisch - wenn gesonderter Tisch oder offene Küche : Wird nach Bedarf neu gekauft
Gewünschte o. vorhandene Tischgröße : 150x100
Wofür soll der Sitzplatz in der Küche genutzt werden? Wie häufig? : Imbiß, gemeinsames Kochen
Welche Arbeitshöhe ist angedacht (in cm)? : 99
Was steht auf der Arbeitsplatte oder soll dort stehen? : Kaffeevollautomat, Wasserkocher, Toaster, Obstschale
Welche weiteren Küchenmaschinen müssen in der Küche untergebracht werden? : Handrührgerät, Pürierstab, Eierkocher
Was soll in der Küche außer den Standards untergebracht werden? : Geschirr komplett (nichts in Ess-/Wohnzimmer)
Welchen Stauraum gibt es sonst noch? : Speisekammer, Hauswirtschaftsraum
Was/wie wird gekocht? (Alltagsküche, Menüs, Snacks usw) : Alltagsküche & Menüs
Wie häufig wird gekocht? : (fast) täglich 1x warm
Wird alleine gekocht? Oder auch gemeinsam? Mit und für Gäste? : Sowohl als auch
Was stört an der bisherigen Küche und was soll die neue Küche unbedingt können? Warum? : Bisherige Küche hatte zu wenig Staumöglichkeiten - ein Großteil der Arbeitsfläche steht voll
Steht schon ein Küchenhersteller fest oder wird bevorzugt? : nein
Steht schon ein Gerätehersteller fest oder wird bevorzugt? : nein
Preisvorstellung (Budget) : bis 15.000,-








