Landhausküche im alten Bauernhaus

Bavaria

Mitglied
Beiträge
10
Hallo liebe Forengemeinde!

Bei uns steht im März der Umzug in ein Bauernhaus an, entsprechend muss eine neue Küche her. Die Wahl der Front ist bereits gefallen, es soll eine Schüller Tauern werden, Arbeits- und Nischenplatte in Granit Imperial White, Spüle wird die Keradomo Mera in elfenbein.

Nun geht es um die Anordnung der Schränke etc. pp. Etwas problematisch sind hier die Fenster mit einer Brüstungshöhe von nur 85cm, da das eine Fenster so im Eck liegt, dass hier die APL definitiv höher als das Fenster liegt. Der Kühlschrank misst ca. 180cm, es wäre möglich ihn in den angrenzenden Speis zu verfrachten, um Raum für einen Hochschrank zu schaffen. Die an den Kühlschrank anschließende Lücke muss frei bleiben, da in der Ecke ein Specksteinofen zum Stehen kommt, der entsprechenden Sicherheitsabstand erfordert.
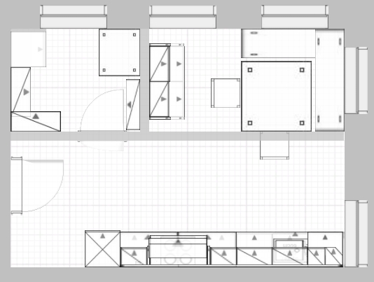
Ich füge Grundriss und Alnopläne an, verzeiht die etwas verzogenen Bildansichten, mit einer Apple Maus scheint das nicht ganz so gut zu funktionieren.

LG
Bavaria




Checkliste zur Küchenplanung von Bavaria

Anzahl Personen im Haushalt : 3
Davon Kinder? : keine
Körpergrössen aller Hauptbenutzer (wegen Arbeitshöhe ) in cm : 174, 180
Art des Gebäudes? : Bestandsbau, Umbauten ausgeschlossen
Brüstungshöhe des Fensters (in cm) : 85
Fensterhöhe (in cm) : 120
Raumhöhe in cm: : 250
Heizung : Fussbodenheizung
Sanitäranschlüsse : fix
Ausführung Kühlgerät? : Stand-Alone bis 75 cm Breite
Kühlgerät Größe : bis 175 cm Höhe
Ausführung Tiefkühl (TK)-Gerät : Nicht erforderlich bzw. steht woanders
Dunstabzugshaube? : Umluft
Hochgebauter Backofen ? : Nein
Hochgebauter Geschirrspüler ? : nein
Kochfeldart? : Induktion
Kochfeldbreite ca. (in cm)? : 60
Spülenform: : 1 Becken mit Abtropffläche
Weitere geplante Heißgeräte :
Küchenstil? : Landhaus
Sitzmöglichkeit in der Küche / im Küchenbereich als : Gesonderter Tisch
Sitzmöglichkeit: Für wieviel Personen? : für 4 Personen
Sitzmöglichkeit: Tisch - wenn gesonderter Tisch oder offene Küche : Vorhandener Tisch
Gewünschte o. vorhandene Tischgröße : 120cmx120cm
Wofür soll der Sitzplatz in der Küche genutzt werden? Wie häufig? : Essen, zusammensitzen, Basteln etc.
Welche Arbeitshöhe ist angedacht (in cm)? : 92cm
Was steht auf der Arbeitsplatte oder soll dort stehen? : Kaffeevollautomat, Messerblock
Welche weiteren Küchenmaschinen müssen in der Küche untergebracht werden? : Küchenmaschine, Pürierstab
Was soll in der Küche außer den Standards untergebracht werden? : Geschirr komplett (nichts in Ess-/Wohnzimmer)
Welchen Stauraum gibt es sonst noch? : Speisekammer, Keller
Was/wie wird gekocht? (Alltagsküche, Menüs, Snacks usw) : Alltagsküche
Wie häufig wird gekocht? : (fast) täglich 1x warm
Wird alleine gekocht? Oder auch gemeinsam? Mit und für Gäste? : alleine oder zu zweit
Was stört an der bisherigen Küche und was soll die neue Küche unbedingt können? Warum? : Keine Arbeitsfläche, fehlende Hängeschränke aufgrund von Schräge und störendem Dachsparren
Preisvorstellung (Budget) : bis 15.000,-
 

Anhänge

  • Küche1.jpg
    Küche1.jpg
    35,1 KB · Aufrufe: 292
  • Küche2.jpg
    Küche2.jpg
    30,9 KB · Aufrufe: 267
  • Küchenplanung.pdf
    109,2 KB · Aufrufe: 264
  • Küchenplanung.KPL
    4,1 KB · Aufrufe: 219
  • Küchenplanung.POS
    9,6 KB · Aufrufe: 237
AW: Landhausküche im neuen Bauernhaus

Was unbedingt noch gesagt werden sollte, dass Kühlschrank und Induktionsfeld+ Backofen vorhanden sind. An Geräten kommen nur Spülmaschine und Dunstabzugshaube hinzu.

Das Angebot, das uns für die dargestellt Küche vorliegt, ist mit 12.000€ durch das Möbelhaus veranschlagt worden.
 
AW: Landhausküche im neuen Bauernhaus

Hallo,

ganz generell gesprochen: den Kühlschrank in einer Speisekammer wäre mir persönlich zu anstrengend. Diese Option würde ich nicht in Betracht ziehen. Oder meinst Du ein Gefrierschrank? Der wäre wiederum gut in der Speisekammer aufgehoben.
 
AW: Landhausküche im neuen Bauernhaus

Hier kommt der Grundriss fürs EG, sowie der der Küche (wobei letzterer nicht so ganz maßstabsgetreu ist).
 

Anhänge

  • Grundriss_EG.pdf
    53,1 KB · Aufrufe: 787
  • Küche_Grundriss.pdf
    21,2 KB · Aufrufe: 684
AW: Landhausküche im neuen Bauernhaus

Nein, ich meinte tatsächlich den Kühlschrank. Kühlschrank neben Ofen erscheint halt nicht so optimal. Mein Mann wollte ihn völlig losgelöst und einzeln an die Ost-Wand zwischen den beiden Fenstern stellen, das mag ich nun von der Optik her überhaupt nicht und außerdem wirds mir der Eckbank zu eng. Aus diesem Grund habe ich ja auch auf das U bzw. eine Theke verzichtet.

Im Prinzip gefällt es mir so ganz gut, eventuell doch noch einen Einbaukühlschrank. Ich bin inzwischen nur so geschädigt von zu wenig Platz und Arbeitsfläche, dass ich schon wieder Panik habe, die Schränke könnten nicht langen.:-[ Wobei ich jetzt keine Speisekammer habe und auch noch jede Menge Lebensmittel im Schrank lagere, Rest im Keller (absoluter Mist in der ersten Etage).

Achja, mir fällt gerade ein Fehler in der Checkliste auf: eine der drei Personen ist natürlich ein Kind (ohne Bobbycar ;D)
 
AW: Landhausküche im neuen Bauernhaus

Ungewöhnliche Räume erfordern ungewöhnliche Lösungen ;-)

Mir gefällt die Planung im Prinzip auch. Ich würde in der Speisekammer mehrere Küchenwagen parken, die bei Bedarf vorgezogen werden (Wagen mit Küchenmaschine und dem Zubehör zum Backen vorziehen etc.) oder als zusätzliche Arbeitsfläche genutzt werden können, so bleibst Du flexiebel.

Aber evt. fällt ja Kerstin noch was anderes ein ;D
 
AW: Landhausküche im neuen Bauernhaus

Man könnte für den Kühlschrank eine Öffnung in die Speisekammerwand bauen und ihn so quasi in der Speis "versenken".

Größtes Problem dabei ist die Eingangstür. Die sollte dann wenigstens andersherum angeschlagen werden (kann der Schreiner) oder noch besser nach außen öffnen. Billigste Variante: die Tür wohnt im Keller (bei uns ist die Küchenschiebetür zu 99% offen).
 

Anhänge

  • Landhausküche.JPG
    Landhausküche.JPG
    37,3 KB · Aufrufe: 225
AW: Landhausküche im neuen Bauernhaus

@Menorca: Die Idee "Kühlschrank versenken" finde ich klasse.

  • :2daumenhoch:
 
AW: Landhausküche im neuen Bauernhaus

Damit ist der Kühlschrank aber noch weiter vom Schuß entfernt. Daher .. .eher unpraktisch, keine Ablagefläche dabei usw.

@Bavaria .. welche Tauern soll es denn werden? Fichte antik? Und du hast im Alnoplaner weiß gewählt, weil dort keine Landhaus-Fichte-Front mehr ist?

Meine Küche neu und wenige Fotos von meiner Küche neu :cool:
 
AW: Landhausküche im neuen Bauernhaus

Kühlschrank "versenken" finde ich jedenfalls besser als den kompletten KS in die Speisekammer zu stellen. Mir wäre es zu umständlich wegen jedem Schluck Milch erst in die beengte Speisekammer zu gehen bzw. wenn ich am Kochen bin schnell noch die Sahne aus dem KS aus der Speisekammer zu holen.
Die Speisekammer ist ja ein separater Raum, ....erst die Zimmertüre öffnen, ...dann bei beengten Platzverhältnissen die KS-Tür aufreißen und ....dann das ganze wieder zurück.

Besser wäre der KS natürlich in der Küche für einen normalen Arbeitsablauf. ;-)
 
AW: Landhausküche im neuen Bauernhaus

Danke schon einmal für Eure Antworten.

Die Idee mit dem versenktem Kühlschrank ist interessant, aber eben wirklich ein Problem mit der Tür. Aushängen möchte ich sie ungern, was aus dem Grundriss nicht hervorgeht, ist, dass der Flur a) groß b) mit Gewölbedecke und mit Marmor am Boden und wir c) am Alpenrand genau auf einem Höhenzug sind, wo es im Winter doch mal ordentlich kalt ist. :kfb: Da wird die Küchentür heiztechnisch zwangsläufig mal zu sein müssen. Das sind richtig schwere geschnitzte Holztüren, wäre auch optisch schade. Andersrum anschlagen geht leider wegen dem Ofen auch nicht, dann gibt es Küchenlagerfeuer. Wahrscheinlich wird der Kühlschrank doch einfach am Ende der Zeile stehenbleiben, wir schauen dann, ob wir doch noch einen integrierten nehmen. Die Idee mit den Küchenwagen im Speis hatte ich auch schon. Einen mobilen soll es für die Küchenmaschine geben, einen festen für die Brotmaschine. Die möchte ich nicht auf der Arbeitsfläche habe, nimmt doch zuviel Platz weg und da stört es mich morgens nicht, einmal dort Brotschneiden zu gehen.

Kerstin: Nagel auf den Kopf getroffen, ich habe im Alnoplaner keine passende Front gefunden und dann weiß genommen, weil es da die passenden Kranzleisten gab.;-) Ich schwanke noch zwischen Fichte Antik und Fichte Bernstein. Gefallen mir beide gut. Zur Eckbankgruppe würde Bernstein besser passen, aber ich überlege, dann lieber die Eckbankgruppe auf Antik zu trimmen. Deine Küche schaut klasse aus. Kann es sein, dass Du sogar das gleiche Becken drin hast?
 
AW: Landhausküche im neuen Bauernhaus

Ich habe den Tisch mal auf die richtige Größe gebracht: der grüne, einfach dazugestellte Tisch ist 120 x 120cm groß.

Da finde ich, könnte man an der Fensterwand durchaus noch einen Schrank stellen, nur in 5er Raster und mindertief, aber 100cm breit. Super für das Geschirr und Besteck, das man zum Tischdecken benötigt, und als Standplatz für Kaffeemaschine, Obstkorb oder was auch immer auch geeignet.

Über der Spüle ist mehr Kopffreiheit auch angenehm, deshalb würde ich für dort nur etwas in Regneuiefe 20cm vorsehen.

Geschirrspüler ohne diesen Klappmechanismus unten macht Miele ; ist optisch halt schöner.

Sicher, dass ihr Schränke mit Innenauszügen wollt? Immer zwei Handgriffe für jedes Teil beim Rausholen? Ich habe euch stattdessen mal normale Auszugschränke hingestellt.

Bei so viel Holz (Boden, Türen, Essgruppe, Decke?) fände ich vanille oder jedenfals einen hellen Weißton gar nicht so verkehrt für die Küche. Weiß aber nicht, ob es den für eure Schüllerküche überhaupt gibt.
 

Anhänge

  • kf_Bavaria_V1.KPL
    4,1 KB · Aufrufe: 215
  • kf_Bavaria_V1.POS
    11,6 KB · Aufrufe: 222
  • kf_Bavaria_V1_A1.jpg
    kf_Bavaria_V1_A1.jpg
    45,7 KB · Aufrufe: 229
  • kf_Bavaria_V1_G.JPG
    kf_Bavaria_V1_G.JPG
    41,6 KB · Aufrufe: 230
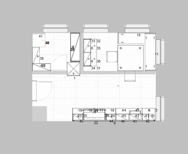
AW: Landhausküche im neuen Bauernhaus

In der neuen Aufstellung hatte ich ein Subway45-Becken von Villeroy und Boch. Aktuell warte ich ja noch auf meine Keramikarbeitsplatten von Systemceram . Da wird dann ein entsprechendes Becken gleich im Spülen-APL-Modul eingearbeitet sein. Die erste Lieferung ist dem Spediteur leider zerbrochen.
__________________________Ich habe auch mal geschoben und den neuen Alnoplaner rausgekramt, der noch Fichte Antik als Front hat.

Mich würden die vielen Innenauszüge auch stören. Und, dass eigentlich keine breiten Auszüge dabei sind.

Auch würde ich eher eine recht breite Spüle wie die Mera 56 wählen und erstmal keine Abtropffläche haben. Ein Handtuch hilft da auch.
mera56.gif

Und dazu dann vielleicht auch mal das Einhängekörbchen, dann kann etwas abtropfen, man kann aber trotzdem das Spülbecken weiter nutzen:
0831.jpg



__________________________
Zur Planung .. ich habe es bei der Zeile gelassen und der Speisekammer den fahrbaren Tisch reingestellt. Außerdem habe ich zugunsten breiter Auszüge den Backofen in einen leicht erhöhten Unterbau (das könnten auch alles Ikea -Möbel sein) in der Speisekammer verschwinden lassen.

Die GSP so mitten in der Zeile finde ich beim Kochen auch immer etwas störend, weil ich die dann gerne offen lasse, um Sachen, die ich nicht mehr brauche, gleich dort drin verschwinden zu lassen. Deshalb die Zeile von links nach rechts jetzt wie folgt:

- 2,5 cm Blende
- 60er GSP (hier drauf könnte dann der KVA untergebracht werden)
- 60er Spülenschrank mit Müll
- 60er Schrank mit Innenauszügen (der ist der gleichmäßigen Optik wg Hängeschränken geschuldet und soll durch die Innenaufteilung auch die Aufnahme höherer Öl-/Essigflaschen etc. ermöglichen.
- dann 2x100er Auszugsunterschränke. Bei der Tauern dürften die dann in der Optik von je 2x50er Auszugsunterschrank geliefert werden. Darüber mittig das Kochfeld, das dann statt 60 auch etwas breiter sein könnte.
- Der Vorteil bei den 100er in 50er Optik, man könnte die obere Schublade 2-teilen, so dass die obere Reihe 4x50er Schubladen ergeben. Insbesondere Küchenhelfer etc. könnten dann in der linken Schublade liegen, an die man dann auch rankommt, wenn jemand vorm Kochfeld steht. Zwei meiner 80er Unterschränke haben diese 2-Teilung der oberen Schublade ebenfalls.

Ihr seid groß, wenn also die APL-Höhe mit ca. 92 cm gewählt wird, dann sollte man auch die Hängeschränke, insbesondere, wenn eine Lichtleiste dazukommt, ein Raster höhersetzen, so dass die Nischenhöhe dann noch ca. 55 cm wird. Dann kommt man auch an der Spüle mit den Hängeschränken ganz gut klar.

Die DAH habe ich euch jetzt als Lüfterbaustein oder Decken-DAH in eine Art Umbau reingebastelt. Unterkante bei ca. 195 cm und damit echte Kopffreiheit.

Zum Angucken, wie Stauraum genutzt werden kann:
Küche von atmos
Küche von biggimaus
Küche von Bodybiene
Küche von Missjenny
Küche von KerstinB und nach dem Umzug
Küche von Jelena
Küche von Ulla
Nekos Küche
Darlas Küche
Magnolias Küche

Den Tisch habe ich wie Menorca ebenfalls angepaßt ;-) und den Schrank dort bei den Unterschränken in normaler Tiefe gemacht und Auszüge eingeplant. Wenn Schüller da 120er Auszugsunterschränke bietet würde ich das 2x60er Auszugsunterschränken vorziehen. Durch den Aufsatzschrank wären ja auch Schubladen für Besteck vorhanden und davor wäre noch etwas Platz um beim Essen auch mal noch etwas abzustellen.
 

Anhänge

  • kf_bavaria_20120107_kb_var1.kpl
    4,2 KB · Aufrufe: 207
  • kf_bavaria_20120107_kb_var1.POS
    17,3 KB · Aufrufe: 228
  • kf_bavaria_20120107_kb_var1_Ansicht1.jpg
    kf_bavaria_20120107_kb_var1_Ansicht1.jpg
    142,6 KB · Aufrufe: 208
  • kf_bavaria_20120107_kb_var1_Ansicht2.jpg
    kf_bavaria_20120107_kb_var1_Ansicht2.jpg
    170,6 KB · Aufrufe: 228
  • kf_bavaria_20120107_kb_var1_Ansicht3.jpg
    kf_bavaria_20120107_kb_var1_Ansicht3.jpg
    171 KB · Aufrufe: 211
  • kf_bavaria_20120107_kb_var1_Ansicht4.jpg
    kf_bavaria_20120107_kb_var1_Ansicht4.jpg
    130,1 KB · Aufrufe: 218
  • kf_bavaria_20120107_kb_var1_Ansicht5.jpg
    kf_bavaria_20120107_kb_var1_Ansicht5.jpg
    152,8 KB · Aufrufe: 217
  • kf_bavaria_20120107_kb_var1_Grundriss.jpg
    kf_bavaria_20120107_kb_var1_Grundriss.jpg
    83,9 KB · Aufrufe: 224
AW: Landhausküche im neuen Bauernhaus

Danke für Eure Anregungen!

Die minderhohen Schränke unter dem Fenster gefallen mir super, das wäre eine gute Alternative.

Soooviel Holz ist es eigentlich nicht. Der Boden ist so beigegrau gefliest und die Holzdecke befindet sich nur über der Essecke, über der Küchenzeile ist die Decke weiß (ich konnte das im Alnoplaner nicht unterteilen). Der GSP ist von Siemens , muss die genaue Nummer mal nachschauen.

Kerstin, den Backofen in den Speis zu stellen wird nicht funktionieren. Ofen und Ceranfeld haben wir ja (erst drei Monate neu), die werden mitziehen. Dummerweise ist das Ceranfeld nicht autark, der Ofen muss also drunterbleiben. Warum? Weil wir so beraten wurde, dass zwei separat gesicherte Starkstromleitungen vorhanden sein müssten. Eine Fehlinformation, wie wir inzwischen wissen.:stocksauer: Könnte man lange Auszüge unter der Fensterseite machen? Ist das überhaupt sinnvoll? Die andere Spüle finde ich dagegen sehr interessant, ebenso wie die Spülmaschine links neben der Spüle. Ich dachte, das wäre zu nah am Fenster, aber durch die Blende sollte das eigentlich gehen.

Das der Schrank auch in normaler Tiefe geht, wäre super. Ich dachte das würde zu eng.
 
AW: Landhausküche im neuen Bauernhaus

Die Fläche von Menorca am Fenster hat halt den Nachteil, dass sie nicht höher als 85 cm werden kann wg. dem Fenster und damit als Arbeitsfläche entfällt.

Hmm .. Das mit dem Kochfeld und dem Backofen ist aber saublöd. Wobei schon richtig ist, dass man auch einen Backofen extra absichern sollte. Wenn man aber sowieso Stromkreise erneuert, dann ist das eigentlich geringer Aufwand. (und natürlich ist es sinnvoll, wenn eine Planung vorher steht :kiss:).

Versuche doch mal ein bisschen zu beschreiben, wo du jeweils den KVA stellen würdest und wie sich Kocharbeitsabläufe bei den jeweiligen Planungen gestalten würden.
 
AW: Landhausküche im neuen Bauernhaus

Ist der Tisch eigentlich ausziehbar? Wird er ausgezogen? Ist das euer einziger Essplatz im Haus?

Die Eckbankschenkellänge habe ich ja jetzt mal mit 180 cm angenommen, stimmt das?
 
AW: Landhausküche im neuen Bauernhaus

Kerstin, der Tisch ist nicht ausziehbar und der einzige Essplatz. Die Schenkellänge der Bank ist 190cm.

Zu den anderen Fragen antworte ich später, da muss ich tatsächlich nochmal in mich gehen. In der Ursprungsplanung war der einzige Platz für den KVA rechts neben dem Ceranfeld.
 
AW: Landhausküche im neuen Bauernhaus

Da steht er ja eigentlich am beknackesten ... oder?
 
AW: Landhausküche im neuen Bauernhaus

ich würde die Speisekammertüre sowieso mittig versetzten, so dass man hinter der Tür noch was stellen kann und den den Kühli evt. doch in der Speisekammer versenken ;D
 

Anhänge

  • bavaria10.JPG
    bavaria10.JPG
    34,3 KB · Aufrufe: 215
  • kf_bavaria_20120107_nn_var1.kpl
    4,1 KB · Aufrufe: 205
  • kf_bavaria_20120107_nn_var1.POS
    17,3 KB · Aufrufe: 226

Ähnliche Beiträge

Neff Hausgeräte Ballerina Küchen Blum Bewegungstechnologie Weibel - Intelligente Küchenlüftung

Neff Spezial

Blum Zonenplaner

Weibel Abluft-Tuning

Weibel Abluft-Tuning
Zurück
Oben