Tassentante
Mitglied
- Beiträge
- 3
Küchenzeile für Mietwohnung
Guten Abend ihr Lieben,
wir ziehen demnächst in eine neue Mietwohnung und benötigen für diese eine Küche.
Da wir bisher viele Empfehlungen für das Forum hier erhalten, würden wir euch gerne nach Tipps und Verbesserungsvorschläge für unsere aktuelle Küchenplanung fragen.
Die aktuelle vorhandene Küche wird von der vorherigen Mieterin mitgenommen (u.s. anbei ein Foto der aktuellen Küche).
Auf der Suche nach günstigen, aber qualitativ guten Küchen in unserem Budget (ca. 5.000€) sind wir bei der Metod von Ikea gelandet.
Aktuell planen wir, die Ikea Küche (Ausnahme ist der Geschirrspüler ) durch neue Elektrogeräte von bspw. Bosch zu ergänzen (Modelle: EAN 4242005285082, EAN 4242005030095, EAN 4242005048564)
Für den Kühlschrank planen wir mit einem Side-by-Side Model (NRS9EVX von Gorenje ).
Wichtig wäre, dass die Spüle aufgrund des Wasseranschlusses ganz links an der aktuellen Stelle montiert wird. Als Wasserhahn hätten wir gerne einen Quooker oder Brita mit ausreichend Platz im Unterschrank .
Die Küche ist offen und hat auf der gegenüberliegenden Seite noch Platz für zwei Unterschränke + Oberschränke oder alternativ einen Unterschrank + Vorratsschrank. Dort sollen Mikrowelle , Kaffeemaschine und deine Kitchen Aid stehen.
Wir sind dankbar für weitere Empfehlungen für die Küche oder den Elektrogeräten.
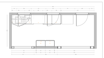
Leider gibt es keinen Grundriss der Wohnung. Direkt nach dem Eingang durch die Haustür blickt man an die Küche. Sie grenzt an das Wohnzimmer an. Einen Keller gibt es nicht und die Vorräte sollen in der Küche Platz finden.
In der Küchenplanung haben wir euch die Elektrogeräte mit eingepasst, damit man sich einen besseren Überblick verschaffen kann.
Gibt es hier noch Potential etwas besser zu machen? Beim rechten Fenster geht es ins Wohnzimmer gegenüber. Aus diesem Grund haben wir dort nichts geplant.
Mehr Details können wir nicht zur Verfügung stellen. Danke fürs Lesen.
Liebe Grüße.
Checkliste zur Kuechenplanung
Personenkriterien und Ergonomie
Anzahl Personen im Haushalt: 2
Davon Kinder: keine
Körpergrößen aller Hauptbenutzer in cm (wegen Arbeitshoehe): 166 cm und 188 cm
Welche Arbeitshöhe ist angedacht (in cm)?: Standard
Gebäudekriterien
Art des Gebäudes: Bestandsbau > Umbauten ausgeschlossen
Bruestungshöhe des Fensters (in cm): n.A.
Fensterhöhe (in cm): n.A
Raumhöhe in cm: n.A
Heizung: Fußbodenheizung
Sanitäranschlüsse: fix (Bitte Position im Grundriss vermaßt angeben)
Einbaugerätekriterien
Ausführung Kühlgerät: Side by Side (ca. 90cm breit)
Einbaukühlgerät Größe: N. a.
Ausführung Tiefkühl (TK)-Gerät: Im Kühlschrank ab 3 Schubladen unten
Dunstabzugshaube: Umluft
Hochgebauter Backofen : nein
Geplante Heißgeräte: Standmikrowelle, Backofen
Hochgebauter Geschirrspüler : nein
Art des Kochfeldes: Induktionskochfeld
Kochfeldbreite (ca. in cm): N. a.
Sitzmöglichkeiten
Sitzmöglichkeit in der Küche / im Küchenbereich: Keine
Sitzmöglichkeit: Für wieviel Personen?: N. a.
Sitzmöglichkeit: Tisch - wenn gesonderter Tisch oder offene Küche: N. a.
Gewünschte oder vorhandene Tischgröße: N. a.
Wofür soll der Sitzplatz in der Küche genutzt werden und wie häufig: N. a.
Stauraum-Planung
Was steht auf der Arbeitsplatte oder soll dort stehen?: Kaffeemaschine, Küchenmaschine, Sonstiges (evtl. im Beitragstext benennen)
Welche weiteren Küchenmaschinen müssen in der Küche untergebracht werden: Wasserkocher, Handrührgerät, Pürierstab
Was soll in der Küche außer den Standards untergebracht werden: ALLE Vorräte, Geschirr komplett (nichts in Ess-/Wohnzimmer)
Welchen Stauraum gibt es sonst noch: N. a.
Kochgewohnheiten
Was/wie wird gekocht? (Alltagsküche, Menüs, Snacks usw): Einmal täglich warm, viel Backen, Snacks
Wie häufig wird gekocht: (fast) täglich 1x warm
Wird alleine gekocht? Oder auch gemeinsam? Mit und für Gäste?: Allein
Spülen und Müll
Spülenform: 1 Becken mit Abtropffläche
Welche Mülltrennung soll in der Küche vorgehalten werden: Altpapier, Biomüll, Gelber Sack Müll
Sonstiges
Steht schon ein Küchenhersteller fest oder wird bevorzugt: Ikea Metod
Steht schon ein Gerätehersteller fest oder wird bevorzugt: Bosch und Ikea
Küchenstil: Klassisch
Was stört an der bisherigen Küche und was soll die neue Küche unbedingt können? Warum?: Bei der aktuellen Küche ist der Herd unter dem Fenster und es gibt keine Dunstabzugshaube. Stauraum ist viel zu gering
Preisvorstellung (Budget): 5k
Angehängte Dateien
Guten Abend ihr Lieben,
wir ziehen demnächst in eine neue Mietwohnung und benötigen für diese eine Küche.
Da wir bisher viele Empfehlungen für das Forum hier erhalten, würden wir euch gerne nach Tipps und Verbesserungsvorschläge für unsere aktuelle Küchenplanung fragen.
Die aktuelle vorhandene Küche wird von der vorherigen Mieterin mitgenommen (u.s. anbei ein Foto der aktuellen Küche).
Auf der Suche nach günstigen, aber qualitativ guten Küchen in unserem Budget (ca. 5.000€) sind wir bei der Metod von Ikea gelandet.
Aktuell planen wir, die Ikea Küche (Ausnahme ist der Geschirrspüler ) durch neue Elektrogeräte von bspw. Bosch zu ergänzen (Modelle: EAN 4242005285082, EAN 4242005030095, EAN 4242005048564)
Für den Kühlschrank planen wir mit einem Side-by-Side Model (NRS9EVX von Gorenje ).
Wichtig wäre, dass die Spüle aufgrund des Wasseranschlusses ganz links an der aktuellen Stelle montiert wird. Als Wasserhahn hätten wir gerne einen Quooker oder Brita mit ausreichend Platz im Unterschrank .
Die Küche ist offen und hat auf der gegenüberliegenden Seite noch Platz für zwei Unterschränke + Oberschränke oder alternativ einen Unterschrank + Vorratsschrank. Dort sollen Mikrowelle , Kaffeemaschine und deine Kitchen Aid stehen.
Wir sind dankbar für weitere Empfehlungen für die Küche oder den Elektrogeräten.
Leider gibt es keinen Grundriss der Wohnung. Direkt nach dem Eingang durch die Haustür blickt man an die Küche. Sie grenzt an das Wohnzimmer an. Einen Keller gibt es nicht und die Vorräte sollen in der Küche Platz finden.
In der Küchenplanung haben wir euch die Elektrogeräte mit eingepasst, damit man sich einen besseren Überblick verschaffen kann.
Gibt es hier noch Potential etwas besser zu machen? Beim rechten Fenster geht es ins Wohnzimmer gegenüber. Aus diesem Grund haben wir dort nichts geplant.
Mehr Details können wir nicht zur Verfügung stellen. Danke fürs Lesen.
Liebe Grüße.
Checkliste zur Kuechenplanung
Personenkriterien und Ergonomie
Anzahl Personen im Haushalt: 2
Davon Kinder: keine
Körpergrößen aller Hauptbenutzer in cm (wegen Arbeitshoehe): 166 cm und 188 cm
Welche Arbeitshöhe ist angedacht (in cm)?: Standard
Gebäudekriterien
Art des Gebäudes: Bestandsbau > Umbauten ausgeschlossen
Bruestungshöhe des Fensters (in cm): n.A.
Fensterhöhe (in cm): n.A
Raumhöhe in cm: n.A
Heizung: Fußbodenheizung
Sanitäranschlüsse: fix (Bitte Position im Grundriss vermaßt angeben)
Einbaugerätekriterien
Ausführung Kühlgerät: Side by Side (ca. 90cm breit)
Einbaukühlgerät Größe: N. a.
Ausführung Tiefkühl (TK)-Gerät: Im Kühlschrank ab 3 Schubladen unten
Dunstabzugshaube: Umluft
Hochgebauter Backofen : nein
Geplante Heißgeräte: Standmikrowelle, Backofen
Hochgebauter Geschirrspüler : nein
Art des Kochfeldes: Induktionskochfeld
Kochfeldbreite (ca. in cm): N. a.
Sitzmöglichkeiten
Sitzmöglichkeit in der Küche / im Küchenbereich: Keine
Sitzmöglichkeit: Für wieviel Personen?: N. a.
Sitzmöglichkeit: Tisch - wenn gesonderter Tisch oder offene Küche: N. a.
Gewünschte oder vorhandene Tischgröße: N. a.
Wofür soll der Sitzplatz in der Küche genutzt werden und wie häufig: N. a.
Stauraum-Planung
Was steht auf der Arbeitsplatte oder soll dort stehen?: Kaffeemaschine, Küchenmaschine, Sonstiges (evtl. im Beitragstext benennen)
Welche weiteren Küchenmaschinen müssen in der Küche untergebracht werden: Wasserkocher, Handrührgerät, Pürierstab
Was soll in der Küche außer den Standards untergebracht werden: ALLE Vorräte, Geschirr komplett (nichts in Ess-/Wohnzimmer)
Welchen Stauraum gibt es sonst noch: N. a.
Kochgewohnheiten
Was/wie wird gekocht? (Alltagsküche, Menüs, Snacks usw): Einmal täglich warm, viel Backen, Snacks
Wie häufig wird gekocht: (fast) täglich 1x warm
Wird alleine gekocht? Oder auch gemeinsam? Mit und für Gäste?: Allein
Spülen und Müll
Spülenform: 1 Becken mit Abtropffläche
Welche Mülltrennung soll in der Küche vorgehalten werden: Altpapier, Biomüll, Gelber Sack Müll
Sonstiges
Steht schon ein Küchenhersteller fest oder wird bevorzugt: Ikea Metod
Steht schon ein Gerätehersteller fest oder wird bevorzugt: Bosch und Ikea
Küchenstil: Klassisch
Was stört an der bisherigen Küche und was soll die neue Küche unbedingt können? Warum?: Bei der aktuellen Küche ist der Herd unter dem Fenster und es gibt keine Dunstabzugshaube. Stauraum ist viel zu gering
Preisvorstellung (Budget): 5k
Angehängte Dateien
Anhänge
-
Küchenplanung 1.png32,2 KB · Aufrufe: 169 -
Küchenplanung 2.png20,8 KB · Aufrufe: 146 -
Küchenplanung 3.png14,7 KB · Aufrufe: 132 -
Küchenplanung 4.png23,8 KB · Aufrufe: 150 -
Küchenplanung 5.jpg52 KB · Aufrufe: 147 -
Küchenplanung 6.jpg61,8 KB · Aufrufe: 150 -
Küchenplanung 7.jpg38,7 KB · Aufrufe: 166 -
Küche aktuell verbaut.jpeg198,6 KB · Aufrufe: 176 -
Aktuelle Küche Ansicht 2.jpeg268,3 KB · Aufrufe: 174
