Unbeendet Küchenplanung Neubau

Böhler.S.

Mitglied
Beiträge
4
Küchenplanung Neubau

Hallo Liebe Leser,

ich plane gemeinsam mit meinem Freund eine neue Küche in unserem Neubau.

Die Raummaße sind schon fix. Fenster können noch geändert werden. Wir haben einen offenen Dachstuhl (15 Grad Dachneigung).

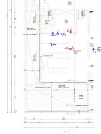
Gerne hätten wir eine zweizeilige Küche mit anschließender Sitzmöglichkeit, wie es auch im Plan zu sehen ist. Die Spüle und das Kochfeld kommen auf die Kücheninsel. Der Wasseranschluss ist innerhalb der Kücheninsel beliebig.
Wir sind uns noch nicht sicher, ob wir bei der hinteren Küchenzeile nur Hochschränke oder auch eine Nische einplanen sollten.

Ich würde mich über Eure Vorschläge und Kritikpunkte sehr freuen.

Vielen Dank im Voraus und schöne Grüße
Susanne

Checkliste zur Küchenplanung

Personenkriterien und Ergonomie
Anzahl Personen im Haushalt: 2
Davon Kinder: keine
Körpergrößen aller Hauptbenutzer in cm (wegen Arbeitshöhe ): 1,60 und 1,70
Welche Arbeitshöhe ist angedacht (in cm)?: 85 cm

Gebäudekriterien
Art des Gebäudes: Neu-/Umbau > Planänderungen möglich
Brüstungshöhe des Fensters (in cm): 135 cm
Fensterhöhe (in cm): 1
Raumhöhe in cm: 2,40
Heizung: Fußbodenheizung
Sanitäranschlüsse: vollkommen variabel

Einbaugerätekriterien
Ausführung Kühlgerät: Integriert im Hochschrank (60cm)
Einbaukühlgerät Größe: Noch unbekannt
Ausführung Tiefkühl (TK)-Gerät: Nicht erforderlich bzw. steht woanders
Dunstabzugshaube: keine
Hochgebauter Backofen : ja
Geplante Heißgeräte: Dampfbackofen (DGC) ohne Wasseranschluß
Hochgebauter Geschirrspüler : nein
Art des Kochfeldes: Induktion
Kochfeldbreite (ca. in cm): 80 bis 90

Sitzmöglichkeiten
Sitzmöglichkeit in der Küche / im Küchenbereich: Separater Tisch
Sitzmöglichkeit: Für wieviel Personen?: Für 8 Personen
Sitzmöglichkeit: Tisch - wenn gesonderter Tisch oder offene Küche: Wird nach Bedarf neu gekauft
Gewünschte oder vorhandene Tischgröße: 2 m
Wofür soll der Sitzplatz in der Küche genutzt werden und wie häufig: zum Essen, für Besucher, tägliche Nutzung

Stauraumplanung
Was steht auf der Arbeitsplatte oder soll dort stehen?: Kaffeemaschine, Messerblock, Küchenmaschine
Welche weiteren Küchenmaschinen müssen in der Küche untergebracht werden: Mixer, Pürierstab
Was soll in der Küche außer den Standards untergebracht werden: Geschirr komplett (nichts in Ess-/Wohnzimmer)
Welchen Stauraum gibt es sonst noch: Speisekammer, Keller, Abseiten in Dachschrägen

Kochgewohnheiten
Was/wie wird gekocht? (Alltagsküche, Menüs, Snacks usw): Alltagsküche
Wie häufig wird gekocht: (fast) täglich 1x warm
Wird alleine gekocht? Oder auch gemeinsam? Mit und für Gäste?: Kochen meist zu zweit, auch für Gäste

Spülen und Müll
Spülenform: 1 Becken mit Abtropffläche
Welche Mülltrennung soll in der Küche vorgehalten werden: Biomüll, Gelber Sack Müll, Restmüll

Sonstiges
Steht schon ein Küchenhersteller fest oder wird bevorzugt: nein
Steht schon ein Gerätehersteller fest oder wird bevorzugt: nein
Küchenstil: Klassisch
Was stört an der bisherigen Küche und was soll die neue Küche unbedingt können? Warum?: große Arbeitsfläche
Preisvorstellung (Budget): 20 000 - 30 000

Angehängte Dateien
 

Anhänge

  • Plan OG.JPG
    Plan OG.JPG
    96,9 KB · Aufrufe: 199
  • Küchenplan.JPG
    Küchenplan.JPG
    80,3 KB · Aufrufe: 188
Hallo und :welcome: im Küchenforum!

Dein Plan enthält viel zu viele Maße und Angaben - da wird keiner Lust haben, mit der Lupe drin rumzusuchen. ;-) Bitte stelle einen vermaßten Küchengrundriss ein, in dem alle Strecken (Gesamtlängen sowie Teilabschnitte), Ecken und Vorsprünge, Fenster, Türen, Installationen (Heizung etc.) und Anschlüsse eingezeichnet sind. Eine Handzeichnung reicht aus.

Viel Kritik ist ja nicht möglich, da du keine eigene Planung zeigst, außer zwei Blöcken. Habt ihr das denn schon mal konkreter durchdacht (Stichwort "Mitmachforum")?

Was stört an der bisherigen Küche und was soll die neue Küche unbedingt können? Warum?: große Arbeitsfläche
Kochfeldbreite (ca. in cm): 80 bis 90
Spülenform: 1 Becken mit Abtropffläche

Damit wären (inkl. Abstand nach links und rechts) die 3 Meter der Insel quasi aufgebraucht, ihr habt weder Arbeits- noch Stellfläche. Das sollte also noch mal überdacht werden. Aber halt nur mit besser lesbaren Angaben und euren Gedanken.

Ihr seid unterschiedlich groß - arbeitet ihr beide in der Küche? Dann wären zwei unterschiedliche Arbeitshöhen ratsam, z.B. unterschiedliche Höhen bei zwei Zeilen bzw. einer Zeile und einer Insel - oder auch ein Gattenblock . Eine Arbeitshöhe von 85cm klingt für die große Person zu niedrig.

ARBEITSHÖHE ermitteln - 3 Methoden haben sich da etabliert:
  • abgewinkelter Ellbogen bis Boden messen und 15 cm abziehen
  • Höhe Beckenknochen messen
  • z. B. Bügelbrett nehmen und in verschiedenen Höhen Probeschnippeln und messen, wenn es einem am bequemsten erscheint, wobei dies der wichtigste Test ist.
Idealerweise ergeben alle 3 Methoden ca. denselben Wert. Ausführlicher in Optimale Arbeitshöhen beschrieben.
 
Hallo,

vielen Dank für deine schnelle Rückmeldung. Hier noch die gewünschten Ergänzungen.

Ich bin 1,60 m groß und die Küche wird für mich geplant, da ich am meisten in der Küche stehe.
 

Anhänge

  • Kücheninsel Vorschlag 1.png
    Kücheninsel Vorschlag 1.png
    425,8 KB · Aufrufe: 189
  • hintere Küchenzeile Vorschlag 1.png
    hintere Küchenzeile Vorschlag 1.png
    1 MB · Aufrufe: 192
  • IMG_20201005_183735.jpg
    IMG_20201005_183735.jpg
    136,2 KB · Aufrufe: 183
Hallo und von mir auch ein herzliches :welcome:
Könntest Du bitte einen Screenshot der Planungsansicht posten, so, dass man Kästchen zählen kann? Die Skizze passt nicht zum Alnoplan. Ich empfehle Dir auch unbedingt den gewünschten Tisch im Alnoplan mit einzuzeichne, um einen realistischen Eindruck der Räumlichen Gegebenheiten zu bekommen.

Das Inselchen kommt mir zu kurz vor für Spüle und Kochfeld und auch die geringe Tiefe ist nicht empfehlenswert. Außerdem braucht schon die Muldenlüftung etwas mehr Tiefe (es ist eine Muldenlüftung geplant, oder?), so funktioniert es nicht.
Der Geschirrspüler ist zwischen Spüle und Kochfeld ungünstig und steht nur im Weg.

Schreib mal Deine Gedanken dazu, wie bist Du auf diese Planung gekommen?
 
Hallo,

vielen Dank für die Rückmeldung.

Ja eine Muldenlüftung ist geplant.
Ich würde gerne Waschbecken und Herd auf die Inseln geben, da ich es fein finde wenn diese nahe beisammen sind, zum Aufgießen von Speisen beim Kochen. Weiters finde ich es fein, wenn ich auch beim Abwasch zu den Gästen schaue und nicht vor der Wand stehe.

Hier habe ich noch einen weiteren Vorschlag für meine Küche. Wie gefällt euch der?
 

Anhänge

  • Vorschlag 1-1.png
    Vorschlag 1-1.png
    775,2 KB · Aufrufe: 171
  • Vorschlag 1-2.png
    Vorschlag 1-2.png
    1 MB · Aufrufe: 166
  • Vorschlag 1-3.png
    Vorschlag 1-3.png
    311,7 KB · Aufrufe: 162
Ja, 3,15 m ist ein wenig knapp für beide Funktionen. Das Kochfeld steht am Rand und zwar an der Seite, wo man um die Insel läuft. Steht ein Pfannenstiel über, kann jemand z.B. mit einem Ärmel hängenbleiben und man kann sich richtig weh tun.

Zwischen Spüle (die weniger für spülen und vielmehr für alles mögliche verwendet wird) und Kochfeld befindet sich die Hauptarbeitsfläche. Optimalerweise sollte sie 1 - 1,20 m sein.

Du planst ein DGC, damit bleiben nur die Nudeln zum Abgießen. Lieber ein Nudeltopf kaufen und dafür eine praktische Küche bekommen.

Die Muldenlüftung klaut Dir Platz auf der Kochfläche *und* im Unterschrank .

Mit dem Tisch an der Stelle sind die geplante Unterschränke an der Insel nicht nutzbar. Was ist noch weiter planunten?

Tut mir Leid, überzeugt mich alles nicht.
 
Tut mir Leid, überzeugt mich alles nicht.
Mich auch nicht, die Spüle wäre bei mir definitiv hinten an der Wand. Durch die hohen Schränke ist da aber insgesamt zu wenig Platz. Oben wurde irgendwo geschrieben, daß mehr Arbeitsfläche gewünscht ist. Ja wieso wird dann alles so hoch gebaut?

Ich hab mal alles zurück auf 0 gesetzt und mir gedacht, was ich tun würde wenn das meine Küche wäre. Mal davon abgesehen, daß mir das ein bissel viel Holz ist, gefällts mir ganz gut so.
k1.jpgk2.jpgk3.jpg
 
Wenn 2 Spülen dann vielleicht die auf der Insel ohne Abtropfe?
Ich bin, you know already, eher für Spüleninsel und Kochfeld an die Wand. Mit dem Holz den Du geplant hast @US68_KFB, könnte ich sogar leben. Weniger Holz und mehr Griffe wäre eher Meins.
 
Vielen Dank für eure Rückmeldung.

Ich muss mir das alles nochmals genau überlegen und melde mich danach wieder bei euch. ;-)

@US68_KFB vielen Dank für deinen Vorschlag. Ich finde in super! Mit welchem Programm arbeitest du?
 

Ähnliche Beiträge

Neff Hausgeräte Ballerina Küchen Blum Bewegungstechnologie Weibel - Intelligente Küchenlüftung

Neff Spezial

Blum Zonenplaner

Weibel Abluft-Tuning

Weibel Abluft-Tuning
Zurück
Oben