Küchenplanung Neubau

jaeger

Mitglied
Beiträge
7
Unser Hausbau startet Anfang 2018. Die Entwurfsplanung ist soweit durch und der Architekt arbeitet gerade am Baugesuch. Danach startet die Werksplanung. Daher haben wir noch Möglichkeiten für kleinere Änderungen und wollten aus diesem Grund bereits jetzt mit der Küchenplanung beginnen.

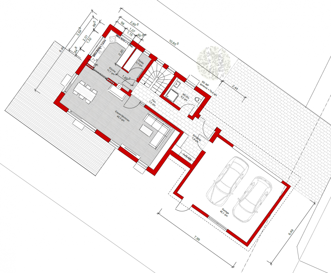
Anfangs sah die Küche sehr geräumig aus, aber leider hat das ein wenig getäuscht. Vor allem die vielen Fensterflächen nehmen die Möglichkeit weg, Hochschränke zu verbauen. Außerdem schluckt auch der große geplante Side-By-Side Kühlschrank viel Platz. Wir haben uns schon etwas überlegt und denken dass der Platz ausreichen wird, sicher sind wir allerdings noch nicht. Auch deshalb wollten wir hier nach einigen Tipps und Vorschlägen fragen. Wenn es gar nicht anders geht könnten wir z.B. auch noch ein Fenster weglassen oder zur Not auch die Speis, was wir allerdings sehr ungern machen würden. Da wird aktuell sehr wenig Licht in der Küche haben würden wir gerne auch alle Fenster behalten :-)

Aktuell haben wir die Spüle und den Herd am großen Fenster geplant. Somit hätten wir am kleinen Fenster freie Arbeitsfläche. Am linken Eck würden wir ein Karussell für Töpfe planen. Mag ich zwar auch nicht so aber beim begrenzten Platzangebot sollten wir nicht darauf verzichten. Über dem Karrussell würden die die Abtropffläche des Spülbeckens setzen und ganz im Eck soll unser Thermomix stehen. Rechts im Eck weiß ich ehrlich gesagt nicht was ich da hinmachen soll. Würde es da klappen noch einen Schrank unterzubringen auf Höhe der Arbeitsfläche? Weil die Arbeitsfläche bis zur Wand ist auch nicht sinnvoll, die werde ich nie richtig nutzen können, außer als reine Abstellfläche.

Über Anregungen und Tipps würden wir uns sehr freuen! Wenn noch fragen offen sind einfach fragen :-)

Achja gerade noch eingefallen: Unter der Küche im Keller ist ein Büro mit Lichtschacht geplant. Funktioniert das mit dem Abwasser, ohne Leitungen im Büro sichtbar zu haben?



Checkliste zur Küchenplanung

Anzahl Personen im Haushalt: 4
Davon Kinder?: 2
Art des Gebäudes?: Neu-/Umbau, Planänderungen möglich
Körpergrössen aller Hauptbenutzer (wegen Arbeitshöhe ) in cm: 165, 172
Brüstungshöhe des Fensters (in cm): 87 (großes Fenster) und 104 (kleines Fenster)
Fensterhöhe (in cm): 132 (großes Fenster) und 115 (kleines Fenster)
Raumhöhe in cm: 250
Heizung: Fussbodenheizung
Sanitäranschlüsse: vollkommen variabel
Ausführung Kühlgerät: Side by Side ca. 90cm breit
Kühlgerät Größe: bis 178 cm Höhe
Ausführung Tiefkühl (TK)-Gerät: Im Kühlschrank ab 3 Schubladen unten
Dunstabzugshaube: Umluft
Backofen etc. hochgebaut?: Wenn möglich
Hochgebauter Geschirrspüler ?: Wenn möglich
Kochfeldart: Induktion
Kochfeldbreite ca. (in cm)?: 80-90
Spülenform: 1 Becken mit Abtropffläche
Geplante Heißgeräte: Backofen
Küchenstil: Modern
Sitzmöglichkeit in der Küche / im Küchenbereich: Keine
Sitzmöglichkeit: Für wieviel Personen?: Nein
Sitzmöglichkeit: Tisch - wenn gesonderter Tisch oder offene Küche: Keiner
Gewünschte o. vorhandene Tischgröße:
Wofür soll der Sitzplatz in der Küche genutzt werden? Wie häufig?:
Welche Arbeitshöhe ist angedacht (in cm)?:
92
Was steht auf der Arbeitsplatte oder soll dort stehen?: Küchenmaschine
Welche weiteren Küchenmaschinen müssen in der Küche untergebracht werden?: Wasserkocher, Handrührgerät, Mixer, Pürierstab
Was soll in der Küche außer den Standards untergebracht werden?: Geschirr komplett (nichts in Ess-/Wohnzimmer), Sonstiges (evtl. im Beitragstext benennen)
Welchen Stauraum gibt es sonst noch?: Speisekammer, Keller
Was/wie wird gekocht? (Alltagsküche, Menüs, Snacks usw): Oft Gerichte mit weniger Aufwand. Viele Aufläufe, oft vegetarisch und nur selten Fleisch...
Oft nur 1-3 Töpfe gleichzeitig auf dem Herd, fast nie 4.

Wie häufig wird gekocht?: (fast) täglich 1x warm
Wird alleine gekocht? Oder auch gemeinsam? Mit und für Gäste?: oft alleine, manchmal zu zweit (vor allem am Wochenende) und ein paar Mal im Jahr mit Gästen (insgesamt dann 3-4) Personen
Was stört an der bisherigen Küche und was soll die neue Küche unbedingt können? Warum?: Wir sind eigentlich recht zufrieden mit der aktuelle Küche. Folgendes stört uns:
-zu wenig Licht, da nur ein Fenster an der gegenüberliegenden Seite
-Kühlschrank mit Kühlfächern (3 Stück) ist uns zu wenig
-Billig-Backofen ohne Heißluft
-Spüle aus dunklem Fragranit wird weiß vom kalkhaltigen Wasser

Welche Mülltrennung soll in der Küche vorgehalten werden?: Biomüll, Gelber Sack Müll, Restmüll
Steht schon ein Küchenhersteller fest oder wird bevorzugt?: nein, evtl. Nobilia
Steht schon ein Gerätehersteller fest oder wird bevorzugt?: evtl. die neuen günstigen Miele -Geräte für Backofen und Geschirrspüler
Preisvorstellung (Budget): bis 15.000,-
 

Anhänge

  • EG.png
    EG.png
    799,7 KB · Aufrufe: 365
  • 3D.jpg
    3D.jpg
    101,1 KB · Aufrufe: 342
  • Planung.jpg
    Planung.jpg
    111 KB · Aufrufe: 282
Hallo und :welcome:!

Da ist einiges, das du dir überlegen solltest:
  • Wirklich ein Eck-Karussell? Lies mal hier Warum tote Ecken gute Ecken sind.
  • Der Geschirrspüler ist maximal im Weg.
  • Die Hauptarbeitsfläche befindet sich zwischen Spüle und Kochfeld, das ist bei euch recht wenig, also Spüle lieber um die Ecke.
  • Der MUPL fehlt.
  • Ich würde die Fenster so planen, dass an der Wand zur Speis eine HS-Wand geplant werden kann und den SbS umbauen, denn von der Seite sind die nicht so attraktiv.
  • Schon mal über ein schmales Fensterband über Eck nachgedacht?
  • Die Brüstungshöhe des Fensters gebt ihr mit 87 an und die Arbeitshöhe mit 92. Wie geht das? Ihr solltet die Brüstungshöhe eurer gewünschten Arbeitshöhe anpassen.
Liebe Grüße
Anke
 
Hallo Anke, vielen Dank für deine Rückmeldung. Hier meine Antworten zu deinen Fragen bzw. Anregungen.

Wir haben ihn derzeit auch unter der Hauptarbeitsfläche. Wenn eine Person dort arbeitet und die andere an den Geschirsspüler möchte, ist das suboptimal aber uns stört das nicht so sehr.

Die Hauptarbeitsfläche befindet sich zwischen Spüle und Kochfeld, das ist bei euch recht wenig, also Spüle lieber um die Ecke.
Guter Vorschlag, das werden wir uns mal genauer überlegen.

Der sollte unter der Spüle sein, wenn auch nicht eingezeichnet.

Ich würde die Fenster so planen, dass an der Wand zur Speis eine HS-Wand geplant werden kann und den SbS umbauen, denn von der Seite sind die nicht so attraktiv.
Wobei der andere Mögliche Standort dann links an der Wand wäre. Das nimmt dann aber wieder Arbeitsflächenplatz weg und wir müssten ein Fenster streichen. Das würden wir nur machen wenn es gar nicht anders geht.

Schon mal über ein schmales Fensterband über Eck nachgedacht?
Ja aber direkt beim Architekten rausgeworfen, da uns das nicht gefällt ;-)

Die Brüstungshöhe des Fensters gebt ihr mit 87 an und die Arbeitshöhe mit 92. Wie geht das? Ihr solltet die Brüstungshöhe eurer gewünschten Arbeitshöhe anpassen.
Die Frage haben wir uns auch gestellt. Allerdings meinte sowohl der Architekt als auch der Küchenplaner, bei dem wir bereits waren, dass es klappen wird. Zur Brüstungshöhe kommen noch 2 cm Fensterbank, die dann ja wegfällt und die restlichen 3 cm sollte der Fensterrahmen hergeben. Wir könnten auch 91 cm Arbeitshöhe machen, das wäre nicht so schlimm. Ja alternativ ansonsten die Brüstungshöhe hochsetzen. Wobei wir diese dann aber vermutlich direkt wie beim anderen Fenster nehmen würden.

Viele Grüße
Tobias
 
Hallo,

das mit dem Geschirrspüler ist kein Problem, dass er unter der Arbeitsplatte ist, sondern des Standortes. Wenn man in der Küche arbeitet steht der GSP auch gerne mal offen und man räumt schon ein. Wenn aber nun genau dort ist, wo die Hauptarbeitsfläche ist, also zwischen Spüle und Kochfeld, dann ist er schlicht im Weg. Deshalb plant man einen GSP gerne an den Rand.

Der Vorteil eines MUPL ist, dass er direkt unter der Arbeitsfläche ist, also unter der Spüle ist unten. Man plant einen Unterschrank mit zwei Auszügen und in den oberen kommen die Abfalleimer. Dann kann man einfach aufziehen und den Müll direkt von der Arbeitsfläche treffsicher in den MUPL wischen.

Ihr müsstet das Fenster nicht komplett streichen, sondern nur ein Stück nach links schieben. Ihr habt da jetzt 60cm, das geht mit Unterschränken, aber nicht mit Hochschränken, deshalb einfach ein Stück rüber.

Gut, wenn es klappt, dass das Fenster noch auf geht, dann könnt ihr die Arbeitsplatte flächenbündig ins Fenster laufen lassen.

LG Anke
 
Und noch etwas zum sonstigen Grundriss:

Das Gäste-WC ist sehr großzügig dimensioniert mit Dusche, was ich sehr gut finde. Ich würde aber die Tür mittig setzen, dann kann auf die rechte Seite eine große Dusche (anstatt Standard) und auf die andere Toilette und Waschbecken.
 
bitte zittiere nicht, wenn nicht erforderlich, wir verstehen, wen und was du meinst/

warum sind die BRHs unterschiedlich?

Bei einer AP Höhe von 92cm bietet sich ein Hersteller mit einem Korpus von 78 -80cm an. Wie dick soll die AP werden und welches Material?

Es sieht immer gut aus und ist praktisch, wenn die AP in die Fensterbrüstung reinläuft.

Da der Raum nicht übermässig gross ist, wird es nichts mit einem hochgebauten GSP.

Was meinst du mit den "neuen, günstigen Geräte" von Miele ?
 
Hallo Anke,
ok das mit dem Geschirrspüler verstehe ich, wobei das auf uns nicht zutrifft ;-)

Beim Fenster meinst du nach rechts schieben? Nach links gibt doch keinen Sinn!? Es wurde so geplant, da im OG das Kinderzimmer ist und dort dasselbe Fenster drinnen ist. Wenn ich es verschiebe muss ich es oben auch verschieben, wobei dann aber die Außenansicht nicht mehr gleichmäßig ist. Mal schauen.



Hallo Evelin,
sorry. Bin das nur aus anderen Foren gewöhnt und dachte, dass es der Übersichtlichkeit hilft. Ich lasse es in Zukunft sein.

Wegen der Arbeitsplatte müssen wir erst schauen. Wir liebäugeln mit Granit, wobei das aber auf den Mehrpreis draufankommt. Ansonsten die ganz normale Standard-Arbeitsplatte (wie auch immer das Material heißt). Haben wir aktuell auch und ist ca. 37 mm hoch.

Ja genauso haben wir uns das vorgestellt. Und mit festverglastem Unterteil besteht dann auch kein Problem, dass das Fenster nicht mehr aufgeht ;-)

Das mit dem GSP haben wir uns schon gedacht, wäre nur ein nice-to-have.

Den H 2266 B Active Backofen für 599 Euro UVP und den neuen Geschirrspüler . Die genaue Bezeichnung habe ich leider nicht, aber der soll so um die 700 Euro kosten. Für z.B. jeweils 200 Euro Ersparnis muss ich jetzt nicht unbedingt zu Geräten von Neff wechseln...
 
du hast viel Fensterfläche in der Küche, was ansich schön ist. Wie stellst du dir die DAH vor?
 
es wäre hilfreich, wenn solche Infos wie Muldenlüftung in der Checkliste erscheinen und wir müssen es nicht esrt erfragen. Und genau wegen der Muldenlüftung hatte ich vorher nach den "günstigen Mielegeräten" gefragt, aber da kam nichts bez Muldenlüftung. Bei vielen läuft eben "unter günstig" das Miele KMDA 7774 im Vergleich zu anderen Anbietern.

Aus diesem Grund würde ich dann die Kochseite übertief machen, bei manchen Muldenlüftungen braucht man hinten etwas mehr Platz bzw, man hat die Option, das Gedöns im US nach hinten zu legen, damit man vorne zwei normal tiefe Auszüge hat.

ABER, deine ursprügliche Idee mit dem U ist nicht machbar.

jaeger1.JPG jaeger11.JPG jaeger2.JPG Jaeger3.JPG

wie du siehst, ist es viel zu eng um die Spüle herum.
 

Anhänge

  • jaeger-evelin-PLAN1.KPL
    3,9 KB · Aufrufe: 157
ein 2-Zeiler ist machbar, man kann dann auch den GSP hochstellen.

jaeger21.JPG jaeger22.JPG jaeger23.JPG
 

Anhänge

  • jaeger-evelin-PLAN2.KPL
    3,9 KB · Aufrufe: 173
  • jaeger-evelin-PLAN2.POS
    9 KB · Aufrufe: 162
Hallo Evelin,

herzlichen Dank für deine Mühe! Ja das mit der Muldenlüftung hätte ich schon erwähnt, aber es gibt dort keine entsprechende Checkbox und auch im Drop-Down-Menü wird keine Muldenlüftung erwähnt. Wäre daher also ein Verbesserungsvorschlag für die Checkliste beim Erstellen eines Threads.

Ja das Miele KMDA 7774 wäre auch noch eine Alternative, wobei wir aber gerade mit dem Gaggenau liebäugeln.

Der zweite Entwurf trifft nicht unseren Geschmack und außerdem geht dort einiges an Arbeitsfläche verloren. Den ersten Entwurf finden wir gar nicht schlecht. Warum sollte der nicht klappen? Wie gesagt ist bei uns der Geschirrspüler immer zu und daher sollte dort kein Platzproblem sein. Zwischen Spüle und Herd ist gut Arbeitsfläche und ansonsten ähnelt der Vorschlag unseren Überlegungen.
 
Evelin hat die klassische Situation dargestellt, die beim Einräumen des schmutzigen Geschirr in den GSP entsteht: Man steht vor der Spüle, entleert dort Flüssigkeiten, dreht sich zu einer Seite, streift die Speisereste in den Biomüll (MUPL ), dreht sich zur anderen Seite und räumt die Sachen in den GSP. In Eurem U muss man alles immer auf und zu machen, ansonsten muss man hinter der offenen GSP-Klappe stehen. Die zusätzliche Arbeitsfläche, die durch den U entsteht, ist schlecht nutzbar und es gibt weniger Raum zum stehen. Die Ecken sind i.d.R. Stauraumverschwendung.
 
Manchmal hilft es auch, eigene Gewohnheiten zu überdenken. Wir haben selbst die Erfahrung gemacht, dass das Ändern von eingefahrenen Abläufen eine Verbesserung der Ergonomie bringt. Nur mal so als Anregung ;-).
 
Danke Isabelle für die Ausführung. Dieser Ablauf klingt zwar gut, haben wir allerdings noch nie so in dieser Reihenfolge durchgeführt ;-) Wenn das der einzige Kritikpunkt am U ist könnten wir damit sehr gut leben :-)
Der 2-Zeiler ist optisch einfach nichts für uns und außerdem stört uns das Spülbecken im Eck. Im U wäre es direkt vor dem Fenster.

Wir werden aber nochmal drüber schlafen und ggf. doch ein Fenster oder die Speis opfern und schauen, ob uns das was bringt.
 
Ja klar, ich gehe auch davon aus, dass Ihr kein MUPL habt. Sag nicht sofort nein, sondern überlege es Dir und beobachte, was für Aktivitäten bei Euch wie stattfinden und wie oft Ihr sagt: "Kannst Du bitte zur Seite gehen", "kannst Du bitte Platz machen" usw.
 
tja, ein U wäre die denkbar schlechteste Wahl für die eher kleine Küche.

Lese die Kommentare der Küchenbesitzer bei den fertigen Küchen, MUPL ist für alle, die ihn haben, das Beste, was ihnen empfolen wurde. Die Männer gucken meist nur auf "clean lines", die Muldenlüftung oder DAH. Keines der Genannten bietet den Mehrgewinn eines MUPL. Dieser Auszug wird x mal pro Tag gezogen, von allen Familienmitgliedern. Das Kochfeld ist, wenn überhaupt, nur 1 x pro Tag im Betrieb.
 

Ähnliche Beiträge

Neff Hausgeräte Ballerina Küchen Blum Bewegungstechnologie Weibel - Intelligente Küchenlüftung

Neff Spezial

Blum Zonenplaner

Weibel Abluft-Tuning

Weibel Abluft-Tuning
Zurück
Oben