Küchenplanung für Neubau, Fronten in Glas, weiß, Grifflos

AW: Küchenplanung für Neubau, Fronten in Glas, weiß, Grifflos

Nur ganz kurz bevor ich zur Arbeit fahre:
Alle Hochschränke an die planrechte Wand und das auch richtig hoch. Dort die Heißgeräte und Kühlschrank rein. Evtl auch GSP hochgebaut. Planoben kochen und spülen und unten eine schön große Arbeitshalbinsel.

Ob das so funktioniert weiß ich nicht. Hab meinen "Hallo-Wach-Kaffee" noch nicht ausgetrunken.
ess33.gif


LG
Sabine
 
AW: Küchenplanung für Neubau, Fronten in Glas, weiß, Grifflos

Hallo,

Ja, das ist auch eine schöne Möglichkeit, dann sehen ganz hohe Schränke auch gut aus. und das Stück Wand hat hier einen wirklichen Nutzen. (Und dazu meinen Lieblingsschrank für eine vollständige Wandfront: Der Ullaschrank )
dance3.gif


Liebe Grüße Magnolia
 
AW: Küchenplanung für Neubau, Fronten in Glas, weiß, Grifflos

Hallo,

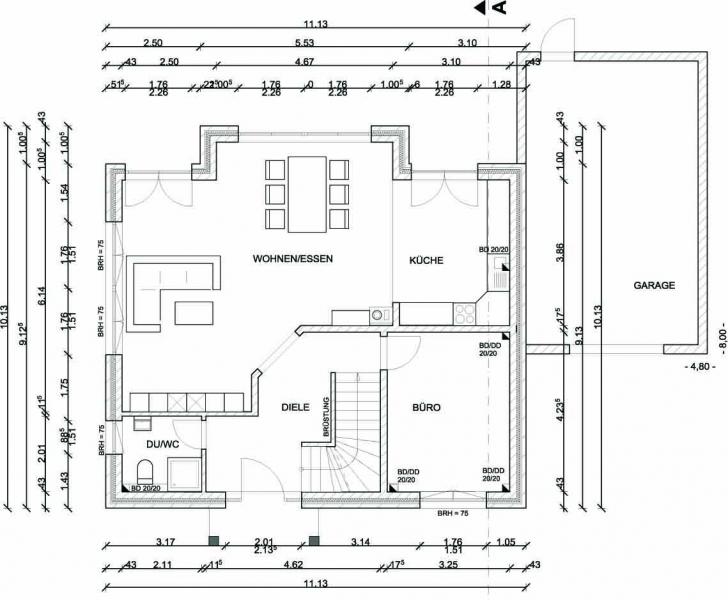
die Wand ist ein kleiner Platzhalter. Neben/Anstatt der Wand zum Wohnzimmer hin kommt dann noch ein Versorgungsschacht und daneben dann der Kaminzug. (Der Grundriss ist an dieser Stelle nicht mehr ganz aktuell, der Kamin wurde versetzt).

Die Arbeitsplattenhöhe werden wir anhand der drei Verfahren mal errechnen.

Weitere Elektrogeräte. Da gibt es so einiges, allerdings wird keines der Geräte eingebaut. Wie haben noch
- Mikrowelle
- Entsafter
- Kaffeeautomat
- Toaster
- Küchenmaschine

Und das alles sollte noch auf die Arbeitsplatte .

Viele Grüße

skrolle
 
AW: Küchenplanung für Neubau, Fronten in Glas, weiß, Grifflos

Hallo Skrolle,

die Mirkowelle kann man doch in einen Schrank mit Lifttüre stellen.
Seit Ihr das gewohnt, dass soviel auf der APL steht? Finde ich optisch nicht so schön (ok, ok, ich "verstecke" sowieso gerne alle elekt. Geräte in der Küche wie Toaster, etc. selbst TV, Stereoanlagen,.....)

Die Küche ist ja offen zum Esszimmer.

Aber die Idee mit Hochschränke an die rechte Wand wäre sicherlich eine sehr gute Möglichkeit. Da bietet sich diese Wand / Versorgungsschacht doch direkt an. Versuche das mal im Alno -Planer, stelle mir das schon gut vor.

Liebe Grüße Magnolia
 
AW: Küchenplanung für Neubau, Fronten in Glas, weiß, Grifflos

Also die Mikrowelle würde ich ja auf jeden Fall von der Arbeitsfläche verbannen.

Wie weit kann denn dieser Schacht mit Kamin verschoben werden? In welchem Bereich ist das möglich? Und, wenn dann dort ein Kamin kommt, wie weit wird es da Probleme mit den Unterschränken der Halbinsel geben?

Ich habe den Plan nochmal korrigiert. Es waren ein bisschen falsche Wandlängen enthalten.

EDIT:
Ja, Sabine, Hochschränke an die rechte Wand ... so sehe ich es auch ;-)
 

Anhänge

  • kf_skrolle_20110630_leer_Grundriss.jpg
    kf_skrolle_20110630_leer_Grundriss.jpg
    11,1 KB · Aufrufe: 145
  • kf_skrolle_20110630_leer.POS
    7,6 KB · Aufrufe: 150
  • kf_skrolle_20110630_leer.KPL
    4,1 KB · Aufrufe: 142
AW: Küchenplanung für Neubau, Fronten in Glas, weiß, Grifflos

Hallo,

ja, das hatten wir anfangs auch überlegt gehabt und dann die hohen Schränke richtig als Schrankwand zu zumachen. Ich meine mich aber erinnern zu können, dass wir das dann nicht gemacht haben, da wir zu wenig Arbeitsfläche gehabt hätten. Einen Ullaschrank hatten wir da jedoch nicht eingeplant.

Mikrowelle in einem Schrank finde ich super. Jedoch hatten wir in unserer bisherigen Kalkulation nicht die Möglichkeit, es sei denn man versichtet auf den Schrank mit den innenliegenden Schubladen.

@Wand und Kamin
diese kann man um ca. 60 cm noch verschieben.

Anbei mal der aktuelle Grundriss.

Viele Grüße

skrolle
 

Anhänge

  • Grundriss_neu.jpg
    Grundriss_neu.jpg
    55,6 KB · Aufrufe: 175
AW: Küchenplanung für Neubau, Fronten in Glas, weiß, Grifflos

Hallo Skrolle,

also hohe Schränke (auch mehr Stauraum) rechts, dann wäre doch eigentlich genauso viel APL vorhanden. Bei der jetzigen Planung hättest Du nur tatsächlich noch zusätzlich die Ecken, das ist schon richtig. Dafür wären die Hochschränke schön "eingebaut" und stören auch in der vollen Höhe nicht, sondern sehen richtig gut aus. Mikrowelle und ggf. Entsafter dann in Ullaschrank schieben, dann steht nicht soviel rum und es ist tatsächlich mehr richtige Arbeitsfläche vorhanden. Wenn ich Dich wäre, würde ich das auf alle Fälle nochmal probieren.

Liebe Grüße Magnolia

PS: Gut, dass ihr den Kamin verlegt habt, habe ich mir schon bei der ersten Post gedacht, der stört ja nur im WZ, es sei denn man will mal einen Kaminofen.
 
Zuletzt bearbeitet:
AW: Küchenplanung für Neubau, Fronten in Glas, weiß, Grifflos

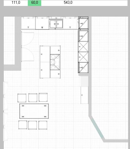
So, jetzt ganz viel Arbeitsfläche, die an der Spülenseite in hoher Höhe sein könnte und an der Insel etwas weniger hoch.

Die Spülenzeile in Übertiefe mit 75 cm. Da können dann in hinterer Linie auch mal ein oder zwei Gerät griffbereit stehen und man hat immer noch Platz.

Kaffeemaschine bzw. automat würde ich wohl ganz links stellen. Ist dann ohne den Koch zu stören auch mal schnell so vom Esstisch zu erreichen.

Küchenmaschine zum direkten Herausziehen unten im Ulla-Schrank. Rest entsprechend entweder in Auszügen unter der Spülenarbeitsfläche, dann braucht man so ein Gerät nur rauszuheben und es ist einsatzbereit. Hier sollte man eine explizite Stauraumplanung machen.

Die Hochschränke von links nach rechts:
- hochgebaute GSP mit Klappfach für Mikrowelle (einf. Standgerät) obendrüber
- Backofenhochschrank mit Stauraum untendrunter und obendrüber
- Kühlschrankhochschrank für 122 cm hohen Kühlschrank über einem 3rasterigem Auszug (z. B. für Getränkevorräte, die dann auch mal schnell eine Etage höher kalt gestellt werden können),
- Vorrats-Hochschrank mit Innenauszügen.

Die Insel auf Kochseite 45-90-45, damit Platz für Öle, Gewürze etc. und auf der Rückseite 2x90er Auszugsunterschränke.

Hier kann und wird die Rückseite der Insel problemlos auch mal zum Arbeiten benutzt, weil sie mehr in die Küche integriert ist, schnell die Spüle erreicht werden kann usw.

EDIT:
Als DAH z. B. die
Capa von Gutmann
 

Anhänge

  • kf_skrolle_20110630_kb_var1.KPL
    4,1 KB · Aufrufe: 153
  • kf_skrolle_20110630_kb_var1.POS
    13,8 KB · Aufrufe: 154
  • kf_skrolle_20110630_kb_var1_Ansicht1.jpg
    kf_skrolle_20110630_kb_var1_Ansicht1.jpg
    20,6 KB · Aufrufe: 154
  • kf_skrolle_20110630_kb_var1_Ansicht2.jpg
    kf_skrolle_20110630_kb_var1_Ansicht2.jpg
    17,1 KB · Aufrufe: 156
  • kf_skrolle_20110630_kb_var1_Ansicht3.jpg
    kf_skrolle_20110630_kb_var1_Ansicht3.jpg
    19,8 KB · Aufrufe: 158
  • kf_skrolle_20110630_kb_var1_Ansicht4.jpg
    kf_skrolle_20110630_kb_var1_Ansicht4.jpg
    21,1 KB · Aufrufe: 146
  • kf_skrolle_20110630_kb_var1_Ansicht5.jpg
    kf_skrolle_20110630_kb_var1_Ansicht5.jpg
    31,8 KB · Aufrufe: 168
  • kf_skrolle_20110630_kb_var1_Grundriss.jpg
    kf_skrolle_20110630_kb_var1_Grundriss.jpg
    22,1 KB · Aufrufe: 275
AW: Küchenplanung für Neubau, Fronten in Glas, weiß, Grifflos

Hallo,

auch eine sehr schöne Idee
top.gif


Eine Halbsinsel mit 2 Ullaschränken würde hier aber auch sehr gut passen, wenn Skrolle die Räume etwas mehr abgegrenzt haben wollte.

Liebe Grüße Magnolia
 
AW: Küchenplanung für Neubau, Fronten in Glas, weiß, Grifflos

Da würde dann aber die GSP wieder in die Spülenzeile wandern müssen, der Kühlschrank wäre weniger günstig vom Esstisch aus zu erreichen und die Vorteile der Nutzung der Inselrückseite von der kleineren Person für Schnippelarbeiten und trotzdem Spüle/Müll in Nähe wären auch nicht gegeben.

Ich habe mal den 60 cm breiten Ullaschrank links auch noch mit einer Trockenbaublende versehen. Das ist auch gut fürs Erreichen der Inhalte und man kann in dieser Tiefe dann die Lampen setzen.
 

Anhänge

  • kf_skrolle_20110630_kb_var1b_Ansicht1.jpg
    kf_skrolle_20110630_kb_var1b_Ansicht1.jpg
    16,4 KB · Aufrufe: 140
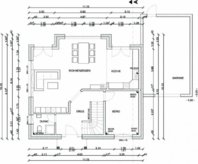
AW: Küchenplanung für Neubau, Fronten in Glas, weiß, Grifflos

Hallo Kerstin,

interessante Planung. Aber die Abstände von der Insel zum Hochschrank und von der Insel zum Fenster wäre nur ca. 1 Meter. Das finde ich doch etwas eng.

So könnte ich mir es noch vorstellen.

An der Wand mit Hochschränken
- Ullaschrank
- Kühlschrank
- Schrank mit Auszügen / Apothekerschrank
- Backofen

siehe Bilder

Gruß

skrolle
 

Anhänge

  • Planung_neu.jpg
    Planung_neu.jpg
    24 KB · Aufrufe: 317
  • Planung_neu2.jpg
    Planung_neu2.jpg
    32,9 KB · Aufrufe: 173
  • kf_skrolle_20110630_kb_var1_neu.POS
    13,5 KB · Aufrufe: 137
  • kf_skrolle_20110630_kb_var1_neu.KPL
    4,1 KB · Aufrufe: 143
AW: Küchenplanung für Neubau, Fronten in Glas, weiß, Grifflos

Hallo Skrolle

ich weiss ja nicht wie eure Aussenmasse sind :-[ - Mein Mann und vorallem ich sind *hüstel* Raumfüllend. Mit 100cm Abstand kommt man durchaus klar - Ulla hat um die 90cm. Als Ideal gelten 120cm, wenn auf beiden Seiten Auszüge sind und man zu mehreren Arbeiten möchte.

Die Terassentüre würde ich ja durch eine Schiebetür ersetzen - die in den Raum stehenden Türen halte ich für sehr störend.

Meines Erachtens solltest Du mit den Küchenmöbeln auch nicht so nah an den Kamin ran - das halte ich für "ungesund" für die Küchenmöbel.

Hier wie bei mir der Schrank unter der Spüle genutzt wird. Biomüll unter der APL--
 
AW: Küchenplanung für Neubau, Fronten in Glas, weiß, Grifflos

Mir gefällt es nicht ;-), schon deshalb weil mir der Abstand der beiden Zeilen zu groß wäre. Wie sieht es mit unterschiedlich hohen Arbeitsbereichen aus? (OK, ihr solltet erst mal eure individuellen Arbeitshöhen ermitteln).

Die GSP so nicht hochgebaut werden kann.

Die Mikrowelle dann über den Backofen in ein Klappfach wandern sollte. Was wiederum zur Folge hat, dass der Backofen etwas weiter runter muss, damit die Mikrowelle noch bequem bedienbar bleibt.

Weil nur ein 30er Vorratsschrank dabei rausspringt.

Weil die Rückseite der tiefen Halbinsel im Grunde nicht gut in die Küchenarbeit eingebunden ist.

Weil ich eigentlich die Position am Kochfeld mit Blick zur Fensterfront in der Inselversion schöner finde.

Was ist, wenn doch mal ein Kaminofen installiert wird? Hitzeabstrahlung auf die Rückseite der Halbinsel.
 
AW: Küchenplanung für Neubau, Fronten in Glas, weiß, Grifflos

Hallo,

@ Vanessa: Terassenschiebetüren haben aber auch Nachteile.
Die, die ich kenne werden praktisch über die andere Fensterflläche geschoben.
Sie sind sehr schwerfällig und man kann vorallem nur eine Seite öffnen. Es ist auch schön, wenn man 2 Flügel aufmachen kann, besonders wenn keinen Steg in der Mitte vorhanden ist.

Gibt es da inzwischen andere Techniken für diese Terassenschiebetüren?

Für die Insel müssten es aber tatsächlich Schiebetüren sein. Ich habe gerne ein Fenster beim Kochen offen, schon mal im Frühjahr und Herbst wegen der Wärme beim Kochen.

Liebe Grüße Magnolia
 
AW: Küchenplanung für Neubau, Fronten in Glas, weiß, Grifflos

Hallo,

das Theme Schiebetür oder normale Terassentür ist durch. Hier kommt eine normale Terassentür hin, bei der man beide Türen öffnen kann ohne einen Steg in der Mitte.

1 Meter als Durchgang ist mir zu wenig. Wir haben viel Platz, wir sollten diesen sinnvoll nutzen.
Der Abstand zwischen den Zeilen finde ich auch hier mit ca. 1,6 Metern sehr gut.

Aber ja, die Arbeitsplatte ist bei der Insel nicht schön mit dem Hochschrank verbunden...dann lieber doch unsere erste Planung?!

Viele Grüße

skrolle
 
AW: Küchenplanung für Neubau, Fronten in Glas, weiß, Grifflos

Wird alleine gekocht? Oder auch gemeinsam? Mit und für Gäste? : ab und an mal mit Freunden, sonst meist 1 oder 2 Personen

Erstplanung:

52978d1309410069-kuechenplanung-fuer-neubau-fronten-in-glas-weiss-grifflos-bild4.jpg

Vorbereiten und Schnippeln eigentlich nur an der Arbeitsfläche rechts, Fenster im Rücken.
Wenn sich sehr unterschiedliche Arbeitshöhenerfordernisse ergeben, könnte man die angesetzte Kochhalbinsel in niedrigerer Arbeitshöhe ausführen. Ist dann aber kein toller Schnippelplatz für die kleinere Person, weil man eigentlich an der Rückseite stehen muss. und man sieht den Höhenunterschied durch den Absatz.
__________________________
Meine Planung:
52985d1309415076-kuechenplanung-fuer-neubau-fronten-in-glas-weiss-grifflos-kf_skrolle_20110630_kb_var1_grundriss.jpg

Rundum die Insel sind jeweils 100 cm Abstand möglich.
Vorbereitung links der Spüle, Rückseite Insel, notfalls sogar rechts der Spüle ... für alle 3 Plätze kürzester Weg zur Spüle. Lichteinfall vom Fenster möglich.

Wenn sich sehr unterschiedliche Arbeitshöhenerfordernisse ergeben, kann man die Kochinsel in niedrigerer Arbeitshöhe ausführen. Ist dann von der Rückseite der Schnippelplatz für die kleinere Person, Weg zum Wasser recht kur.
__________________________
Zweite Planung Skrolle:
52994d1309416463-kuechenplanung-fuer-neubau-fronten-in-glas-weiss-grifflos-planung_neu.jpg

Vorbereitung und Schnippeln links und notfalls rechts der Spüle.
Wenn sich sehr unterschiedliche Arbeitshöhenerfordernisse ergeben, könnte man die angesetzte Kochhalbinsel in niedrigerer Arbeitshöhe ausführen. Ist dann aber kein toller Schnippelplatz für die kleinere Person, weil man eigentlich an der Rückseite stehen muss. Zusätzlich hier ein 30er relativ ineffektiver Hochschrank
__________________________
Terrassentüren, bei nur 176 cm Breite halte ich 2 Flügeltüren auch für die beste Lösung, als Schiebetüren wird der Ausgang einfach zu schmal. Und Platz genug wäre ja da.
 
Zuletzt bearbeitet von einem Moderator:
AW: Küchenplanung für Neubau, Fronten in Glas, weiß, Grifflos

Ergänzend .. ich finde die Halbinsel ja auch irgendwie blockierend. Die Insel vermittelt mehr freien Raum.
kf_skrolle_20110630_kb_var1_Ansicht1.jpg
 
AW: Küchenplanung für Neubau, Fronten in Glas, weiß, Grifflos

Hallo Skrolle,

wie lang ist diese Wand bis zur Kaminwand genau?

Die erste Planung hat mir persönlich auch gut gefallen. Hier würde ich aber die Spüle evtl. an die rechte Wand setzen.
Klar, lieber mit toten Ecken und dem Müll unter APL

Liebe Grüße Magnolia
 
AW: Küchenplanung für Neubau, Fronten in Glas, weiß, Grifflos

Die Wand kann im Bereich bis ca. 360 cm sitzen. So habe ich skrolle verstanden.
 
AW: Küchenplanung für Neubau, Fronten in Glas, weiß, Grifflos

Hallo,

wegen der Abwärme vom Kaminschacht.
Wie warm wird das denn bei Euch wirklich. Bei mir wird der Kaminschacht im oberen Stockwerk sehr,sehr warm. Ich denke aber das kommt von meinem Schwedenofen, der im Winter immer brennt und weil der Kaminschacht an der gefliesten Badwand entlang geht und die Fliesen halt sehr gut die Wärme leiten.

Meint ihr wirklich, dass die Abwärme groß genug ist, die Möbel zu schädigen?

Liebe Grüße Magnolia
 

Ähnliche Beiträge

Neff Hausgeräte Ballerina Küchen Blum Bewegungstechnologie Weibel - Intelligente Küchenlüftung

Neff Spezial

Blum Zonenplaner

Weibel Abluft-Tuning

Weibel Abluft-Tuning
Zurück
Oben