Unbeendet Küche

Hallo
bei uns soll jetzt endlich eine neue Küche entstehen.
Auf- und Zusammenbau wollen wir selber übernehmen.
Ikea gefällt mir ganz gut und liegt preislich nicht höher, als die Anderen.

Habe jetzt mit dem Planer seit Stunden hin und her geplant und kriege einfach keine Lösung die mir so richtig gefällt.
Habe tausende Seite hier an Threads für Ideen durchsucht, aber keiner hat so niedrige Fenster oder so eine Raumaufteilung.
Bitte euch um Hilfe, evtl. wisst ihr ja was.


Bis jetzt ist die Küche im unteren der Räume.
Die Überlegungen sind jetzt evtl. die Küche im oberen Raum zu realisieren.
Möglich wäre auch Küche unten, Wohn-Esszimmer oben.

Wichtig für die Planung:
  • Gas-Kochfeld 90cm mit Gasflasche (11kg 30cm x 32cm) in einen Unterschrank neben dem Kochfeld
  • Backofen vorhanden (normales 60er Einbaugerät)
  • Kühlschrankmaße HBT 1756mm894mm723mm
  • Geschirrspüler brauch nur eine Frontplatte die zur neuen Küche passt
  • Die dunklen Sessel und Sofas sind nicht mehr im Wohnzimmer (nur das ganz große Sofa)

Ich poste morgen noch Fotos vom aktuellen Zustand

Meine Planungen sind als PDF im Anhang.
Gruß Jerome

Checkliste zur Küchenplanung

Anzahl Personen im Haushalt: 4
Davon Kinder?:
Art des Gebäudes?: Bestandsbau, (kleinere) Umbauten möglich
Körpergrössen aller Hauptbenutzer (wegen Arbeitshöhe ) in cm: Zwischen 175 und 180
Brüstungshöhe des Fensters (in cm):
Fensterhöhe (in cm):
Raumhöhe in cm:
Heizung: Heizkörper wie im Grundriss
Sanitäranschlüsse: variabel an aktueller Wand
Ausführung Kühlgerät: Side by Side ca. 90cm breit
Kühlgerät Größe: noch unbekannt
Ausführung Tiefkühl (TK)-Gerät: Nicht erforderlich bzw. steht woanders
Dunstabzugshaube: Umluft
Backofen etc. hochgebaut?: Wenn möglich
Hochgebauter Geschirrspüler ?: Wenn möglich
Kochfeldart: Gas
Kochfeldbreite ca. (in cm)?: 90
Spülenform: Noch nicht festgelegt
Geplante Heißgeräte: Standmikrowelle, Backofen
Küchenstil: Modern
Sitzmöglichkeit in der Küche / im Küchenbereich: Gesonderter Tisch
Sitzmöglichkeit: Für wieviel Personen?: für 6 Personen
Sitzmöglichkeit: Tisch - wenn gesonderter Tisch oder offene Küche: Wird nach Bedarf neu gekauft
Gewünschte o. vorhandene Tischgröße:
Wofür soll der Sitzplatz in der Küche genutzt werden? Wie häufig?: Essen, Sitzen, Lesen, Laptop, Essen & Trinken mit Gästen
Welche Arbeitshöhe ist angedacht (in cm)?:
Was steht auf der Arbeitsplatte oder soll dort stehen?: Kaffeemaschine, Küchenmaschine, Toaster
Welche weiteren Küchenmaschinen müssen in der Küche untergebracht werden?:
Was soll in der Küche außer den Standards untergebracht werden?: ALLE Vorräte, Getränkekisten, Geschirr komplett (nichts in Ess-/Wohnzimmer)
Welchen Stauraum gibt es sonst noch?:
Was/wie wird gekocht? (Alltagsküche, Menüs, Snacks usw): Alltagsküche
Wie häufig wird gekocht?: (fast) täglich 2x warm
Wird alleine gekocht? Oder auch gemeinsam? Mit und für Gäste?: 1 bis 2 Personen
Was stört an der bisherigen Küche und was soll die neue Küche unbedingt können? Warum?:
Welche Mülltrennung soll in der Küche vorgehalten werden?: Altpapier, Bio/Restmüll ungetrennt, Gelber Sack Müll
Steht schon ein Küchenhersteller fest oder wird bevorzugt?: Ikea
Steht schon ein Gerätehersteller fest oder wird bevorzugt?:
Preisvorstellung (Budget): bis 5.000,-
 

Anhänge

  • kueche2-SICHT1.pdf
    139,2 KB · Aufrufe: 149
  • kueche2-SICHT2.pdf
    157,7 KB · Aufrufe: 176
  • wohnküche1.pdf
    111,1 KB · Aufrufe: 163
  • Sammelmappe1.jpg
    Sammelmappe1.jpg
    73,3 KB · Aufrufe: 168
  • IMG_0860.JPG
    IMG_0860.JPG
    42 KB · Aufrufe: 171
  • IMG_0861.JPG
    IMG_0861.JPG
    41,6 KB · Aufrufe: 166
  • IMG_0862.JPG
    IMG_0862.JPG
    45 KB · Aufrufe: 178
:welcome:

Schöne Threaderöffnung :-)

Ja, ich würde auch Küche / Essen im Raum Planoben realisieren und Wohnen getrennt Planunten - dann hat man einen ruhigen Rückzugsraum in idealer Grösse für ein WoZi. Als Wohnen/Essen wäre der obere Raum knapp, während Planunten für eine Essküche zu knapp ist, für eine reinen Küche aber sehr üppig.
 
hier esrt mal die Bilder deiner pdfs

mailemaus0.JPG Mailmemaus00.JPG Mailmemaus000.JPG

Die HS auf der einen Seite und Wasser/Kochen auf der anderen Seite stelle ich mir auf die Dauer anstrengend vor. Viel Lauferei und keine Ablagefläche beim BO bzw SBS.

Die Fensterwand besteht aus 2 x Türen und 1 x Fenster in der Mitte? Das Fenster hat welche Brüstungshöhe ?
 
Hallo
vielen Dank für die Antwort.

Die Fensterwand hat 3x Fenster mit einer Höhe von 2,70m. Brüstungshöhe ca. 70cm.
In der Grafik in dunkelgrau die Nischen.
Auf der anderen Seite sind die 2 Türen (1x zum Treppenflur und 1x zum anderem Zimmer.)

Überlege jetzt doch in den kleineren Raum. Ist echt verzwickt. Meint ihr im Küchenstudio werde ich da besser beraten? Ich hab irgendwie das Gefhl ich komme nicht mehr weiter.
 
du hast keine Angaben zur Raumhöhe gemacht. Die Fenster sind 2.70m hoch mit BRH 70cm?

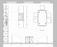
hier ein Beispiel, wie man es machen könnte. Den SBS würde ich alleine stellen, alles andere sieht an der Stelle unausgewogen aus.

mailemaus1.JPG mailemaus2.JPG
 

Anhänge

  • Mailmemaus_Evelin_PLAN1.KPL
    3,9 KB · Aufrufe: 120
  • Mailmemaus_Evelin_PLAN1.POS
    8,3 KB · Aufrufe: 120
Nachdem es um diese Küche schon mal im Februar 2014 ging, habe ich die beiden Threads zusammengeführt. Da gibt es jetzt im Eingangspost auch Angaben zu Raumhöhen etc.
Im Eingangsbeitrag habe ich auch die Infos aus dem August 2015 ergänzt.
 

Ähnliche Beiträge

Neff Hausgeräte Ballerina Küchen Blum Bewegungstechnologie Weibel - Intelligente Küchenlüftung

Neff Spezial

Blum Zonenplaner

Weibel Abluft-Tuning

Weibel Abluft-Tuning
Zurück
Oben