Küche in Neubau

Waldzwerg

Mitglied
Beiträge
7
Hallo miteinander

Wir sind gerade mitten im Bau unserer DHH. Nach vielen Gedanken und Planungen möchten wir unsere Küche hier zur Diskussion stellen um weitere Optimierungen herauszuholen.

Aktuell geht es mir mehr um die Raumplanung, also das Möbelschubsen, um die genauen Positionen von Abluft, Sanitär und Elektro während des noch kommenden Innenausbaus festzulegen.

Vielen Dank für Eure Hilfe und Anregungen.

Checkliste zur Küchenplanung

Anzahl Personen im Haushalt: 2
Davon Kinder?:
Art des Gebäudes?:
Neu-/Umbau, Planänderungen möglich
Körpergrössen aller Hauptbenutzer (wegen Arbeitshöhe ) in cm: 164cm und 180cm
Brüstungshöhe des Fensters (in cm): 97
Fensterhöhe (in cm): 115
Raumhöhe in cm: 245
Heizung: Keine Heizung
Sanitäranschlüsse: variabel an aktueller Wand
Ausführung Kühlgerät: Integriert im Hochschrank (60cm)
Kühlgerät Größe: bis 178 cm Höhe
Ausführung Tiefkühl (TK)-Gerät: Nicht erforderlich bzw. steht woanders
Dunstabzugshaube: Abluft
Backofen etc. hochgebaut?: Ja
Hochgebauter Geschirrspüler ?: Nein
Kochfeldart: Induktion
Kochfeldbreite ca. (in cm)?: 80
Spülenform: 2 Becken mit Abtropffläche
Geplante Heißgeräte: Standmikrowelle, Backofen
Küchenstil: Modern
Sitzmöglichkeit in der Küche / im Küchenbereich: Arbeitsplatte in Tischhöhe
Sitzmöglichkeit: Für wieviel Personen?: für 2 Personen
Sitzmöglichkeit: Tisch - wenn gesonderter Tisch oder offene Küche: Keiner
Gewünschte o. vorhandene Tischgröße:
Wofür soll der Sitzplatz in der Küche genutzt werden? Wie häufig?:
Alltäglicher Essplatz, Schnibbeln, Teig kneten
Welche Arbeitshöhe ist angedacht (in cm)?: 90-95
Was steht auf der Arbeitsplatte oder soll dort stehen?: Kaffeemaschine, Wasserkocher, Messerblock
Welche weiteren Küchenmaschinen müssen in der Küche untergebracht werden?:
Was soll in der Küche außer den Standards untergebracht werden?:
Geschirr komplett (nichts in Ess-/Wohnzimmer)
Welchen Stauraum gibt es sonst noch?: Hauswirtschaftsraum, Keller
Was/wie wird gekocht? (Alltagsküche, Menüs, Snacks usw): Alltagsküche
Wie häufig wird gekocht?(fast) täglich 1x warm[/COLOR]
Wird alleine gekocht? Oder auch gemeinsam? Mit und für Gäste?: meist zu Zweit hin und wieder mit Freunden
Was stört an der bisherigen Küche und was soll die neue Küche unbedingt können? Warum?:
Welche Mülltrennung soll in der Küche vorgehalten werden?: Biomüll, Restmüll
Steht schon ein Küchenhersteller fest oder wird bevorzugt?: -
Steht schon ein Gerätehersteller fest oder wird bevorzugt?: -
Preisvorstellung (Budget): bis 15.000,-
 

Anhänge

  • gesamt.jpg
    gesamt.jpg
    79 KB · Aufrufe: 184
  • Grundriss.jpg
    Grundriss.jpg
    67,9 KB · Aufrufe: 372
  • Nord_nah.jpg
    Nord_nah.jpg
    66,6 KB · Aufrufe: 157
  • Osten.jpg
    Osten.jpg
    59,5 KB · Aufrufe: 172
  • westen.jpg
    westen.jpg
    60,4 KB · Aufrufe: 172
  • Variante3.KPL
    3,9 KB · Aufrufe: 156
  • Stock.jpg
    Stock.jpg
    159,6 KB · Aufrufe: 334
  • Asternweg3.POS
    8,7 KB · Aufrufe: 169
Hallo Waldzwerg und herzlichen willkommen im Forum.

wow, du hast dich ja wirklich ins Zeug gelegt, alles da, alles geplant, Hut ab.

Was ich vermisse ist der MUPL neben der Spüle. Ideal wäre auf einer Seite die GSP, auf der anderen der MUPL.

Aus diesem Grund würde ich die Spüle um's tote Ecke schieben, wobei die rechte Fensterseite von oben so aussehen würde

US - GSP - Spüle - totes Eck.

Vor dem Fenster planunten dann ein MUPL + US

Weil der Zeilenabstand gross ist, könnte man an der planrechten Seite übertiefe US, bzw die AP vorziehen. Gefühlsmässig machen die 5-15cm mehr einen großen Unterschied, man kann vorne arbeiten und hinten abstellen.

Die OS würde ich nicht so eng an die DAH setzen, das Reinigen der DAHaussenseiten wird schwierig. Persönlich wollte ich keine OS, wenn sie so verteilt hängen.
 
Ich würde den schmalen Apotheker rausschmeißen. Ist eher ein Stauraumverschwender.

LG
Sabine
 
Hmm, mir gefällt die Anordnung der Räumlichkeiten noch so gar nicht :kiss:

stock-jpg.168933


Zunächst mal .. Hanghaus? Und Eingang über den Keller?

Vielleicht mal noch UG und OG mit anhängen? Wie ist das Dach geplant? Paßt das mit der Treppe unten links?

Büro/fikt. Bad ... welche Gedanken stehen dahinter?

Terrasse planrechts?

Was soll alles im HWR unterkommen?

-------------------
Zur Küchenplanung :
  • 6 Raster :2daumenhoch:
  • Apotheker .. hat Sabine schon erwähnt
  • MUPL würde ich dringend empfehlen
  • Ihr seid sehr unterschiedlich groß. Da wäre es sinnvoll für jeden mal die individuell richtige Arbeitshöhe zu ermitteln. Die Küche ist groß genug, so dass man da auch 2 unterschiedliche Idealarbeitshöhen realisieren könnte.
    ARBEITSHÖHE ermitteln
    3 Methoden haben sich da etabliert:
    - Ellbogen abwinkeln und von dort 15 cm runtermessen
    - Höhe Beckenknochen messen
    - z. B. Bügelbrett nehmen und in verschiedenen Höhen Probeschnippeln und messen, wenn es einem am bequemsten erscheint, wobei dies der wichtigste Test ist.
    Idealerweise ergeben alle 3 Methoden ca. denselben Wert
    Ausführlicher in
    Optimale Arbeitshöhen beschrieben.
  • Ganz unpraktisch finde ich eine Tischlösung mit 60 cm Plattentiefe. Setzt euch mal ggü. oder meßt nur mal, wie weit eure Beine unter den Tisch reichen, wenn man normal sitzt. Und dann streckt man ja auch nochmal gerne ein Bein oder so. Außerdem empfinde ich die Position insofern als ungünstig, weil man
    • immer drumherum muss, um zur Terrassentür zu kommen
    • genau an der schmalsten Engstelle der Backofen ggü. ist und das kann beim Entnehmen stören.
 
Waldzwerg, deine pos und kpl Dateien haben nicht den gleichen Namen, ergo, können wir deinen ALNO Plan nicht herunterladen und genauer anschauen.
 
Hallo miteinander

Hier der Reihe nach:

@Evelin :

MUPL wäre auch ohne die Spüle zu verschieben in dem (aktuell) 50er planlinks neben der Spüle realisierbar. Würde ev. durch Überbreite zu einem 40er schrumpfen. Muss aber mit der Dame des zukünftigen Hauses noch durchgesprochen werden. Bisher haben wir das Mülltrennsystem unter der Spüle eingeplant und den Biomüll immer in der Eckschüssel von Tupper auf der AP. Wird dann von beiden "freiwilliger" und öfter geleert und kann von der Größe her problemlos in die GSM.

Die Übertiefen US auf der Westseite (planrechts) sind eine klasse Idee. Muss mir das im KS mal noch anschauen.


@Bodybiene :

Der 30er Hochschrank ist nicht als Apotheker angedacht sondern als Klappschrank mit Innenauszügen ähnlich zu (ALNO PLANER: SIA30221 Seitenschrank: 1Klappe; 1Drehtür; 2feste Fachböden; 6Innenauszüge)
Mir gehts dabei vor allen auch um die Trennung heiß/kalt (Backofen neben Kühlschrank)

@KerstinB :

- Hanghaus Eingang über Keller-> Haustüre Norden;Garage Westen

- Büro/ Bad: Haus geht über Keller, EG (mit Küche), OG, DG.

- EG und OG können durch geringe Umbaumaßnahmen jeweils in eine eigenständige Wohnung (Bad über Bad, Küche über Küche) gewandelt werden. Später ev. separat vermietbar o.ä.

- Terasse über Garage im Westen (planrechts)

- HWR : Gefrierschrank, Lebensmittel, Kasten Wasser/Saft, ev. Staubsauger

Küchenplanung :
Apotheker siehe @Bodybiene
MUPL siehe @Evelin
Arbeitshöhe siehe Eingangpost. Sind grad noch mitten im Bau. Ende nächster Woche kommt die Filigrandecke für das EG. Auf der werden dann die Leerrohre und der Abluftkanal verlegt. --> reale Arbeitshöhe wird erst Aug. 2015 interresant (meiner Abschätzung nach)
Tischlösung: Platte ist 80 tief im Sitzbereich. Der Abstand Backofen zu Platte ist an der schmalsten Stelle immer noch 1m, was 10cm mehr ist als in unserer aktuellen Küche.
Um die Platte herum zur Terasse gebe ich dir recht ist nicht unbedingt die beste Lösung. Wenn du dabei helfen kannst?
 

Anhänge

  • Variante3.KPL
    3,9 KB · Aufrufe: 163
  • Variante3.POS
    8,7 KB · Aufrufe: 222
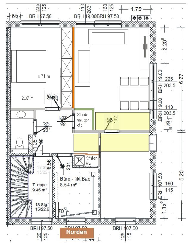
Also ist am Grundriss nichts mehr änderbar?

Wobei ich die Antwort:
Büro/ Bad: Haus geht über Keller, EG (mit Küche), OG, DG.

nicht verstehe. Oder soll da mal im Falle einer Wohnungstrennung dann ein Bad draus werden? D. h. WC-Anschluß etc. liegt dort alles?

Der Weg in die Küche ist ja nicht gerade sehr gradlinig, wenn man z. B. morgens aus den Schlafräumen kommt. 3 Türen bis dahin.

Wie wahrscheinlich ist denn mal eine Trennung der Räumlichkeiten? Und wenn, wann würde das passieren?
-------------
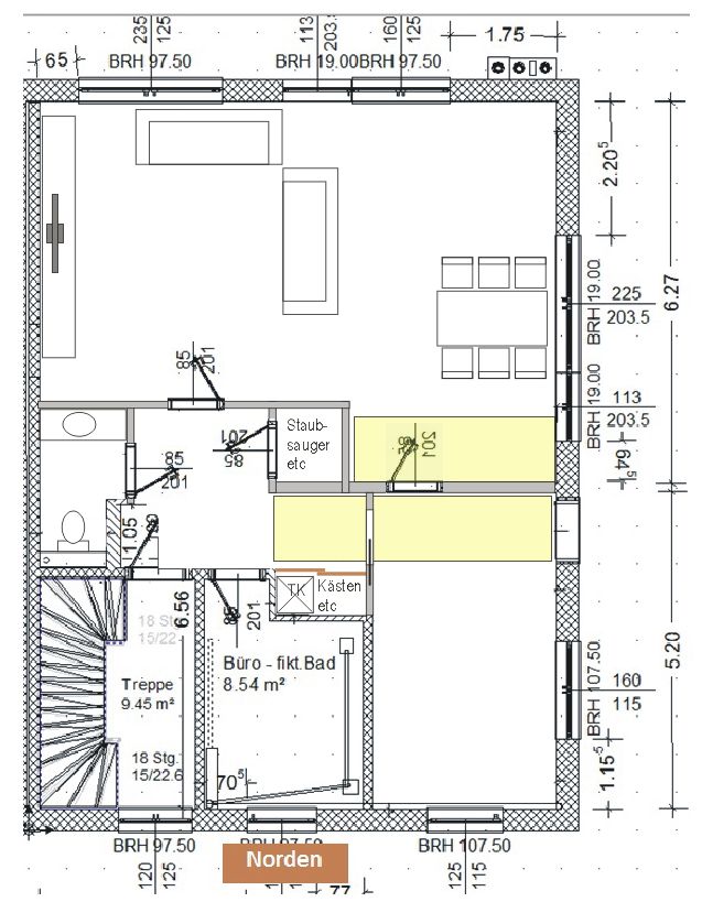
Zum Plan:
grundriss-jpg.168930


Ich sehe 80 cm zwischen Backofenschrank und Tischplatte.

Ok, der Teil wo du das Sitzen gewählt hast, könnte 80 cm sein, allerdings stell den Stuhl da mal so, dass man auch sitzt und aufsteht. Die Wand wird dort ziemlich schnell Schaden nehmen.


Und Wasser kann wirklich nur noch planunten verlegt werden? Was ist mit den Fensterpositionen? Vermutlich fix, weil auch oberhalb - oder?

Wg. Backofen neben Kühlschrank muss man sich keine Gedanken machen. Die Geräte sind ausreichend isoliert und ein 30er Schrank, wenn auch mit Innenauszügen ist ja schon recht knapp. Die nutzbare breite der Innenschubladen wird bei ca. 22 bis 23 cm liegen.
 
Grundriss nur mit sehr, sehr hohem Aufwand noch änderbar.

In Büro/Bad soll in der aktuell geplanten Nutzung unser Büro rein. Es werden aber alle Anschlüsse, Wasser, Abwasser (auch für bodeneben Dusche) in diesem Raum verlegt. So dass bei einer späteren Umnutzung z.B. nicht der komplette Estrich aufgefräßt werden muss im WW und KW dorthin zu bekommen.

Trennung der Räumlichkeiten: Wahrscheinlichkeit? Zeitpunkt? Gründe: Scheidung, Berufliche Zwänge, Alter, ... der Möglichkeiten sind da viele.

Die Fensterpositionen sind fix--> sind schon gemauert und drüber und drunter gleich

Abwasser: Fallrohr ist Planunten Links in der Ecke.
Wand Planlinks: Kalksand 15cm (tragend)
Wand Planunten, Planrechts: Gasbeton 36,5cm (Außenwände)
Wasser theoretisch überall möglich über Estrich
 
Hatte mir das vom Arbeitsablauf in etwa so vorgestellt gehabt:

Rohware aus dem Kühlschrank nach planrechts zur Schnibbelseite,
Geschnibbeltes nach Planlinks zum Kochen,
Schmutziges nach planunten in Spüle und GSM
Sauberes Geschirr aus Spüle und GSM in US auf der Schnibbelseite

Wäre so einmal im Kreis gearbeitet

Schneller Zugriff auf Sachen im Kühlschrank vom Herd aus (noch mal schnell ne Sahne o.ä.)


Die Platte zum Sitzen ist von den Maßen und der Form nicht das Endprodukt. Habe es im Alnoplaner nicht besser hinbekommen. Prinzipiell möchte ich in dem Bereich Planoben Planrechts den Sitzplatz haben aber die Laufwege zur Terassentür freihalten
 
Du hast vergessen, dass die meisten Sachen vor dem Schnippeln gewaschen werden wollen, Fleisch, Tomaten usw. ;-)

Mehr die Tage dann.
 
mit Wasser in der planlinken unteren Ecke könnte ich es mir auch so vorstellen.
Die Zeile planrechts übertiefe US oder die US 10cm vorgezogen.

HS Wand planoben beginnend
Blende
Vorräte
BO/Micro
Kühli
Blende
60er US
100er US mit Kochfeld rechtsbündig eingebaut oder anstelle von 60+100 könnte man auch 2 x 80er US mit Kochfeld mittig eingebaut

planunten nach toter Ecke
GSP
60er Spülenschank
40er MUPL

planrechts nach toter Ecke
2 x 100er US
Blende

Waldzwerg21.JPG
Waldzwerg22.JPG Waldzwerg23.JPG Waldzwerg24.JPG Waldzwerg25.JPG
 

Anhänge

  • Waldzwerg_Evelin_PLAN2.KPL
    3,9 KB · Aufrufe: 146
  • Waldzwerg_Evelin_PLAN2.POS
    9 KB · Aufrufe: 152
Zur Küche ist mir noch nichts entscheiden anderes als Evelin eingefallen. Die Küche ist so eine solide Planung mit viel Stauraummöglichkeiten.

Allerdings hat mir ja die Grundrisaufteilung mit der Option daraus eine eigene Wohnung zu machen, nicht so gefallen.

In Küche/Essbereich sind die hellgelb markierten Flächen ja eher Laufflächen etc.
waldzwerg_20141030_AktuellGR.jpg


Dann habe ich mir vorgestellt, dieses Geschoß soll eine eigenständige Wohnung werden. Da würde mir dann die Diele zu klein sein .. und auch nachwievor stören, dass die Küche nur durch den Wohnraum betretbar ist.

Daher hier mein Vorschlag zur Änderung des Grundrisses. Die gelben Laufflächen verschieben sich. Abstellbereich wird aufgeteilt. Bei der Küche die Nische, die man z. B. mit 2 großen deckenhohen Schiebetüren schließen kann und dann noch eine kleine Kammer für Staubsauger, Wischer usw.
WC-Tür nach außen aufgehend, die Tür zum Wohnbereich weiter nach links, ca. 200 bis 205 cm von der linken Wand entfernt. Zur Küche eine Schiebetür, soweit wie möglich nach planunten gesetzt. Könnte eine Glasschiebetür werden.
waldzwerg_20141030_AlternativGR.jpg


Wenn dann daraus eine eigene Wohnung wird, kann das so aussehen:
waldzwerg_20141030_AlternativEigenWohn.jpg

Die dann Schlafzimmertür sitzt dann soweit links, dass rechts ca. 70 bis 72 cm bleiben für eine lange Schrankwand.

Die grünen Wände herauszunehmen ist dann optional um evtl. doch einen eigenen Wohnbereichszugang zu schaffen.
Durch die leicht heruntergesetzte Küchentür bleibt an der tragenden Wand ggü. der Vorratsnische genügend Platz für 1 oder 2 Garderobenhaken für die gängisten Jacken.
 
Was mir noch aufgefallen ist, in deinem Grundrissplan steht für die Fenster

BRH 107,5 cm

in der Checkliste steht

BRH 97 cm

Welches ist denn nachher der korrekte Wert von Oberkante Fertigfußboden bis Unterkante Fensterbank?
 
ich wollte für den Fall der Fälle, dass aus der EG Toilette ein Duschbad schon jetzt wird und mir der Büroraum für was auch immer später erhalten bleibt.
 
Ich hab doch mal eine Stellprobe gemacht, wenn das denn so mit den Sanitäranschlüssen machbar ist... Sitzen nun auf APL-Höhe, Arbeitsablauf: Rohware aus dem Kühlschrank, auf die Insel - abspülen - schnibbeln - weiter zum Kochfeld

GSP hochgestellt, MUPL + 50er U-Schrank in der Insel übertief.

Bei gemeinsamen Kochaktionen kann man sich gegenüberstehen und beide kommen noch problemlos an die Spüle. Auch beim Kochen mit Gästen, ist genügend Arbeitsfläche vorhanden. Der Stauraum sollte auch ausreichend sein, ansonsten wäre auch noch Hängeschränke möglich.
 

Anhänge

  • waldzwerg-stellprobe.JPG
    waldzwerg-stellprobe.JPG
    21,9 KB · Aufrufe: 147
  • waldzwerg-stellprobe.KPL
    3,9 KB · Aufrufe: 161
  • waldzwerg-stellprobe.POS
    9,6 KB · Aufrufe: 156
  • waldzwerg.JPG
    waldzwerg.JPG
    77,1 KB · Aufrufe: 166
  • waldzwerg1.JPG
    waldzwerg1.JPG
    69,2 KB · Aufrufe: 147
Meine Bedenken Vorschläge zur Küche:

Der 60 hoch Vorrat. Hatten so einen in der alten wohnung. Das war ordnungsmäßig ne katastrophe. Würd ich weglasse lieber hwr und keller nutzen.

10 cm vom platz richtung hwr türe hinzu gibt nen 70 er zwischen eck und koch US. DAnn geht die GSM nicht vor das Kochfeld und blockiert die Topfschublade.
 
Man nimmt so einen 60er Vorratshochschrank ja auch nicht mit Fachbrettern, sondern mit Innenauszügen. In den Links unten, sind da einige dabei.

Zum Angucken, wie Stauraum genutzt werden kann:
Gerbera mit ganz vielen übertiefen Auszügen
Stauraumnutzung von doppelkeks und die Küche dazu
Küche von Moiree
Küche von KerstinB und nach dem Umzug (hier kann man gut sehen, was man alles alleine in Schubladen unterbringen kann)
Küche von Jelena
Küche von Ulla
Nekos Küche
Darlas Küche
Magnolias Küche
Vanessas Küche
Hemerocallis Küche
Littlequeenies Küche
Angelikas Küche
Küche von atmos
Küche von biggimaus
Küche von Bodybiene
Küche von Missjenny
Küche von Conny (auch übertiefe Auszüge)
Küche von träumerle
Muckelinas Küche (interessante Variante mit aufgesetzten Griffen)
Mr. Woms (Esthers) ;-) Schreinerküche
Küche von Ullmann
Küche von chrome17
 
Muss mir übers WE mal die ganzen Themen mit meiner Angetrauten durchackern.

Vielen Dank bis dahin
 

Ähnliche Beiträge

Neff Hausgeräte Ballerina Küchen Blum Bewegungstechnologie Weibel - Intelligente Küchenlüftung

Neff Spezial

Blum Zonenplaner

Weibel Abluft-Tuning

Weibel Abluft-Tuning
Zurück
Oben