Ideenlose Küchenanbieter

AW: Ideenlose Küchenanbieter

An deiner Insel ließe sich gewiss gut arbeiten - wenn du die neue Regel verinnerlicht hast, dass bei der Küchenarbeit zwecks Vermeidung von Unfällen und Verletzungen die Arme immer hübsch eng an den Körper gepresst werden sollten. Mit raumgreifenden Bewegungen kommst du da nicht weit. ;D

bdelfs_eigen_inselarbeit.jpg

Und das Brett vorm Fenster hat für meinen Geschmack den Charme eines WG-Küchen-Provisoriums. :-[

bdelfs_eigen_vomesstisch.jpg
 
AW: Ideenlose Küchenanbieter

@taylor, Du hast zum Spass auch den Wohnessraum drangesetzt.
Damit habe ich gestern auch mal gespielt, richtig sexy. Sollte der Herd nicht tiefer? Dann passt die eingehängte Arbeitsplatte besser.
 

Anhänge

  • Ideenlos 4.jpg
    Ideenlos 4.jpg
    41,3 KB · Aufrufe: 208
AW: Ideenlose Küchenanbieter

Das mit dem "gegenüber" arbeiten klappt finde ich bei dem U deutlich besser, mehr PLatz ist, und die Mauer würde ich auf jeden Fall weg lassen, damit zerstörst du dir den größten Vorteil den eine Insel/Halbinsel hat, Arbeitsfläche die von 3 Seiten begehbar ist, ideal fürs zusammen schnippeln, Teig rollen etc.

Am U könnte sogar jemand einfach klönen und nen Kaffee genießen aus der Kaffeemaschine die direkt dort steht wärend du entweder seitlich dazu am Fenster schnippelst oder frontal am Herd zugange bist.
 
AW: Ideenlose Küchenanbieter

Elke, ich dachte, die ganze Kochinsel sollte tiefer - aber so wie du das umgesetzt hast, ists natürlich praktischer: Da kann man das geschnippelte Gemüse von der Arbeitsfläche direkt in die Pfanne schieben. :cool:
 
AW: Ideenlose Küchenanbieter

diese Mini-Kochinsel ist ein Murks (nagut - bei dem Preis ein Edlemurks ;D) das Ding ist zu klein um ordentlich und vorallem auch Gefahrlos daran arbeiten zu können. Die Abtrennung :-\ ist nichts halbes und nichts ganzes - und das Brett vor dem Fenster :-X
 
AW: Ideenlose Küchenanbieter

Ich habe mir den Plan jetzt auch nochmal angesehen. Der Wohnbereich erhält ja ein Pultdach, das wohl vermutlich innen auch offen gestaltet ist. Also eine Dachsteigung.

Da auch Abluft gewünscht ist (und zu begrüßen ist ... Achtung Kaminfeger, Unterdruckwächter) denke ich, dass die Kochstelle am besten an der Außenwand liegt. Dann braucht man keine Konstruktionen für die Abluftführung.

Mir hat der Doppelblock wie Elke ihn schon angesetzt hat gefallen. Von Queenie dann im Grunde der Tausch Kochen/Spülen.

Außerdem habe ich die Hochschrankwand so angepaßt, dass die Halbinsel und die kleine Kaffeetheke dort in einer Linie liegen.

Den Kochblock etwas niedriger als den Spülenblock.

Hier würde mir die Kombination von Schüller System 715 (an der Kochzeile=Korpushöhe 71,5 cm) und System 780 (an der Spülenzeile =Korpushöhe 78 cm) gefallen.
Vorteil, die Arbeitsflächen würden sich in der Höhe nur um 6,5 cm unterscheiden.
Arbeitshöhe Kochzeile:
- APL=4 cm
- System 715=71,5 cm
- Sockel = 10 cm
--------------
= Gesamt 85,5 cm

Arbeitshöhe Spülenzeile:
- APL=4 cm
- System 780=78 cm
- Sockel = 10 cm
--------------
= Gesamt 92 cm

Beide Hauptarbeitsstellen (Kochen und Spülen-Vorbereiten) können so problemlos zu zweit genutzt werden, man kann sich auch gegenüber oder über Eck am Kopf der Halbinsel stellen.

Das bodentiefe Fenster würde auch optisch einen Sinn machen, da der Gang völlig frei ist. Und im Gegensatz dazu macht das normale Fenster an derselben Wand dann auch einen Sinn.

Wie immer habe ich auch mal den Tisch gestellt, so bleibt der Zugang zur Terrasse schön frei.
 

Anhänge

  • kf_bdelfs_20110602_kb_var1.POS
    13,8 KB · Aufrufe: 192
  • kf_bdelfs_20110602_kb_var1_Ansicht1.jpg
    kf_bdelfs_20110602_kb_var1_Ansicht1.jpg
    39,5 KB · Aufrufe: 211
  • kf_bdelfs_20110602_kb_var1_Ansicht2.jpg
    kf_bdelfs_20110602_kb_var1_Ansicht2.jpg
    38,9 KB · Aufrufe: 197
  • kf_bdelfs_20110602_kb_var1_Ansicht3.jpg
    kf_bdelfs_20110602_kb_var1_Ansicht3.jpg
    46,4 KB · Aufrufe: 194
  • kf_bdelfs_20110602_kb_var1_Ansicht4.jpg
    kf_bdelfs_20110602_kb_var1_Ansicht4.jpg
    38,3 KB · Aufrufe: 206
  • kf_bdelfs_20110602_kb_var1_Ansicht5.jpg
    kf_bdelfs_20110602_kb_var1_Ansicht5.jpg
    41,4 KB · Aufrufe: 212
  • kf_bdelfs_20110602_kb_var1_Ansicht6.jpg
    kf_bdelfs_20110602_kb_var1_Ansicht6.jpg
    45,1 KB · Aufrufe: 205
  • kf_bdelfs_20110602_kb_var1_Grundriss.jpg
    kf_bdelfs_20110602_kb_var1_Grundriss.jpg
    38,4 KB · Aufrufe: 200
  • kf_bdelfs_20110602_kb_var1.kpl
    4,1 KB · Aufrufe: 175
AW: Ideenlose Küchenanbieter

Hallo,
der Vorschlag von Kerstin ist
thumbsup.gif

Das mit dem durchgezogenen Brett sah einfach schrecklich aus. Eben eine Notlösung für eine Studentenbude.Jetzt sieht richtig gut aus.
Wieviel Platz ist denn da rechts und links von dem langen Fenster? Auch wenn ich wieder mal mit Kleinigkeiten kommen, da muss schon noch genug Platz für Rolladengut und evtl. Gardine sein.
LG Magnolia
 
AW: Ideenlose Küchenanbieter

Wenig Platz ... Rolladengurt dürfte links vom Fenster passen. Eine Gardine gehört da meiner Meinung nach nicht hin. Max. ein Rollo, das z. B. direkt am Rahmen befestigt ist.
 
AW: Ideenlose Küchenanbieter

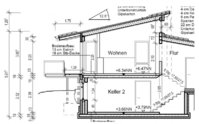
@Bdelfs, jetzt habe ich nochmal alles gelesen. Du schreibst im Laufe des Textes "Raumhöhe 2,82 m".

Die sehe ich aber in deinem Schnitt nicht. Da geht die Raumhöhe von 255 bis 370 cm, wenn ich richtig gerechnet habe.
 

Anhänge

  • kf_bdelfs_20110602_Schnitt.jpg
    kf_bdelfs_20110602_Schnitt.jpg
    61,4 KB · Aufrufe: 194
AW: Ideenlose Küchenanbieter

Hallo,
ich würde den Ansatz von BDelfs erstmal weiterverfolgen, schließlich waren das Idee und Wunsch der späteren Nutzer.
Die Insel kann in der Breite etwas optimiert werden. Rechts (vom Wohnbereich) bietet sich das Türmaß von 88,5 als Durchgang an, das ergäbe eine gute und erkennbare Linienführung. Links könnten 10-15cm mehr möglich sein. Insgesamt wären kompakte 160cm Breite realistisch und dann als Koc-und Vorbereitungsinsel brauchbar.
Durchgänge können schmaler ausfallen, wenn eine der Wände nur eine Brüstungshöhe hat. Die "Brüstung" der Insel ist mit 130cm viel zu hoch. 15-20cm über Arbeitsplatten -Niveau reichen völlig und lassen das ganze bei ausreichendem Sichtschutz viel luftiger. Ich würde das als Möbelelement ausführen lassen, nicht als Wand.

Das Zusatzbrett finde ich auch nicht optimal. Als Ergänzung für Gelegenheiten ja-aber wenn es immer dort hängt, wäre es schade.

Was ich nicht verstehe, ist die Fensterausführung nach Süden. Wenn es doch um viel Licht und "Luftigkeit" geht, sollten die 3 Fenster zur Terrasse auf jeden Fall bodentief sein, eines davon als Schiebetür. Dann macht der Entwurf richtig Sinn.

Kerstins Einwand zur DAH stimmt hier schon-Deckenhaube ist aufgrund der Höhe und Schräge nicht sinnvoll, Edelstahlesse mit hohem Kamin ist aufwändig und widerspricht der gewünschten Offenheit.

Grüße,
Jens


ps nach nochmaligem Betrachten des Grundriß-warum eigentlich keine Halbinsel parallel zur Hochschrankwand und über deren volle Länge, beginnend an der 1,71m-Wand?
Das ließe auch Arbeiten von 2 Seiten zu, evtl. auch eine Sitzgelegenheit auf der Terrassenseite. Das wäre weniger "zersiedelt".
 
AW: Ideenlose Küchenanbieter

:kiss: Respekt Kerstin :2daumenhoch: das ist eine sehr attraktive Lösung mit viel Stauraum, Arbeitsfläche und zu allem Ueberfluss ein SCHMUCKSTüCK :cool:
 
AW: Ideenlose Küchenanbieter

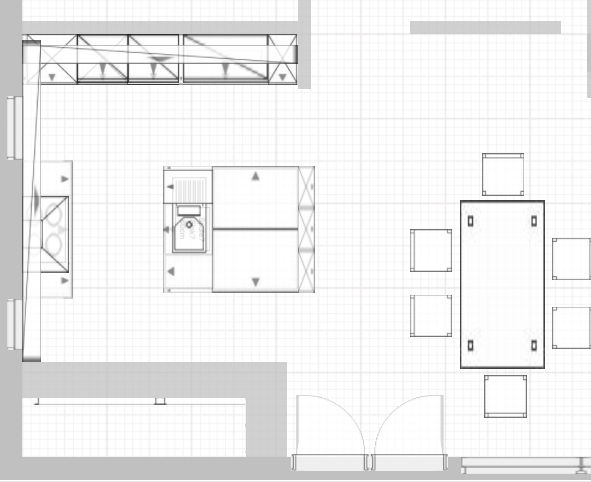
Jetzt nochmal der Inselansatz.

Kochen wieder an der Wand.

Rechtes Fenster auf 75 cm Breite, damit rechts davon noch Platz für Rolladengurt ist, linkes Fenster auf 60 cm Breite und links davon Platz für Rolladengurt (wenn das nicht gebraucht wird, kann man breitere Fenster wählen). Auf jeden Fall beide Fenster bodentief, für den Kochblock von 165 cm (incl. Wangen) ein Freiplatz von 170 cm.
kf_bdelfs_20110602_kb_var2_Ansicht1.jpg


Ideal wäre es natürlich, auch die anderen Fenster dann bodentief zu machen.

Die Arbeitsinsel auf Spülenseite mit einer Breite von 150 cm. 60er Spülenschrank in der Mitte, zur GSP hin evtl. noch Müll unter der APL, auf der anderen Seite ein großes Fach um z. B. nicht benötigte Bleche einzustellen, Schneidbretter etc.

Dann auf beiden Seiten 100er Auszugsunterschrank in Übertiefe. Damit Inselgröße 150x160 cm. In der Mitte der Insel könnte dann auch mal eine Küchenmaschine oder ein Messerblock stehen ohne die Arbeitsfläche zu beeinträchtigen.

Die Abgrenzung zum Wohnbereich hin z. B. mit nicht sehr tiefen Vitrinenschränken für die guten Gläser oder so.

Der Gangbereich zu den Hochschränken hätte dann gut 95 cm Breite, zu den Fenstern planunten wären es gut 80 bis 85 cm.
 

Anhänge

  • kf_bdelfs_20110602_kb_var2_Grundriss.jpg
    kf_bdelfs_20110602_kb_var2_Grundriss.jpg
    35,4 KB · Aufrufe: 184
  • kf_bdelfs_20110602_kb_var2.kpl
    4,1 KB · Aufrufe: 189
  • kf_bdelfs_20110602_kb_var2.POS
    13,9 KB · Aufrufe: 176
  • kf_bdelfs_20110602_kb_var2_Ansicht2.jpg
    kf_bdelfs_20110602_kb_var2_Ansicht2.jpg
    30,6 KB · Aufrufe: 187
  • kf_bdelfs_20110602_kb_var2_Ansicht3.jpg
    kf_bdelfs_20110602_kb_var2_Ansicht3.jpg
    38,7 KB · Aufrufe: 194
  • kf_bdelfs_20110602_kb_var2_Ansicht4.jpg
    kf_bdelfs_20110602_kb_var2_Ansicht4.jpg
    47,8 KB · Aufrufe: 195
AW: Ideenlose Küchenanbieter

So ähnlich hab ichs auch, Hochschränke dabei nicht beachtet
 

Anhänge

  • Ideenlos 7.jpg
    Ideenlos 7.jpg
    45,5 KB · Aufrufe: 192
AW: Ideenlose Küchenanbieter

Elke, stimmt, da sind ja sogar noch Fenster .. die Frage ist, ob die auch über den Hochschränken geplant sind. Bdelfs müßte mal wieder auftauchen :cool::cool:
 
AW: Ideenlose Küchenanbieter

Ich finde die Idee von Mozart verfolgenswert, da müssten die TE nur sagen ob das mit der Inselesse machbar wäre- denke bei einem neuen Haus dürfte es doch Mittel und Wege geben, oder? Vielleicht bis dahin abhängen und erst ab dann ansteigen oder so?

littlequeen
 

Anhänge

  • bd.jpg
    bd.jpg
    49,8 KB · Aufrufe: 249
  • bd1.JPG
    bd1.JPG
    28,8 KB · Aufrufe: 207
  • bd.KPL
    4,1 KB · Aufrufe: 173
  • bd.POS
    13,2 KB · Aufrufe: 180
AW: Ideenlose Küchenanbieter

Ja, so ginge die große Halbinsel auch. Und da könnte man dann noch sinnvoller beide Fenster planlinks als bodentiefe Fenster planen. Und beide Gänge könnten gut 105 cm breit sein.
 
AW: Ideenlose Küchenanbieter

Ist ja leider nicht meine Küche, wäre sie es, würde ich die große Insel nehmen, sie bietet auf der großen Fensterseite einen schönen Treffpunkt für den "Bevordinnerdrink". Wenn gewünscht, kann vorne die besagte Mauer vorgebaut werden, vielleicht ein paar Sitzplätze an einer beliebig hohen Arbeitsplatte .
Ich habe im Moment auch einen Sitzplatz an der Insel, da sammelt sich immer alles, Kinder malen, Erwachsene plauschen, sind nicht im Weg, trotzdem mitten im Geschehen.
 
AW: Ideenlose Küchenanbieter

Oh mein Gott - ihr seid so irre!!! Ich habe wirklich nicht mit so viel Rückmeldung/tollen Entwürfen/Detailgenauigkeit gerechnet - vielen vielen Dank schon mal an euch!!!!!

Wir streiten uns aktuell um die U-Variante und die breitere Insel-Variante (Inselgröße 150x160 cm von KerstinB). Die große Doppel-Insel-Variante parallel zu den Hochschränken gefällt uns leider nicht so gut.

Ihr habt es geschafft: das WG-Brett-vorm-Fenster lassen wir weg!

UND das Kochfeld an der Aussenwand und dafür die Spüle auf der Insel finden wir mittlerweile auch besser und sinnvoll...

Rolläden werden wir nicht haben, so dass dafür kein Platz einberechnet werden muss, eine Fensterverdunkelung haben wir elektrisch von aussen eingeplant.

Die 2,82 m Deckenhöhe hatte ich als Richtlinie angegeben - ich habe wirklich nicht geahnt, dass ihr so genau plant - bin vollkommen hin und weg!
Über den Hochschränken sind Fenster vorgesehen, ein Oberlicht ist aus statischen Gründen nur im Bereich des Wohnzimmers möglich.

Mann oh mann, wir werden uns jetzt wohl ersteinmal auf eine Variante einigen müssen.
 
AW: Ideenlose Küchenanbieter

Statt U-Variante würde ich da eher die 2-Zeiler-Variante bevorzugen. Sie bietet genauso viel Stauraum und man hat nicht 2 Ecklösungen.

Die lange Insel hätte aber auch etwas.
 
Neff Hausgeräte Ballerina Küchen Blum Bewegungstechnologie Weibel - Intelligente Küchenlüftung

Neff Spezial

Blum Zonenplaner

Weibel Abluft-Tuning

Weibel Abluft-Tuning
Zurück
Oben