Hilfe!!

AW: Hilfe!!

Hallo Kerstin,

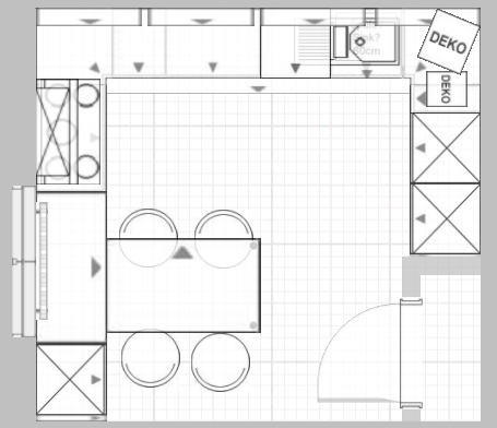
ja mit der Spülmaschine, das ist ein Problem, aber ich wüsste nicht, wo man die sonst stellen könnte.
Mein Traum wäre sowieso, die Hoch zu stellen!
Aber das geht nicht, wegen Kühlschrank, er muss dort hin.
Gefrier reicht mir zwei Fächer, da im Keller ein großer steht!

Die Heizung ragt ca. 9.5cm in den Raum.

Grundrissansicht stellen wir mit rein.
Ich weiß, das die Durchgänge nicht wirklich groß sind, aber an der Seite des Kühlschranks ist genug Platz.

VG
Petra
 

Anhänge

  • Küche Alno Plan.jpg
    Küche Alno Plan.jpg
    35,8 KB · Aufrufe: 244
AW: Hilfe!!

Petra,
was ist mit Mikrowelle ?

Bei deiner Spülenecklösung und Kochfeld ja relativ nah, ist aber auch Arbeit zu zweit nicht so praktisch .. oder?

Welche Kühlschrankgröße (cm) hast du dir denn vorgestellt?
 
AW: Hilfe!!

Kerstin, ich sag ja wir haben schon ziemlich früh erkennen müssen, viele Kompromisse machen zu müssen.

Mikro, wird´s wahrscheinlich keine mehr geben, oder evtl. zur Not auf dem Kühlschrank als Standgerät.

Der Platz zwischen Spüle und Kochfeld ist zu eng?
War mir noch nicht bewusst! Werd ich mir anschauen.

Den Schrank, für den Kühler, haben wir jetzt mit 150cm geplant.
Kühlschrank, fällt nicht so groß aus. Eben gerade so, das zwei TK-Fächer noch mit in den Schrank passen!


Petra
 
AW: Hilfe!!

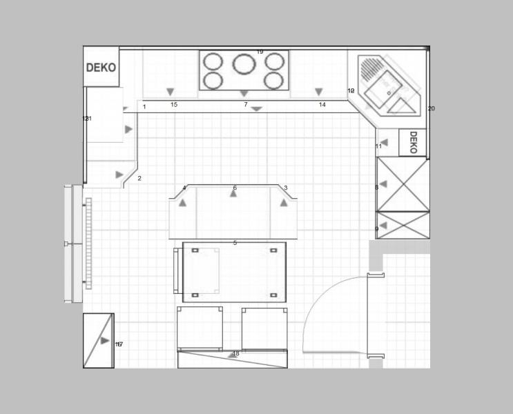
hier noch ein anderer Ansatz. Ich habe keinen Alnoplaner, musste also mal händisch in Kerstins Plan rummalen...Details wie Schrankbreiten kann man sich danach überlegen.

Ich habe auch ganz frech den Wasseranschluss umgelegt, tauschen von Kochfeld und Spüle wäre auch denkbar. Durch die große Fläche gleich rechts an der Tür (Halbinsel) hat man auf der Seite mit der Schrägen fast beliebig viel Spielraum. Auch z.B. um noch einen 140er (halbhohen) Schrank für den hoch gebauten Backofen unterzubringen.

Ich hatte das doch richtig verstanden: Höhe Fußboden Beginn der Dachschräge sind 145cm?

neko
PS: Sitzmöglichkeit mit Bank an der Wand planunten links.
PPS: ich habe ein 90-er Kochfeld eingeplant, nur aus Bequemlichkeit 2 statt 5 oder 6 Kringel draufgemalt ;-)
 

Anhänge

  • emily7_leererGrundriss.jpg
    emily7_leererGrundriss.jpg
    88,5 KB · Aufrufe: 188
  • emily7_leererGrundriss2.jpg
    emily7_leererGrundriss2.jpg
    92 KB · Aufrufe: 176
Zuletzt bearbeitet:
AW: Hilfe!!

Hi Neko,

danke für den Plan! Wasseranschluß kann nicht verlegt werden!
Aber die Idee, mit dem 140er Schrank, ist überlegenswert!

Kühlschrank in der hinteren Ecke find ich jetzt nicht so gut!
Aber danke für dein Interesse, an unserer Planung!

VG
Petra
 
AW: Hilfe!!

Kerstin,

wir wollten 150cm Schrank, da es uns nicht gefällt, wenn die Höhenunterschiede extrem Groß sind in der Nische.
Da bleibt uns nicht viel Möglichkeit, da ich die zwei Fächer TK, unten möchte.

P.

Wir mussten gerade feststellen, das wir einen Fehler gemacht haben. Wird geändert!
Der Kühlschrank, mit TK, kommt gleich rechts hin.
Wir hatten fälschlicher weisse, da die Spülmaschine!
Sorry!
 

Anhänge

  • Küche Alno Plan.jpg
    Küche Alno Plan.jpg
    35,8 KB · Aufrufe: 123
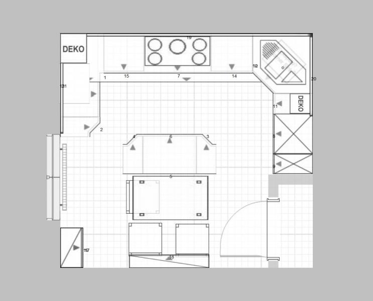
AW: Hilfe!!

Hallo Petra,
also die Ecke neben der Tür .. da würde ich ordentliche Hochschränke hinstellen.

Jetzt einmal einen Hochschrank für einen Kühl/TK-Schrank mit 122 cm Höhe (der letzte, den ich oben verlinkt habe), darunter noch einen 3rasterigen Auszug.

Daneben Backofenhochschrank mit einem Klappfach für eine einfache Standmikrowelle. Unten drunter einmal 3rasteriger und einmal 2rasteriger Auszug.

Dann ein offenes Fach für Handtuchhalter, gerade nicht benutzte Backbleche, Tabletts, große Schneidbretter oder was auch immer.

Ecke tot, dann Spülenschrank mit einer Spüle wie der Mera 60 von Systemceram .

Dann die Spüma, 80er Auszugsunterschrank, 45er Auszugsunterschrank z. B. für Gewürze und alle unmittelbaren Kochzutaten (Mehl, Zucker, Öle usw).

Tote Ecke

Nach der toten Ecke ein 90er Unterschrank fürs Kochfeld. Da das vermutlich in der optischen Linie ganz leicht ins Fenster gehen wird, könnte man das Kochfeld leicht versetzt auf diesem Schrank einsetzen. So dass eben gerade noch eine 90er DAH drüberpaßt. An dieser Stelle läßt sich das einfach am besten bauen. Und auch ein Abluftloch läßt sich so mit dem wenigsten Aufwand realisieren.

Dann einfach die APL vorm Fenster weitergeführt und den Tisch in APL-Höhe angesetzt. Das ergibt einen schönen Tisch, aber auch eine tolle erweiterte Arbeitsfläche für Kekse backen, Nudeln machen usw.

In der Ecke dann noch ein großer 60er Schrank mit Innenauszügen und im oberen Bereich vielleicht ein oder zwei Fachbretter.

Wenn es Eigentum ist ... könnte man dann nicht über die Verlegung der Heizung nachdenken? Das wäre nicht so aufwendig, weil ein Heizungsmonteur eigentlich nur die Zuleitungen verlängern müßte und man den Heizkörper ummontiert.

Und, was ist mit der Küchentür? Könnte die außen als Schiebetür laufen? Hättest du mal einen Gesamtgrundriss?
 

Anhänge

  • kf_emily7_20100116_Variante1_Grundriss.jpg
    kf_emily7_20100116_Variante1_Grundriss.jpg
    78,6 KB · Aufrufe: 174
  • kf_emily7_20100116_Variante1_Ansicht5.jpg
    kf_emily7_20100116_Variante1_Ansicht5.jpg
    234,8 KB · Aufrufe: 128
  • kf_emily7_20100116_Variante1_Ansicht4.jpg
    kf_emily7_20100116_Variante1_Ansicht4.jpg
    213,8 KB · Aufrufe: 118
  • kf_emily7_20100116_Variante1_Ansicht3.jpg
    kf_emily7_20100116_Variante1_Ansicht3.jpg
    195,5 KB · Aufrufe: 144
  • kf_emily7_20100116_Variante1_Ansicht2.jpg
    kf_emily7_20100116_Variante1_Ansicht2.jpg
    227,4 KB · Aufrufe: 130
  • kf_emily7_20100116_Variante1_Ansicht1.jpg
    kf_emily7_20100116_Variante1_Ansicht1.jpg
    232,6 KB · Aufrufe: 133
  • kf_emily7_20100116_Variante1.POS
    8 KB · Aufrufe: 142
  • kf_emily7_20100116_Variante1.kpl
    4,1 KB · Aufrufe: 176
AW: Hilfe!!

Deshalb habe ich dir die Kühlschrank-Links gezeigt. Ein Einbauschrank mit 2 TK-Fächern unten wird selber schon eine Höhe von mind. 158 cm haben, dann kommt der Umbau und der Sockel dazu. Da wird nichts mit 150 cm hohen Schränken.
 
AW: Hilfe!!

Danke Kerstin, für deine neuen Ideen und Mühe!

Werde das ganze dann in Ruhe noch wirken lassen...

Also, Tom möchte keine so hohen Schränke mehr. Die nerven ihn schon die letzten Jahre extrem!

Da, wo du das Kochfeld geplant hast, möchte ich mir den Liftmatic hängen!

Wir haben die Möglichkeit, wegen Kühlschrank, schon in einem Möbelhaus gesehen, mit 150cm, müssen uns dazu nochmal informieren!
Tom würde sich vielleicht noch auf die 175cm einlassen, aber das ist äusserste Grenze!

P.

Die Tür kann weg!
Schiebetür geht nicht, da der Flur nur 125cm breit ist!

Wieso sollte die Heizung verschoben werden?
Aber wäre evtl. machbar!

Komplett Grundriss haben wir nicht!
 
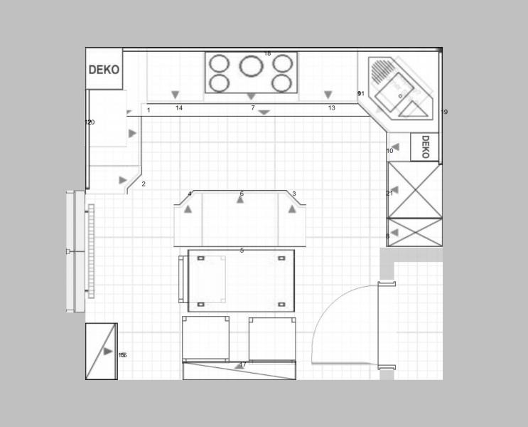
AW: Hilfe!!

Sorry,
ihr wollt Stauraum, ihr wollt gute Vorschläge, da solltet ihr aber nochmal richtig in euch gehen ;-)

Du brauchst doch bloß die Maße der Kühlschränke, die ich oben verlinkt habe, anzusehen. Und dann im Alnoplaner die Hochschränke mal auf die entsprechenden Einbauhöhen zu checken. Die stehen schließlich jeweils im Infofeld.

Wenn dieser Raum der einzige mit Essplatz ist, würde ich schon sehr intensiv an eine DAH denken. Und die läßt sich nun mal an der geraden Wand erstens mit viel weniger Aufwand installieren und auch das Abluftloch läßt sich einfacher installieren.

Wenn ihr denn Installationsaufwand vornehmen wollt, dann sollte man über die Heizungsverlegung nachdenken ... siehe Plan unten. Und eben Lösungen für die Tür.

Da fallen die Hochschränke, weil sie eben nur in dieser Nische stehen, quasi gar nicht auf.

Ich ergänze mal, in der Insellösung wird das Arbeiten zu zweit nicht so ergiebig sein und die Sitzplätze sind auch nicht so toll. Und die sollten doch bei der einzigen Essplatzlösung etwas Bequemlichkeit bieten.
 

Anhänge

  • kf_emily7_20100117_Variante2.kpl
    4,1 KB · Aufrufe: 138
  • kf_emily7_20100117_Variante2.POS
    8,3 KB · Aufrufe: 124
  • kf_emily7_20100117_Variante2_Ansicht1.jpg
    kf_emily7_20100117_Variante2_Ansicht1.jpg
    219,3 KB · Aufrufe: 123
  • kf_emily7_20100117_Variante2_Ansicht2.jpg
    kf_emily7_20100117_Variante2_Ansicht2.jpg
    230,6 KB · Aufrufe: 124
  • kf_emily7_20100117_Variante2_Grundriss.jpg
    kf_emily7_20100117_Variante2_Grundriss.jpg
    77,6 KB · Aufrufe: 211
AW: Hilfe!!

Kerstin,
anscheinend sind wir schon sehr eingeschossen!
Höher als 175cm geht nicht!
Der letzte Entwurf spricht uns nicht so an!
Nicht böse sein!:rose:

Natürlich hast du Recht, das die Lösung mit der Insel, für zwei nicht gerade praktisch ist!

Wir möchten auf keinen Fall Hochstühle für den Essbereich!
Bei unseren Entwurf, dachten wir eben so, einen Ausziehtisch, mit zwei Stühlen, bei Bedarf, dann ausziehen und zwei Stühle anstellen,variabel verschiebbar, wobei mir jetzt der Vorschlag von dir mit der weiterlaufenden Arbeitsplatte sehr gut gefällt. Würden dann halt die Höhe anpassen. Aber trotzdem hätte ich weniger Stauraum, als bei unserer Lösung!
 
AW: Hilfe!!

Stauraumvergleich:

Deine Planung:
20318d1263735381-hilfe-kueche-alno-plan.jpg



  1. 1x100er Auszugsunterschrank
  2. 1x80er Auszugsunterschrank
  3. 1x60er Auszugsunterschrank
  4. 1x125er LeMans -Eckschrank (siehe tote Ecken gute Ecken)
  5. 3x30er abgeschrägte Unterschränke (teuer und wenig Platz)
  6. 1x30er Apotheker Korpushöhe 130 cm
  7. 1x60er Kühlschrankschrank – Korpushöhe 130 cm für max. 122er Einbaukombination, sonst nichts
  8. 1x60cm breiter und 36 cm tiefer Vitrine

Meine Variante 2:
20343d1263739010t-hilfe-kf_emily7_20100117_variante2_grundriss.jpg


  1. 1x100er Auszugsunterschrank
  2. 2x90er Auszugsunterschrank
  3. 1x80er Auszugsunterschrank
  4. 1x45er Auszugsunterschrank
  5. 1x60er Kühlschrankhochschrank – Korpushöhe 208 cm für z. B. 122er Einbaukombination, dabei aber noch 1 x 3rasteriger Auszug und ein 39er Schrankfach 60 cm tief
  6. 1x60er Backofenhochschrank – Korpushöhe 208 cm für Backofen sowie Klappfach für Mikrowelle , daber aber noch 1x3rasteriger Auszug und 1x2rasteriger Auszug und ein 39er Schrankfach 60 cm tief

Deine Variante = Meine Variante 2
1 = 1
2 = 3
3+4+5 = 2+4
6 = Auszüge unter Backofen
8 = Auszug unter Kühlschrank sowie 1 der Schrankfächer im Hochschrank
bleibt aus meiner Variante 2
--> 1 Schrankfach im Hochschrank
--> und die Tatsache, dass eine Mikrowelle platzsparend untergebracht ist

Und ich behaupte mal, dass der Stauraum generell besser nutzbar ist.

In Variante 2 könnte der Esstisch auch in normaler Höhe sein.

EDIT:
Weiterhin zur Inselplanung
- Spüle/Spüma-Problematik
- Durchgänge
- Preis
- Enge zwischen Kochfeld und Spüle
 
AW: Hilfe!!

;-) wollt ihr euch primär Beraten lassen, damit ihr zu allen Vorschläg Nein sagen könnt, um dann das gute Gefühl zu haben, es selber von Anfang an am besten gewusst zu haben (obwohl das auch nicht ist was ihr wollt?) :tounge:

Ihr scheint so genau zu wissen, was ihr alles NICHT wollt... warum sagt ihr das dann nicht von Anfang an?

(Ich will auch ein 3 Liter Auto, dass 250 fährt, auf jeden Innenstadt- Parkplatz passt, und mir besonders viel Stauraum bietet .. ach ja - es soll ein Cabrio sein :girlblum:; abgesehen davon hab ich gerne Uebersicht und erhöhte Sitzposition - aber am besten gefällt mir Alfa Julietta; nur mit der Qualität bin ich da nicht zufrieden :rolleyes:)
 
AW: Hilfe!!

Danke Vanessa!!!

Versteh jetzt dein Problem nicht!
Aber jeder hat doch seine Wünsche! Ob die zu realisieren sind, dazu sind wir hier gelandet!
Wenn ich nur Kompromisse machen soll, dann geh ich in ein Möbelhaus und bestell mir eine Küche, die alleine der Verkäufer entwirft!

Danke für deine Mühe!!
 
AW: Hilfe!!

Kerstin,
gibts noch von Bosch , aber es gibt noch vereinzelt welche von Siemens ....bei Höffner die haben z.B. noch den Siemens!

Um hier keinen falschen Eindruck zu erwecken, wir sind hier um uns eure Meinungen und Verbesserungen anzuhören!
Es ist eben schwer sich von was abzubringen, was einem im Grunde gefällt aber nicht machbar ist...Vanessa, das hab ich aber heute geschrieben!!

Kerstin, danke für deine Überlegungen und deine Mühe mit uns!
Ich weiß, es ist schwierig mit uns, aber ich hoffte mit Euch eine Lösung zu finden!:-)
 
AW: Hilfe!!

Na ja, Petra,
ich denke, jetzt bist du erstmal dran. Das muss sich alles setzen, du musst Stauraum prüfen usw.

Ich halte den Liftmatic an der Wand dort für ungeeignet und würde aus den bereits mehrfach beschriebenen Gründen dort das Kochfeld hinpacken.

Macht euch doch mal schlau, welchen Aufwand ihr sonst für eine Abluftlösung betreiben müßt.

Und, ich kann zwar verstehen, dass man beim Reinkommen nicht gegen 210 cm hohe Schränke laufen möchte, aber eure Ecke dort, die ist wie gemacht für die hohen Schränke. Im oberen Bereich hat man dann auch einen ordentlich Platz, wo selten benötigte Sachen hinpassen.

In deiner Lösung hast du sehr viele entweder nur 30 cm breite (und dann noch abgeschrägte) Unter- und Hochschränke oder eben die nur 36 cm tiefen (Außenmaß!! ... innen wohl so 32 cm) Vitrinenschrankteile.
 
AW: Hilfe!!

Kerstin, mir würde die erste Variante von dir besser gefallen!:top:
Find ich luftiger!
Das sind ja meine bedenken, das unser Entwurf zu eng wird!

Ich weiß, das unser Entwurf diese 30er hat, die nicht viel Stauraum haben!
Aber z.B. rechts neben der Tür, fand ich einen 30er, nicht so vollgestopft!

Ja, mit der Kochfeld Lösung hast du recht, werden wir alles nochmal überdenken!

Der Liftmatic, ist so eine Spielerei.
Dachte damit auch etwas Platz sparen zu können!

Danke dir sehr für deine Hilfe und Denkanstösse!

Wir schauen uns das ganze später nochmal in Ruhe an!
Freu mich aber, wenn du noch weiter Vorschläge für uns hast!
Vielleicht kann ich Tom von dem einen oder anderen, deiner Ideen überzeugen!

Wünsch dir noch ganz viele Gute Ideen!
DANKE!

VG
Petra
 
AW: Hilfe!!

Hallo Kerstin,

je länger ich mir jetzt deine Variante1 anschaue, desto besser gefällt mir dein Entwurf!:idee2::clap:

VG
Petra
 

Ähnliche Beiträge

Neff Hausgeräte Ballerina Küchen Blum Bewegungstechnologie Weibel - Intelligente Küchenlüftung

Neff Spezial

Blum Zonenplaner

Weibel Abluft-Tuning

Weibel Abluft-Tuning
Zurück
Oben