- Beiträge
- 21.248
- Wohnort
- München
AW: Hilfe!!
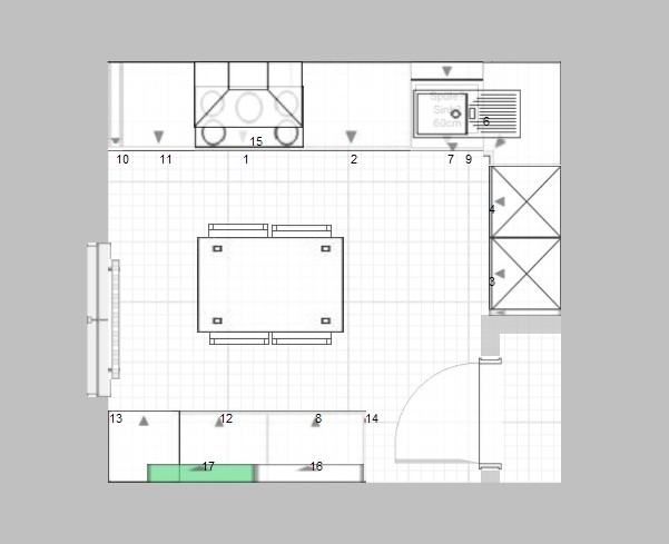
Petra, das sieht nur nach langem Weg aus vom KS zum KF. Das sind doch mal gerade 2 1/2 Schritte.
Noch dazu kannst du alles, was du aus dem KS nimmst, schön mit einer kurzen Drehung auf dem Tisch zwischenlagern.
Das bewährt sich in der Praxis so ähnlich bei uns sehr gut, siehe mein Grundriss: KS links, Kochfeld rechts, dazwischen Tisch.
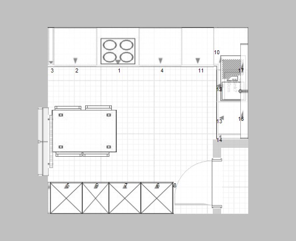
Petra, das sieht nur nach langem Weg aus vom KS zum KF. Das sind doch mal gerade 2 1/2 Schritte.
Noch dazu kannst du alles, was du aus dem KS nimmst, schön mit einer kurzen Drehung auf dem Tisch zwischenlagern.
Das bewährt sich in der Praxis so ähnlich bei uns sehr gut, siehe mein Grundriss: KS links, Kochfeld rechts, dazwischen Tisch.
Anhänge
