Hilfe bei Küchenplanung wegen Gechirrspüler

AW: Hilfe bei Küchenplanung wegen Gechirrspüler

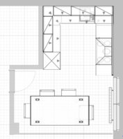
Hier die beiden Grundrisse
 

Anhänge

  • Grundriss U mit Griffen.JPG
    Grundriss U mit Griffen.JPG
    36,7 KB · Aufrufe: 137
  • Grundriss U mit Griffen Herd unten.JPG
    Grundriss U mit Griffen Herd unten.JPG
    35,9 KB · Aufrufe: 143
AW: Hilfe bei Küchenplanung wegen Gechirrspüler

Hallo Claudia

was versprichst Du Dir von den unterschiedlichen Varianten?

In meinen Augen ist es so - Variante mit 2xHochschrank hast Du deutlich mehr Stauraum, auch weil dieser besser aufgeteilt werden kann; bei der anderen hast Du mehr Arbeitsfläche.

Es gibt noch die 3. Variante die Seitenschränke auch wirklich hoch zu bauen, um mehr Stauraum zu gewinnen.

.. jetzt musst einfach Du wissen, was dir Wichtiger ist.
 
AW: Hilfe bei Küchenplanung wegen Gechirrspüler

Hallo,

ich möchte einfach abwegen, da mir ein bißchen das räumliche Vorstellungsvermögen fehlt, daß mich die 2 Highboards eventuell erschlagen, da bin ich mir eben nicht ganz sicher, daher dachte ich vielleicht geben hier ein paar Leute Ihre Meinung ab, man sieht ja oft seine eigenen Fehlplanungen nicht.
DAnke und Gruß
Claudia
 
AW: Hilfe bei Küchenplanung wegen Gechirrspüler

Nein, die werden Dich nicht erschlagen; aussserdem gewöhnt man sich schnell an eine Anblick, wenigerschnell hingegen an zuwenig Platz und zuwenig Stauraum, das stört bei jedem Handgriff massiv.
 
AW: Hilfe bei Küchenplanung wegen Gechirrspüler

Man darf aber auch nicht vergessen, dass man Arbeitsfläche braucht.

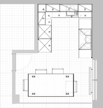
Ich habe mal hochgestellter Backofen ohne weiteren Hochschrank etwas überarbeitet.

Und, wenn ich noch einen Hochschrank wählen würde, dann hätte der definitiv die erhöhte GSP drin und ein Fach für eine Mikrowelle oben drüber. Wolltest du nicht auch eine Mikrowelle , Claudia?
 

Anhänge

  • kf_clauma123_20100905_EigVarUbearbeitet_Grundriss.jpg
    kf_clauma123_20100905_EigVarUbearbeitet_Grundriss.jpg
    76,8 KB · Aufrufe: 114
  • kf_clauma123_20100905_EigVarUbearbeitet_Ansicht4.jpg
    kf_clauma123_20100905_EigVarUbearbeitet_Ansicht4.jpg
    271,8 KB · Aufrufe: 125
  • kf_clauma123_20100905_EigVarUbearbeitet_Ansicht3.jpg
    kf_clauma123_20100905_EigVarUbearbeitet_Ansicht3.jpg
    148,3 KB · Aufrufe: 128
  • kf_clauma123_20100905_EigVarUbearbeitet_Ansicht2.jpg
    kf_clauma123_20100905_EigVarUbearbeitet_Ansicht2.jpg
    125,5 KB · Aufrufe: 129
  • kf_clauma123_20100905_EigVarUbearbeitet_Ansicht1.jpg
    kf_clauma123_20100905_EigVarUbearbeitet_Ansicht1.jpg
    181,7 KB · Aufrufe: 114
  • kf_clauma123_20100905_EigVarU.POS
    12,8 KB · Aufrufe: 127
  • kf_clauma123_20100905_EigVarU.kpl
    4,1 KB · Aufrufe: 126
AW: Hilfe bei Küchenplanung wegen Gechirrspüler

.. und, wenn wirklich eine Mikrowelle sein soll, und ein zweiter Hochschrank nicht, dann würde bei mir der BO-Hochschrank so hoch wie die Hängeschränke und dann wäre da Platz für BO und MW. Da erschlägt auch nichts.
 
AW: Hilfe bei Küchenplanung wegen Gechirrspüler

;D genau Kerstin - das habe ich mit Variante 3 gemeint. (hätte ich das mal auch besser so geschrieben :-[)
 
AW: Hilfe bei Küchenplanung wegen Gechirrspüler

Hallo, diese Variante ist auch ok, aber wo bitte ist denn mein Kühlschrank ?
Darum brauche ich ja unbedingt einen Hochschrank . Kühlschrank Niesche 1,40cm (mitBioFresh)
Gruss Claudia

PS: Auf Mikro kann verzichtet werden, ist nicht so wichtig.
 
AW: Hilfe bei Küchenplanung wegen Gechirrspüler

:-[ .. den hatte ich irgendwie außerhalb des Us gesehen und du hast unserem Text mit "Vorratsschrank" auch nicht widersprochen :cool::cool:
 
AW: Hilfe bei Küchenplanung wegen Gechirrspüler

... und hier ist der Kühlschrank. Jetzt mit 2 Hochschränken, finde ich dann für Stauraum besser.

Alternativ hier den Backofen an stelle des Hochschrankes nach unten und dann wieder einen Hängeschrank oben drüber. Auf keinen Fall den 80er und 90er auf der Kochfeldseite zerreissen.
 

Anhänge

  • kf_clauma123_20100905_EigVarUueberarbeitet2.kpl
    4,1 KB · Aufrufe: 118
  • kf_clauma123_20100905_EigVarUueberarbeitet2.POS
    12,8 KB · Aufrufe: 128
  • kf_clauma123_20100905_EigVarUueberarbeitet2_Ansicht1.jpg
    kf_clauma123_20100905_EigVarUueberarbeitet2_Ansicht1.jpg
    176,6 KB · Aufrufe: 124
  • kf_clauma123_20100905_EigVarUueberarbeitet2_Ansicht2.jpg
    kf_clauma123_20100905_EigVarUueberarbeitet2_Ansicht2.jpg
    228,9 KB · Aufrufe: 131
  • kf_clauma123_20100905_EigVarUueberarbeitet2_Grundriss.jpg
    kf_clauma123_20100905_EigVarUueberarbeitet2_Grundriss.jpg
    68,2 KB · Aufrufe: 130

Ähnliche Beiträge

Neff Hausgeräte Ballerina Küchen Blum Bewegungstechnologie Weibel - Intelligente Küchenlüftung

Neff Spezial

Blum Zonenplaner

Weibel Abluft-Tuning

Weibel Abluft-Tuning
Zurück
Oben