Fragen zu Planung einer Einbauküche

Venom

Mitglied
Beiträge
12
Hallo Zusammen,

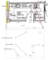
bei uns steht die Planung einer Einbauküche (unsere 1. :-[) an. Dazu hätte ich ein paar grundsätzliche Fragen. Wir möchten die Küche in L-Form bauen. Auf der längsseite soll von rechts nach links in der folgenden Reihenfolge die Geräte: Hochschrank mit Kühlschrank und Gefrierfach, kleiner Schrank (damit zwischen Ofen und Hochschrank etwas platz ist), Ofen, Geschirrspülmaschine, Waschbecken.
Das Maß von der rechten Wand bis zum Ofen Anschluss ist 1,32 m, und das Maß von der rechten Wand bis zur Mitte der Wasseranschlüsse ist 1,96 m. Nun mal ein paar Fragen dazu.

  1. Muss das Waschbecken vor den Wasseranschlüssen stehen, oder kann auch die Spülmaschine davor stehen?
  2. Ist es möglich den Abtropf des Waschbeckens über die Spülmaschine zu machen?
  3. Wäre eurer Meinung nach ein Eckwaschbecken bei der Lage der Wasseranschlüsse möglich?
  4. Würde man in diese Küche eine 60cm Geschirrspülmaschine bekommen oder ist wahrscheinlich nur Platz für einen 40cm Geschirrspüler ?
  5. Um mit einem Budget von 3000 bis maximal 4000€ hin zu kommen welche Küchenmarke / Einrichtungshäuser sollten wir uns genauer anschauen?
Vielen Dank schon mal für Eure Hilfe

Gruß
 

Anhänge

  • Namenlos.jpg
    Namenlos.jpg
    38,4 KB · Aufrufe: 240
AW: Fragen zu Planung einer Einbauküche

Hallo Venom,

willkommen im Forum.

Kurze Einweisung: Es gibt hier auch eine Suche-Funktion. Da kannst Du häufig gestellte Fragen abrufen, sowie die Grundthemen einer Küchenplanung .

.... und nun zu Deinen Fragen: :-)

1. Nein, muss es nicht. Die Arbeitsplatte müsste dann nur übertief geplant werden, und die Anschlüsse sollten möglichst auf Putz verzogen werden.

2. Die Abtropffläche kann über den Geschirrspüler laufen.

3. Wo steht, wie lang die Wand ist? Eine Eckspüle benötigt 90 cm Schenkellänge plus ein wenig Arbeitsplattenüberstand.

4. Eine Standardzeile mit Geschirrspüler ist 280 cm lang.

5. Würde ich später klären. :cool:
 
AW: Fragen zu Planung einer Einbauküche

Danke schon mal für die Antworten.

Die Küche ist 3,175m lang und die kurze Seite mit Fenster ist 2.13m lang. Ist im Plan vielleicht nicht ganz so deutlich zu sehen.

Was bedeutet übertief geplant?

Ist bei einer Standardzeile mit 2.8 m dann ein Geschirrspüler mit 60cm drin?
 
AW: Fragen zu Planung einer Einbauküche

Übertief: "lang" ist alles, deshalb gibt es bei Möbeln usw die Begriffe breit, hoch und tief ("in die Tiefe des Raumes gehend"). Normale Arbeitsplatten und die Schränke drunter sind 60cm tief; wenn du die Arbeitsplatte tiefer machst, zB 75cm, dann kannst du normale Schränke mit 15cm Luft zur Wand aufstellen und dahinter die Wasserrohre verlegen.
 
AW: Fragen zu Planung einer Einbauküche

So, ich hab jetzt mal versucht meine ersten beiden Planungsvarianten zu machen. Allerdings weiß ich nicht ob das Ganze so funktionieren kann. Bei Kueche_02 musste ich den Schrank unter der Spüle 42,5 cm breit machen damit ich vom Maß hingekommen bin. Ist das so möglich? Bei Kueche_03 habe ich den Geschirrspüler nach links verlagert. Ist sowas Schlauchtechnisch möglich? Evtl wollen wir aus dem L auch ein U machen, aber da sind wir uns noch nicht sicher.
Wäre schön wenn mal einer von euch Profis einen Blick auf die Planungen werfen könnte.
 

Anhänge

  • kueche_03.jpg
    kueche_03.jpg
    38,7 KB · Aufrufe: 234
  • kueche_02.jpg
    kueche_02.jpg
    33,8 KB · Aufrufe: 232
  • Kueche_03.POS
    4 KB · Aufrufe: 225
  • Kueche_03.KPL
    4,1 KB · Aufrufe: 230
  • Kueche_02.POS
    4 KB · Aufrufe: 231
  • Kueche_02.KPL
    4,1 KB · Aufrufe: 228
AW: Fragen zu Planung einer Einbauküche

Hallo Vernom

wenn Du die SpüMa übereck ist von der Wasserleitung her kein Problem - ABER Du kannst dann nicht in einem Arbeitsschritt Essensreste entsorgen und SpüMa einräumen ;-) - sehr unpraktisch also.

Zwischen Spüle und Herd ist die Hauptarbeitsfläche, von daher ist es Sinnvoll die beiden etwas auseinander zuziehen, damit man gut Arbeiten kann. Gleichzeitig solltest Du immer auf Ellenbogenfreiheit achten (Spüle, BO, Kochmulde).

Bei eurem Budget musst Du Dir keine Gedanken über eine Eckspüle machen; das reicht für einen Standard-Küchenblock (280cm), da sind alle Geräte drin. Du darfst an dem Block nichts verändern, es wird sonst viel teurer. vor das Fenster und an die gegenüberliegende Wand kannst Du mit IKEA oder Baumarktmöbel noch günstig zusätzliche Arbeitsfläche und Stauraum schaffen.
 
AW: Fragen zu Planung einer Einbauküche

Hallo,

Also wir möchten schon eine L-Küche und nicht nur einen 2,8m Block. Da würde ja eine Lücke von 40 cm bleiben. Was müsste man denn für eine L-Küche preislich rechnen? Und würde das wie oben schon mal gefragt so hinhauen wie ich es in der Planung gemacht habe (also mit dem schmalen Spülenschrank)?

Gruß
Venom
 
AW: Fragen zu Planung einer Einbauküche

nimm lieber einen spülen-Eckschrank, dann kannst Du wenigstens ein grosses Spülbecken reinhängen; ein 40cm Spülenschrank geht zwar, aber das Becken taugt ja nix.. wie willst Du da einen Topf oder eine Pfanne gescheit Abwaschen
 
AW: Fragen zu Planung einer Einbauküche

Was müsste man den preislich rechnen wenn man eine Eckspüle nimmt? Oder wäre es Anschlusstechnisch auch denkbar, dass man die Spüle auf die kurze Seite unter dem Fenster macht?

Gruß
Venom
 
AW: Fragen zu Planung einer Einbauküche

Ein Spüleneckschrank ist KEINE Eckspüle .. zu der würde ich Dir NIE raten ;D

Je nachdem wo das Abwasser genau sitzt (höhe) geht das mit der Leitung durch die tote Ecke (bzw. den in die Ecke offenen Spüleneckschrank
 
AW: Fragen zu Planung einer Einbauküche

OK.
Was genau ist denn ein Spüleneckschrank?
 
AW: Fragen zu Planung einer Einbauküche

.. der Schrank ist zur Ecke hin offen ;-), da sitzt keine Seitenwangen
 
AW: Fragen zu Planung einer Einbauküche

Ich muss leider gestehen das ich mir immer noch nicht genau vorstellen kann wie das aussieht. Gibt es so einen Eckschrank im Alno Planer das ich den mal einbauen und mir anschauen kann?
 
AW: Fragen zu Planung einer Einbauküche

In meiner Küche ist ein Spüleneckschrank, weil in der Ecke der Heißwasserboiler hängt, an den man ja im Reparaturfall auch noch drankommen muss.

Von außen also ein Schrank neben der Ecke mit Drehtür (der mit dem orangen Handtuch drüber, Griff mit Absicht waagrecht mittig montiert):

Und so sieht das Innenleben aus: offen nach rechts in die Ecke hinein:

full
 
AW: Fragen zu Planung einer Einbauküche

Ah Ok. jetzt hab ich es geschnallt;-)
 
AW: Fragen zu Planung einer Einbauküche

Hallo Zusammen!

So, ich hab jetzt mal den Spüleneckschrank eingebaut. Gefällt mir soweit ganz gut. Jetzt wäre die nächste Frage. Was muss ich denn preislich so für die Küche rechnen? Und wo kaufe ich am besten? Welcher der folgenden Läden ist den zu empfehlen bzw. welcher nicht?
XXXLutz / Mömax / Obi Küchenwelt
Oder könnt ihr mir noch andere Geschäfte empfehlen?

Gruß
Venom
 

Anhänge

  • Kueche_04.KPL
    4,1 KB · Aufrufe: 224
  • Kueche_04.POS
    4,6 KB · Aufrufe: 214
AW: Fragen zu Planung einer Einbauküche

Den Grundriss hatte ich schon im 1. Beitrag rein.
Ich häng ihn hier noch mal an.
 

Anhänge

  • Namenlos.jpg
    Namenlos.jpg
    38,4 KB · Aufrufe: 211
AW: Fragen zu Planung einer Einbauküche

... und was ist mit deiner letzten Planung? Sollen wir jetzt alle erst die Dateien herunterladen, den Alnoplaner anwerfen und die Dateien öffnen, damit wir sehen, was du jetzt neu geplant hast? Und die Leute, die keinen Alnoplaner haben, sehen gar nichts? :-\;-);-)
 

Ähnliche Beiträge

Neff Hausgeräte Ballerina Küchen Blum Bewegungstechnologie Weibel - Intelligente Küchenlüftung

Neff Spezial

Blum Zonenplaner

Weibel Abluft-Tuning

Weibel Abluft-Tuning
Zurück
Oben