Unbeendet Eckschranklösung gesucht / Tresenaufteilung / Beleuchtung?

LarsZ

Mitglied
Beiträge
37
Moin Moin zusammen,

ich bin auf der Suche nach einer Ecklösung für unsere Küche.
Momentan gibt es zwei Ecken (hinten links und hinten rechts).
Die hinten links werden wir nicht umsetzen und aus der Konfiguration entfernen lassen und dort wieder einen 90cm Schubladenschrank links neben der Spüle installieren lassen.
Der Block mit Tresen links ist dann wieder abgesetzt vom restlichen L.

Allerdings gefällt uns die Aufteilung in der Planung gar nicht.
Symetrie sieht anders aus. Auch die Ecke hinten rechts ist mehr als tot.
Gibt es nicht heutzutage brauchbare Lösungen dafür?

Dann noch die Frage zum "Tresenbereich" in Arbeitshöhe vorne zum offenen Esszimmer.
Ist das schon das Optimum?

Welche blendfreie und arbeitsplatzausleuchtende Beleuchtung könnt ihr für die Hängeschränke empfehlen?
Zwei Steckdosen sind oberhalb der Hängeschränke auf der Spülenseite vorhanden.

Große Spüle ohne Abtropf-Fläche oder kleine Spüle mit Abtropf-Fläche?

Gruß, Lars

Checkliste zur Küchenplanung

Anzahl Personen im Haushalt: 4
Davon Kinder?: 2
Art des Gebäudes?: Bestandsbau, (kleinere) Umbauten möglich
Körpergrössen aller Hauptbenutzer (wegen Arbeitshöhe) in cm: 178 und 189
Brüstungshöhe des Fensters (in cm): 91,4 cm
Fensterhöhe (in cm):
Raumhöhe in cm:
Heizung:
Fussbodenheizung
Sanitäranschlüsse:
Ausführung Kühlgerät: integriert
Kühlgerät Größe: 140 cm
Ausführung Tiefkühl (TK)-Gerät: entfällt
Dunstabzugshaube:
Backofen etc. hochgebaut?:
Hochgebauter Geschirrspüler ?:
Kochfeldart:
Kochfeldbreite ca. (in cm)?: 80 cm
Spülenform:
Geplante Heißgeräte: 2 Öfen
Küchenstil:
Modern
Sitzmöglichkeit in der Küche / im Küchenbereich: Keine
Sitzmöglichkeit: Für wieviel Personen?: Nein
Sitzmöglichkeit: Tisch - wenn gesonderter Tisch oder offene Küche:
Gewünschte o. vorhandene Tischgröße:
Wofür soll der Sitzplatz in der Küche genutzt werden? Wie häufig?:
Welche Arbeitshöhe ist angedacht (in cm)?:
90
Was steht auf der Arbeitsplatte oder soll dort stehen?:
Welche weiteren Küchenmaschinen müssen in der Küche untergebracht werden?:
Was soll in der Küche außer den Standards untergebracht werden?:
Welchen Stauraum gibt es sonst noch?:
Was/wie wird gekocht? (Alltagsküche, Menüs, Snacks usw):
Wie häufig wird gekocht?:
Wird alleine gekocht? Oder auch gemeinsam? Mit und für Gäste?:
Was stört an der bisherigen Küche und was soll die neue Küche unbedingt können? Warum?:
Welche Mülltrennung soll in der Küche vorgehalten werden?:
Steht schon ein Küchenhersteller fest oder wird bevorzugt?:
Burger
Steht schon ein Gerätehersteller fest oder wird bevorzugt?: Bosch
Preisvorstellung (Budget): bis 15.000,-
------------------
Im Threadverlauf hinzugekommen:
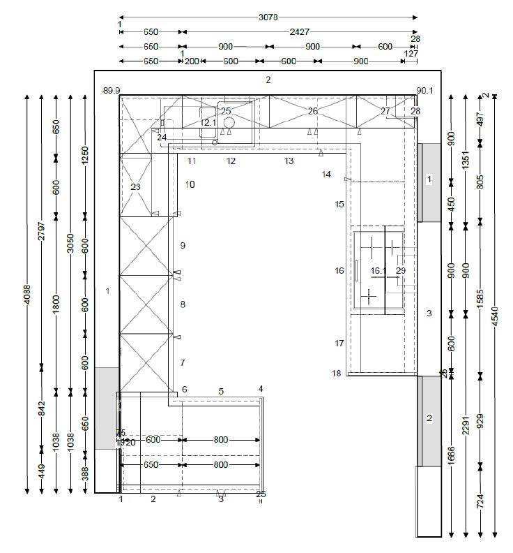
Grundriss der Planung aus der PDF-Datei (dort sind auch noch Ansichten)
Fenster rechts, planunten Tür zum Carport

larsz_201703_Plangrundriss.jpg

14 Jahre alter ursprünglicher Hausgrundriss, hier soll Tür von Flur geschlossen werden und Fenster/Carporttür sitzen wohl so, wie im obigen Küchenplan dargestellt.
grundriss-jpg.238596
 

Anhänge

  • Küche_Forum.pdf
    248,1 KB · Aufrufe: 260
Zuletzt bearbeitet von einem Moderator:
Sei doch bitte so nett und stelle noch einen Screenshot der Planung ein - die meisten haben keine Lust, extra Dokumente und Pläne zu öffen und so hat man es auf einen Blick.

Symmetrie würde ich nicht überbewerten, Funktionalität ist im Kochalltag doch wichtiger. Und: Warum tote Ecken gute Ecken sind - schau Dir das mal an.
 
Hallo Breezy,

danke für die Antwort.
Mit den Ecken hat sich das nach Recherche im oben genannten Link erledigt.
Ich werde die Schränke jeweils um 25cm links und rechts der Ecke vergrößern und die linke Ecke tot lassen.
Allerdings welchen Schrank bekomme ich links neben der linken Ecke unter?

Und was meinst du mit Skizzen?
In dem angehängten Dokument sind die Skizzen vorhanden.

Gruß, Lars
 
@LarsZ .. .du hast in deiner PDF vier SEiten Zeichnungen, die man genausogut als JPG-Dateien hier anhängen könnte.

Den Grundriss der Planung habe ich jetzt mal aus der PDF erstellt und schon oben eingehängt.
larsz_201703_plangrundriss-jpg.238565


Leider fällt auf:
  • schlampig ausgefüllte Checkliste, die ist sinnvoll, da wir sonst nicht wissen, was die Küche alles erfüllen muss. Uns aus Fließtext läßtt sich das immer schlecht ablesen. Da entnimmt man bei dir einen
  • Symmetriewunsch, leider keinen Wunsch nach zunächst Ergonomie und Funktionalät
  • es fehlt der Gesamtgrundriss, damit man erkennen kann, wie es weitergeht, wie Laufwege sind usw.
  • Halbinsel ... wofür soll die gut sein?
  • relativ enge Eingangsecke in den Küchenbereich, dafür dann Tanzsaal
  • Ihr seid groß, dennoch gebt ihr euch mit 91 cm Arbeitshöhe und nur 72 cm (= 5Raster) hohen Unterschränken zufrieden. * 6 Raster - was heißt das? *
 
Hallo @KerstinB,

ok, kann ich die Checkliste nochmal anpassen? Oder den ganzen Thread löschen?
Dann würde ich nochmal von vorne anfangen.

Was den Grundriss angeht handelt es sich um einen offenen Wohn/Ess/Küchenbereich.
Siehe neues JPG mit alter Küche.

Der "Tresen" soll mit Schranktüren vom Essbereich zugänglich sein.
Ebenso von der Küche aus.
Außerdem wollen wir mehr Arbeitsfläche zukünftig haben.

Eine andere Lösung für den Tanzsaal und der Eingangsecke fällt mir eigentlich nicht ein.
Sollen ja auch 2 Erwachsene und demnächst 2 Kinder drin arbeiten können.

6er Rastermaß frage ich an. Ob Burger-Küchen das hat? Danke für den Tipp!
 

Anhänge

  • Grundriss.jpg
    Grundriss.jpg
    118 KB · Aufrufe: 651
Zuletzt bearbeitet:
Hallo Lars, tote Ecken und 6er-Raster hast du ja schon gelernt. Ansonsten fällt spontan auf, dass mit unpraktischen Drehtürenschränken geplant wurde, auch die Linienführung am Hochschrankblock ist nicht schön. Der Engpass beim Küchenzugang mit dem Tresen ist ja bereits angemerkt worden, aber auch der Hochschrankblock hinter dem Tresen dient nicht zur ergonomischen Arbeitsplatzorganisation.

Desweiteren solltest du mal über hochgebauten GSP und MUPL (Forumsbegriff)

Summasummarum - eigentlich kann/sollte/muss alles neu geplant werden.
 
@Bärbel123,
da hast du definitiv Recht mit der Linienführung (nicht nur Hochschrankblock).
Keine Ahnung was der KFB sich dabei denkt. Knick in der Optik?
Welche Drehtürschränke meinst du genau?
Den ein oder anderen unten kann man sicherlich gegen einen mit Schubladen tauschen.
Hast du eine ander Lösung für den eventuellen Engpass?
Andere haben nur eine normale Tür zur Küche, die ist noch viel schmaler als der geplante Durchgang.
 
Irgendwie finde ich mich gar nicht zurecht im Vergleich vom Grundriss der geplanten Küche und dem Hausgrundriss. Sind das hellblaue in den Wänden Fenster/Terassentüren, die es im Hausgrundriss so noch nicht gibt, ist die eine Tür schon zugemauert?
 
Kopier die Checkliste in den nächsten Beitrag und füll sie aus.

Gesamtgrundriss:
grundriss-jpg.238596


und Küchengrundriss
larsz_201703_plangrundriss-jpg.238565


passen nicht zueinander.

Wie soll es also sein? Bitte Gesamtgrundriss mit aktuell geplanten Fenster, Türen und Terrassentür-Positionen und Maßen einfügen.

Wer soll denn den Arbeitsplatz eurer Halbinsel sinnvoll für welche Küchenarbeit nutzen?
 
Hallo zusammen,

der Hausgrundriss ist 14 Jahre alt. Ebenso die alte Küche.
Er dient nur zur allgemeinen Übersicht und der Laufwege.

Links in beiden Grundrissen ist eine Tür zwischen Diele und Küche vorhanden, die wir zukünftig nicht mehr nutzen wollen.
Das soll durch den 3. Hochschrank im Block, sowie Tresenteil mit hochgezogener Arbeitsplatz und Regalen verdeckt werden.

Rechts im Küchengrundriss mit 1 gekennzeichnet ist ein Fenster.
2 ist eine Tür zum Carport.

Der neue "Tresen" soll als Ablagefläche dienen, zum Beispiel zum Anrichten, und ab und zu von der Küche aus auch mal als Arbeitsfläche.

Es kann preislich nur eine Burger-Küche werden. Dann wohl kein 6er-Raster.

Gruß, Lars
 
@LarsZ ... wenn es dann sogar ein bestehendes Haus ist, dann fehlt Vermaßung Wasseranschluß, Angaben zu Heizung, Brüstungshöhe usw.

Ansonsten, kann ich leider nicht erkennen, was du dir jetzt von der Threaderöffnung erwartest.

Du hast doch bestimmt den Vorspann von diesem Forumsbereich gelesen. Du postet hier kleckerweise Informationen, die eigentlich alle zur Threaderöffnung abgefragt werden, bzw. im Vorspann angefragt sind.
 
Hallo LarsZ,

zu deiner Spülenfrage:
ich finde besser eine große Spüle ohne Abtropfe als eine kleine Spüle mit Abtropfe: in der großen Spüle kannst du auch mal Backbleche spülen und Töpfe bequemer. Abtropfen kann Geschirr auf einem untergelegten Geschirrtuch, einer mobilen Abtropfe oder auch Geschirr oder Zutaten "auf der Spüle": für breite Spülen gibt es Abtropfen, die über einen Teil der Spüle gelegt werden.

zu deinem Plan:
  • nicht optimal (wenn du eine ganz neue Planung möchtest gib die Daten, dann wird dir geholfen)
  • ich finde den Raum zwischen linker und rechter Zeile mit 180/190 sehr/zu breit
  • die Küche ist groß - warum willst du Ecklösungen (zu deiner Frage: es gibt nix Tolles) besser Ecken vermeiden oder tot lassen - zumindest bei so viel Platz
  • ist Burger schon unterschrieben oder was heißt: es kann bei dem Preis nur Burger sein?
 
In Sachen Spüle stimme ich Sommerfrucht völlig zu.
Die Eckschränke sehe ich toleranter ;-) Ich habe letztens eine Küche mit überschnittenen Ecken gesehen, was das Raumgefühl innerhalb des U's schöner gemacht hat (ganz subjektiv meine Meinung) und durch die Form der Ecke war die Tür zu diesem Eckschrank keine Falttür, die finde ich schlimm. Diese Tür hat ca 45cm, was für mein Pötte reicht, und das Rondell dahinter ist ein kompletter Kreis (also zwei, siehe Screenshot). Finde das schon viel Stauraum, ja, man kann sicher ausrechnen, dass anders ein paar qcm mehr rausspringen, aber ich finde die Lösung auch eine wenigstens erwähnenswerte. Allerdings nicht wenn's auf den Euro ankommt, fürchte ich. LG!
 

Anhänge

  • IMG_5794.PNG
    IMG_5794.PNG
    339,8 KB · Aufrufe: 338
Ich habe seit 18Jahren so einen Eck-US mit überschnittener Ecke und einem Rondell. Die Tür ist bei mir allerdings nur 40 cm breit.
Ich bin so froh wenn ich das Ding endlich los bin. Zum Putzen kann man sich auf den Boden legen und bis ganz in die Ecke schafft man es doch nicht. Das gleiche wenn mal ein Deckel daneben fällt. VG
 
Angaben zur Heizung habe ich gemacht (Fußbodenheizung).
Brüstungshöhe (914mm) des Fensters erkennt man im ersten Dokument. Ebenso Wasseranschlüsse.
Ja tut mir leid, hätte ich auch in der Checkliste eintragen können.

Danke @Sommerfrucht
Wir stellen uns als Spüle die von V&B Subway 330902 (600 x 510 mm) oder Franke 124.0335.706 Mythos MTK 610-58 Keramik Glacier (580 x 510 mm) vor.
Wie möchtest du den Raum denn zwischen linker und rechter Zeile besser nutzen?

Was die Auswahl an Küchenmöbeln und E-Geräten angeht ist das alles kompliziert.
Geräte von Bosch & Möbel von Burger sind fix.
Im 3er Block hätten wir gerne 2 Öfen und einen 140cm Kühlschrank ohne Gefrierschrank.
Scheint nicht leicht zu sein dort etwas mit schöner Linienführung zu finden.
In der rechten Zeile planen wir ein 80cm Induktionsfeld und 90cm Schrägesse.
In der Zeile mit der Spüle kommt der Geschirrspüler zum Einsatz.
Die Ecke links soll entfallen. Somit hätten wir eine L-Form plus abgesetzten 3erBlock plus "Tresen".
 
Tja ... und jetzt weiß ich immer noch nicht, was du eigentlich willst?

Aus der Ansicht mit dem Wasseranschluß hättest du ja mal eine Bilddatei machen können, die gewünschten Spülen zur Herstellerseite verlinken können und die Checkliste fehlt auch immer noch. Die drei / vier Infos, die du jetzt nachgeliefert hast, habe ich entsprechend eingetragen ... aber ohne Kochverhalten usw. wie sollen wir da etwas raten. " Öfen .. tja, in der Checkliste hätte man sie auswählen können.

Jedenfalls ist so ein Rondellschrank immer die schlechtere Lösung ggü. einem Auszugsunterschrank, denn im Auszugsunterschrank hat man von oben die komplette Übersicht über alles, was im Auszug ist. Bei einem Rondell sieht man immer nur den einen Topf.

Linienführung ist Sache der Kombination Wissen des KFB und Möglichkeiten des gewählten Herstellers.
 
...und beim Händler wg. Bauformat willst Du nicht fragen? Ist alles eine Firma und preislich müsste es auch machbar sein, zumal der Preis u.a. vom Frontmaterial, Griffe, APL, Schrankgröße und -typ u.v.m. abhängig ist.

Die Checkliste kannst Du nicht nachträglich ergänzen, aber wenn Du die fehlenden Angaben in einem Kommentar hier schreibst, kümmert sich KerstinB um die Eintragung im Eingangspost.
 

Ähnliche Beiträge

Neff Hausgeräte Ballerina Küchen Blum Bewegungstechnologie Weibel - Intelligente Küchenlüftung

Neff Spezial

Blum Zonenplaner

Weibel Abluft-Tuning

Weibel Abluft-Tuning
Zurück
Oben