Evelin
Gast
- Beiträge
- 27.354
ist 88.5cm Unterkante Fensterbrett?
Ich hatte nach der Höhe des Fensters gefragt, denn das stimmt nicht mit 87.
Und wenn der Raum planoben breiter ist, wie breit ist er denn dann an den anderen Ecken?
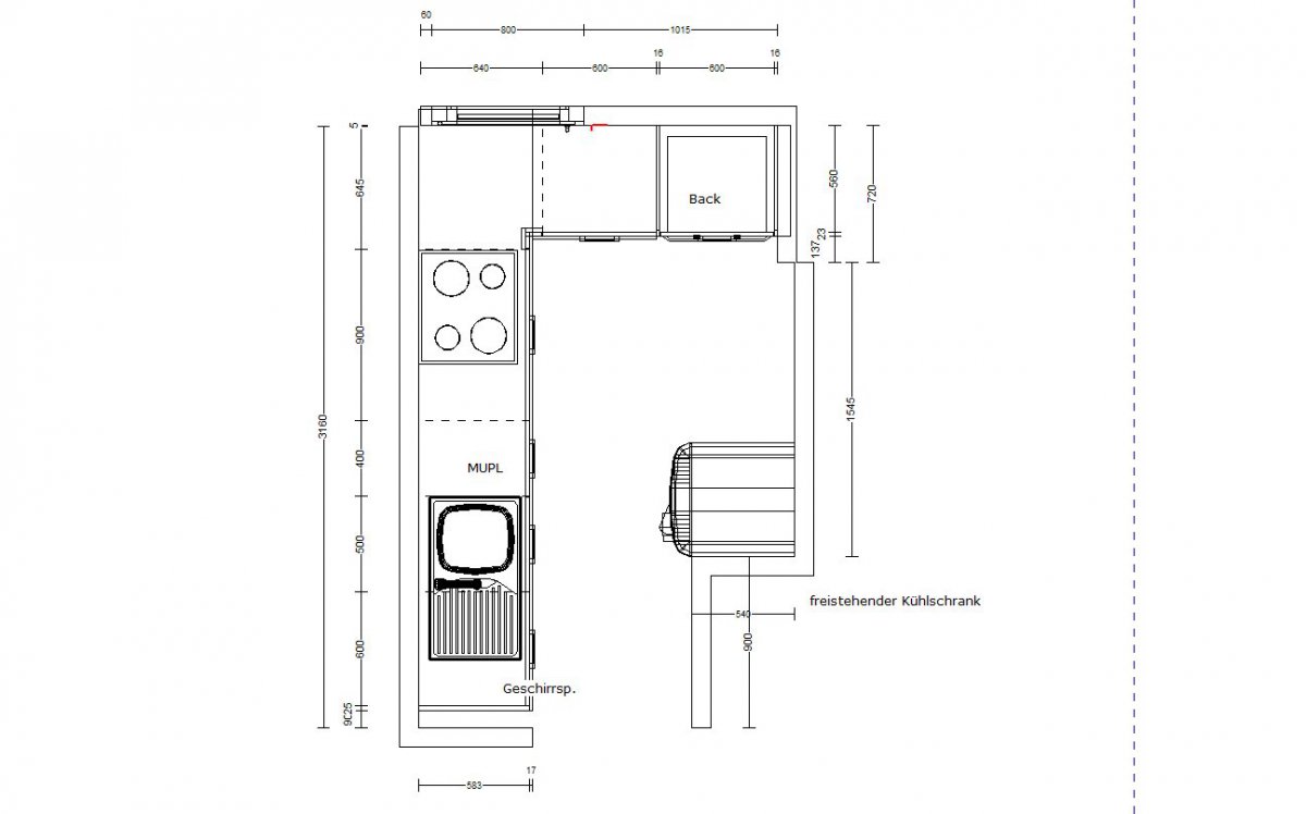
Mit den alten Massen hatte ich diesen Plan erstellt, 45er GSP, 50er Spülen US, Kochen vor dem Fenster mit Deckenlüfter .

Ich hatte nach der Höhe des Fensters gefragt, denn das stimmt nicht mit 87.
Und wenn der Raum planoben breiter ist, wie breit ist er denn dann an den anderen Ecken?
Mit den alten Massen hatte ich diesen Plan erstellt, 45er GSP, 50er Spülen US, Kochen vor dem Fenster mit Deckenlüfter .

