U-Küche im Neubau

ah-hof

Mitglied
Beiträge
21
Hallo,

im Mai geht der Neubau unseres neuen EFH los. Die Eingabeplanung ist durch, nun gehts an die Details und natürlich da auch zur Küche.
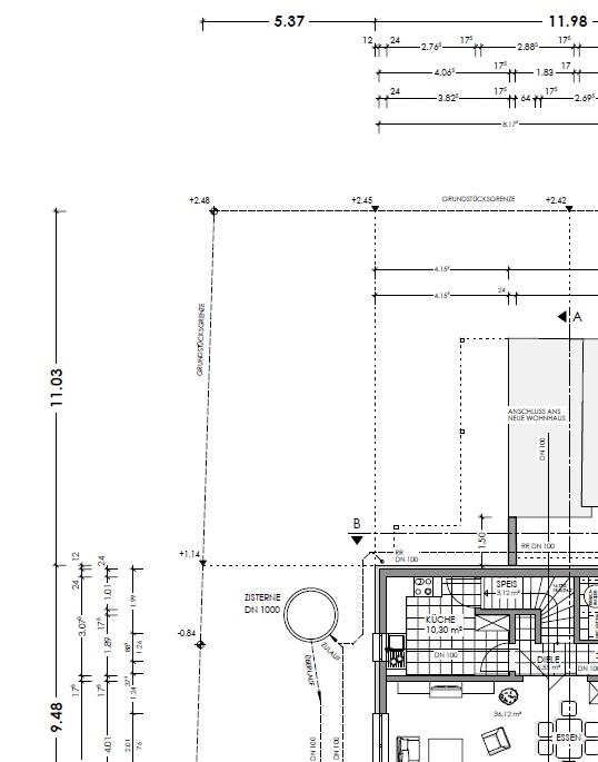
Anschlüsse sind deshalb noch frei positionierbar.
Wir haben uns bewusst gegen den Trend der offenen Küche entschieden, hauptsächlich wegen der Thematik Fett und Geruch im Wohnraum.
Das Haus an sich ist Hanglage, Eingang ist im EG, die Küche Esszimmer, + Wohnzimmer im UG mit direkten Zugang auf die Terrasse. Der Raum unter der Trreppe wird als Speisekammner verwendet.
An Geräten haben wir folgende Geräte die übernommen werden sollen: Kühlschrank, Side by Side von Samsung, Siemens Backofen und Bauknect Induktionskochfeld (80cm) jew autark. Geschirrspüler derzeit ist nicht integrierbar, hier würden wir einen neuen voll integrierbaren nehmen.
Das Haus wird eine zentrale Lüftungsanlage haben, wir werden deshalb eine gute Umlufthaube brauchen.

Aktuell lassen wir mal die ersten Angebote rechnen. Beim Umsehen in Küchenstudios sind uns Küchen mit runden Ecken ins Auge gestoßen, Marke Schüller , oder Nolte Softform. Budget hatten so 5000€ gedacht, zur Not würden wir mit einer IKEA Küche preislich auch gut damit hinkommen.
Die Menge der Küchenmöbel ist an sich ja nicht so groß, Elektrogeräte werden nicht viele gebraucht, ist eine der genannten "Traumküchen" grob in dem Budget drin?

Freue mich schon auf weiteren Input dazu.

Gruß,
Andreas

Checkliste zur Küchenplanung

Anzahl Personen im Haushalt: 2
Davon Kinder?:
Art des Gebäudes?:
Neu-/Umbau, Planänderungen nicht möglich
Körpergrössen aller Hauptbenutzer (wegen Arbeitshöhe ) in cm: 175 und 165
Brüstungshöhe des Fensters (in cm): 89
Fensterhöhe (in cm): 126
Raumhöhe in cm: 265
Heizung: Fussbodenheizung
Sanitäranschlüsse: vollkommen variabel
Ausführung Kühlgerät: Side by Side ca. 90cm breit
Kühlgerät Größe: bis 178 cm Höhe
Ausführung Tiefkühl (TK)-Gerät: Im Kühlschrank bis 2 Schubladen unten
Dunstabzugshaube: Umluft
Backofen etc. hochgebaut?: Ja
Hochgebauter Geschirrspüler ?: Wenn möglich
Kochfeldart: Induktion
Kochfeldbreite ca. (in cm)?: 80
Spülenform: 1,5 Becken mit Abtropffläche
Geplante Heißgeräte: Standmikrowelle, Backofen
Küchenstil: Modern
Sitzmöglichkeit in der Küche / im Küchenbereich: Überstehende Arbeitsplatte
Sitzmöglichkeit: Für wieviel Personen?: für 2 Personen
Sitzmöglichkeit: Tisch - wenn gesonderter Tisch oder offene Küche: Wird nach Bedarf neu gekauft
Gewünschte o. vorhandene Tischgröße: "Bistrotisch"
Wofür soll der Sitzplatz in der Küche genutzt werden? Wie häufig?: schnelles Frühstück, Snack
Welche Arbeitshöhe ist angedacht (in cm)?: 90
Was steht auf der Arbeitsplatte oder soll dort stehen?: Kaffeemaschine, Toaster
Welche weiteren Küchenmaschinen müssen in der Küche untergebracht werden?: Wasserkocher, Handrührgerät, Mixer
Was soll in der Küche außer den Standards untergebracht werden?:
Welchen Stauraum gibt es sonst noch?:
Geschirr/Gläserschrank im Wohn-/Esszimmer, Speisekammer, Keller
Was/wie wird gekocht? (Alltagsküche, Menüs, Snacks usw): Schnelles Essen, Wochenende Braten, Menüs vielleicht 2-4 * im Jahr
Wie häufig wird gekocht?(fast) täglich 1x warm[/COLOR]
Wird alleine gekocht? Oder auch gemeinsam? Mit und für Gäste?: 50:50 allein zu zweit. Mit Gästen eher Raclette, Fondue etc.
Was stört an der bisherigen Küche und was soll die neue Küche unbedingt können? Warum?:
Welche Mülltrennung soll in der Küche vorgehalten werden?: Biomüll, Gelber Sack Müll, Restmüll
Steht schon ein Küchenhersteller fest oder wird bevorzugt?: Nolte, Schüller
Steht schon ein Gerätehersteller fest oder wird bevorzugt?:
Preisvorstellung (Budget): bis 5.000,-

---------------
Im Threadverlauf hinzugekommen:
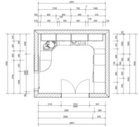
21.03.2015 Gesamtgrundriss UG als Bild aus PDF:
Planoben ist NORDEN

ah-hof_201503_GesamtgrundrissausPDF.jpg
 

Anhänge

  • Küche.pdf
    20,9 KB · Aufrufe: 327
  • PLAN1.KPL
    3,9 KB · Aufrufe: 207
  • PLAN1.POS
    6 KB · Aufrufe: 205
  • Plan_Küche(1).jpg
    Plan_Küche(1).jpg
    76,4 KB · Aufrufe: 280
Zuletzt bearbeitet von einem Moderator:
Hallo Andreas und herzlich willkommen im Forum.

Im Moment ist im Forum wirklich sehr viel los, man kommt kaum nach.

Well, du bist doch etwas sparsam, was den Informationsfluß betrifft. Ein Miniscan einer Hausecke tut's nicht. Schön groß, dass wir die Maße sehen und lesen können (ich schreibe das leider jeden Tag immer wieder). Ihr kennt das Haus, wir nicht.

also die Ecke in pdf oder eben entsprechend gross als jpg und idealerweise den Etagengrundriss auch, dass wir wissen, wo's lang geht.

Zu einer ALNO Planung gehören

kpl + pos datei
ein Bild des Alno Grundrisses (mit dem snipping tool von windows)
und ein paar Bilder deiner Planung

Auch das schreibe ich wieder und wieder. Ihr seht selbst wieviel Planungswünsche pro Tag eingehen. Nicht jeder, der kommentieren möchte, hat den Alno Planer auf seinem Gerät aus verschiedenen Gründen und nicht jeder móchte deine Planung, um nur mal zu schauen, deine Planung hochladen, Alno anwerfen usw.
 
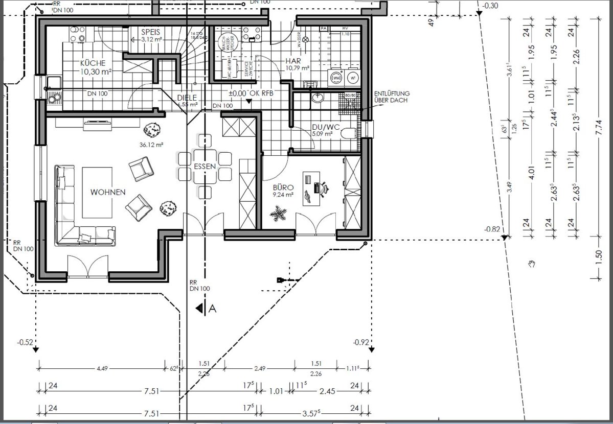
Danke ich habe jetzt mal folgende Dateien angehängt:
-Grundriss UG komplett
-3D-Ansicht aus dem Schüller Planer, da man damit schön die runden Kanten darstellen kann, und der Alno Planer am PC irgendwie nicht richtig funktioniert.
-Grundriss Schüller Plan
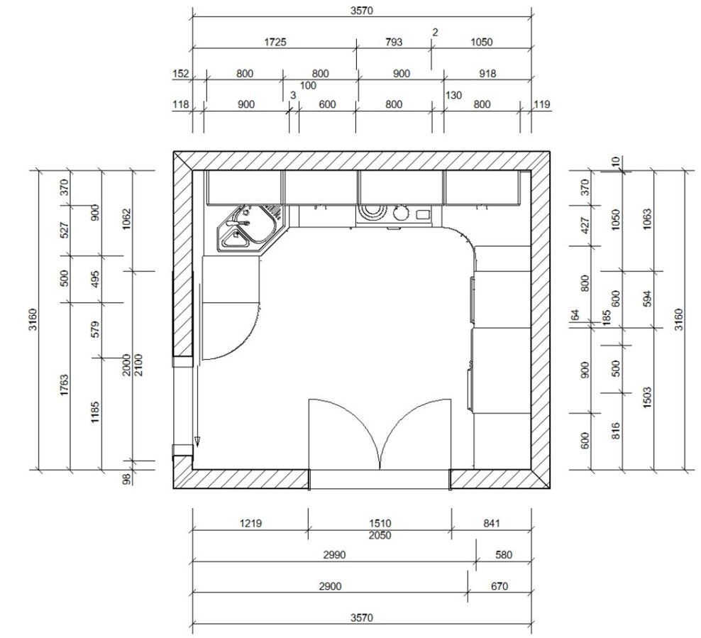
-Grundriss mit Maße der Küche
 

Anhänge

  • UG.JPG
    UG.JPG
    111,3 KB · Aufrufe: 202
  • KücheGrundriss.JPG
    KücheGrundriss.JPG
    36,7 KB · Aufrufe: 193
  • Küche3D.JPG
    Küche3D.JPG
    25,9 KB · Aufrufe: 201
  • Grundriss_Maße.JPG
    Grundriss_Maße.JPG
    84,4 KB · Aufrufe: 202
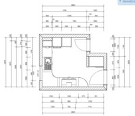
Ich kann die Küchenmaße nicht entziffern.
Bitte mach einen Ausschnitt des Grundrisses mit lesbaren Maßen.
 
hast du geprüft, dass der SBS in der Ecke aufgeht?

SBS Masse.jpg


Das kurvige Küchenbeispiel des KFB ist das so erwünscht?
 
Das mit dem SBS ist ein guter Punkt, hier muss ich tatsächlich nochmal schauen wie weit die Türen aufgemacht werden müssen um die Gemüseboxen zu öffen.

Wir haben am Wochenende in einem Küchenstudio die Nolte SoftForm Küche anschauen können, und haben sofort gesagt, wenn teuerer, dann diese (oder ggf die von Schüller ).
 
Mit dem SBS würde es gerade so gehen, ist zwar nicht ganz optimal, aber Tür geht auf, Schubladen gehen auch gerade so raus.
Alternatve wäre SBS und Higbord/Hochschränke für Ofen tauschen? Was würdet irh machen?
 
was soll ich sagen. Dein thread wurde zwischenzeitlich 275 mal angeklickt, aber niemand hat dir bei der Planung weitergeholfen.

Ich denke, dass auch andere wie ich an dem Raum verzweifeln. Ich will dich nicht verärgern und du hast sicherlich Gründe, warum die Küche an der Stelle ist, diese Form und Grösse hat. Aber mein allererster Eindruck ist der, dass das Haus geplant wurde und irgendwann jemand gemerkt hat, 'huch, wir brauchen ja noch eine Küche' und sie wurde dann in die Ecke verbannt mit einem kleinen Fenster. Auf dem Plan sieht es soaus, als wäre man strafversetzt, wo bei das in der Realität vielleicht anders wirkt.

Ich weiss nicht, ob ihr von zuhause aus arbeitet und deshalb das Arbeits-/Gästezimmer an prominenter Stelle ist. Aber man denkt natürlich als erstes, warum ist die Küche nicht da, wo Arbeiten steht mit Zugang nach draussen.

Ich habe schon mehrfach geschoben, aber nichts begeistert mich.
 
Zuletzt bearbeitet:
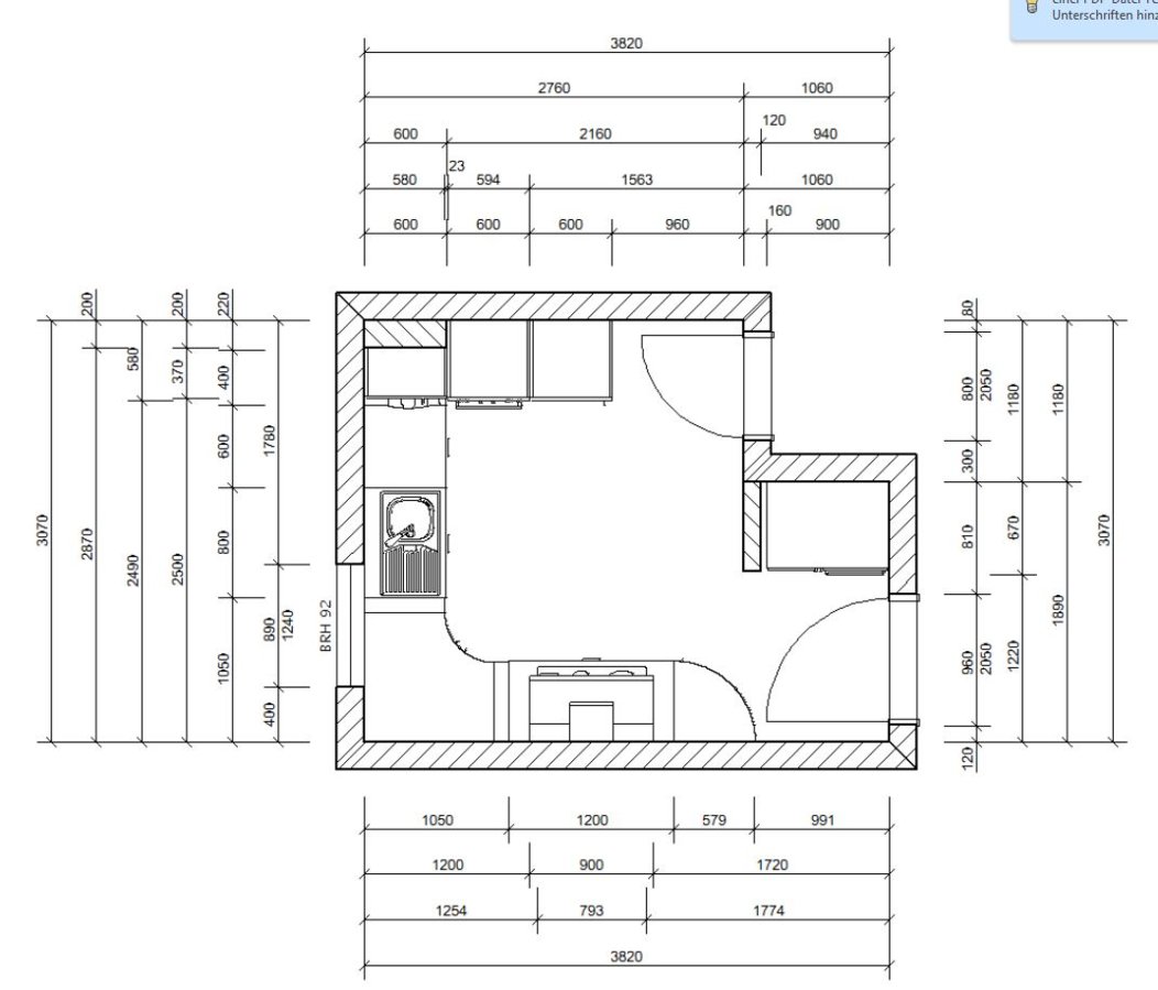
so, ich habe mit dem 6er Raster geplant. Die Trennwand zum SBS habe ich weggelassen, ansonsten kriegt ihr das teil nicht auf. Dazu kommt, deine Maße sind eventuell Rohbaumaße?

Die Reihenfolge MUPL -Spüle-GSP ist so gewählt, weil es vom Ablauf her gut klappt.

Ich hätte lieber MUPL in 30cm, Spüle in 60cm Breite gewählt und dafür die Kochzeile 5cm tiefer gemacht. Problem ist der Abstand am Zeilenende und gegenüberliegendem SBS. Im Moment sind es ca 70cm, dann wären es noch ein paar Zentimeter weniger.

Aber das müsst ihr selbst entscheiden, was als Durchgang noch angenehm ist.

Den SBS anstelle der HS zu stellen bringt nicht mehr. Einmal muss man links wieder Platz zum Öffnen der Gefriertür lassen und der Vorratsschrank wird dann nur 45cm breit. Siehe V2.

Hier Version 1

Ahh1.JPG


Ahh2.JPG Ahh3.JPG Ahh4.JPG Ahh5.JPG
 

Anhänge

  • Ahhof_Evelin_PLAN1.KPL
    3,9 KB · Aufrufe: 189
  • Ahhof_Evelin_PLAN1.POS
    6,3 KB · Aufrufe: 174
und hier V2

Ahh21.JPG


Ahh22.JPG
 

Anhänge

  • Ahhof_Evelin_PLAN2.KPL
    3,9 KB · Aufrufe: 179
  • Ahhof_Evelin_PLAN2.POS
    7 KB · Aufrufe: 175
Danke schon mal.
Der Abstand SBS und Kochzeile würde ja durch die runde Ecke entschärft werden.
Das Büro hatten wir kurz überlegt, aber wegen der Speisekammer unter der Treppe doch die Küche eher dort hinten gelassen. Von den Laufwegen nimmt sich beides nicht viel.
Aber man könnte es schon nochmal durchspielen, es ist ja noch nicht zu 100% in Stein gemeiselt: durch das bodentiefe Fenster ist ja maximal ein L in dem Raum möglich, die Tür zum Flur würde ggf entfallen (Flur jedoch dadurch dunkel, da Glastür) und eine Schiebtür Richtung Esszimmer. Die jetzige Küche wird zum Büro mit Abstellkammer. Evtl bäruchte man dann einen größeren Vorratsschrank in der Küche (links neben dem Fenster?).
+ direkter Zugang Esszimmer
+ direkter Zugang Außen
+ Helligkeit
- Laufweg vom Eingang
- dunkler Flur wenn Tür entfällt
- Speisekammer entfällt/zusätzlicher Vorratssschrank notwendig

Was evtl bei der Küche in der jetzigen Form noch funktionieren könnte wäre die Tür zur Speisekammer an die Stelle SBS zu verschieben (müsste ich nochmal mit der Baufirma abklären), damit hätte man an der hinteren Wand genug Platz für Backofen und SBS.
 
Ja, das halte ich für eine gute Idee!

Ich habs schnell mal umgestellt... Die Kochzeile kann dann auch etwas großzügiger aufgeteilt werden, in 40 - 80 - 80 - tote Ecke usw.
 

Anhänge

  • Ahhof.KPL
    3,9 KB · Aufrufe: 178
  • Ahhof.POS
    7,3 KB · Aufrufe: 191
  • ahhof grundriss.JPG
    ahhof grundriss.JPG
    28,9 KB · Aufrufe: 175
  • ahhof.JPG
    ahhof.JPG
    53,1 KB · Aufrufe: 200
  • ahhof1.JPG
    ahhof1.JPG
    68,3 KB · Aufrufe: 196
bei der runden Ecke kannst du keine Auszüge einplanen. So wie's Conny jetzt gedreht ist, ist das gut, da ist auch ausreichend Platz im Eingangsbereich.

aber vielleicht hat noch jemand Zeit und schiebt die Küche ins Arbeitszimmer.

Es wäre super, wenn du das EG als pdf gut vermaßt mal reinsetzten kann, denn jemand hat immer eine gute Idee.
 
Danke, mit der geänderten Speisekammer ist es auf jeden Fall um Weiten besser nutzbar, und wirkt nicht so verschachtelt, gefällt mir gut.
Die runden Schänke wäre ja vorne Regalböden und im Eck ein Karussel, da sehe ich kein Problem darin.

Anbei nochmal der Grundriss im UG, müssten denke ich alle relevanten Maße drin sein für das Büro.
 

Anhänge

  • GrundrissUG Kopie.pdf
    974,1 KB · Aufrufe: 253
so, hier mal kurz ein vorschlag ohne viele Worte, morgen mehr.

Da, wo die Küchentür war, kann auf der Flurseite eine Garderobe/Stauraum gestellt werden, wenn die badtür nach planoben geschoben wird.

Die grüne Fläche ist die geöffnete GSP Tür.

Wie gross soll der Esstisch werden?

Ahh211.JPG


Ahh22.JPG Ahh23.JPG Ahh24.JPG Ahh25.JPG
 

Anhänge

  • Ahh21.JPG
    Ahh21.JPG
    70,9 KB · Aufrufe: 200
  • Ahhof_Evelin_PLANARBEIT.KPL
    3,9 KB · Aufrufe: 169
  • Ahhof_Evelin_PLANARBEIT.POS
    12,6 KB · Aufrufe: 174
Vom Prinzip nicht schlecht, allerdings ist es 1 bodentiefes Doppelfenster, das sollte auch so bleiben.
Wäre ggf so was wie im Anhang praktikabel, oder doch lieber ein einfaches L?

Der Esstich ist 2x1m
 

Anhänge

  • Küche_Büro_G.jpg
    Küche_Büro_G.jpg
    30,3 KB · Aufrufe: 180
ne, da kannst du dich nicht rühren. Ausserdem ist die Halbinsel nicht tief genug, die Spritzer landen auf dem Boden. Stauraum und AP sind zu wenig.
 
OK dann ein L, und dann nochmal Vor und Nachteile von Büro und Küche vergleichen...
 
So noch mal ein bisschen Wände geschoben, das Gäste WC und der tote Raum im Flur entfernt (Duschbad nun 1,6m breit), sodass das der Büro Raum größer wird. nun kann man Küchentechnsich schon mehr damit anfangen. Neben dem SBS hat nun auch ein 60er Vorratsschrank Platz, Arbeitsfläche auch ausreichend, langsam gefällt mir diese Variante...
 

Anhänge

  • Büro_Küche.JPG
    Büro_Küche.JPG
    81,3 KB · Aufrufe: 184
  • Büro_Küche2.JPG
    Büro_Küche2.JPG
    59,4 KB · Aufrufe: 189

Ähnliche Beiträge

Neff Hausgeräte Ballerina Küchen Blum Bewegungstechnologie Weibel - Intelligente Küchenlüftung

Neff Spezial

Blum Zonenplaner

Weibel Abluft-Tuning

Weibel Abluft-Tuning
Zurück
Oben