offene Küche Neubau

karin1

Mitglied
Beiträge
5
Hallo zusammen,
auch ich benötige Eure Erfahrungen, Ideen und Tipps für die Küche in meiner neuen Eigentumswohnung.
Zeit ist eigentlich noch genug, nur hätte ich gerne die Küche schon fertig geplant wenn mein Bauträger den Installationsplan anfordert.
Da ich nur mit einem alten Laptop arbeite und auch nicht so erfahren im Internet bin benötige ich sicher auch technische Unterstützung. Dafür schon herzlichen Dank.
Ich freue mich schon auf Eure Meinungen und Ideen.
Ich schicke (wenn es denn klappt) einen Plan. Ich hätte schon gerne eine Insel oder Halbinsel mit der Spüle auf der Inselvund viel Stauraum

Checkliste zur Küchenplanung

Anzahl Personen im Haushalt: 1
Davon Kinder?:
Art des Gebäudes?:
Neu-/Umbau, Planänderungen möglich
Körpergrössen aller Hauptbenutzer (wegen Arbeitshöhe ) in cm: 162 cm
Brüstungshöhe des Fensters (in cm): bodentief
Fensterhöhe (in cm): bodentief
Raumhöhe in cm: Neubau
Heizung: Fussbodenheizung
Sanitäranschlüsse: vollkommen variabel
Ausführung Kühlgerät: Integriert im Hochschrank (60cm)
Kühlgerät Größe: noch unbekannt
Ausführung Tiefkühl (TK)-Gerät: Im Kühlschrank bis 2 Schubladen unten
Dunstabzugshaube: Umluft
Backofen etc. hochgebaut?: Nein
Hochgebauter Geschirrspüler ?: Wenn möglich
Kochfeldart: Induktion
Kochfeldbreite ca. (in cm)?: 60 ?
Spülenform: 1 Becken ohne Abtropffläche
Geplante Heißgeräte: Backofen
Küchenstil: Modern
Sitzmöglichkeit in der Küche / im Küchenbereich: Arbeitsplatte in Tischhöhe
Sitzmöglichkeit: Für wieviel Personen?: für 2 Personen
Sitzmöglichkeit: Tisch - wenn gesonderter Tisch oder offene Küche: Keiner
Gewünschte o. vorhandene Tischgröße:
Wofür soll der Sitzplatz in der Küche genutzt werden? Wie häufig?:
täglich
Frühstück
Zeitung lesen

Welche Arbeitshöhe ist angedacht (in cm)?: 90 cm
Was steht auf der Arbeitsplatte oder soll dort stehen?: Obstschale
Welche weiteren Küchenmaschinen müssen in der Küche untergebracht werden?: Toaster, Sonstiges (evtl. im Beitragstext benennen)
Was soll in der Küche außer den Standards untergebracht werden?: ALLE Vorräte, Getränkekisten, Staubsauger/Wischer etc., Bügelbrett, Geschirr komplett (nichts in Ess-/Wohnzimmer)
Welchen Stauraum gibt es sonst noch?: Keller
Was/wie wird gekocht? (Alltagsküche, Menüs, Snacks usw): täglich kleine Mahlzeiten
Snacks

Wie häufig wird gekocht?: (fast) täglich 1x warm
Wird alleine gekocht? Oder auch gemeinsam? Mit und für Gäste?: meistens allein
1-3 x monatlich mit Familie/Freunden

Was stört an der bisherigen Küche und was soll die neue Küche unbedingt können? Warum?: an der bisherigen Küche stört nichts
auf meiner Wunschliste stehen:
leicht erhöhter Sitzplatz 58-60 cm (kein Barhocker)
keinerlei Geräte auf AP
hochgestellter Geschirrspüler
Müll unter der Arbeitsplatte
viel Stauraum
irgendwo einen Platz für Geschirrtücher

Welche Mülltrennung soll in der Küche vorgehalten werden?: Altpapier, Biomüll, Restmüll
Steht schon ein Küchenhersteller fest oder wird bevorzugt?: nein
Steht schon ein Gerätehersteller fest oder wird bevorzugt?: nein
Preisvorstellung (Budget): bis 20.000,-
 
Zuletzt bearbeitet:
Hallöle, und erst ein mal ganz herzlich :welcome: im Planungsboard .

an Alle mitlesenden, ich kenne Karin und versuche, ihr ein bisschen zu helfen.
Sie kommt mit Alno garnicht und mit dem Forum nur teilweise klar.

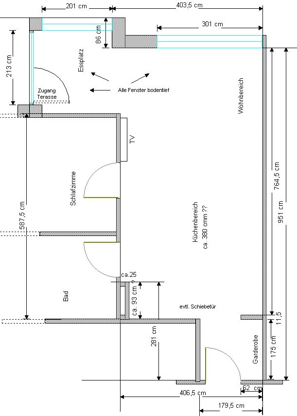
Ich habe mal ihren Grundriss gezeichnet, und den Plan eines Küchenstudios und stelle beide hier für Karin1 ein.

Hier die ganze Wohnung, die linke Seite ist abgeschnitten
Plan leer.jpg


Hier der Studio-Vorschlag, ich finde die Sitzbanklösung *nett*
Plan 1.jpg


Und, da Karin evtl. an eine Insellösung denkt, noch eine erste Studie zur Insel von mir
V99 fürs Forum.jpg

P.S.: Wer mich kennt und das Budget anschaut, wird ahnen, dass es wohl keine Sam werden kann
*winke*
Samy
 
Zuletzt bearbeitet:
Hallo Karin und herzlich willkommen.

Wenn ic es richtig verstehe, sollen auch Staubsauger und Bügelbrett in der Küche einen Platz finden.

bei 3 Hochschränken,

1 x Kühlschrank
1 x Geschirrspüler erhöht und Backofen (dann 45cm hoch) vielleicht darüber
1 x Staubsauger/Bügelbrett/Putzzeug.

Und wie hoch sollen die Hochschränke werden?

Wie gross ist der Toaster (wegen Auszugshöhe)? Oder ist es ok, wenn er auf der Rücksiet untergebracht ist (40cm tief, Fachboden, Steckdose im Schrank)?

Wie gross soll der Ansatztisch/Theke werden?

Der Backofen soll auch eine Microwellenfunktion haben? Ich frage deshalb, um herauszufinden, wo der beste Platz dafür ist.

Getränkekisten haben verschiedene Höhen. Da wäre es gut, wenn du die Kiste abmessen könntest.
 
Zuletzt bearbeitet:
Hallo Evelin,
*eigentlich* will Karin ihren Backofen unterm Ceranfeld, dann wäre der Hochschrank Planoben frei für Küchenfremdes. Backofen ohne Mikrowelle , aber auf jeden Fall selbstreinigend (Pyrolyse ).
Es wird wohl auch überlegt die Küche nach planoben noch zu verlängern.
Danke für die erste Rückmeldung
Samy
 
ist es so gedacht?

Wandzeile von planoben
Sichtseite
80er US
60er US mit Kochfeld und Backofen
60er US
60er HS mit Kühlschrank
60er HS mit Geschirrspüler hochgebaut
60er HS für Staubsauger und co.
Blende

Die Insel von planoben

Ansatztisch 110x80cm
Sichtseite
80er US 1-1-2-2, 70cm tief
45er US 3-3 mit MUPL oben, Öle unten, 70cm tief
60er US 3-3 mit Spüle, 60cm tief
40er US 3-3, 70cm tief
Sichtseite

rückseitig 2 x 90er, 1 x 45er US mit Türen, 40cm tief

Die Insel ist ohne Tisch 225x110cm + Sichtseiten gross.

Im Plan sind die HS 225cm hoch, ich weiss nicht, welche Höhe Karin angedacht hat.

Karin1.JPG Karin11.JPG Karin2.JPG Karin3.JPG
 

Anhänge

  • Karin_Evelin_PLAN1.KPL
    3,9 KB · Aufrufe: 156
  • Karin_Evelin_PLAN1.POS
    10,5 KB · Aufrufe: 175
Danke Evelin !
Kann man auch so machen, aber ich habe mal wieder bisschen anders gedacht.
Kein Ansatztisch, sondern ganze Insel in der Länge,
ABER... auf der Inselinnenseite eine in die Möbel integrierte, ausziehbare Sitzbank (siehe Bild)

Die Zeile würde mir persönlich auch etwas anders gefallen...
Nicht planunten 3 Hochschränke, sondern dort nur 2 und einer planoben als Zeilenabschluss.
Evtl sogar noch einen Hochschank zusätzlich für Staubsauger...
Die Oberschränke so tief, dass das alles eine Frontfläche gibt

Schöne erste Planung Evelin :-)
Samy
Bank.jpg
 
hallo Evelin und Samy,
ich hoffe sehr, dass ich hier Hilfe finde.
So zuerst muss ich lernen planoben usw. zu verstehen und verinnerlichen.
Die Idee mit dem Ansatztisch ist mir sehr sympathisch, da stelle ich mir zwei gemütliche kleine Sessel vor. Habe ich denn da genug Platz?
Ja es soll auch Staubsauger und Bügelbrett in die Küche. Auch wünsche ich mir Platz für Drucker/Ordner. Ich denke aber dass ich dafür nur zwei 60 Unterschränke in der Inselrückseite benötige.
Zu deiner Frage wegen der Größe der Getränkekisten - hier bin ich sehr pragmatisch. Ich trinke dann das Wasser mit den in den Schrank passenden Kisten.
Ich dachte an drei Hochschränke:
- Vorratsschrank mit 5 Auszügen unten und oben Regale
- Getränkeschrank
- Besen/Staubsauger/Bügelbrett.
Diese drei Hochschränke habe ich an die Wand planoben (richtig?) angedacht da dahinter eine Schiebetür zum Eingang/Gaderobe verschwinden soll. Auch dachte ich die Schränke "einkoffern"
zu lassen.
Wie hoch die sein sollen? Keine Ahnung. Ich denke so hoch wie möglich. Ich möchte ja so viel Stauraum wie möglich und nicht wie nötig.
Toaster habe ich keinen. Ich möchte aber die kleine Kaffemaschine auch nicht auf der Arbeitsfläche.
Backofen mit Mikrowelle ? Keine Ahnung. Ich habe bis jetzt keine Mikro. Auch noch nie vermisst. Aber.. für Ratsschläge/Erfahrungen gerne offen.
Ist es irgenwie machbar meine Blickrichtung von der Spüle aus in Richtung Wohnzimmer/Terasse zu planen?
Liebe Evelin könnte man die Insel in deinem Plan auch an die planunten liegende Wand andocken? Und die freien 90 cm mit Hochschränken auffüllen? Ich muss ja eigentlich auf dieser Seite der Insel nicht durchlaufen.

Was die Küchenplanung betrifft habe ich leider im Moment meinen -durchaus vorhandenen Humor - verloren. Ich hoffe, dass ich ihn wiederfinde.
Jetzt schon herzlichen Dank für Deine/Eure Unterstützung.
 
Planoben bezieht sich auf die hier eingestellten Pläne und heisst nix anderes wie "oben im Plan"
Deine 3 zusätzlichen Schränke um die Schiebtür verschwinden zu lassen wären planunten, heisst unten im Plan.
 
Zuletzt bearbeitet:
@Schreinersam , ich habe deine Sitzbank und den HS am Ende der Zeile gesehen.

Weil aber planoben die einzige Tageslichtquelle ist, wollte ich die nicht verbauen.

Auch das mit der Sitzbank wäre mir zu umständlich, zumal Karin wohl alleine lebt. Und wenn Besuch kommt, glaube ich nicht dass beide dann nebeneinander sitzen wollen. Ganz abgesehen von den Kosten. Ich weiss nicht, wie alt Karin ist, und auf die Bank muss man auch erst mal hoch.

@karin1
gut, wegen der HS bedenke, dass du ganz oben eine Trittleiter brauchst. Ich bin 60+J alt und habe auf alles verzichtet, was ich nicht ohne Hilfe erreichen kann.

Die Insel unten andocken bedeutet mehr Laufen, will man auf die andere Seite. Das musst du für dich entscheiden, ob das dir nichts ausmacht. Mit Tisch sind es ca 390cm Insellänge

Den Ansatztisch würde ich in ganz normaler Tischhöhe nehmen, denn zwischen AP und Tischoberkante sind es ca 20cm Abstand. Da sieht gut aus, weniger eher komisch.

So, hier mal der Plan mit max Stauraum, angedockter Insel, die Insel ist 300x12Ocm tief. Die HS sind 217cm hoch, die AP Höhe 91cm.

Auf der Inselvoerderseite sind die US wieder übertief, 70cm, das erspart dir Lauferei um die Insel, weil es im Kochbereich mehr Stauraum gibt. Links von der Spüle habe ich im Plan geschrieben "Innenschublade". Aus optischen Gründen habe ich links von der Spüle auch einen 3-3 US genommen, oben aber noch eine Innenschublade vor geschlagen. Wir haben das auch so, darin ist unser Kaffeevorat.

Rückseitig 50cm tiefe US mit Auszügen. ABER, das passt nicht mit dem Wunsch, Ordner in der Küche zu verstauen. Dafür wären, wie in meinem ersten Vorschlag, 40cm tiefe US mit Türen rückseitig besser.

Da, wo die Kaffeemaschine steht, gehört noch eine Lifttür davor, sowie ein Tablar, um die Maschine herauszuziehen. Damit die Maschine nicht zu hoch steht, ist es vielleicht besser, dass die Geschirrspülmaschine nur 1 Raster, zB 13cm höher steht.

Leider lässt sich im ALNO Planer die Wandfarbe 'weiss' schlecht darstellen. Deshalb versuche ich mit anderen Farben einen Kontrast, damit man die Schränke besser erkennt.

Karin21.JPG Karin22.JPG Karin23.JPG Karin24.JPG Karin25.JPG Karin26.JPG
 

Anhänge

  • Karin_Evelin_PLAN2.KPL
    3,9 KB · Aufrufe: 155
  • Karin_Evelin_PLAN2.POS
    12 KB · Aufrufe: 152
Mal den Spieltrieb laufen lassen... (Version 89)
...und versucht alle bisher geäusserten Wünsche zu vereinen.
V-89.jpg


Der Stauraum müsste reichen, zu Mal alles Küchenfremde ausserhalb sein kann.
Die Arbeitsfläche ist nicht zu üppig, aber ausreichend, ich denke sogar dass man auf Hängeschränke verzichten kann.
Mal hören was Karin meint.

*winke*
Samy
 
Zuletzt bearbeitet:
nach telefonischer Intervention hier gleich noch die Version 88,
etwas angepasst.
V-88.jpg
Den Sitzarbeitsplatz finde ich jetzt ziemlich O.K., und da karin daran denkt, die Wohnung jetzt schon Rollstuhlgerecht einzurichten, ist auch das Arbeiten im Rollstuhl gewährleistet.
*winke*
Samy
 
im Moment soll das ja auch noch "normal" nutzbar sein @moebelprofis .
Man will nur die Möglichkeit haben, ohne in diesem Fall die komplette Küche rauszureissen.
Derzeit sind keine Anzeichen für Rollstuhl gegeben, und die beiden Bereiche sind relativ einfach umzurüsten, wenn es jemals der Fall sein sollte.
*winke*
Samy
 
Hallo, erneut vielen vielen Dank für eure Zeit und Mühe.
jetzt bin ich nur noch begeistert, aber auch noch mehr verunsichert.
Sowohl Evelins Plan2 als auch Samys V 88 Version sind genial.
Bei beiden habe ich einen schönen gemütlichen Sitzplatz mit einem oder zwei gemütlichen Sesseln. Bei Evelins Plan könnte ich sogar planunten an die Wand auf die Arbeitsplatte einen Rolladenschrank anbringen und dort die kleine Kaffemaschine verstecken dann spare ich die Lifttür und Tablar. Bei Samys Plan hätte icht noch Platz für eine Weinkühlschrank planoben in Richtung Wohnzimmer rechts neben der Spüle.
Nun was tun?
Wie gehts weiter? Wie finde ich die richtige Entscheidung? Was sind die nächsten Schritte?
Ich werde die nächste Zeit in mich gehen und wieder nächtens Vor- und Nachteile
durchdenken.
Liebe Grüße und schönes Wochenende
Karin
Ach ja Evelin Danke für den Hinweis mit der Höhe der Schränke und ja ich bin auch 60+.
Da es aber "nur" eine 2 1/2 Zimmer Wohnung ist dachte ich an soviel Stauraum wie möglich in der Wohnung. Ich werde aber deinen Hinweis beachten.
 
Ich würde eher den Ansatztisch von Evelin wählen, diesen könnte man auch etwas größer nehmen für bis zu 4 Personen.

Kommt ein weiterer Essplatz Nähe Terrassentür? Eigentlich ist es dafür mit 2x2m zu klein.
Wenn nein, dann würde ich dort einen Arbeitsplatz mit großen Schreibtisch einrichten, vors Fenster stellen mit Computer, Drucker und Ordner. Dann müssen diese Sachen nicht in die Küche. Und man hat schönes Tageslicht beim Arbeiten.
 
Rolladenschrank anbringen


Hallo Karin,

schau dir die Rolladenschränke aber nochmals an. Ich finde sie weder schön noch praktisch (ist natürlich nur meine persönliche Meinung und die Geschmäcker sind ja verschieden) und würde eine Variante mit Lifttüre, wie von Evelin vorgeschlagen, bevorzugen.

Mein Favorit in der eigentlichen Küchenform wäre bis jetzt Post No. 5 von Evelin,
(allerdings mit Lüfterbaustein und ruhig als "einzelnen Kasten" (also nur Beispiele, was ich mit "Kasten" meine:

Bildschirmfoto 2017-03-25 um 18.21.13.png


Bildschirmfoto 2017-03-25 um 18.23.36.png




oder angedockt an die Hochschränke:
Bildschirmfoto 2017-03-25 um 18.24.55.png

https://www.houzz.de/photos/88727049/moving-house-modern-kueche-melbourne



entweder "Kasten für Lüfterbaustein" deckenhoch oder ebenfalls eingekoffert, damit auf dem Kasten schon gar kein Schmutz anfallen kann.

PS: ich weiß, das ist jetzt mehr Feintuning, aber ich wollte aufzeigen, dass es auch dort viele Möglichkeiten gibt.
 
Zuletzt bearbeitet:
hier noch ein anderer Vorschlag mit Oberschränken. Am Ende der Zeile planunten ist der erhöht eingebaute GSP, darüber soll das eine Kaffeemaschine darstellen, diese wäre aber etwas tiefer (es gibt nur eine bestimmte Anzahl von Schränken im Planer und selbst basteln dauert zu lange).

Die Insel ist 120cm lang und 110cm tief, auf der Rückseite 40cm tiefe Schränke mit Türen. Wahrscheinlich sieht die Insel mit 100cm Tiefe besser aus, weil kurz.

Der BO ist in der HS Zeile gelandet, weil es sonst mit den OS nicht zusammenpasst.

Karin51.JPG Karin52.JPG Karin53.JPG Karin54.JPG

es wäre gut, wenn du uns etwas mehr "Richtung" vorgibst, was dir gefällt und was weniger vom Küchenstil
 

Anhänge

  • Karin_Evelin_PLAN5.KPL
    3,9 KB · Aufrufe: 147
  • Karin_Evelin_PLAN5.POS
    14,2 KB · Aufrufe: 158
Hallo DANKE allen.
ja Russini, bei der Terassentür soll ein kleiner runder Esstisch gestellt werden. Ich weiss, das wird eng oder sogar zu eng. Das will ich aber in Kauf nehmen, da der nur 1-2 mal im Jahr benützt wird.
Danke Magnolia für deinen Hinweis zu dem Rolladenschrank. Ich habe jetzt so ein Teil und finde das praktisch, da Küche immer aufgeräumt ist. Werde aber darüber nachdenken ob die Möglichkeit, die du meinst, auch geht.
Und ja Evelin du fragst zurecht nach. Jetzt gerade beschäftige ich mich mit deiner letzten Idee.
Ich finde sie elegant. Und mein Wunsch nach viel Stauraum wird auch befriedigt.
Warum hast du die Spüle nicht mehr auf der Insel? Ich finde auch den Kühlschrank nicht.
Zu deiner Frage in welche Richtung es geht.
Ich habe tatsächlich (leider) mehrere Fovoriten:
- deine letzte Version Plan5
- auch deine erste Idee im Post Nr.5, die auch Magnolia gefällt.
- Samys Version88 mit dem schrägen Tisch
- Die Sitzbanklösung vom Küchenstudio ? Wobei ich hier nicht glaube,dass das nicht so bequem ist
Was ist mir wirklich wichtig? Ich kann es leider gerade nicht beanworten. Hier zusammen mit euch nachzudenken hilft mir aber. Auch auf eure Fragen zu reagieren hilft mir meine tatsächlichen Bedürfnisse und Wünsche zu überdenken.
Wirklich sehr wichtig ist mir die Sitzmöglichkeit in der Küche. Ich dachte, dass es nur "bequem" ist in normaler Stuhlhöhe. Hat jemand über 60 J. hier Stühle in Arbeitsplattenhöhe?
Sitzt man da gut?
Ich habe vor meinen Augen die Lösung, die Magnolia gefunden hat und finde sie toll. Ich weiss nicht für meine Gegebenheiten geeignet. Ich schreibe das nur damit Ihr wisst was ich meine.
Liebe Grüße an alle.
Karin
 
Welche Lösung bezüglich der Sitzgelegenheit meinst du genau ?
Die 3 Fotos oben von mir waren eigentlich zur Verdeutlichung der Dunstabzugshaube.
 

Ähnliche Beiträge

Neff Hausgeräte Ballerina Küchen Blum Bewegungstechnologie Weibel - Intelligente Küchenlüftung

Neff Spezial

Blum Zonenplaner

Weibel Abluft-Tuning

Weibel Abluft-Tuning
Zurück
Oben