Offene Küche für Neubau

bernd23

Mitglied
Beiträge
17
Hallo liebe Küchenplaner,

wir planen unsere Küche für unser neues Häuschen. :-) Es soll eine offene, moderne Küche werden mit einer Insel.
Eigentlich dachte ich, so schwer wird das bei uns nicht. Eine Insel, eine Küchenzeile mit Oberschränken und an der Seite Hochschränke.
Aber der Teufel steckt im Detail :(

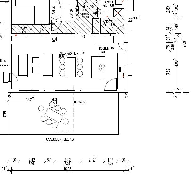
Was wir gerne hätten wäre ein kleine Sitzmöglichkeit an der Insel damit ich nicht immer im stehen Frühstücken sagt meine Frau ;D. Einen Tresen an die lange Seite der Insel wollte ich vermeiden um den Bereich zwischen Insel und Esstisch von 1,5m zu eng ( auch optisch ) zu gestalten. Der esstisch lässt sich noch etwas schieben aber für den Wohnbereich soll auch noch genügend Platz sein. Vielleicht wäre eine verschmälerte Insel die Lösung? Geplant waren 1,2m.
Der Raum selbst ist 10.38m lang. Im Planer waren nur 9m möglich.

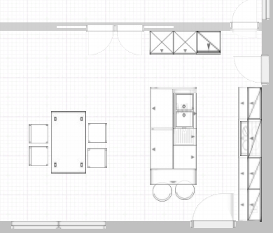
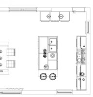
Ich habe mal geplan wir wir uns das in etwa vorstellen. Bei vielen bin ich etwas unsicher, sei es die Schrankbreiten Auszüge, Spüllösung, Müll. Die Oberschränke habe ich jetzt mal mittig und kürzer als die Unterschränke plaziert um die Küche nicht so an die Wand zu drängen, was meint ihr? Wir sind offen für neue Ideen und Vorschläge. Was die Anschlüssen anmelangt sind wir noch frei.
Bild1.jpg


Ich freue mich auf eure Ideen oder Meinungen.

Gruss Bernd



Checkliste zur Küchenplanung von bernd23

Anzahl Personen im Haushalt : 3
Davon Kinder? : 1
Körpergrössen aller Hauptbenutzer (wegen Arbeitshöhe ) in cm : 1,83 1,70 0,62
Art des Gebäudes? : Neu-/Umbau, Planänderungen nicht möglich
Brüstungshöhe des Fensters (in cm) : 1
Fensterhöhe (in cm) : 210
Raumhöhe in cm: : 2,50
Heizung : Fussbodenheizung
Sanitäranschlüsse : vollkommen variabel
Ausführung Kühlgerät? : Integriert im Hochschrank (60cm)
Kühlgerät Größe : noch unbekannt
Ausführung Tiefkühl (TK)-Gerät : Im Kühlschrank als kleines Fach oben
Dunstabzugshaube? : Umluft
Hochgebauter Backofen ? : Ja
Hochgebauter Geschirrspüler ? : nein
Kochfeldart? : Induktion
Kochfeldbreite ca. (in cm)? : 80
Spülenform: : 1,5 Becken mit Abtropffläche
Weitere geplante Heißgeräte : Standmikrowelle
Küchenstil? : modern
Sitzmöglichkeit in der Küche / im Küchenbereich als : Überstehende Arbeitsplatte
Sitzmöglichkeit: Für wieviel Personen? : für 2 Personen
Sitzmöglichkeit: Tisch - wenn gesonderter Tisch oder offene Küche : Wird nach Bedarf neu gekauft
Gewünschte o. vorhandene Tischgröße : 1.60 x 0.90
Wofür soll der Sitzplatz in der Küche genutzt werden? Wie häufig? : Frühstück, Zuschauer beim Kochen
Welche Arbeitshöhe ist angedacht (in cm)? : 98
Was steht auf der Arbeitsplatte oder soll dort stehen? : Kaffeemaschine, Wasserkocher, Messerblock
Welche weiteren Küchenmaschinen müssen in der Küche untergebracht werden? : Toaster, Handrührgerät, Pürierstab, Eierkocher
Was soll in der Küche außer den Standards untergebracht werden? : Geschirr komplett (nichts in Ess-/Wohnzimmer)
Welchen Stauraum gibt es sonst noch? : Speisekammer, Keller
Was/wie wird gekocht? (Alltagsküche, Menüs, Snacks usw) : Alltagsküche, Snacks
Wie häufig wird gekocht? : (fast) täglich 1x warm
Wird alleine gekocht? Oder auch gemeinsam? Mit und für Gäste? : sowohl als auch
Was stört an der bisherigen Küche und was soll die neue Küche unbedingt können? Warum? : zu klein, zu wenig Arbeitsfläche
Steht schon ein Küchenhersteller fest oder wird bevorzugt? : nein
Steht schon ein Gerätehersteller fest oder wird bevorzugt? : nein
Preisvorstellung (Budget) : bis 20.000,-
 

Anhänge

  • PLAN1.KPL
    4,1 KB · Aufrufe: 180
  • Grundriss.jpg
    Grundriss.jpg
    49,8 KB · Aufrufe: 234
  • PLAN1.POS
    7,8 KB · Aufrufe: 192
AW: Offene Küche für Neubau

:welcome:

im Küchen-Forum.

Schöne Thread-Eröffnung und die Zahlen auf dem Grundriss sind lesbar.

Noch eine Frage: Wie lang ist die Wand zwischen Speisekammer- und der Schiebetür?

Warum benötigst du einen Spüle mit 1,5 Becken zuzüglich einer Abtropfe? Es ist doch eine Spülmaschine vorhanden.

Ist die Arbeitshöhe für die 1,70 cm große Person erprobt? Wenn nicht, dann

ARBEITSHÖHE ermitteln
3 Methoden haben sich da etabliert:
- Ellbogen abwinkeln und von dort 15 cm runtermessen
- Höhe Beckenknochen messen
- z. B. Bügelbrett nehmen und in verschiedenen Höhen Probeschnippeln und messen, wenn es einem am bequemsten erscheint. Sich Vorbeugen, dann ist's zu niedrig, die Schultern hochziehen, dann ist's zu hoch.
Idealerweise ergeben alle 3 Methoden ca. denselben Wert
 
AW: Offene Küche für Neubau

Hallo,

die Wand ist 2,2m lang.

Bei der Spüle sind wir uns noch nicht sicher. Im kleinen Becken kann man z.B. Flaschen auslaufen lassen :-). Vielleicht wäre auch ein grosses Becken sinnvoller um z.B. ein Blech spühlen zu können.
Die Arbeitshöhe müssen wir noch genau bestimmen. Danke für die Tips.

Gruss Bernd
 
AW: Offene Küche für Neubau

Super, dass du dich bereits in den Alno eingearbeitet hast. leider habe ich momentan keine Zeit zum Planen und wenn ich kritisiere, dann auf einem hohen Niveau.

Hast du es dir gut überlegt mit dem Kochfeld auf der Insel? Du möchtest eine Umlufthaube und auf einer Insel hat man immer mit Querströmungen zu rechnen.

Gäbe es die Möglichkeit, die Terrassentür planunten als Schiebetür auszuführen? Denn egal welcher Schrank dort steht durch die Tür ist die Handhabung nicht so optimal. Wenn dies möglich wäre, könnten Spüle und Kochfeld an die Wand. Auf der Insel dann nur noch eine kleine Spüle oder umgekehrt.

Warum sind die Hochschränke nur 175,5 cm hoch?

Ich würde die Spülmaschine in die Insel integrieren damit der Weg zum Esstisch nicht so weit ist.
 
AW: Offene Küche für Neubau

Danke, jede Info / Kritik ist Willkommen.

Wir haben im Ess-/ Wohnbereich zwei 2.4m Schiebetüren. Diese Türe wird nur benutzt falls man mal direkt aus der Küche auf die Terasse will um z.B. was im Garten zu holen.

Spüle und Kochfeld an die Wand wird vielleicht etwas knapp. Dann vielleicht doch die Spüle auf die Insel zusammen mit der Spülmaschine.

Dier Schränke sind nur 1,75 hoch weil wir keine wuchtige "Küchenwand" haben möchten. Wir hatten sogar an nur 1,55 gedacht aber dann wird schwierig mit einem Kühlschrank inkl. Gefrierfach. Wir denken noch mal drüber nach.
 
AW: Offene Küche für Neubau

Die Terrassentür beschäftigt mich gedanklich.

Ist es bei euch wirklich so, dass ihr diese nur ab und zu benutzen wollt. Was ist im Sommer wenn ihr draußen essen wollt? Wird dann alles durch die breite Tür im Essbereich getragen?

Bei uns wird im Sommer die Terrasse als Ess- und Wohnzimmer genutzt und da ist ein problemloser Zugang von der Küche aus nicht zu vernachlässigen.

Wohin führt eigentlich die schmale Tür planrechts?
 
AW: Offene Küche für Neubau

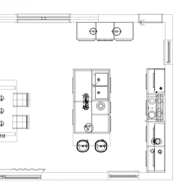
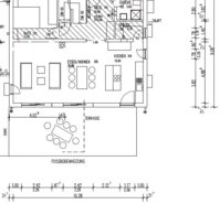
So ich hab mir die Tips mal umgesetzt. Gefällt uns auch ganz gut.

Bild2.jpgBild4.jpgBild5.jpgBild3.jpg
 

Anhänge

  • Plan2-Spuele_anders.KPL
    4,1 KB · Aufrufe: 190
  • Plan2-Spuele_anders.POS
    9,7 KB · Aufrufe: 192
AW: Offene Küche für Neubau

Die schmale Balkontüre rechts ist als Lichtband gedacht. Das kann man aufmachen. Macht preislich keinen unterschied zu einem Festverglasten. Und falls wir mal eine Terrasse im Nordosten einrichten, wäre das der schnellste Weg dort hin.

An den Fenstern und Türen können wir quasi nichts mehr ändern. Wenn die Türe unten rechts offen ist, sind die Schränke dahinter versperrt. Das werden wir wohl beim einräumen berücksichtigen müssen. ich denke damit können wir leben. Schiebetüren sind ziemlich teuer und lohnen sich erst ab einen bestimten Breite da ja 50% geschlossen bleiben.
 
AW: Offene Küche für Neubau

Es wäre schön, wenn du zu einer Alnoplanung auch den Alnogrundriss als Ansicht speicherst. Am besten mit einem Screenshot oder dem Windows-internem Sniping Tool. :rose:

Ich finde den Ansatz Spülen/Arbeitsinsel schon gut. Auch die Sitzposition finde ich passend.

Ich habe den Plan mal überarbeitet und ein paar Annehmlichkeiten eingebaut.

Hochschrankwand:
- Kühlschrank .. vielleicht nur einen 122er ohne TK und einen ordentlichen TK-Schrank in die Speisekammer? Hätte den Vorteil Kühlteil etwas höher und damit auch Gemüseauszüge etc. in angenehmer Höhe.
- Backofenschrank, unten einen weiteren Wasser/Abwasseranschluß für die hochgebaute GSP nebenan
- hochgebaute GSP, dadrüber Klappfach für Standmikrowelle. Hochgebaute GSP unbedingt mal im Küchenstudio ausprobieren.

Kochfeldzeile:
- Ich würde eher einen Lüfterbaustein oder eine Flachschirmhaube in den Hängeschränken integrieren.
- Und, Hängeschränke nicht nur mit Glasfläche, denn man hat ja auch ein paar Sachen, die dann nicht so schick da durchschimmern ;-)

Insel von Küchenseite:
- Der Spülenschrank als 100er, damit man statt 1 Becken und Abtropfe einfach 2 große Becken wählen kann. Abtropfen können Sachen auch in einem Becken, sie sind damit aber gleich etwas aus der Ansicht von Ess-/Wohnzimmer entfernt.
Im oberen Auszug dann noch Platz für eine kleine Putzreling, der untere Auszug ist Stauraum:
full
full

- 45er Müll direkt unter der APL ... der zweite Auszug unten ist Stauraum oder bietet Platz für Gelben Sack Müll etc.:
full

- 60er Auszugsunterschrank für Messer/Küchenhelfer, Schüsseln, halt alles, wasm an insbesondere am Vorbereitungsplatz braucht.

Richtung Essbereich dann 2x100er Auszugsunterschrank, da die Vorderseite 205 cm breit ist, hier mit einer 5 cm Blende dazwischen.

Steckdosen an der Insel jeweils auf beiden Seiten in die Wangen außen, damit man auch Mixer etc. benutzen kann.

Überstehende APL in 40 cm Tiefe, da braucht man keinen Stützfuß etc.
 

Anhänge

  • bernd23_20131016_kb1.POS
    14,3 KB · Aufrufe: 175
  • bernd23_20131016_kb1.kpl
    4,1 KB · Aufrufe: 215
  • bernd23_20131016_kb1_Grundriss.jpg
    bernd23_20131016_kb1_Grundriss.jpg
    57 KB · Aufrufe: 178
  • bernd23_20131016_kb1_Ansicht5.jpg
    bernd23_20131016_kb1_Ansicht5.jpg
    148,4 KB · Aufrufe: 186
  • bernd23_20131016_kb1_Ansicht4.jpg
    bernd23_20131016_kb1_Ansicht4.jpg
    118,7 KB · Aufrufe: 187
  • bernd23_20131016_kb1_Ansicht3.jpg
    bernd23_20131016_kb1_Ansicht3.jpg
    118 KB · Aufrufe: 186
  • bernd23_20131016_kb1_Ansicht2.jpg
    bernd23_20131016_kb1_Ansicht2.jpg
    108,8 KB · Aufrufe: 193
  • bernd23_20131016_kb1_Ansicht1.jpg
    bernd23_20131016_kb1_Ansicht1.jpg
    130,9 KB · Aufrufe: 186
AW: Offene Küche für Neubau

Die Terrassentür beschäftigt mich gedanklich.

Ich hab noch mal drüber nachgedacht. Wenn wir den Anschlag der Türe ändern blockiert die offene Türe nicht mehr die Küchenzeile sondern nur noch den Durchgang um die Insel. Ich denke das stört viel weniger oder was meinst du Mela? mal sehen ob wir das noch umplanen können.
Terrassentüre.jpg
 
AW: Offene Küche für Neubau

Hallo Kerstin,
vielen Dank für die Überarbeitung. Beim öffnen des Plans mit dem Planer 13a kommt noch Fehler. Ist das der richtige? Fehlt da noch was? Die Mikro und die Melami-Oberflächen fehlen :-\

Zum TK: Wir dachten an einen im Keller um mehr Platz in der Kammer zu haben. Wobei immer in den Keller laufen ist auch blöd :-\ Das Ding kommt in die Kammer :-)

An die GSP erhöht in die Insel hab ich gestern abend auch gedacht. Ich muss abklären, ob wie die Pläne noch mal ändern können was das Wasser anbelangt. Das muss klappen :knuppel:

Die Oberschränke hatte ich nicht gefunden im Planer 99a. Die gefallen uns. :top: Es stört wirklich die Optik wenn da eine grelle Schüssel hinter Milchglas steht.
Die Flachschirmhaube ebenso :top:

Insel :top:

Gruss Bernd
 
AW: Offene Küche für Neubau

Bernd,
das wäre eine Möglichkeit. :2daumenhoch::dance:

Was sagst du zu Kerstin's Planung.
 
AW: Offene Küche für Neubau

Ich habe die GSP nicht erhöht in die Insel sondern bei den Hochschränken eingeplant.

Und den Anschlag der Terrassentür würde ich nicht ändern. Weder in der Planung Kochinsel noch in der Planungs Spüleninsel ist hinter der aufgeschlagenen Terrassentür ein essentiell wichtiges Gerät oder ähnliches. Es ist ein Unterschrank blockiert.
 
AW: Offene Küche für Neubau

Ja klar, GSP in die Hochschränke. Bin reif für die Insel.
Die Terrassentüre ist mit ihren 1.17m ziemlich breit. Wurde passend zum Bodentiefen Fenster im OG geplant. Die ragt dann schon 1m in die Küche und blockiert dann 2 Schränke.

Danke für die tolle Planung :clap:
 
Zuletzt bearbeitet:
AW: Offene Küche für Neubau

Na ja, euer Hauptausgang auf die Terrasse wird ja die große Schiebetür sein. Da schlackert dann auch nichts im Wind. Die Drehtür wird man dann vielleicht nutzen, um dreckiges Geschirr reinzubringen oder Getränke zu holen etc. und da wird man nicht gerade an die beiden Unterschränke planrechts ran müssen. Die Öffnungsrichtung ist aber die natürlichere.
 
AW: Offene Küche für Neubau

Hallo,
hier mal ein paar Bilder wie ein Küchenbauer meine Vorstellung umgesetzt hat.
Was ich wohl ändern werde:


  1. Statt 2 Schubkästen und 2 Auszügen auf 1 Schubkasten und 2 Auszüge ) Weniger Kosten und vor allem weniger Griffstangen.
  2. Zum Essbeeich 2 Auszüge mit 1 Innenschubkasten ( vielleicht )
  3. 2 Auszüge unter dem Backofen statt der Drehtüre
  4. Grösser Kühlschrank ( ob nun mit oder ohne Gefrierfach / 0 Grad Zone ist uns noch nicht klar.
  5. Dunsabzugshaube so oder doch Flachschirmhaube. Hier wurde mir eine von einem anderen :kfb: eine Gutmann empfohlen.

Bei den Fronten sind wir uns noch unsicher


  • Front in Melaminharz
    beschichtet mit 4 seitigen ABS Kanten
  • oder Front Magnolie lackiert ( 2.5K€ Aufpreis )
  • oder Magnolie Acryl

Wie ist eure Meinung zu den Fronten?

1.jpg5.jpg4.jpg3.jpg2.jpg8.jpg9.jpg


Gruss Bernd
 
AW: Offene Küche für Neubau

Es sind doch die aufgesetzten Griffe oder?

Also, zum Essbereich hin 2 Auszüge und der obere mit Innenschublade ist ok.

An der Kochfeldzeile würde ich 1-1-2-2 lassen, denn man kann nie genug Schubladen haben und was willst du alles in die 3-rasterigen Auszüge tun?
--> https://www.kuechen-forum.de/forum/themen/38er-auszugshoehe-wie-nutzt-ihr-die.10759/
und
Stauraum in Schubladen

Unter dem Backofen würde ich die Drehtür lassen. Denn dort wird auch der Wasseranschluß für die GSP positioniert werden müssen. Und, man kann dieses Drehtürfach dann eher mit senkrechten Einteilungen versehen, um z. B. gerade nicht benötigte Backbleche oder Schneidbretter, Tabletts senkrecht einzustellen. Das sollte mit dem Wasseranschluß hinten drin problemlos funktionieren. So, wie im Beispiel oben links.
 
AW: Offene Küche für Neubau

Hallo,

Bei den Fronten sind wir uns noch unsicher


  • Front in Melaminharz
    beschichtet mit 4 seitigen ABS Kanten
  • oder Front Magnolie lackiert ( 2.5K€ Aufpreis )
  • oder Magnolie Acryl

Wie ist eure Meinung zu den Fronten?


Gruss Bernd

Solltest Du Dich für eine lackierte Front entscheiden, dann schaue dir nochmals das normale weiß im Küchenstudio an. Bei echten Lackfronten ist das weiß sowieso eher ein gebrochenes Weiß und da würde ich nicht auf Magnolie gehen.

Hast du Muster von den Türen ? Die Farbe würde ich auf alle Fälle mit in die Überlegung einbeziehen und das bei den heimischen Lichtgegebenheiten begutachten.
 
AW: Offene Küche für Neubau

Wow, die Planung und Visualisierung sieht richtig schick aus. :2daumenhoch:

Nur der Stangenwald wäre nicht so meins. Bei der Front in Magnolie muss man aufpassen, ob das zu weißen Wänden harmoniert oder ob das Magnolia dann irgendwie "schmutzig" wirkt. Je nach Hersteller kann Magnolia ins Gebliche oder Rötliche gehen. Also Muster bei Tageslicht an eine weiße Wand halten.
 
AW: Offene Küche für Neubau

Ich seh das so wie Kerstin. In der Kochzeile die Einteilung so lassen und an der Insel zum Esstisch hin je 2 große Auszüge mit Innenauszug.

LG
Sabine
 

Ähnliche Beiträge

Neff Hausgeräte Ballerina Küchen Blum Bewegungstechnologie Weibel - Intelligente Küchenlüftung

Neff Spezial

Blum Zonenplaner

Weibel Abluft-Tuning

Weibel Abluft-Tuning
Zurück
Oben