- Beiträge
- 17
AW: Offene Küche für Neubau
Die Visualisierung kommt nicht aus einem Küchenstudio sonder von einem Küchenbauer. Leider ist der knapp 200km entfernt. Meine Eltern haben schon die zweite Küche von dort. Ich habe 5 Minuten mit dem Chef gesprochen da er Kunden da hatte und hab unsere Vorstellungen und Bilder wie ich sie hier im Thema habe per Mail geschickt. Ein paar Wochen später kamen die Bilder inkl. Angebot.
Wenn ich sehe was mach anderes Studio aus den Bilder und plänen gemacht hat :-X
Leuchtet ein mit der Drehtüre unter dem Backofen . Ich hoffe das klappt noch mit dem Wasseranschlüss für die Spülmaschine. In der Wand laufen die Stromleitungen weil auf der anderen Seite der Wand im Keller der Stromkasten hängt.
Einen Stangenwald wollen wir eigentlioch auch nicht, zum Esstisch gibts 2 Auszüge mit Innenauszug.
Das mit der Farbe ist echt so eine Sache. Ein Küchenstudio hat Tageslichröhren an der Decke, ich dachte erst, die Hängeschränke an der Wand haben eine andere Farbe als die Unterschränke. Erst ein Muster hat gezeigt dass es am Licht lag.
Als ich mal ein Muster einer Magnolie Front an dunkle Granitplatten gehalten habe, hatte ich den Eindruck Magnolie wirkt dann grau und düster. Und das ist ja eigentlich nicht was wir wollen.
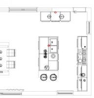
Kleine Frage zum Wasseranschluss für die Spüle / Spülmaschine: Ich muss das leider bis morgen festlegen wegen der Kellerdecke. Ich würde den Abwasseranschluss mittig hinter der Spüle legen.

Und für die GSP links unter den Backofen . Passt das so?
Die Visualisierung kommt nicht aus einem Küchenstudio sonder von einem Küchenbauer. Leider ist der knapp 200km entfernt. Meine Eltern haben schon die zweite Küche von dort. Ich habe 5 Minuten mit dem Chef gesprochen da er Kunden da hatte und hab unsere Vorstellungen und Bilder wie ich sie hier im Thema habe per Mail geschickt. Ein paar Wochen später kamen die Bilder inkl. Angebot.
Leuchtet ein mit der Drehtüre unter dem Backofen . Ich hoffe das klappt noch mit dem Wasseranschlüss für die Spülmaschine. In der Wand laufen die Stromleitungen weil auf der anderen Seite der Wand im Keller der Stromkasten hängt.
Einen Stangenwald wollen wir eigentlioch auch nicht, zum Esstisch gibts 2 Auszüge mit Innenauszug.
Das mit der Farbe ist echt so eine Sache. Ein Küchenstudio hat Tageslichröhren an der Decke, ich dachte erst, die Hängeschränke an der Wand haben eine andere Farbe als die Unterschränke. Erst ein Muster hat gezeigt dass es am Licht lag.
Als ich mal ein Muster einer Magnolie Front an dunkle Granitplatten gehalten habe, hatte ich den Eindruck Magnolie wirkt dann grau und düster. Und das ist ja eigentlich nicht was wir wollen.
Kleine Frage zum Wasseranschluss für die Spüle / Spülmaschine: Ich muss das leider bis morgen festlegen wegen der Kellerdecke. Ich würde den Abwasseranschluss mittig hinter der Spüle legen.

Und für die GSP links unter den Backofen . Passt das so?
