Neuplanung/Erweiterung bestehender Küche für offene Küche im Neubau

aptituz

Mitglied
Beiträge
17
Hi,

vor knapp anderthalb Jahren habe ich eine Küche von KüchenQuelle erworben. Nun sind ich und meine Freundin in eine neue Wohnung umgezogen, bei der sich die Küche signifikant vergrößert (quasi verdoppelt) hat. Wir möchten die bestehende Küche daher gerne erweitern.

Grundriss:
  • Ich habe den Grundriss von Hand gezeichnet und die Maße eingetragen, die wir selbst genommen haben. Da wir nur ein relativ billiges Meßgerät haben und die Küche gerade auch zu sehr zugestellt ist, um mit dem Maßband zu messen, weisen die Maße eine Toleranz von ~ 1-2cm auf. Ich hoffe, das reicht, sonst müssten wir die Küche versuchen frei zu bekommen und noch mal nachmessen ^^
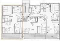
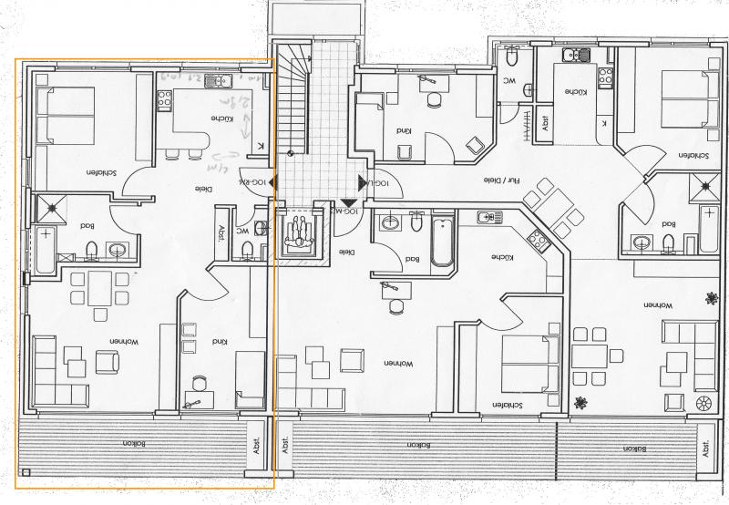
  • Der Wohnungsgrundriss vom Architekten ist fürs erste OG, wir wohnen aber im EG. Die Wohnungen sind aber gleich geschnitten und er ist ohnehin nicht vermaßt.
  • "Grundriss Küchenplanung .jpg" ist die Grundrissansicht im ALNO , die wahrscheinlich noch alles andere als perfekt ist. Stehe mit dem ALNO noch ein wenig auf Kriegsfuß. Ein Hinweis: Die Küche ist dort etwas größer aufgezeichnet, weil ich in den Raumansichten die Türen bzw. den Übergang zwischen restlicher Wohnung und Küche sichtbar haben wollte.
  • Anschlüsse: Den richtigen Zeitpunkt, um noch auf die Anschlüsse Einfluss zu nehmen, haben wir leider verpasst. Jetzt wären Änderungen zwar noch möglich, jedoch mit Kosten verbunden, die wir aufgrund des engen Budgets eigentlich lieber vermeiden würden.



Vorstellung:
Uns schwebt eine zweizeilige Küche vor, mit angeschlossener Theke, einerseits um einen Essplatz zu schaffen und andererseits um die offene Küche vom restlichen Wohnbereich optisch abzugrenzen. Als Alternative hielten wir eine U-Form für passend, allerdings ist unser Budget begrenzt (der in der Checkliste angegebene Betrag ist als absolute Obergrenze anzusehen), daher scheidet das vermutlich aus Kostengründen aus.


Vorhandene Möbel:
Aus der vorherigen Küche sind die folgenden Möbel und Elektrogeräte vorhanden:
Die vorhandene Küche ist wohl eine Wellmann Modell Sierra/Neumarkt, Farbgebung ist Steinbuche NB für Fronten und Arbeitsplatten , Korpus etc. ist magnolienweiß. Das gefällt uns soweit gut, lediglich für die sichtbare Seite der Theke denken wir eher an ein gewöhnliches weiß.

Unterschränke:


  • 1 60er Unterschrank für Einbauherde
  • 1 Frontplatte für integrierte Waschmaschine (WaMa soll wieder untergebracht werden)
  • 1 40er Unterschrank US2A40
  • 1 Eck-Unterschrank mit 1 Schubkasten und 1 Drehtür
  • 1 60er Seitenschrank für Einbaugeräte (178,5cm)
  • 1 60er Spülenschrank für Einlaßspüle, 1 feste Blende 1 lose Front mit mittiger Griffbohrung, inkl. Müllsammlersystem

Oberschränke:
  • 1 60er Oberschrank für Dunstabzugshaube mit 10cm tiefen Fachböden
  • 1 40er Oberschrank mit Drehtür, verstellbare Fachböden
  • 2 45er Oberschränke jeweils R/L-öffnend mit Glastür
  • 1 15er Regal mit zwei Bögen (vorher zwischen den zwei 45er Glastür-Schränken)
  • 1 30er Abschlussregal
  • 1 Eck-Oberschrank (den wir aber ansich nicht mehr verwenden wollen, weil er unpraktisch ist)

Elektrogeräte:
  • 1 AEG Einbau-Waschtrockner Lavamat Turbo 12843 ViT (+ 2m Verlängerungsschlauchset)
  • 1 Siemens Einbauherd EQ241E103
  • 1 Siemens Flachschirmhaube LI23030 60cm breit
  • 1 Siemens 45er GSP SF64T354EU
  • Siemens Kühl-/Gefrierkombination KI34SA50 Nischenhöhe 178cm

Vorhandene Planung:
Mit der KüchenQuelle-Planerin haben wir bereits eine Küche entworfen, die uns eigentlich im großen und Ganzen auch zusagt. Ich habe die Küchenplanung (grob, nicht alle Details der Planung sind mir klar) im ALNO-Planer nachgebaut und angehängt.
Wir haben gegenüber der KQ-Planung lediglich ein Detail angepasst: An der Theke wird jetzt ein 60er US verwendet statt eines 90er und die Arbeitsplatte überstehen lassen, da wir der Meinung waren, dass es schön wäre, wenn man nicht immer nebeneinander "wie auf der Stange" sitzen muss. Sind uns hier natürlich unsicher, ob das so machbar ist und/oder ob die Arbeitsplatte da noch irgendwie gestützt werden muss.

Mit dieser Planung kämen an Möbeln dazu:
  • 1 90er Unterschrank mit 1 Schubkasten und 2 Auszügen
  • 1 50er Unterschrank mit 1 Schubkasten und 2 Auszügen
  • 1 50er Oberschrank
  • 1 60er Oberschrank
  • 1 90er Oberschrank
  • 1 Nischenverkleidung
  • 1 Glas-Nischenrückwand
Zudem einige Kleinteile, u.a. ein Sicherheitsverteiler, weil wir für WaMa und GSP nur eine Steckdose haben.

Die restlichen Möbel werden weiterverwendet, also auch der Eckunterschrank und zwar für die Theke. Ich kenne die Ausführungen über die toten Ecken und finde das Ding auch nicht übermäßig praktisch, aber wir kommen damit auch relativ gut klar, insofern kann es auch bleiben (weil es ja eh schon bezahlt wurde ;-) )

So, ich hoffe, dass ich nichts vergessen habe und würde mich freuen, wenn ihr
mal über die Planung seht. Für Alternativideen bin ich natürlich auch dankbar. Uns gefällt die momentane Anordnung zwar, aber wir sind da nicht festgelegt.

Ansonsten würde mich interessieren, ob das uns vorliegende Angebot für die Erweiterung ein fairer Preis ist oder nicht. Könnte da irgendwer eventuell drüber sehen? (Könnte/Dürfte/Sollte ich das hier mit dazu tun?)




Checkliste zur Küchenplanung von aptituz

Anzahl Personen im Haushalt : 2
Davon Kinder? : keine
Körpergrössen aller Hauptbenutzer (wegen Arbeitshöhe ) in cm : 184 und 172
Art des Gebäudes? : Neu-/Umbau, Planänderungen nicht möglich
Brüstungshöhe des Fensters (in cm) : 106
Fensterhöhe (in cm) : 110
Raumhöhe in cm: : 254
Heizung : Fussbodenheizung
Sanitäranschlüsse : fix
Ausführung Kühlgerät? : Integriert im Hochschrank (60cm)
Kühlgerät Größe : bis 175 cm Höhe
Ausführung Tiefkühl (TK)-Gerät : Im Kühlschrank ab 3 Schubladen unten
Dunstabzugshaube? : Abluft
Hochgebauter Backofen ? : Nein
Hochgebauter Geschirrspüler ? : nein
Kochfeldart? : Ceran (herkömmlich)
Kochfeldbreite ca. (in cm)? : 60
Spülenform: : 1 Becken mit Abtropffläche
Weitere geplante Heißgeräte : Standmikrowelle
Küchenstil? : modern
Sitzmöglichkeit in der Küche / im Küchenbereich als : Überstehende Arbeitsplatte
Sitzmöglichkeit: Für wieviel Personen? : für 4 Personen
Sitzmöglichkeit: Tisch - wenn gesonderter Tisch oder offene Küche : Wird nach Bedarf neu gekauft
Gewünschte o. vorhandene Tischgröße : ca. 140x80cm, aber ohne definitive Festlegung. Zwei Personen müssen regelmäßig daran essen, vier bei entsprechenden Gelegenheiten
Wofür soll der Sitzplatz in der Küche genutzt werden? Wie häufig? : täglich, zum Essen/ als Arbeitsfläche
Welche Arbeitshöhe ist angedacht (in cm)? : 90 (bestehende Küche, war für mich in Ordnung zum Arbeiten)
Was steht auf der Arbeitsplatte oder soll dort stehen? : Kaffeemaschine, Wasserkocher, Messerblock, Toaster, Obstschale
Welche weiteren Küchenmaschinen müssen in der Küche untergebracht werden? : Handrührgerät, Mixer, Pürierstab, Eierkocher
Was soll in der Küche außer den Standards untergebracht werden? : ALLE Vorräte, Geschirr komplett (nichts in Ess-/Wohnzimmer)
Welchen Stauraum gibt es sonst noch? : Hauswirtschaftsraum
Was/wie wird gekocht? (Alltagsküche, Menüs, Snacks usw) : unterschiedlich, meistens Alltagsküche, seltener auch mal ausgefallener/umfangreicher
Wie häufig wird gekocht? : (fast) täglich 1x warm
Wird alleine gekocht? Oder auch gemeinsam? Mit und für Gäste? : Wir kochen hauptsächlich zu zweit, für Gäste nur selten und mit Gästen praktisch nie.
Was stört an der bisherigen Küche und was soll die neue Küche unbedingt können? Warum? : Stauraum und Arbeitsfläche muss mehr sein, ansonsten war die Küche gut für unsere Ansprüche. Allerdings Erweiterung auf einen deutlich größeren Raum, der sinnvoll genutzt werden möchte
Steht schon ein Küchenhersteller fest oder wird bevorzugt? : Wellmann (vorhandene Möbel sollen übernommen werden)
Steht schon ein Gerätehersteller fest oder wird bevorzugt? : Geräte sollen aus bestehender Küche übernommen werden
Preisvorstellung (Budget) : bis 5.000,-
 

Anhänge

  • Grundriss Wohnung.jpg
    Grundriss Wohnung.jpg
    81,1 KB · Aufrufe: 277
  • Grundriss Küchenplanung.jpg
    Grundriss Küchenplanung.jpg
    29,1 KB · Aufrufe: 250
  • Küchenplan.KPL
    4,1 KB · Aufrufe: 223
  • Küchenplan.POS
    6,2 KB · Aufrufe: 208
  • Küchengrundgriss mit Maßen.jpg
    Küchengrundgriss mit Maßen.jpg
    29,6 KB · Aufrufe: 237
Zuletzt bearbeitet:
AW: Neuplanung/Erweiterung bestehender Küche für offene Küche im Neubau

Hallo Apituz!
:welcome: im Küchenforum!

Also ich finde die Planung nicht sehr prickelnd. Du hast zwischen den Zeilen einen Tanzsaal. Und die Aufteilung ist auch nicht ideal.
Aber bestimmt fällt den Mädels hier ne bessere Lösung ein.

LG
Sabine
 
AW: Neuplanung/Erweiterung bestehender Küche für offene Küche im Neubau

Hallo aptituz,

herzlich willkommen!

Eine ganze Menge Infos, super! :2daumenhoch:

Du sagst, dass das Wasser schon an der einen Wand fix ist. In der Planung ist das rechts, im handgezeichneten Grundriss auch. Dann ist im Gesamtgrundriss die Spüle oben an der Fensterwand wohl falsch?

Wie Sabine schon sagte: die Zeilen sind zu weit auseinander. Da bekommst du ganz schön Kilometer zusammen beim Kochen. Ideal sind 90 bis 120cm Abstand bei Zweizeilern. Deswegen wäre ich für eine L am Fenster und der rechten Seitenwand, mit einem separaten Tisch oder Theke an der anderen Seitenwand. Den Herdanschluss kann man für wirklich kleines Geld vom Elektriker verlegen/verlängern lassen.

Abluftloch ist wo? Und hat welchen Durchmesser?
 
AW: Neuplanung/Erweiterung bestehender Küche für offene Küche im Neubau

Hey,

so ein Mist aber auch, da hab ich den einen Grundriss ja glatt in der falschen Ausrichtung eingestellt. Das hab ich jetzt mal korrigiert.

Bezüglich der Wasseranschlüsse:
Ja, im Gesamtgrundriss sind die Wasseranschlüsse falsch angezeichnet. Ich vermute, dass das mal die Idee war, die hier aber so nicht umgesetzt wurde. In dem Haus hier ist eine ganze Menge schief gelaufen :-\ .. mein handgezeichneter Küchengrundriss ist ausschlaggebend.

Bezüglich Abluft für DAH:
Die ungefähre Position hab ich im Küchengrundriss mit einem X markiert und den Durchmesser dran geschrieben. Der befindet sich eben auch an der linken Wandseite oben neben dem Fenster. Durchmesser ist ca. 15/16cm (hier müssen die Handwerker noch etwas ausbessern, daher lässt sich das gerade schwer messen, aber das Rohr, dass die Handwerker da noch einbauen wollen hat 16cm Außendurchmesser und ca. 15 cm Innendurchmesser)

Der viele Platz zwischen den zwei Zeilen ist in der Tat nicht ideal, aber ich bin mir auch nicht sicher, ob eine L-Form funktioniert. Wenn man mal von der Position der Abluftöffnung für die DAH absieht, bleibt ja immer noch das Problem, dass man auf nur einer Wand kaum Oberschränke aufhängen kann - oder würde das trotzdem noch gut aussehen, wenn auf der Seite keine Unterschränke sind?
 
Zuletzt bearbeitet:
AW: Neuplanung/Erweiterung bestehender Küche für offene Küche im Neubau

Lass Deine Handwerker gleich einen Mauerkasten mit dazugehörigem Rohr einbauen, sonst kann es später zu Problemen kommen.
 
AW: Neuplanung/Erweiterung bestehender Küche für offene Küche im Neubau

Hi,

Miete oder Eigentum?
Ihr wollt Umbaukosten eigentlich vermeiden, aber habt ihr Euch mal überlegt Kinderzimmer und Küche zu tauschen. Das Gästeklo ist ja in der Nähe, somit müßte man das Wasser nicht so weit ziehen müssen.
Das hat auch den Vorteil, dass das Kinderzimmer etwas ruhiger gelegen ist und nicht von der Terasse einsehbar ist. ;-)

LG, Muckelina
 
AW: Neuplanung/Erweiterung bestehender Küche für offene Küche im Neubau

Um eventuelle Unklarheiten zu beseitigen, ob Miete oder Eigentum: Es handelt sich um eine Mietwohnung. Bauliche Veränderungen muss ich also mit dem Vermieter absprechen.

martin,

kannst du mir bezüglich des Mauerkastens sagen, welche Art von Problemen zu erwarten wären?
Mir scheint hier bei der Planung was schief gelaufen zu sein, aber ich brauche dem Vermieter gegenüber ein bisschen Futter zum Argumentieren, da es mir da an Hintergrundwissen fehlt.

Muckelina,

die Räume zu tauschen hieß aber auch die gesamte Architektur der Wohnung auf den Kopf zu stellen ;D Immerhin ist die Küche offen; um hier wirklich ein "ruhigeres" Kinderzimmer zu schaffen, müsste man noch eine durchgehende Wand + Tür einbauen. Davon abgesehen hat die Küche die Lage zur Straße hin, die Terrasse hat nur angrenzende Gärten. Also das würde glaub ich auch eher weniger als mehr Ruhe schaffen.

Aber um die Frage zu beantworten: Nein, wir erwägen das nicht. Für uns ist das Kinderzimmer auch eher Arbeitszimmer, weil wir keine Kinder haben und auf kurze Sicht auch keine planen. Da finden wir die Lage an der Terrasse bzw. Ausblick darauf eigentlich ziemlich gut, zumal wir dort auch noch eine Leseecke planen.

Umbaukosten wollen wir übrigens nicht nur vermeiden, wir müssen es sogar, sonst geht uns das Geld für die Küche am Ende noch aus :-\ Wobei Kleinigkeiten wie Stromanschluss verlegen ggf. noch drin wäre. Mit einer neuen Kernbohrung sieht es dann aber vermutlich schon wieder anders aus.
 
AW: Neuplanung/Erweiterung bestehender Küche für offene Küche im Neubau

Ich vermute, dass bauseits dort ein HT- oder KG-Rohr eingebaut werden soll. Da kriegst Du kaum eine vernünftige Mauerdurchführung eingeschoben. Selbst wenn es passen sollte: es entstehen in der Summe zusätzliche Kosten.
 
AW: Neuplanung/Erweiterung bestehender Küche für offene Küche im Neubau

Ein KG-Rohr wollten sie da einbauen, ja. Interessanterweise gibt es ja eine Außenjalousie an der Öffnung. Ob die da wohl einfach den Mauerkasten nur zur Hälfte eingebaut haben? Ach, mich würds nicht wundern.

Ich hab das jetzt mal als Mangel an den Vermieter gemeldet. Von der Öffnung her ausgegangen, läuft das wohl auf einen Mauerkasten mit entsprechend 15cm Öffnung hinaus, wie sie für Mauerkästen wohl üblich zu sein scheint.
 
AW: Neuplanung/Erweiterung bestehender Küche für offene Küche im Neubau

Kannst Du mal ein Bild von der Außenjalousie hier einstellen?
 
AW: Neuplanung/Erweiterung bestehender Küche für offene Küche im Neubau

Ja, werd ich heute spät nachmittag/Abend mal machen. Bin gerade nicht am Haus.
 
AW: Neuplanung/Erweiterung bestehender Küche für offene Küche im Neubau

So martin,

hier nun ein Bild von der Außenjalousie an der DAH-Bohrung.
 

Anhänge

  • IMG_20121217_164336.jpg
    IMG_20121217_164336.jpg
    27,6 KB · Aufrufe: 225
AW: Neuplanung/Erweiterung bestehender Küche für offene Küche im Neubau

Das ist der berühmt/berüchtigte Klapperkasten, kLappert besonders stark, wen er auf der Lee-Seite ist.

Von dem Teil kannst Du nach innen mit einem Rundrohr für Abluft nach innen weitergehen. Mit KG wird das nix Gescheites.

Ich würde diese Außenjalousie allerdings gegen was Leiseres austauchen.
 
AW: Neuplanung/Erweiterung bestehender Küche für offene Küche im Neubau

Ich fürchte, da werde ich nicht so die Wahl haben, weils ja eine Mietwohnung ist. Aber fragen kostet ja nichts :-)

Gibt es bei den Rundrohren was auf das man achten sollte? Lässt sich da sowas einbauen? Sollte man was anderes wählen (von der Außenjalousie mal abgesehen)?

=> Naber COMPAIR R-1000 Flow Round Rundrohr ø 150 mm (Art.Nr. 4052102): Amazon.de: Elektro-Großgeräte

(Wenn man davon ausgeht, dass die da ein 16er KG-Rohr installieren wollten)
 
AW: Neuplanung/Erweiterung bestehender Küche für offene Küche im Neubau

:top:
 
AW: Neuplanung/Erweiterung bestehender Küche für offene Küche im Neubau

Bräuchte ich dann außer dem besagten Rundrohr noch etwas? Gibt es beispielsweise passende Wandabschluss-Stücke? Sollte ich noch eine Rückstauklappe dazu erwerben?
 
AW: Neuplanung/Erweiterung bestehender Küche für offene Küche im Neubau

Ich habe mal ein bisschen geschoben, denn ich finde auch, dass Spüle/Kochfeld irgendwie so gar keine Einheit bilden.

Es bleiben allerdings nur 3 bequeme Sitzplätze.

Gedanke war, Spüle / Kochfeld etwas näher zueinanderzubringen und evtl. statt 90/50 neue Unterschränke eher 2x90er Unterschränke haben zu können. Ich habe zwar auch noch ein paar neue Hängeschränke eingeplant, allerdings aus der eher nicht so hohen Sorte 2x90 und 1x80.

Die Sitzecke jetzt auf die andere Seite gelegt. Dadurch hat auf der Kochfeldseite planlinks neben den vorhandenen Schränken, auch Hängeschränken als neuer Schrank ein 90er Auszugsunterschrank Platz.

Auf der planrechten Seite auch ein neuer 90er Auszugsunterschrank, dann der vorh. Eckschrank. Gedanke ist, dass man hier noch halbwegs gut an den Wasseranschluß rankommt, weil der Schrank ja nur Fachböden hat. Über Eck dann der Spülenschrank, wobei die Anschlußschläuche der Spüle halt einen Hauch länger sein müssen. Hierzu müßte man dann auch vermutlich in der Seitenwand des Spülenschrank ein Loch einfürgen. Zum Abschluß die GSP, nicht ganz ideal in der Position, da sie so nach außen und nach hinten Abschlußwangen braucht.

Die Wama auf der Rückseite des Spülenschrankes und damit auch etwas außerhalb der Küche. Waschmittel etc. könnten dann in einem Hängeschrank dort stehen. Wenn man sich für die nicht so hohe Variante der Hängeschränke entscheidet, dann muss man die Waschmittel evtl. umfüllen, damit sie in der Höhe passen.

Neu wären:
- 2x90er Auszugsunterschrank
- 2x90er Hängeschrank
- 1x80er Hängeschrank
- die APL
- die Wangen der GSP

Ich habe mal vorausgesetzt, dass die Tür des Kühlschrankhochschrankes so angeschlagen ist, wie abgebildet. Sollte sie andersherum angeschlagen sein, würde ich planlinks unten mit dem Kühlschrank anfangen, dann den 40er Unterschrank , dann Kochfeld, dann den 90er Unterschrank setzen. Dann würde der Kühlschrank sich auch wieder schön Richtung Küche öffnen.
__________________________
Ich hatte auch versucht, das Kochfeld planlinks des Fensters zu setzen, aber da kommt man auch nicht wesentlich näher an die Spüle ran, hat aber noch das Problem, den Kühlschrank unterzubekommen.

Da hat mal wieder jemand die Anschlüsse geplant, der sich vorher keine Gedanken über die Küche gemacht hat ;-)
 

Anhänge

  • kf_aptituz_20121220_kb_var1_alt.POS
    8,2 KB · Aufrufe: 219
  • kf_aptituz_20121220_kb_var1_alt_Ansicht1.jpg
    kf_aptituz_20121220_kb_var1_alt_Ansicht1.jpg
    106,3 KB · Aufrufe: 238
  • kf_aptituz_20121220_kb_var1_alt_Ansicht2.jpg
    kf_aptituz_20121220_kb_var1_alt_Ansicht2.jpg
    122,2 KB · Aufrufe: 226
  • kf_aptituz_20121220_kb_var1_alt_Ansicht3.jpg
    kf_aptituz_20121220_kb_var1_alt_Ansicht3.jpg
    125,2 KB · Aufrufe: 224
  • kf_aptituz_20121220_kb_var1_alt_Ansicht4.jpg
    kf_aptituz_20121220_kb_var1_alt_Ansicht4.jpg
    158,9 KB · Aufrufe: 213
  • kf_aptituz_20121220_kb_var1_alt_Ansicht5.jpg
    kf_aptituz_20121220_kb_var1_alt_Ansicht5.jpg
    146,9 KB · Aufrufe: 219
  • kf_aptituz_20121220_kb_var1_alt_Ansicht6.jpg
    kf_aptituz_20121220_kb_var1_alt_Ansicht6.jpg
    151,6 KB · Aufrufe: 227
  • kf_aptituz_20121220_kb_var1_alt_Grundriss.jpg
    kf_aptituz_20121220_kb_var1_alt_Grundriss.jpg
    84,1 KB · Aufrufe: 239
  • kf_aptituz_20121220_kb_var1_alt.kpl
    4,1 KB · Aufrufe: 193

Ähnliche Beiträge

Neff Hausgeräte Ballerina Küchen Blum Bewegungstechnologie Weibel - Intelligente Küchenlüftung

Neff Spezial

Blum Zonenplaner

Weibel Abluft-Tuning

Weibel Abluft-Tuning
Zurück
Oben