bougur
Mitglied
- Beiträge
- 15
Hallo zusammen,
wir schauen uns aktuell nach einer neuen Küche um und haben uns bereits in ein paar Geschäften
beraten und Küchen planen lassen. Nun brauche ich eure Unterstützung, da ich in dem Bereich
ein Laie bin.
1.
Als erstes muss ich mich entscheiden, ob ich eine grifflose Küche oder eine Küche mit Griffen haben möchte.
Rein intuitiv gefällt mir die grifflose Optik besser. Allerdings soll man platztechnisch Nachteile haben im Vergleich
mit einer Küche mit Griff. In den Auszügen hat man wohl viel mehr Platz bei "Griff-Küchen". Unsere Küche
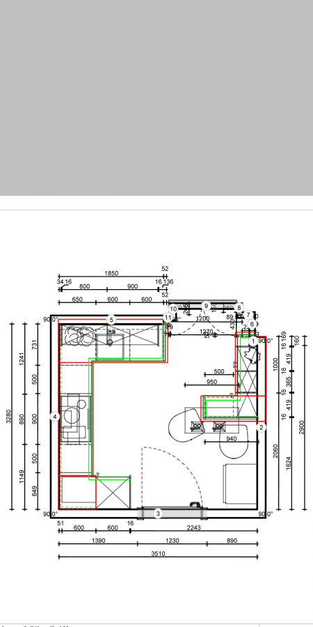
ist normal groß (13 qm), es wird ein kleines U werden ohne Insel. Und ein Extra-Bereich gegenüber. Was meint ihr? Unabhängig von der Optik, was ja letzendlich geschmacksache ist, sollte ich mich lieber für die Griffe entscheiden?
2.
Bei den Planungen wurde jedes Mal ein Le Mans Schrank und ein Jalousie Schrank eingeplant. Im Forum habe ich
mich bereits ein wenig eingelesen. Die meisten im Forum scheinen gegen Le Mans oder ähnliche Ecklösungen zu
sein und lieber Schränke mit Auszügen bevorzugen, was ich durch das Forum nun auch verstanden habe. Also bieten Schränke mit Auszügen doch den effizientesten Stauraum?
Gibt es eine Alternative zum Jalousie Schrank? Denn dieser ist auch ganz schön teuer. In der angehängten Skizze
kann man sehen, wo er stehen wird. Geplant wurde einer mit Schwarz-Glas.
Wie sieht es mit Apotheker Schränken im unteren Bereich aus, also nur unter der Arbeitsplatte ? Sollte man
immer versuchen mit Auszügen zu planen oder auch mal 20 cm für einen Apotheker einplanen. Ist ein Apotheker
im Vergleich auch ein teures Element?
Ich bin gespannt auf eure Antworten.
Viele Grüße
wir schauen uns aktuell nach einer neuen Küche um und haben uns bereits in ein paar Geschäften
beraten und Küchen planen lassen. Nun brauche ich eure Unterstützung, da ich in dem Bereich
ein Laie bin.
1.
Als erstes muss ich mich entscheiden, ob ich eine grifflose Küche oder eine Küche mit Griffen haben möchte.
Rein intuitiv gefällt mir die grifflose Optik besser. Allerdings soll man platztechnisch Nachteile haben im Vergleich
mit einer Küche mit Griff. In den Auszügen hat man wohl viel mehr Platz bei "Griff-Küchen". Unsere Küche
ist normal groß (13 qm), es wird ein kleines U werden ohne Insel. Und ein Extra-Bereich gegenüber. Was meint ihr? Unabhängig von der Optik, was ja letzendlich geschmacksache ist, sollte ich mich lieber für die Griffe entscheiden?
2.
Bei den Planungen wurde jedes Mal ein Le Mans Schrank und ein Jalousie Schrank eingeplant. Im Forum habe ich
mich bereits ein wenig eingelesen. Die meisten im Forum scheinen gegen Le Mans oder ähnliche Ecklösungen zu
sein und lieber Schränke mit Auszügen bevorzugen, was ich durch das Forum nun auch verstanden habe. Also bieten Schränke mit Auszügen doch den effizientesten Stauraum?
Gibt es eine Alternative zum Jalousie Schrank? Denn dieser ist auch ganz schön teuer. In der angehängten Skizze
kann man sehen, wo er stehen wird. Geplant wurde einer mit Schwarz-Glas.
Wie sieht es mit Apotheker Schränken im unteren Bereich aus, also nur unter der Arbeitsplatte ? Sollte man
immer versuchen mit Auszügen zu planen oder auch mal 20 cm für einen Apotheker einplanen. Ist ein Apotheker
im Vergleich auch ein teures Element?
Ich bin gespannt auf eure Antworten.
Viele Grüße
Anhänge
