Unbeendet Neubau / offene Küche mit Insel

bambini

Mitglied
Beiträge
16
Hallo zusammen,

wir bauen ein massives EFH, Baugesuch ist draußen und wir sind gerade mitten in der Werkplanung. Deswegen haben wir zwar auch noch viele Möglichkeiten um z.B. Wände oder Fenster zu ändern/zu verschieben, so langsam muss dann aber auch feststehen, wie genau es denn sein soll.

Während unserer Suche nach der für unseren schmalen, offenen Grundriss optimalen Anordnung fehlt uns leider noch die richtige Idee.

Folgende Anforderungen haben wir:
- Wir möchten eine Speisekammer bzw. wenn das platztechnisch nicht geht zumindest viel Stauraum (Staubsauger, Besen, Vorräte usw.)
- Kücheninsel (frei stehend)
- bodentiefe Fenster (Position ist aber nicht fix)
- Tür zum Flur ist fix (wg. Treppe im Flur)
- Breite der Küche kann nicht mehr geändert werden (Breite innen 2,9m)
- Wand zur Speisekammer kann entfernt oder verschoben werden
- Wand zum Flur sollte nicht verschoben werden (aus statischen bzw. optischen Gründen ;-))
- die im Grundriss gezeigte Anordnung gefällt uns nicht, da die Spüle zu weit ums Eck ist. Das magische Dreieck ist so nicht ganz so magisch...
- Auf der Kücheninsel sollten keine Geräte stehen müssen. Dafür ist dann gesondert Bedarf (Toaster, Wasserkocher, Siebträger etc.)
- Speisekammer ist eigentlich zu groß und hat zu viele Eckschränke. Die würden wir auch gern vermeiden.

Wir hatten überlegt die Insel zu verlängern und Spüle mit in die Insel zu verlagern. Damit hat man allerdings den unschönen Effekt, dass die Spüle direkt sichtbar ist wenn man zur Türe vom Flur rein kommt. Siehe alnoplan Dateien.

Habt ihr vielleicht noch ganz neue Ideen ?

Checkliste zur Küchenplanung

Anzahl Personen im Haushalt: 4
Davon Kinder?: 2
Art des Gebäudes?: Neu-/Umbau, Planänderungen möglich
Körpergrössen aller Hauptbenutzer (wegen Arbeitshöhe ) in cm: 180 und 160
Brüstungshöhe des Fensters (in cm): 0
Fensterhöhe (in cm): 250
Raumhöhe in cm: 250
Heizung: Fussbodenheizung
Sanitäranschlüsse: vollkommen variabel
Ausführung Kühlgerät: Integriert im Hochschrank (60cm)
Kühlgerät Größe: noch unbekannt
Ausführung Tiefkühl (TK)-Gerät: Eigenständiges Gerät bis 72 cm Höhe
Dunstabzugshaube: Abluft
Backofen etc. hochgebaut?: Wenn möglich
Hochgebauter Geschirrspüler ?: Nein
Kochfeldart: Induktion
Kochfeldbreite ca. (in cm)?: 70
Spülenform: 1 Becken mit Abtropffläche
Geplante Heißgeräte: Standmikrowelle, Backofen
Küchenstil: Grifflos
Sitzmöglichkeit in der Küche / im Küchenbereich: Keine
Sitzmöglichkeit: Für wieviel Personen?: Nein
Sitzmöglichkeit: Tisch - wenn gesonderter Tisch oder offene Küche: Keiner
Gewünschte o. vorhandene Tischgröße:
Wofür soll der Sitzplatz in der Küche genutzt werden? Wie häufig?:
Welche Arbeitshöhe ist angedacht (in cm)?:
nicht festgelegt
Was steht auf der Arbeitsplatte oder soll dort stehen?: Siebträgermaschine
Welche weiteren Küchenmaschinen müssen in der Küche untergebracht werden?:
Wasserkocher, Toaster, Sonstiges (evtl. im Beitragstext benennen)
Was soll in der Küche außer den Standards untergebracht werden?: ALLE Vorräte, Staubsauger/Wischer etc., Bügelbrett, Geschirr komplett (nichts in Ess-/Wohnzimmer)
Welchen Stauraum gibt es sonst noch?: Speisekammer, Hauswirtschaftsraum, Keller
Was/wie wird gekocht? (Alltagsküche, Menüs, Snacks usw): Alltagsküche
Wie häufig wird gekocht?: (fast) täglich 1x warm
Wird alleine gekocht? Oder auch gemeinsam? Mit und für Gäste?: gemeinsam, ggfls. mit Kindern
Was stört an der bisherigen Küche und was soll die neue Küche unbedingt können? Warum?: Insel, damit die Kids mindestens mitschauen oder mitmachen können
Welche Mülltrennung soll in der Küche vorgehalten werden?: Biomüll, Gelber Sack Müll, Restmüll
Steht schon ein Küchenhersteller fest oder wird bevorzugt?: bulthaup , siematic , eggersmann
Steht schon ein Gerätehersteller fest oder wird bevorzugt?: nein, sollte zu grifflos und modern passen ;-)
Preisvorstellung (Budget): bis 25.000,-
--------------------
Im Threadverlauf hinzugekommen:
16.06. genauerer Grundriss Küchen/Essbereich:
Breite innen soll 290 cm sein:

kueche_ez-jpg.215566
 

Anhänge

  • Grundriss_EG.jpg
    Grundriss_EG.jpg
    68,4 KB · Aufrufe: 306
  • BAMBINI.KPL
    3,9 KB · Aufrufe: 184
  • BAMBINI.POS
    5,6 KB · Aufrufe: 190
Zuletzt bearbeitet von einem Moderator:
Hallo bambini,
zunächst mal herzlich Willkommen hier im Forum. Mein erstes Bauchgefühl sagt mir, dass das was ich im Grundriss sehe, nicht glücklich gelöst ist. Um einen besseren Einblick zu bekommen, wäre es schön, wenn du uns einen kompletten, gut leserlichen und vermaßten Grundrissplan einstellen könntest.
 
Hallo Sigi,

anbei nochmal. Hoffe das lässt sich so ablesen. Da wir (bis auf die Breite der Küche) noch Handlungsspielraum haben glaube ich es sollte möglich sein eine gute Küche dort reinzubekommen. Eine Idee war z.B. auch den Backofen einfach in die Speisekammer zu legen. Kaffeemaschine sollte natürlich nah an der Spüle sein.

Man könnte auch die Insel auf 90cm Breite beschränken und dann noch einen 60er Schrank rechts daneben setzen. Dann wirds aber sehr eng links/rechts mit Durchgang (1,4m, d.h. 2x70cm oder 1x90 und 1x60). Ob das aber noch gut ausschaut ist fraglich :(

Vielleicht gibts ja noch ganz andere Ideen ? Ggfls. muss auch die Speisekammer ganz weg (d.h. die Wand zur SK) und der komplette Platz genutzt werden. Das würde zumindest eine lange Insel ermöglichen.

VG
Bambini
 

Anhänge

  • EG.jpg
    EG.jpg
    56,1 KB · Aufrufe: 290
Hallo, ich habe leider den Alnoplaner nicht installiert.
Mein erster Gedanke war auch, Speisekammer weg. Aber dann wird der Raum in der Proportion sehr schmal und lang.

Deshalb würde ich als erste Idee überlegen, den Eingang zur Speisekammer nach vorne zu verlegen, dadurch rückt die Küchenzeile an die Außenwand. Die Insel dann zur Halbinsel drehen. So kommt wenigstens schon mal optimalere Magie ;-).
 
Hallo Anke,
wir hatten auch schon überlegt die Insel später anzufangen damit würde die Küche erst hinter der Flur-Tür beginnen. Dann hätte man einen größeren Essbereich. Stauraum wird dann halt nicht mehr so viel...
Eine Halbinsel zu machen geht natürlich, wollten wir aber eigentlich vermeiden. Dann kann man nicht mehr "drumrumlaufen" und stapelt sich dahinter. Außerdem sieht man die gesamte Ansichtsfläche der Insel vom Essbereich aus.
Danke auf jeden Fall für euer Feedback/Meinungen bisher! Weitere Ideen sind willkommen! :-)
Grüße
 
Ich bin mir nicht ganz sicher, ob du mich richtig verstanden hast.
Daher anbei mal der Grundriss, wie ich es gemeint habe. Einen Stauraumverlust gibt es dabei nicht, im Gegenteil die Halbinsel könnte tiefer sein.

Eine Insel zum drum rum laufen ist natürlich praktischer - keine Frage. Aber es kommt halt auf die Gegebenheiten an. Hier bei deiner Lösung hast du selbst schon festgestellt, dass es nicht optimal ist. Oder du tauschst Kochfeld und Spüle wie ich und schiebst die Spüle dann näher an die Zeile, so dass sie quasi ungefähr gegenüberliegen.

Als weitere Variante sehe ich sonst nur eine Auflösung der Speisekammer und dann eine ganz lange Insel mit Spüle und Kochfeld auf einer Seite.
 

Anhänge

  • Screen Shot 2016-04-15 at 17.12.15.png
    Screen Shot 2016-04-15 at 17.12.15.png
    75,2 KB · Aufrufe: 257
im Eingangspost schreibst du die Kücheninnenbreite ist 2.90.

Im Plan Post #3 steht aber 3.30m. Was stimmt?
 
Das ist die Außenwand mit 3,3m. Beide Seiten mit tragender Betonwand 20cm (links und rechts) müssen noch abgezogen werden. Dann sind es nur noch 2,9m Innenmaß auf der gesamten Länge.

Die Halbinsel ist zwar praktisch aber... eine Insel wär noch das i-Tüpfelchen.
Daher überlegen wir in der Tat die Speisekammer aufzugeben bzw. die dort drin gelagerten Sachen einfach in Hochschränke zu packen. Eine richtige (kalte) Speisekammer wäre es ja wg. thermischer Hülle eh nicht. Aber es sollte Platz für Staubsauger, Bügelbrett und ein paar Getränke sowie Gefrierschrank haben. Zu lang sollte die Insel dann aber ja auch nicht werden bzw. ist die Frage, ob 2,9m Hochschrank + Insel insgesamt ausreicht. Und ob der Raum dann nicht zu lang wirkt vom Essbereich aus. Sind ja dann doch fast 10m.

Eine Überlegung ist noch eine schmale Speisekammer zu machen mit z.B. nur 90cm Durchgangsbreite. Dann direkt im Anschluss nach oben die Hochschränke. Dann könnte man die Insel etwas länger machen. Aber es bleibt die Frage wie man die Spüle unterbringt. Auf der Insel wäre zwar kein Problem aber dann läuft man direkt durch die Tür auf die Spüle. Meine Frau meinte die Spüle auf der gegenüberliegenden Seite unterzubringen aber dann müsste man von Herd zu Spüle einmal um die Insel ?!

Oder die Spüle wie jetzt in den Hochschrank aber dann bleibt kein Platz für Kaffeemaschine, Toaster und Wasserkocher.
 
Hochschrank nicht Hochschrank sondern die Seite wo der "eine" Hochschrank steht. Ich mach grad ein Update des Grundrisses und poste dann gleich.

Edit: anbei der Grundriss. 2 Optionen für die Spüle. Direkt am Eingang die Spüle zu haben ist noch schlechter irgendwie. Ist so eine Lösung (Spüle gegenüber auf der Insel) öfter ? Hat das jemand ?

Ansonsten bleibt wohl bei einer reinen Insel nur die Lösung auf die Speisekammer zu verzichten und die Insel dann lang zu machen.
 

Anhänge

  • Grundriss_Kueche_Plan2.jpg
    Grundriss_Kueche_Plan2.jpg
    31,7 KB · Aufrufe: 221
Zuletzt bearbeitet:
Ich würde mit Hochschränken an der Wand unten und einer langen Insel mit Spüle und Kochfeld planen. Der Raum ist lang und schmal, das sollte man nutzen anstatt es zu retuschieren.

Wenn das Fenster des HWR veränderbar ist, könnte man unten auch zusätzlich einen kleinen Raum planen und einen versteckten Zugang in die HS-Wand integrieren.
 
Hab das mal so gezeichnet in Sketchup. Die Spüle ist dummerweise noch genau beim Eingang. Aber den Raum noch schmäler zu machen (jetzt 90cm Breite) ist nicht wirklich sinnvoll. Abstand Insel zur Schrankwand ist 1m. Das könnte man ggfls. auf 80 runterdrehen oder ? Da die Insel gedreht ist braucht man ja dort keine "Breite". Was meint ihr ?

Noch eine Frage zur Spüle: evtl. um 90° drehen und gegenüber von der Schrankwand ?
 

Anhänge

  • Grundriss_Insel.jpg
    Grundriss_Insel.jpg
    50,5 KB · Aufrufe: 218
Man kann ja ohne Probleme Spüle und Kochfeld tauschen. Spüle an die kurze Seite zu legen wäre eine schlechte Idee, da man daneben die Hauptarbeitsfläche hat.

Abstand Insel Schrankwand sollte nicht weniger als 1m sein, damit man dort ja auch noch den Kühlschrank aufmachen kann.
 
Wo soll denn die Terrasse hin? Wo ist Norden? Gibt es den Grundriss auch mal komplett vermaßt mit BRH und Breiten der geplanten Fenster?
 
hallo kerstin,

wir haben in den werkplänen die grundrisse nochmal überarbeitet. sobald ich ein update habe stelle ich mal die planung mit dem maßen ein.

grüße
 
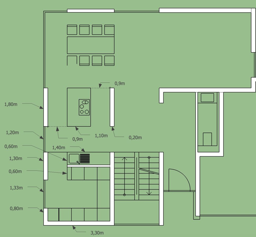
hallo,

lange hats gedauert aber hier nun das update. links der graue bereich ist die terasse (süden). oben rechts ist norden. die speisekammer soll in der form erhalten bleiben weil die küche sonst einfach viel zu lang wird (alleine 4,5m insel bzw. 6m von ez bis schränke). eine halbinsel macht aus meiner sicht auch nicht wirklich sinn, da man dann wieder platz verliert (in der insel) und die schränke an der wand zur speisekammer direkt an der tür beginnen müssten da sonst abstand schrank <-> halbinsel zu groß ist. damit wäre aber die speisekammer wieder viel zu groß.

in der jetzigen form hat man die möglichkeit auch nach draußen zu schauen beim kochen/backen/spülen usw. und hat genug platz in der insel. das einzige manko: die spüle ist direkt beim eingang zur küche. dort den herd zu platzieren und spüle ans ende der insel macht ja nicht wirklich sinn.

habt ihr noch ideen wie man das optimieren kann ? die spüle in die schrankwand zur speisekammer zu integrieren wäre zwar möglich aber dann fehlt links/rechts genug arbeitsfläche und platz für kaffeemaschine (siebträger).

grüße
 

Anhänge

  • Küche_EZ.jpg
    Küche_EZ.jpg
    75,2 KB · Aufrufe: 421
Leider ist der Plan nicht komplett vermaßt. Die linke Seite ja, aber Breitenmaße gesamt und geplant Speisekammer fehlen.
 
leider ist die speisekammer nicht direkt vermaßt. die innenbreite der küche hat 2,9m. mit meinem messwerkzeug komm ich auf eine tiefe der speisekammer von ca. 1,5m.
 
Die Wand zur Speisekammer wäre ja variabel zu setzen - oder? Und, die Speisekammer soll auch für Staubsauger, Wischer usw. dienen? Was ist mit Wama/Trockner?

In der Checkliste hast du dich nicht zur Kühlschrankgröße geäußert, nur TK ca. 72 cm .. wie sieht es mit Kühlschrank aus?

Soll es wirklich nur Toaster oder so geben? Was ist mit Kaffeemaschine oder KVA? Was ist mit Küchenmaschine etc.?

Den aktuellen Grundriss binde ich gleich im ersten Beitrag mit ein, dann läßt er sich besser finden.
 

Ähnliche Beiträge

Neff Hausgeräte Ballerina Küchen Blum Bewegungstechnologie Weibel - Intelligente Küchenlüftung

Neff Spezial

Blum Zonenplaner

Weibel Abluft-Tuning

Weibel Abluft-Tuning
Zurück
Oben