Unbeendet Küchenplanung seit Monaten erfolglos...

Lilja

Mitglied
Beiträge
4
Hallo,

bräuchte mal bitte Hilfe bei der Küchenplanung . Ich komme einfach nicht weiter und kenne mich zu wenig aus.
Meine Neubau-Mietkaufwohnung wird Anfang nächstes Jahr fertig.
Folgende Anforderungen:
Wasseranschluss = fix, Estrich bereits in der Whg.
keine weiße Küche (grau...)
nur Kombigerät (Dampfgarer mit Backofen )

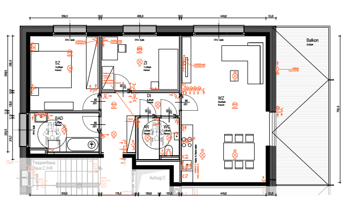
Bei den einen Plänen ist das Fenster neben der Balkontüre nicht eingezeichnet - geht fast bis zur Wand.

Jetzt bin ich mal auf eure Ideen gespannt.

Vielen lieben Dank im Voraus...

Checkliste zur Küchenplanung

Anzahl Personen im Haushalt: 2
Davon Kinder?:
Art des Gebäudes?:
Neu-/Umbau, Planänderungen nicht möglich
Körpergrössen aller Hauptbenutzer (wegen Arbeitshöhe ) in cm: 153 und 180
Brüstungshöhe des Fensters (in cm):
Fensterhöhe (in cm):
Raumhöhe in cm:
Heizung:
Sanitäranschlüsse:
fix
Ausführung Kühlgerät:
Kühlgerät Größe:
noch unbekannt
Ausführung Tiefkühl (TK)-Gerät:
Dunstabzugshaube:
Abluft
Backofen etc. hochgebaut?: Wenn möglich
Hochgebauter Geschirrspüler ?: Wenn möglich
Kochfeldart: Ceran (herkömmlich)
Kochfeldbreite ca. (in cm)?:
Spülenform:
Geplante Heißgeräte:
Dampfbackofen (DGC) mit Wasseranschluß, Dampfbackofen (DGC) ohne Wasseranschluß
Küchenstil: Modern
Sitzmöglichkeit in der Küche / im Küchenbereich: Gesonderter Tisch
Sitzmöglichkeit: Für wieviel Personen?:
Sitzmöglichkeit: Tisch - wenn gesonderter Tisch oder offene Küche:
Wird nach Bedarf neu gekauft
Gewünschte o. vorhandene Tischgröße:
Wofür soll der Sitzplatz in der Küche genutzt werden? Wie häufig?:
Welche Arbeitshöhe ist angedacht (in cm)?:
Was steht auf der Arbeitsplatte oder soll dort stehen?:
Kaffeevollautomat, Wasserkocher
Welche weiteren Küchenmaschinen müssen in der Küche untergebracht werden?:
Was soll in der Küche außer den Standards untergebracht werden?:
Welchen Stauraum gibt es sonst noch?:
Speisekammer, Keller
Was/wie wird gekocht? (Alltagsküche, Menüs, Snacks usw): Alltagsküche
Wie häufig wird gekocht?: ab und zu
Wird alleine gekocht? Oder auch gemeinsam? Mit und für Gäste?: alleine & gemeinsam
Was stört an der bisherigen Küche und was soll die neue Küche unbedingt können? Warum?:
Welche Mülltrennung soll in der Küche vorgehalten werden?:
Steht schon ein Küchenhersteller fest oder wird bevorzugt?:
Steht schon ein Gerätehersteller fest oder wird bevorzugt?:
Preisvorstellung (Budget):
bis 10.000,-
 

Anhänge

  • Bildschirmfoto 2016-10-25 um 18.32.44.png
    Bildschirmfoto 2016-10-25 um 18.32.44.png
    385,5 KB · Aufrufe: 427
  • Bildschirmfoto 2016-10-25 um 18.32.57.png
    Bildschirmfoto 2016-10-25 um 18.32.57.png
    618,1 KB · Aufrufe: 447
  • Bildschirmfoto 2016-10-25 um 18.33.15.png
    Bildschirmfoto 2016-10-25 um 18.33.15.png
    181,3 KB · Aufrufe: 419
  • Bildschirmfoto 2016-10-25 um 18.33.28.png
    Bildschirmfoto 2016-10-25 um 18.33.28.png
    51,6 KB · Aufrufe: 425
  • Bildschirmfoto 2016-10-25 um 18.34.07.png
    Bildschirmfoto 2016-10-25 um 18.34.07.png
    106,8 KB · Aufrufe: 683
  • Bildschirmfoto 2016-10-25 um 18.34.47.png
    Bildschirmfoto 2016-10-25 um 18.34.47.png
    299,3 KB · Aufrufe: 418
Hallo Lilja,

willkommen im Forum. Eine schöne Wohnung wird das, der Grundriss gefällt mir. Auch eine gut Eröffnung, kurz und knackig und dennoch alles da. Könntest du noch die genaue Position des Wasseranschlusses angeben?

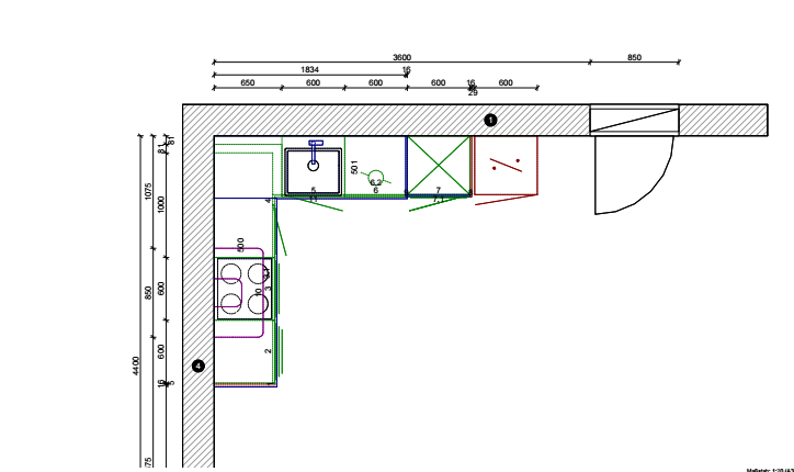
Hier mal mein Vorschlag für die Küche. Ich würde an der linken Wand (alle weiteren Richtungsangaben beziehen sich auf den Gesamtgrundriss) Hochschränke für Kühlschrank, Dampfbackofen und erhöhten GSP stellen. Alle Unterschränke an die untere Wand. So hast du eine schöne Arbeitszeile und eine moderne Optik. Das Wasser lässt sich problemlos aufputz verlängern und unter eine tieferen Arbeitsplatte verstecken. Hier und hier mal zwei ähnliche Küchen.


Lilja V1.jpg
 
Halo Lilja,

du hast ja bereits drei verschiedene Planungsbilder eingestellt.
Die Frage ist: warum kommt ihr seit Monaten nicht weiter? Was passt an den Vorschlägen nicht, was gefällt euch nicht, was hättet ihr gerne anders, welche Wünsche müssen noch erfüllt werden?
 
Vielen Dank für eure Antworten und die nette Aufnahme im Forum.

Hier noch das Bild mit den Anschlüssen, wie wir den Küchenplan vom Bauunternehmen erhalten haben. Es wäre nur eine Küchenzeile eingeplant gewesen, an der kurzen Wand neben der Tür.
Das ist mir aber viel zu wenig Arbeitsfläche ;-)

Da ich sehr klein bin, ist die Frage, ob ich Hochschränke brauche - sind ja auch nicht ganz günstig.

Habe mir zu viele Küchenangebote eingeholt und bin etwas verwirrt und es soll ja für viele Jahre praktisch sein und gefallen.

Schon die Frage nach dem Kühlschrank: Einbau oder Freistehend? Hab mich in Retro Kühlschränke verschaut... Aber ob das optisch gut kommt.
Ein Küchenplaner meint, ich brauche eine Insel, da ich in die Wand koche...
Wenn möglich hätte ich gerne Kombigerät & Spülmaschine erhöht.

Dann ist ja noch das Fenster, welches auf den meisten Plänen nicht eingezeichnet ist und neben der Balkontüre bis fast zur Wand reicht. Somit befürchte ich, dass Hochschränke an der langen Wand den Rest der Küche verdunkeln.

UND ganz wichtig - ich möchte einfach eine sehr flexible Küche, bei der Arbeitsplatz verschwinden oder erweitert werden kann, die Stauraum bietet, aber auch stylisch aussieht. Die Anzahl der Personen in der Wohnung wird variieren...

Ich hoffe, meine "Probleme" langweilen euch nicht.

Danke fürs Lesen.
 

Anhänge

  • Bildschirmfoto 2016-10-26 um 12.29.45.png
    Bildschirmfoto 2016-10-26 um 12.29.45.png
    408 KB · Aufrufe: 303
Zuletzt bearbeitet:
Das Bild verrät leider auch nicht wirklich wo der Anschluss ist, ggf. könntest du das beim Bauträger mal anfragen, der muss definitiv das Maß in seinen Unterlagen haben. Bis dahin kann man es wahrscheinlich grob auf 120-180cm von der unteren Wand eingrenzen.

Was sagst du denn zu dem Vorschlag in #2 und den zwei verlinkten Küchen? Käme das dem Wunsch nach Fläche und Optik entgegen? Ergonomisch wäre es von der Aufteilung und Hochstellung der Geräte auf jeden Fall.

Eine (Halb-)Insel wäre prinzipiell möglich, allerdings ginge das natürlich zulasten des Platzes für Essen und Wohnen und schränkt einen in der Flexibilität ein. Da ist ein L-Layout besser, da die Möbel im Raum verschiebbar sind.

Beim Kühlschrank scheiden sich die Geister. Ich persönlich mag Einbau-Geräte lieber, da sie sich optisch komplett integrieren und auf Idealhöhe einbauen lassen. dazu sind sie meist leiser, was bei offenen Küchen wichtig ist. Freistehende Geräte bieten dafür mehr Platz (wenn man jeweils Geräte gleicher Höhe vergleicht).

Und ich glaube du verwechselst Hochschränke und Oberschränke. Letztere hängen an der Wand, meist über der Arbeitsfläche. Erstere stehen auf dem Boden und beherbergen i.d.R. Geräte wie Kühlschrank und Backofen .
 
Optisch gefallen mir die Küchen sehr gut, besonders die erste (andere Frontfarbe ;-))
Allerdings kann ich eben nicht die ganze lange Seite benutzen, weil sonst die Oberschränke in das Fenster stehen.
Und ausserdem ist der Wasseranschluss an der kurzen Seite, somit muss das Waschbecken auf der kurzen Wand neben der Tür sein.
Das ist der Grund, dass das alles optisch noch nicht so ganz funktioniert.

Zur Info, die beiden grauen Küchen würden auf knapp EUR 12.000 kommen und die schwarze auch ca. 6.700.

Welche Arbeitsplatten könnt ihr empfehlen?

Ja, kann gut sein, dass ich als Unwissende Ober- und Hochschränke verwechsle :-)

Anbei noch ein Bild, hoffe, hier ist es mehr ersichtlich...
 

Anhänge

  • Bildschirmfoto 2016-10-26 um 14.03.49.png
    Bildschirmfoto 2016-10-26 um 14.03.49.png
    426 KB · Aufrufe: 324
Lilja, die Verlängerung des Wassers ist kein Problem und wird hier gefühlt bei 50% der Küchen gemacht, das habe ich oben bereits geschrieben. Oberschränke kann man mit Abstand zum Fenster montieren oder ganz weglassen, das kommt auf euren Platzbedarf an. Ist es ein bodentiefes Fenster rechts oder hat es eine höhere Brüstungshöhe ?

Du springst aber gerade vor und zurück. Farbe und APL Material ist gerade noch zweitrangig. Lass uns erstmal die Form der Küche festlegen, dann in Schränke aufteilen und dann kann man sich Gedanken über Front und APL machen.

Und das Bild hilft in der Tat, die Wasseranschlüsse befinden sich 153cm von der unteren Wand. Man könnte also die Spüle neben die HS legen, z.B. in einen 100er US, und dann die Zeile an der unteren Wand fortführen oder das Wasser ein Stück bis zur Spüle an der unteren Wand aufputz verlängern.
 
Hallo Lilja, ich habe mal Bilder gefunden, wie man Wasseranschluss verlegen lassen kann.
https://www.kuechen-forum.de/forum/...mit-abschlussbericht.21519/page-2#post-382973
Im Beitrag 33 findest du die Bilder.
Ich glaube, das lohnt sich. Die von Nilsblau empfohlene Küchen schauen sehr gut aus und sind auch praktisch. Du hättest SpüMa und BO hochgestellt, genug Arbeitsplatz. So hast viel Platz auch für Tisch, kann man sogar den ausziehen oder drehen je nach Besucherzahl.
Du kannst natürlich die Küche in Grau nehmen, ich finde mit Holz kombiniert kann man sehr wohnlich aber auch modern gestalten.
Wenn du dein Spülbecken dort Planst, wo jetzt der Wasseranschluss ist und Hochschränke noch daneben, dann wird es eng...
 
UND ganz wichtig - ich möchte einfach eine sehr flexible Küche, bei der Arbeitsplatz verschwinden oder erweitert werden kann, ...

DAS ist mal eine Herausforderung! ;-)
So etwas gibt es schon, Stichwort Taschentüren zum Verstecken von Küchen, aber das spielt preislich in einer ganz anderen Liga.
Arbeitsplatz erweitern: da könntest du z.B. statt eines letzten breiten Unterschrankes* neben dem Balkonfenster einen rollbaren Küchenwagen/Kücheninsel stellen, der nach Bedarf auch mal in die Mitte des Raumes gefahren werden kann und dann von allen Seiten zugänglich ist.
Diese Dinger kannst du googeln, die kommen eher nicht aus dem Küchenfachgeschäft, oder sie werden vom Schreiner/selber gemacht, obenauf dann ein Stück der Original-APL (passend mitbestellen, rundherum bekantet), dann integriert sich das auch gut. So könntet ihr sogar zwei verschiedene Arbeitshöhen realisieren, was bei euren Größen sinnvoll wäre.

*Nilsblaus Zeilen-Aufteilung dann etwas anders anlegen, zB 40 - 60 Spüle - 40 MUPL - 60 US - 80 US mit 60cm Kochfeld - 90 Küchenwagen.

Ein Auszugschrank auf Rollen eignet sich nicht dafür, er würde kippen wenn man die Auszüge öffnet.
 
Eventuell kann man zur Wandzeile für Spüle und Hochschränke (Wie im Bauplan) eine Kochhalbinsel paralell aufstellen. Aber dann fehlt irgendwie der Platz für ein Esstisch, oder? Mir gefällt irgendwie nicht diese Eckküche für diesen großen Raum. Irgendwie schaut es aus, wie mitten drin einfach aufhören würde, weil die Schränke ausgegangen sind...:-\, sorry.
 
Super, danke für die Info, vorallem die Abwasserverlegung find ich genial. Dachte echt und es wurde mir auch so gesagt, dass ich, weil Estrich schon drin, die Spüle fix bleiben muss...
Jetzt macht´s wieder Spass daran rumzutüfteln.

Tolle Küche Julika, finde die Ausatzvirtrine super.
Rollbare Kücheninsel, Buffet... wollt ich mir sowieso anschaffen. Küchenplaner haben aber alle gleich abgeblockt. Werd ich extern und günstig woanders zusammenstellen.

Eventuell überleg ich auch kleine Regale bis zum Fenster, welche dann auch als Sitzgelegenheit und Stauraum genutzt werden können.

Ich bin Köchin von Beruf und arbeite halt in Gastroküchen. Drum habe ich immer das Gefühl, alles ist mir zu klein. Aber für mich ist es meine erste eigenen Wohnung mit Küche wie gesagt bei uns zu Hause ausschließlich Gastroküche.

Aber dank euch kommen wir der ganzen Sache schon ziemlich nahe. Dankeschön...
 
Lilja, die Küche ist nicht meine (wenn du so gedacht hast), nur weil ich schon länger hier lese, habe ich mich daran erinnert, dass hier jemand so gute anschauliche Bilder gemacht hat...Sonst finde Landhausküchen auch schön...
Vielleicht kommen noch gute Ideen von den PlanerInnen, wie eine wohnliche Küche bei dir einbauen kann. Ich habe Alno -Planer nicht, dass ich da was schieben könnte...
 
@Lilja ... soll es hier noch weitergehen? Dann mal reell dieses immer wieder benannte Fenster in diesen Grundriss einzeichnen:
bildschirmfoto-2016-10-25-um-18-34-07-png.225895


Und, vielleicht auch mal ein Foto vom Raum. Denn die Planung von Nilsblau
lilja-v1-jpg.225923


hat doch alles, was du brauchst. Es muss planlinks jetzt halt etwas angepaßt werden, damit das Wasser um die Ecke zur Spüle kommt.

Und, wichtig wäre auch noch, wie die Fenster/Balkontüren planrechts nun genau aufgeteilt sind, welches die hauptöffnende Tür ist usw.
 

Ähnliche Beiträge

Neff Hausgeräte Ballerina Küchen Blum Bewegungstechnologie Weibel - Intelligente Küchenlüftung

Neff Spezial

Blum Zonenplaner

Weibel Abluft-Tuning

Weibel Abluft-Tuning
Zurück
Oben