Gurky
Mitglied
- Beiträge
- 6
Liebe Küchenplaner/Innen,
nachdem einem Kollegen hier bei der Küchenplanung wirklich toll geholfen wurde (einige Ideen wie den MUPL haben wir schon übernommen), wenden wir uns auch an dieses Forum mit der Bitte um Hilfe.
Wir (Familie mit 3 Kindern: 6,4,0 Jahre) planen zur Zeit die Sanierung einer Doppelhaushälfte.
Dabei wollen wir auch die Küche neu gestalten und waren auch schon in einem Küchenstudio .
Die Pläne, wie im Thread vorgeschlagen, habe ich angehängt. Außer den aktuellen Plänen wollen wir im Übergang zum Wohnbereich noch eine Bar mihilfe einer höheren Platte über der Arbeitsplatte haben. Ansonsten haben wir keine Ahnung von Küchen, weil wir bisher in Mietwohnungen einfach die vorhandene Küche verwendet haben.
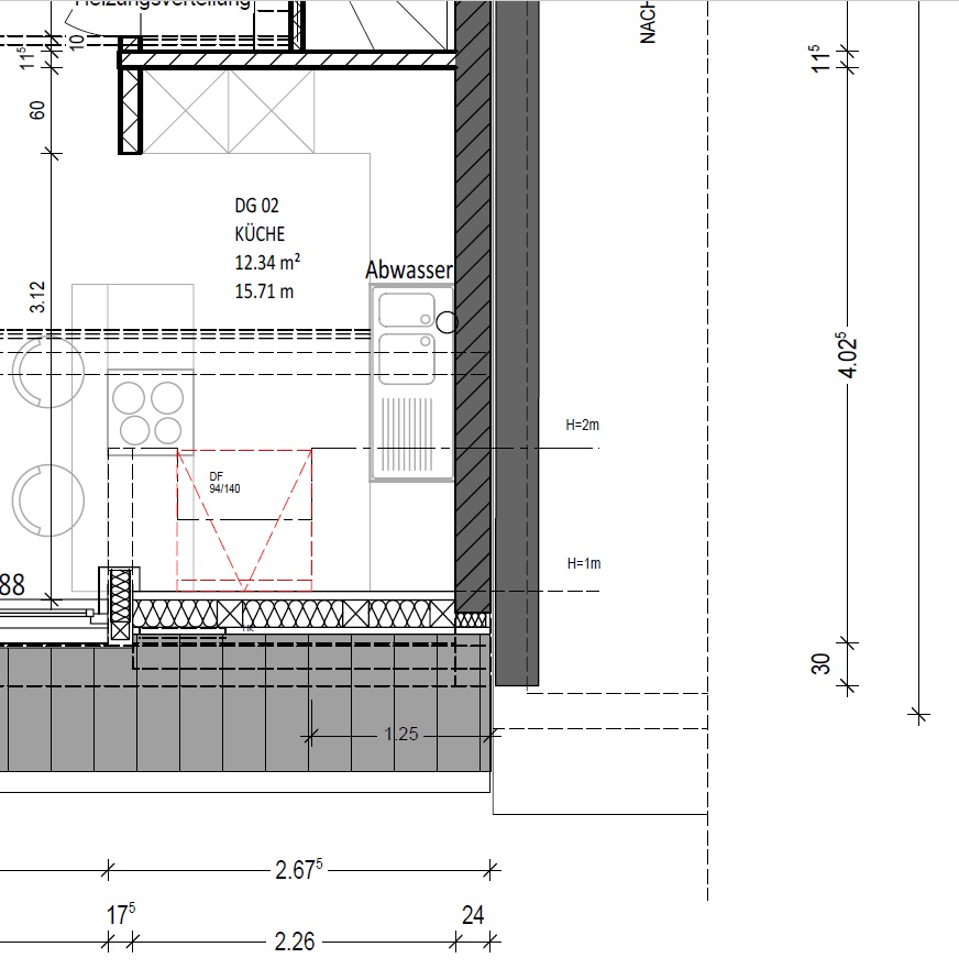
Schwierigkeiten macht die Dachschräge unten, die dazu führt, dass wir da wohl eine tiefe Arbeitsplatte brauchen damit wir stehen können.
Deshalb würden wir Euch bitten einmal über die Pläne drüber zu schauen: Was fällt euch auf?
Was würdet ihr noch ändern?
Macht die Aufteilung so Sinn?
Bei den Geräten wurde Miele geplant, ist der Hersteller zu empfehlen oder würdet ihr einen anderen Hersteller vorschlagen?
Beste Grüße und im voraus ein riesengroßes Dankeschön von
Gurky und Familie
Checkliste zur Küchenplanung
Anzahl Personen im Haushalt: 5
Davon Kinder?: 3
Art des Gebäudes?: Neu-/Umbau, Planänderungen möglich
Körpergrössen aller Hauptbenutzer (wegen Arbeitshöhe ) in cm: 186cm und 174cm + Kinder
Brüstungshöhe des Fensters (in cm): 100 (Dachfenster)
Fensterhöhe (in cm): 100 (schräg)
Raumhöhe in cm: 223
Heizung: Fussbodenheizung
Sanitäranschlüsse: vollkommen variabel
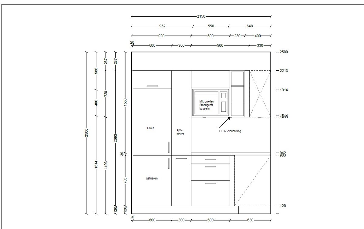
Ausführung Kühlgerät: Integriert im Hochschrank (60cm)
Kühlgerät Größe: bis 102 cm Höhe
Ausführung Tiefkühl (TK)-Gerät: Im Kühlschrank bis 2 Schubladen unten
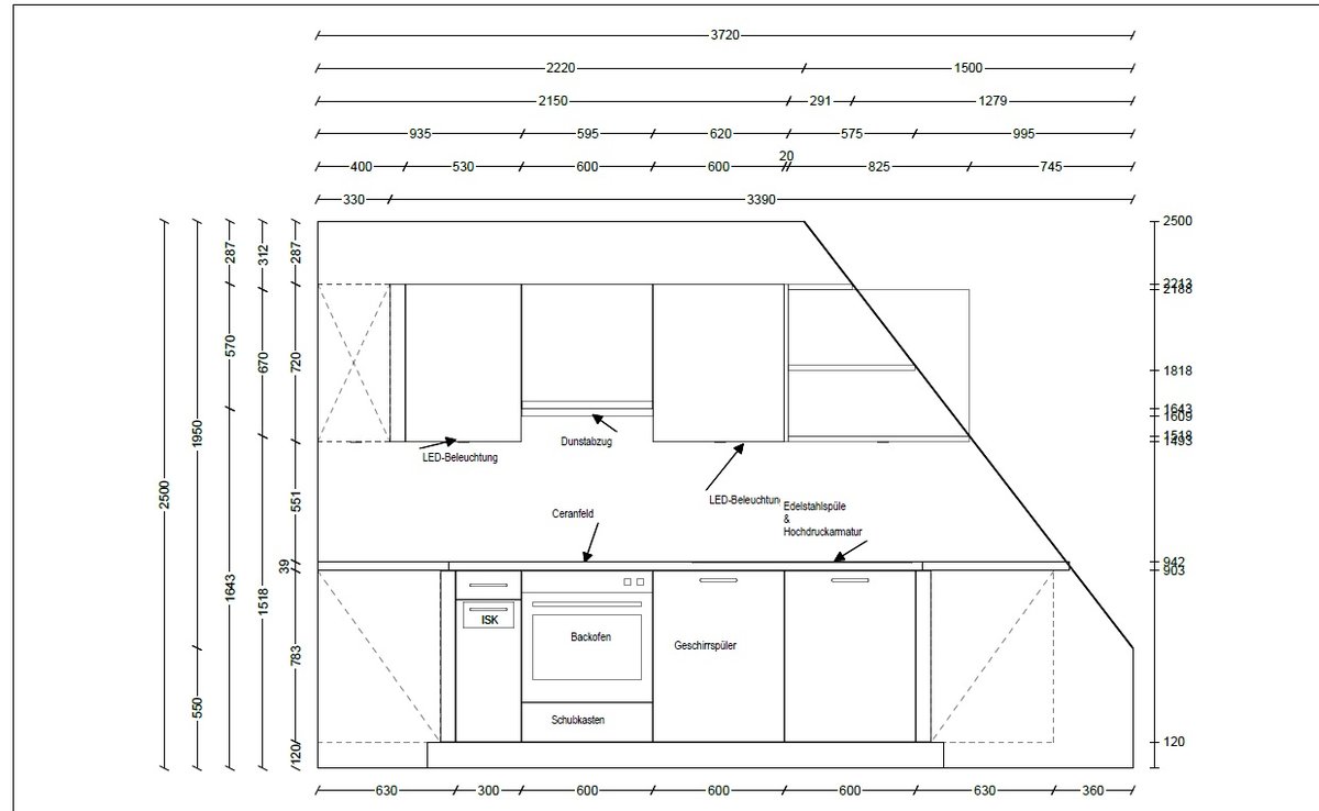
Dunstabzugshaube: Umluft
Backofen etc. hochgebaut?: Nein
Hochgebauter Geschirrspüler ?: Nein
Kochfeldart: Ceran (herkömmlich)
Kochfeldbreite ca. (in cm)?: 60
Spülenform: 1 Becken mit Abtropffläche
Geplante Heißgeräte: Standmikrowelle, Backofen
Küchenstil: Modern
Sitzmöglichkeit in der Küche / im Küchenbereich: Tresen in Barhöhe
Sitzmöglichkeit: Für wieviel Personen?: für 2 Personen
Sitzmöglichkeit: Tisch - wenn gesonderter Tisch oder offene Küche:
Gewünschte o. vorhandene Tischgröße:
Wofür soll der Sitzplatz in der Küche genutzt werden? Wie häufig?:
Welche Arbeitshöhe ist angedacht (in cm)?: 94
Was steht auf der Arbeitsplatte oder soll dort stehen?: Wasserkocher, Messerblock, Toaster, Brotbehälter, Obstschale
Welche weiteren Küchenmaschinen müssen in der Küche untergebracht werden?: Küchenmaschine
Was soll in der Küche außer den Standards untergebracht werden?: Geschirr komplett (nichts in Ess-/Wohnzimmer)
Welchen Stauraum gibt es sonst noch?: Speisekammer
Was/wie wird gekocht? (Alltagsküche, Menüs, Snacks usw): Alltagsküche
Wie häufig wird gekocht?: (fast) täglich 1x warm
Wird alleine gekocht? Oder auch gemeinsam? Mit und für Gäste?: Eher nur für die Familie.
Was stört an der bisherigen Küche und was soll die neue Küche unbedingt können? Warum?: Gute Frage, wir haben zu wenig Stauraum in der Nähe der Arbeitsflächen.
Welche Mülltrennung soll in der Küche vorgehalten werden?: Altglas, Altpapier, Biomüll, Gelber Sack Müll, Restmüll
Steht schon ein Küchenhersteller fest oder wird bevorzugt?: Nein
Steht schon ein Gerätehersteller fest oder wird bevorzugt?: Nein
Preisvorstellung (Budget): bis 20.000,-
nachdem einem Kollegen hier bei der Küchenplanung wirklich toll geholfen wurde (einige Ideen wie den MUPL haben wir schon übernommen), wenden wir uns auch an dieses Forum mit der Bitte um Hilfe.
Wir (Familie mit 3 Kindern: 6,4,0 Jahre) planen zur Zeit die Sanierung einer Doppelhaushälfte.
Dabei wollen wir auch die Küche neu gestalten und waren auch schon in einem Küchenstudio .
Die Pläne, wie im Thread vorgeschlagen, habe ich angehängt. Außer den aktuellen Plänen wollen wir im Übergang zum Wohnbereich noch eine Bar mihilfe einer höheren Platte über der Arbeitsplatte haben. Ansonsten haben wir keine Ahnung von Küchen, weil wir bisher in Mietwohnungen einfach die vorhandene Küche verwendet haben.
Schwierigkeiten macht die Dachschräge unten, die dazu führt, dass wir da wohl eine tiefe Arbeitsplatte brauchen damit wir stehen können.
Deshalb würden wir Euch bitten einmal über die Pläne drüber zu schauen: Was fällt euch auf?
Was würdet ihr noch ändern?
Macht die Aufteilung so Sinn?
Bei den Geräten wurde Miele geplant, ist der Hersteller zu empfehlen oder würdet ihr einen anderen Hersteller vorschlagen?
Beste Grüße und im voraus ein riesengroßes Dankeschön von
Gurky und Familie
Checkliste zur Küchenplanung
Anzahl Personen im Haushalt: 5
Davon Kinder?: 3
Art des Gebäudes?: Neu-/Umbau, Planänderungen möglich
Körpergrössen aller Hauptbenutzer (wegen Arbeitshöhe ) in cm: 186cm und 174cm + Kinder
Brüstungshöhe des Fensters (in cm): 100 (Dachfenster)
Fensterhöhe (in cm): 100 (schräg)
Raumhöhe in cm: 223
Heizung: Fussbodenheizung
Sanitäranschlüsse: vollkommen variabel
Ausführung Kühlgerät: Integriert im Hochschrank (60cm)
Kühlgerät Größe: bis 102 cm Höhe
Ausführung Tiefkühl (TK)-Gerät: Im Kühlschrank bis 2 Schubladen unten
Dunstabzugshaube: Umluft
Backofen etc. hochgebaut?: Nein
Hochgebauter Geschirrspüler ?: Nein
Kochfeldart: Ceran (herkömmlich)
Kochfeldbreite ca. (in cm)?: 60
Spülenform: 1 Becken mit Abtropffläche
Geplante Heißgeräte: Standmikrowelle, Backofen
Küchenstil: Modern
Sitzmöglichkeit in der Küche / im Küchenbereich: Tresen in Barhöhe
Sitzmöglichkeit: Für wieviel Personen?: für 2 Personen
Sitzmöglichkeit: Tisch - wenn gesonderter Tisch oder offene Küche:
Gewünschte o. vorhandene Tischgröße:
Wofür soll der Sitzplatz in der Küche genutzt werden? Wie häufig?:
Welche Arbeitshöhe ist angedacht (in cm)?: 94
Was steht auf der Arbeitsplatte oder soll dort stehen?: Wasserkocher, Messerblock, Toaster, Brotbehälter, Obstschale
Welche weiteren Küchenmaschinen müssen in der Küche untergebracht werden?: Küchenmaschine
Was soll in der Küche außer den Standards untergebracht werden?: Geschirr komplett (nichts in Ess-/Wohnzimmer)
Welchen Stauraum gibt es sonst noch?: Speisekammer
Was/wie wird gekocht? (Alltagsküche, Menüs, Snacks usw): Alltagsküche
Wie häufig wird gekocht?: (fast) täglich 1x warm
Wird alleine gekocht? Oder auch gemeinsam? Mit und für Gäste?: Eher nur für die Familie.
Was stört an der bisherigen Küche und was soll die neue Küche unbedingt können? Warum?: Gute Frage, wir haben zu wenig Stauraum in der Nähe der Arbeitsflächen.
Welche Mülltrennung soll in der Küche vorgehalten werden?: Altglas, Altpapier, Biomüll, Gelber Sack Müll, Restmüll
Steht schon ein Küchenhersteller fest oder wird bevorzugt?: Nein
Steht schon ein Gerätehersteller fest oder wird bevorzugt?: Nein
Preisvorstellung (Budget): bis 20.000,-
Anhänge
-
Draufsicht.jpg75,6 KB · Aufrufe: 956 -
Stockwerk Grundriss.jpg168,2 KB · Aufrufe: 859 -
Seite rechts.jpg39,6 KB · Aufrufe: 303 -
Seite links.jpg53,6 KB · Aufrufe: 303 -
Perspektive seitlich.jpg60,3 KB · Aufrufe: 303 -
Perspektive oben.jpg78,5 KB · Aufrufe: 306 -
Mitte.jpg71,4 KB · Aufrufe: 1.164 -
Küche Grundriss.jpg133 KB · Aufrufe: 906







