papadaus
Mitglied
- Beiträge
- 8
Liebe Forenmitglieder,
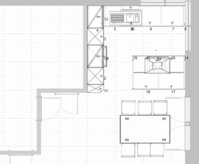
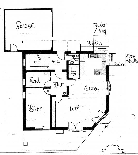
wir werden dieses Jahr mit dem Hausbau beginnen und planen momentan unsere Küche, damit wir die richtigen Stellen für unsere Sanitär- und Elektroleitungen festlegen können.
Die Küche soll viel Arbeitsfläche und auch Bewegungsfreiraum haben, da wir doch ab und zu mit zwei Erwachsenen und zwei Teenagern in der Küche sind.
Als Abschluss der Küche zum Esszimer hin möchten wir einen Tresen, an dem morgens auch mal auf die Schnelle ein Kaffee getrunken werden kann.
Eckspüle ist für uns eine Alternative, wobei sie hier im Forum nicht unbedingt empfohlen wird, aber sie gefällt uns trotzdem.
In die eine Ecke kommen Eckfenster, die zum öffnen sind, wobei hier Brüstungshöhe und Fensterhöhe von uns noch festgelegt werden können. Ansonsten sind wir in der Planung noch offen für alles.
Vielen Dank für Vorschläge, wie wir unsere Küche optimal erstellen können.
Tina
Checkliste zur Küchenplanung von papadaus
Anzahl Personen im Haushalt : 4
Davon Kinder? : 2
Körpergrössen aller Hauptbenutzer (wegen Arbeitshöhe ) in cm : 165, 180
Art des Gebäudes? : Neu-/Umbau, Planänderungen möglich
Brüstungshöhe des Fensters (in cm) : noch wählbar
Fensterhöhe (in cm) : noch wählbar
Raumhöhe in cm: : 250
Heizung : Fussbodenheizung
Sanitäranschlüsse : vollkommen variabel
Ausführung Kühlgerät? : Stand-Alone bis 75 cm Breite
Kühlgerät Größe : bis 175 cm Höhe
Ausführung Tiefkühl (TK)-Gerät : Nicht erforderlich bzw. steht woanders
Dunstabzugshaube? : Abluft
Hochgebauter Backofen ? : Wenn möglich
Hochgebauter Geschirrspüler ? : nein
Kochfeldart? : Induktion
Kochfeldbreite ca. (in cm)? : 60-80
Spülenform: : Noch nicht festgelegt
Weitere geplante Heißgeräte : Einbaumikrowelle
Küchenstil? : modern
Sitzmöglichkeit in der Küche / im Küchenbereich als : Überstehende Arbeitsplatte
Sitzmöglichkeit: Für wieviel Personen? : für 2 Personen
Sitzmöglichkeit: Tisch - wenn gesonderter Tisch oder offene Küche : Wird nach Bedarf neu gekauft
Gewünschte o. vorhandene Tischgröße : 180x90
Wofür soll der Sitzplatz in der Küche genutzt werden? Wie häufig? : morgens
Welche Arbeitshöhe ist angedacht (in cm)? : 99/86?
Was steht auf der Arbeitsplatte oder soll dort stehen? : Kaffeevollautomat, Wasserkocher
Welche weiteren Küchenmaschinen müssen in der Küche untergebracht werden? : Toaster, Schneidemaschine (z. B. in Schublade), Handrührgerät, Pürierstab, Eierkocher
Was soll in der Küche außer den Standards untergebracht werden? : Geschirr komplett (nichts in Ess-/Wohnzimmer)
Welchen Stauraum gibt es sonst noch? : Speisekammer, Keller
Was/wie wird gekocht? (Alltagsküche, Menüs, Snacks usw) : Alltagsküche
Wie häufig wird gekocht? : (fast) täglich 1x warm
Wird alleine gekocht? Oder auch gemeinsam? Mit und für Gäste? : zu zweit
Was stört an der bisherigen Küche und was soll die neue Küche unbedingt können? Warum? : neue Küche soll viel Arbeitsfläche haben
Steht schon ein Küchenhersteller fest oder wird bevorzugt? : nein
Steht schon ein Gerätehersteller fest oder wird bevorzugt? : nein
Preisvorstellung (Budget) : bis 20.000,-
wir werden dieses Jahr mit dem Hausbau beginnen und planen momentan unsere Küche, damit wir die richtigen Stellen für unsere Sanitär- und Elektroleitungen festlegen können.
Die Küche soll viel Arbeitsfläche und auch Bewegungsfreiraum haben, da wir doch ab und zu mit zwei Erwachsenen und zwei Teenagern in der Küche sind.
Als Abschluss der Küche zum Esszimer hin möchten wir einen Tresen, an dem morgens auch mal auf die Schnelle ein Kaffee getrunken werden kann.
Eckspüle ist für uns eine Alternative, wobei sie hier im Forum nicht unbedingt empfohlen wird, aber sie gefällt uns trotzdem.
In die eine Ecke kommen Eckfenster, die zum öffnen sind, wobei hier Brüstungshöhe und Fensterhöhe von uns noch festgelegt werden können. Ansonsten sind wir in der Planung noch offen für alles.
Vielen Dank für Vorschläge, wie wir unsere Küche optimal erstellen können.
Tina
Checkliste zur Küchenplanung von papadaus
Anzahl Personen im Haushalt : 4
Davon Kinder? : 2
Körpergrössen aller Hauptbenutzer (wegen Arbeitshöhe ) in cm : 165, 180
Art des Gebäudes? : Neu-/Umbau, Planänderungen möglich
Brüstungshöhe des Fensters (in cm) : noch wählbar
Fensterhöhe (in cm) : noch wählbar
Raumhöhe in cm: : 250
Heizung : Fussbodenheizung
Sanitäranschlüsse : vollkommen variabel
Ausführung Kühlgerät? : Stand-Alone bis 75 cm Breite
Kühlgerät Größe : bis 175 cm Höhe
Ausführung Tiefkühl (TK)-Gerät : Nicht erforderlich bzw. steht woanders
Dunstabzugshaube? : Abluft
Hochgebauter Backofen ? : Wenn möglich
Hochgebauter Geschirrspüler ? : nein
Kochfeldart? : Induktion
Kochfeldbreite ca. (in cm)? : 60-80
Spülenform: : Noch nicht festgelegt
Weitere geplante Heißgeräte : Einbaumikrowelle
Küchenstil? : modern
Sitzmöglichkeit in der Küche / im Küchenbereich als : Überstehende Arbeitsplatte
Sitzmöglichkeit: Für wieviel Personen? : für 2 Personen
Sitzmöglichkeit: Tisch - wenn gesonderter Tisch oder offene Küche : Wird nach Bedarf neu gekauft
Gewünschte o. vorhandene Tischgröße : 180x90
Wofür soll der Sitzplatz in der Küche genutzt werden? Wie häufig? : morgens
Welche Arbeitshöhe ist angedacht (in cm)? : 99/86?
Was steht auf der Arbeitsplatte oder soll dort stehen? : Kaffeevollautomat, Wasserkocher
Welche weiteren Küchenmaschinen müssen in der Küche untergebracht werden? : Toaster, Schneidemaschine (z. B. in Schublade), Handrührgerät, Pürierstab, Eierkocher
Was soll in der Küche außer den Standards untergebracht werden? : Geschirr komplett (nichts in Ess-/Wohnzimmer)
Welchen Stauraum gibt es sonst noch? : Speisekammer, Keller
Was/wie wird gekocht? (Alltagsküche, Menüs, Snacks usw) : Alltagsküche
Wie häufig wird gekocht? : (fast) täglich 1x warm
Wird alleine gekocht? Oder auch gemeinsam? Mit und für Gäste? : zu zweit
Was stört an der bisherigen Küche und was soll die neue Küche unbedingt können? Warum? : neue Küche soll viel Arbeitsfläche haben
Steht schon ein Küchenhersteller fest oder wird bevorzugt? : nein
Steht schon ein Gerätehersteller fest oder wird bevorzugt? : nein
Preisvorstellung (Budget) : bis 20.000,-
Anhänge
-
Scan EG Küche.jpg33,5 KB · Aufrufe: 170 -
Scan EG.jpg52,6 KB · Aufrufe: 190 -
PLAN2.KPL4,1 KB · Aufrufe: 202
-
PLAN2.POS5,5 KB · Aufrufe: 178
-
PLAN4.KPL4,1 KB · Aufrufe: 212
-
PLAN4.POS5,2 KB · Aufrufe: 157
-
Grundriss Plan2.JPG12,8 KB · Aufrufe: 170 -
Grundriss Plan4.JPG12,8 KB · Aufrufe: 165 -
Vollbild Plan 2.jpg40 KB · Aufrufe: 174 -
Vollbild Plan4.jpg41,5 KB · Aufrufe: 166
Zuletzt bearbeitet:







