Misstake
Mitglied
- Beiträge
- 2
Küchenplanung im Altbau
Hallo liebes Forum,
wir sind jetzt bei der Küchenplanung für unsere Kernsanierung angekommen. Eine grobe Form der Küche steht schon fest, da es mit Türen, Fenstern etc. kaum andere Stellmöglichkeiten gibt. Die entsprechenden Anschlüsse haben wir so auch bereits vorgesehen. D.h. da ist nicht mehr so viel Flexibilität (da sind wir ehrlicherweise durch das Tempo der Baustelle etwas überrumpelt worden).
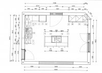
Im Anhang findet Ihr die erste Planung. Es ist eine Häcker Systemat Küche verplant mit 10cm Sockel und 78cm Korpushöhe und AV3030-Fronten. Insgesamt kommen wir auf 92cm Arbeitshöhe .
An die Balkontür wird sich eine Terasse anschließen und gegenüber ist der Raum über einen etwa 2m breiten Durchgang (mit Schiebetür) zum Wohn-Essbereich offen. D.h. Sitzgelegenheiten in der Küche benötigen wir nicht.
Ebenso gibt es einen Hauswirtschafts-/Vorratsraum in dem auch nochmal ein zweiter Kühlschrank/Tiefkühlschrank seinen Platz finden kann. Ebenso wie wenig genutzte Küchengeräte, Utensilien etc.
D.h. Stauraum ist nicht das Problem. Arbeitsfläche vielleicht schon?
Zur Kochinsel haben wir die Idee, dass wir sie statt mit den Wangen mit roten Ziegelsteinen umfassen (das Haus ist ein altes Ziegelsteinhaus) Daher würde die Arbeitsfläche der Insel auf beiden Seiten etwa 25cm länger, die Unterschränke, Herd und Abzugshabe verschieben sich entsprechend um 25cm nach rechts.
Man könnte in dem Zug die Kochinsel auch noch etwas breiter (Richtung Durchgang zum Wohn/Essbereich) machen. Ergibt das Sinn? (Aktuell ist es 1 Meter).
Außerdem gäbe es die Überlegung, da ich eher klein bin, dass wir die Kochinsel etwas niedriger planen.
Reicht die Arbeitsfläche? Tendenziell liebäugel ich schon mit einem Dampfgarer/Backofen mit Dampfgarfunktion - der ist in der Planung erstmal nicht vorgesehen. Eine Mikrowelle hätten wir in der jetzigen Planung über dem Herd versteckt.
In 14 Tagen haben wir den nächsten Termin im Küchenstudio , davor möchte ich mich möglichst gut aufstellen und recht konkrete Vorstellungen entwickeln, was geändert werden muss und welche Elemente die Küche noch haben sollte. Über Tipps, Verbesserungsvorschläge und Anregungen bin ich daher sehr dankbar.
Preislich haben wir zwar einen Kostenvoranschlag von 14000 inkl Geräte (NEFF ), aber noch nicht verhandelt. Es wird sicher nicht bei den folierten Fronten bleiben - allerdings gefällt uns die Kastenform schon sehr gut und passt auch einfach gut zum Haus.
Checkliste zur Küchenplanung
Personenkriterien und Ergonomie
Anzahl Personen im Haushalt: 3
Davon Kinder: 1
Körpergrößen aller Hauptbenutzer in cm (wegen Arbeitshöhe): 160cm und 185cm
Welche Arbeitshöhe ist angedacht (in cm)?: 92cm
Gebäudekriterien
Art des Gebäudes: Bestandsbau > (kleinere) Umbauten möglich
Brüstungshöhe des Fensters (in cm): Kann ich aktuell nicht genau sagen, aber definitiv typisch Altbau zu tief für eine vernünftige Arbeitshöhe
Fensterhöhe (in cm):
Raumhöhe in cm: ca. 3 Meter (Decke wird noch abgehängt)
Heizung: Fußbodenheizung
Sanitäranschlüsse: fix
Einbaugerätekriterien
Ausführung Kühlgerät: Integriert im Hochschrank (60cm)
Einbaukühlgerät Größe: Noch unbekannt
Ausführung Tiefkühl (TK)-Gerät: Nicht erforderlich bzw. steht woanders
Dunstabzugshaube: Abluft
Hochgebauter Backofen : ja
Geplante Heißgeräte: Backofen
Hochgebauter Geschirrspüler : ja
Art des Kochfeldes: Induktion
Kochfeldbreite (ca. in cm):
Sitzmöglichkeiten
Sitzmöglichkeit in der Küche / im Küchenbereich: Keine
Sitzmöglichkeit: Für wieviel Personen?: nein
Sitzmöglichkeit: Tisch - wenn gesonderter Tisch oder offene Küche: Keiner
Gewünschte oder vorhandene Tischgröße:
Wofür soll der Sitzplatz in der Küche genutzt werden und wie häufig:
Stauraumplanung
Was steht auf der Arbeitsplatte oder soll dort stehen?: Kaffeemaschine, Wasserkocher, Messerblock, Toaster, Brotbehälter, Obstschale
Welche weiteren Küchenmaschinen müssen in der Küche untergebracht werden: Handrührgerät, Mixer, Pürierstab, Sonstiges (evtl. im Beitragstext benennen)
Was soll in der Küche außer den Standards untergebracht werden: Geschirr komplett (nichts in Ess-/Wohnzimmer)
Welchen Stauraum gibt es sonst noch: Geschirr/Gläserschrank im Wohn-/Esszimmer, Speisekammer, Hauswirtschaftsraum
Kochgewohnheiten
Was/wie wird gekocht? (Alltagsküche, Menüs, Snacks usw): Alltagsküche
Wie häufig wird gekocht: (fast) täglich 1x warm
Wird alleine gekocht? Oder auch gemeinsam? Mit und für Gäste?: Wir kochen schon öfters zusammen und gelegentlich auch für Gäste
Spülen und Müll
Spülenform: N. a.
Welche Mülltrennung soll in der Küche vorgehalten werden: Biomüll, Gelber Sack Müll, Restmüll
Sonstiges
Steht schon ein Küchenhersteller fest oder wird bevorzugt:
Steht schon ein Gerätehersteller fest oder wird bevorzugt:
Küchenstil: Landhausküche
Was stört an der bisherigen Küche und was soll die neue Küche unbedingt können? Warum?: Keine Küche vorhanden.
Preisvorstellung (Budget): 15000
Angehängte Dateien
Hallo liebes Forum,
wir sind jetzt bei der Küchenplanung für unsere Kernsanierung angekommen. Eine grobe Form der Küche steht schon fest, da es mit Türen, Fenstern etc. kaum andere Stellmöglichkeiten gibt. Die entsprechenden Anschlüsse haben wir so auch bereits vorgesehen. D.h. da ist nicht mehr so viel Flexibilität (da sind wir ehrlicherweise durch das Tempo der Baustelle etwas überrumpelt worden).
Im Anhang findet Ihr die erste Planung. Es ist eine Häcker Systemat Küche verplant mit 10cm Sockel und 78cm Korpushöhe und AV3030-Fronten. Insgesamt kommen wir auf 92cm Arbeitshöhe .
An die Balkontür wird sich eine Terasse anschließen und gegenüber ist der Raum über einen etwa 2m breiten Durchgang (mit Schiebetür) zum Wohn-Essbereich offen. D.h. Sitzgelegenheiten in der Küche benötigen wir nicht.
Ebenso gibt es einen Hauswirtschafts-/Vorratsraum in dem auch nochmal ein zweiter Kühlschrank/Tiefkühlschrank seinen Platz finden kann. Ebenso wie wenig genutzte Küchengeräte, Utensilien etc.
D.h. Stauraum ist nicht das Problem. Arbeitsfläche vielleicht schon?
Zur Kochinsel haben wir die Idee, dass wir sie statt mit den Wangen mit roten Ziegelsteinen umfassen (das Haus ist ein altes Ziegelsteinhaus) Daher würde die Arbeitsfläche der Insel auf beiden Seiten etwa 25cm länger, die Unterschränke, Herd und Abzugshabe verschieben sich entsprechend um 25cm nach rechts.
Man könnte in dem Zug die Kochinsel auch noch etwas breiter (Richtung Durchgang zum Wohn/Essbereich) machen. Ergibt das Sinn? (Aktuell ist es 1 Meter).
Außerdem gäbe es die Überlegung, da ich eher klein bin, dass wir die Kochinsel etwas niedriger planen.
Reicht die Arbeitsfläche? Tendenziell liebäugel ich schon mit einem Dampfgarer/Backofen mit Dampfgarfunktion - der ist in der Planung erstmal nicht vorgesehen. Eine Mikrowelle hätten wir in der jetzigen Planung über dem Herd versteckt.
In 14 Tagen haben wir den nächsten Termin im Küchenstudio , davor möchte ich mich möglichst gut aufstellen und recht konkrete Vorstellungen entwickeln, was geändert werden muss und welche Elemente die Küche noch haben sollte. Über Tipps, Verbesserungsvorschläge und Anregungen bin ich daher sehr dankbar.
Preislich haben wir zwar einen Kostenvoranschlag von 14000 inkl Geräte (NEFF ), aber noch nicht verhandelt. Es wird sicher nicht bei den folierten Fronten bleiben - allerdings gefällt uns die Kastenform schon sehr gut und passt auch einfach gut zum Haus.
Checkliste zur Küchenplanung
Personenkriterien und Ergonomie
Anzahl Personen im Haushalt: 3
Davon Kinder: 1
Körpergrößen aller Hauptbenutzer in cm (wegen Arbeitshöhe): 160cm und 185cm
Welche Arbeitshöhe ist angedacht (in cm)?: 92cm
Gebäudekriterien
Art des Gebäudes: Bestandsbau > (kleinere) Umbauten möglich
Brüstungshöhe des Fensters (in cm): Kann ich aktuell nicht genau sagen, aber definitiv typisch Altbau zu tief für eine vernünftige Arbeitshöhe
Fensterhöhe (in cm):
Raumhöhe in cm: ca. 3 Meter (Decke wird noch abgehängt)
Heizung: Fußbodenheizung
Sanitäranschlüsse: fix
Einbaugerätekriterien
Ausführung Kühlgerät: Integriert im Hochschrank (60cm)
Einbaukühlgerät Größe: Noch unbekannt
Ausführung Tiefkühl (TK)-Gerät: Nicht erforderlich bzw. steht woanders
Dunstabzugshaube: Abluft
Hochgebauter Backofen : ja
Geplante Heißgeräte: Backofen
Hochgebauter Geschirrspüler : ja
Art des Kochfeldes: Induktion
Kochfeldbreite (ca. in cm):
Sitzmöglichkeiten
Sitzmöglichkeit in der Küche / im Küchenbereich: Keine
Sitzmöglichkeit: Für wieviel Personen?: nein
Sitzmöglichkeit: Tisch - wenn gesonderter Tisch oder offene Küche: Keiner
Gewünschte oder vorhandene Tischgröße:
Wofür soll der Sitzplatz in der Küche genutzt werden und wie häufig:
Stauraumplanung
Was steht auf der Arbeitsplatte oder soll dort stehen?: Kaffeemaschine, Wasserkocher, Messerblock, Toaster, Brotbehälter, Obstschale
Welche weiteren Küchenmaschinen müssen in der Küche untergebracht werden: Handrührgerät, Mixer, Pürierstab, Sonstiges (evtl. im Beitragstext benennen)
Was soll in der Küche außer den Standards untergebracht werden: Geschirr komplett (nichts in Ess-/Wohnzimmer)
Welchen Stauraum gibt es sonst noch: Geschirr/Gläserschrank im Wohn-/Esszimmer, Speisekammer, Hauswirtschaftsraum
Kochgewohnheiten
Was/wie wird gekocht? (Alltagsküche, Menüs, Snacks usw): Alltagsküche
Wie häufig wird gekocht: (fast) täglich 1x warm
Wird alleine gekocht? Oder auch gemeinsam? Mit und für Gäste?: Wir kochen schon öfters zusammen und gelegentlich auch für Gäste
Spülen und Müll
Spülenform: N. a.
Welche Mülltrennung soll in der Küche vorgehalten werden: Biomüll, Gelber Sack Müll, Restmüll
Sonstiges
Steht schon ein Küchenhersteller fest oder wird bevorzugt:
Steht schon ein Gerätehersteller fest oder wird bevorzugt:
Küchenstil: Landhausküche
Was stört an der bisherigen Küche und was soll die neue Küche unbedingt können? Warum?: Keine Küche vorhanden.
Preisvorstellung (Budget): 15000
Angehängte Dateien
Anhänge
