natter_deluxe
Mitglied
- Beiträge
- 8
Hallo zusammen,
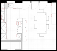
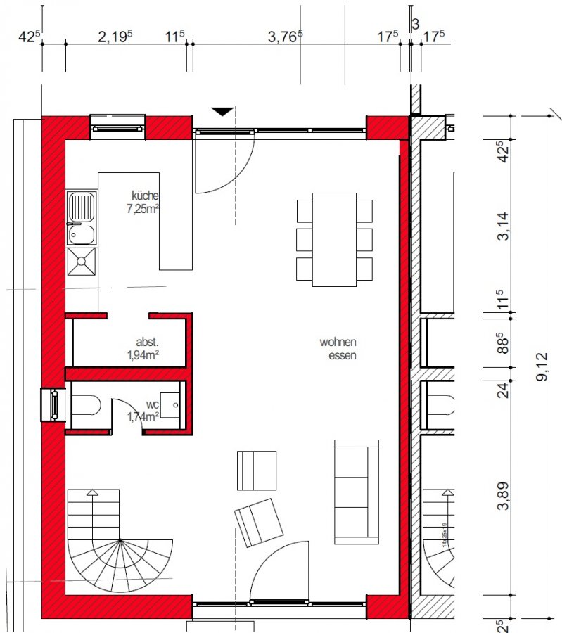
wir beginnen demnächst mit dem Bau unseres Reihenendhauses. Einzug wird vermutlich im Spätsommer nächsten Jahres sein. Grundriss steht (s. Anhang) und enthält Platz für eine relativ kleine Küche mit angeschlossener Speisekammer (~7+2 m2). Die Rückwand der Speisekammer ist eine tragende Wand, ansonsten wären Wände in Trockenbauweise theoretisch nach Belieben setzbar; gleiches gilt für die Anschlüsse. Exakte Fensterposition ist nicht 100% fix, wird aber an der eingezeichneten Hauswand liegen (müssen). Hier ist auch die Terrassentür, die wir vom Parkplatz mit Einkäufen aus kommend als zweiten Eingang nutzen könnten.
Wir haben bereits verschiedene Varianten an Küchengrundrissen entwickelt und sind letztendlich irgendwie bei der anhängenden Planung hängen geblieben. Sie ist in unseren Augen bezüglich verschiedener Punkte ein Kompromiss (oder irgendwie nicht perfekt), aber in Anbetracht des Platzmangels und dass die Ecke keine richtige U-Küche (eher nur eine L-Küche) hergibt, die beste Lösung
==> Andere Varianten fänden wir trotzdem interessant zu überlegen!
Wir würden uns freuen, wenn ihr da mal drauf schauen würdet und Tipps bezüglich der US und Aufteilungen geben könnt
! Generell sind wir auf den 72cm Korpus beschränkt (wegen 86cm Arbeitshöhe / Körpergröße) und haben uns jetzt als Hersteller auf Schüller festgelegt.
Nachteile, die wir in diesem Grundriss sehen:
- Eckspüle: Generell nicht optimal bezüglich Beckenform und Erreichbarkeit der Mischbatterie für kleine Personen, Mülltrennsystem unter der Eckspüle vielleicht unpraktisch? (z.B. auch kein MUPL möglich)
- Weg von Wohnzimmercouch zu Kühlschrank relativ lange, keine Ablagefläche direkt neben dem Kühlschrank. Ein Vertauschen der beiden Hochschränke wäre aber wohl nicht besser, da dann das Beladen des BO nicht problemlos wäre. (Eingezeichnete Türe zur Speisekammer soll eine Schiebetüre werden)
- Freie Dunstabzugshaube mit Umluft (wegen Energieeffizienz des Bauvorhabens)
- Arbeitsinsel anstatt Kochinsel wäre etwas besser, aber z.B. Tausch von Kochfeld mit Spüle geht hier nicht
Vorteile:
- Gewinn von Stauraum: Stellfläche aus dem Essbereich wird mit 40er US für optimales Stauraumangebot optimal genutzt. Eventuell geringfügiger Nachteil, wenn der Raum durch die Terrassentüre betreten wird
- Generell passt: GSP links vom Spülbecken, 1x 80er US, 1x 100er US, zwei ausreichende Arbeitsflächen rechts und links neben der Spüle und Platz auf der Kochinsel (die mit 100cm auch gerade so ausreichend tief ist)
- kein totes Eck
- Speisekammer: Hier wird wirklich alles rein kommen, von Akkustaubsauger bis Getränkekasten. Notfalls vielleicht auch noch selten benutztes Geschirr. Trotzdem wäre es wahrscheinlich sinnvoll, im Küchenbereich so viel wie möglich in den OS zu verstauen.
Vielen Dank!
Gruß,
Tom
Checkliste zur Küchenplanung
Anzahl Personen im Haushalt: 4
Davon Kinder?: 2
Art des Gebäudes?: Neu-/Umbau, Planänderungen möglich
Körpergrössen aller Hauptbenutzer (wegen Arbeitshöhe) in cm: Eltern: 176cm und 154cm
Brüstungshöhe des Fensters (in cm): 110
Fensterhöhe (in cm): 90
Raumhöhe in cm: 250
Heizung: Fussbodenheizung
Sanitäranschlüsse: vollkommen variabel
Ausführung Kühlgerät: Integriert im Hochschrank (60cm)
Kühlgerät Größe: noch unbekannt
Ausführung Tiefkühl (TK)-Gerät: Im Kühlschrank bis 2 Schubladen unten
Dunstabzugshaube: Umluft
Backofen etc. hochgebaut?: Ja
Hochgebauter Geschirrspüler ?: Nein
Kochfeldart: Induktion
Kochfeldbreite ca. (in cm)?: 80
Spülenform: Eckspüle
Geplante Heißgeräte: Standmikrowelle, Backofen
Küchenstil: Landhaus
Sitzmöglichkeit in der Küche / im Küchenbereich: Keine
Sitzmöglichkeit: Für wieviel Personen?: Nein
Sitzmöglichkeit: Tisch - wenn gesonderter Tisch oder offene Küche: Vorhandener Tisch
Gewünschte o. vorhandene Tischgröße: 102cm x 230cm
Wofür soll der Sitzplatz in der Küche genutzt werden? Wie häufig?: allgemeiner Essbereich
Welche Arbeitshöhe ist angedacht (in cm)?: 86
Was steht auf der Arbeitsplatte oder soll dort stehen?: Kaffeemaschine, Wasserkocher, Brotbehälter
Welche weiteren Küchenmaschinen müssen in der Küche untergebracht werden?: Toaster, Handrührgerät, Pürierstab
Was soll in der Küche außer den Standards untergebracht werden?: Geschirr komplett (nichts in Ess-/Wohnzimmer)
Welchen Stauraum gibt es sonst noch?: Speisekammer
Was/wie wird gekocht? (Alltagsküche, Menüs, Snacks usw): Abends warm für Familie mit Kleinkindern
Wie häufig wird gekocht?: (fast) täglich 1x warm
Wird alleine gekocht? Oder auch gemeinsam? Mit und für Gäste?: Meist kocht einer für alle, Gäste selten
Was stört an der bisherigen Küche und was soll die neue Küche unbedingt können? Warum?: k.A.
Welche Mülltrennung soll in der Küche vorgehalten werden?: Altglas, Biomüll, Gelber Sack Müll, Restmüll
Steht schon ein Küchenhersteller fest oder wird bevorzugt?: Schüller
Steht schon ein Gerätehersteller fest oder wird bevorzugt?: nein
Preisvorstellung (Budget): bis 15.000,-
wir beginnen demnächst mit dem Bau unseres Reihenendhauses. Einzug wird vermutlich im Spätsommer nächsten Jahres sein. Grundriss steht (s. Anhang) und enthält Platz für eine relativ kleine Küche mit angeschlossener Speisekammer (~7+2 m2). Die Rückwand der Speisekammer ist eine tragende Wand, ansonsten wären Wände in Trockenbauweise theoretisch nach Belieben setzbar; gleiches gilt für die Anschlüsse. Exakte Fensterposition ist nicht 100% fix, wird aber an der eingezeichneten Hauswand liegen (müssen). Hier ist auch die Terrassentür, die wir vom Parkplatz mit Einkäufen aus kommend als zweiten Eingang nutzen könnten.
Wir haben bereits verschiedene Varianten an Küchengrundrissen entwickelt und sind letztendlich irgendwie bei der anhängenden Planung hängen geblieben. Sie ist in unseren Augen bezüglich verschiedener Punkte ein Kompromiss (oder irgendwie nicht perfekt), aber in Anbetracht des Platzmangels und dass die Ecke keine richtige U-Küche (eher nur eine L-Küche) hergibt, die beste Lösung
==> Andere Varianten fänden wir trotzdem interessant zu überlegen!
Wir würden uns freuen, wenn ihr da mal drauf schauen würdet und Tipps bezüglich der US und Aufteilungen geben könnt
Nachteile, die wir in diesem Grundriss sehen:
- Eckspüle: Generell nicht optimal bezüglich Beckenform und Erreichbarkeit der Mischbatterie für kleine Personen, Mülltrennsystem unter der Eckspüle vielleicht unpraktisch? (z.B. auch kein MUPL möglich)
- Weg von Wohnzimmercouch zu Kühlschrank relativ lange, keine Ablagefläche direkt neben dem Kühlschrank. Ein Vertauschen der beiden Hochschränke wäre aber wohl nicht besser, da dann das Beladen des BO nicht problemlos wäre. (Eingezeichnete Türe zur Speisekammer soll eine Schiebetüre werden)
- Freie Dunstabzugshaube mit Umluft (wegen Energieeffizienz des Bauvorhabens)
- Arbeitsinsel anstatt Kochinsel wäre etwas besser, aber z.B. Tausch von Kochfeld mit Spüle geht hier nicht
Vorteile:
- Gewinn von Stauraum: Stellfläche aus dem Essbereich wird mit 40er US für optimales Stauraumangebot optimal genutzt. Eventuell geringfügiger Nachteil, wenn der Raum durch die Terrassentüre betreten wird
- Generell passt: GSP links vom Spülbecken, 1x 80er US, 1x 100er US, zwei ausreichende Arbeitsflächen rechts und links neben der Spüle und Platz auf der Kochinsel (die mit 100cm auch gerade so ausreichend tief ist)
- kein totes Eck
- Speisekammer: Hier wird wirklich alles rein kommen, von Akkustaubsauger bis Getränkekasten. Notfalls vielleicht auch noch selten benutztes Geschirr. Trotzdem wäre es wahrscheinlich sinnvoll, im Küchenbereich so viel wie möglich in den OS zu verstauen.
Vielen Dank!
Gruß,
Tom
Checkliste zur Küchenplanung
Anzahl Personen im Haushalt: 4
Davon Kinder?: 2
Art des Gebäudes?: Neu-/Umbau, Planänderungen möglich
Körpergrössen aller Hauptbenutzer (wegen Arbeitshöhe) in cm: Eltern: 176cm und 154cm
Brüstungshöhe des Fensters (in cm): 110
Fensterhöhe (in cm): 90
Raumhöhe in cm: 250
Heizung: Fussbodenheizung
Sanitäranschlüsse: vollkommen variabel
Ausführung Kühlgerät: Integriert im Hochschrank (60cm)
Kühlgerät Größe: noch unbekannt
Ausführung Tiefkühl (TK)-Gerät: Im Kühlschrank bis 2 Schubladen unten
Dunstabzugshaube: Umluft
Backofen etc. hochgebaut?: Ja
Hochgebauter Geschirrspüler ?: Nein
Kochfeldart: Induktion
Kochfeldbreite ca. (in cm)?: 80
Spülenform: Eckspüle
Geplante Heißgeräte: Standmikrowelle, Backofen
Küchenstil: Landhaus
Sitzmöglichkeit in der Küche / im Küchenbereich: Keine
Sitzmöglichkeit: Für wieviel Personen?: Nein
Sitzmöglichkeit: Tisch - wenn gesonderter Tisch oder offene Küche: Vorhandener Tisch
Gewünschte o. vorhandene Tischgröße: 102cm x 230cm
Wofür soll der Sitzplatz in der Küche genutzt werden? Wie häufig?: allgemeiner Essbereich
Welche Arbeitshöhe ist angedacht (in cm)?: 86
Was steht auf der Arbeitsplatte oder soll dort stehen?: Kaffeemaschine, Wasserkocher, Brotbehälter
Welche weiteren Küchenmaschinen müssen in der Küche untergebracht werden?: Toaster, Handrührgerät, Pürierstab
Was soll in der Küche außer den Standards untergebracht werden?: Geschirr komplett (nichts in Ess-/Wohnzimmer)
Welchen Stauraum gibt es sonst noch?: Speisekammer
Was/wie wird gekocht? (Alltagsküche, Menüs, Snacks usw): Abends warm für Familie mit Kleinkindern
Wie häufig wird gekocht?: (fast) täglich 1x warm
Wird alleine gekocht? Oder auch gemeinsam? Mit und für Gäste?: Meist kocht einer für alle, Gäste selten
Was stört an der bisherigen Küche und was soll die neue Küche unbedingt können? Warum?: k.A.
Welche Mülltrennung soll in der Küche vorgehalten werden?: Altglas, Biomüll, Gelber Sack Müll, Restmüll
Steht schon ein Küchenhersteller fest oder wird bevorzugt?: Schüller
Steht schon ein Gerätehersteller fest oder wird bevorzugt?: nein
Preisvorstellung (Budget): bis 15.000,-
Anhänge
-
PLAN1.KPL3,6 KB · Aufrufe: 190
-
PLAN1_GR.JPG90,8 KB · Aufrufe: 328 -
PLAN1_5.JPG92,5 KB · Aufrufe: 313 -
PLAN1_4.JPG94,7 KB · Aufrufe: 399 -
PLAN1_3.JPG112,4 KB · Aufrufe: 318 -
PLAN1_2.JPG98,1 KB · Aufrufe: 314 -
PLAN1_1.JPG107,7 KB · Aufrufe: 322 -
PLAN1_0.JPG133,8 KB · Aufrufe: 306 -
PLAN1.POS11,9 KB · Aufrufe: 190









