Unbeendet Küchenplanung EFH Neubau

wi_alex

Mitglied
Beiträge
2
Wohnort
Wiesbaden
Küchenplanung EFH Neubau

Liebe Küchenplanungs-Community,

nachdem ich nun schon etwas länger eure praktischen Diskussionen verfolgt habe, wollte ich nun hier auch endlich meine Küchenplanung einstellen.
CI hfrei mich auf eure guten Tipps und Erfahrungen.

Meine Frau und ich werden ein ein EFH bauen und stehen noch vor Einreichen des Bauantrags, d.h. es sind noch kleinere Anpassungen am Grundriss wie z.B. das Schieben des Küchenfensters und Anpassen der Brüstungshöhe möglich.

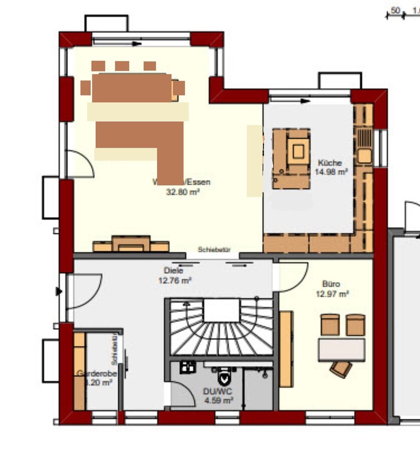
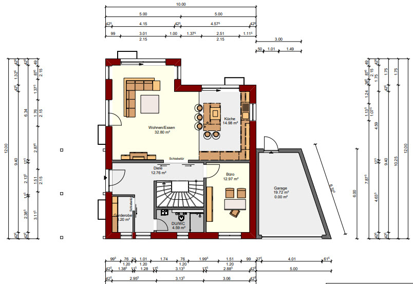
Angehängt ist der Grundriss des EG.

Wir stellen uns eine moderne, aufgeräumte Küche mit aufgesetzten Griffleisten oder Grifflos vor.

Bodenbelag in der Küche werden hellbraune Fliesen in Holzoptik.

Die Küche selbst wahrscheinlich weiß mit Arbeitsplatte in Betonoptik oder echter Stein. Ich würde die Insel gerne in Betonoptik machen, aber davon muss ich erst noch meine Frau überzeugen, sie mag es hell

Wir bauen mit Keller, daher keine Speisekammer. Ein Schrank sollte jedoch als Vorratsschrank herhalten.
Wir bauen mit Keller, daher keine Speisekammer. Ein Schrank sollte jedoch als Vorratsschrank herhalten.

Geräte stehen noch nicht fest.
Geplant ist ein Bora -Kochfeld (alternativ Miele oder Siemens mit Muldenlüfter ).
Backofen (keine präferierte Marke)
Einbaumikrowelle (keine präferierte Marke)
Kühlschrank soll ein Siede by Side werden, vermutlich Samsung oder LG mit Wasser/Einswürfelspender
GSP (keine präferierte Marke)
Ein MUPL soll in Spülennähe seinen Platz finden.

Die KÜche stellen wir uns als L vor, wovon eine Seite mit deckenhohen Schränken verbaut ist. Dazu eine Kochinsel. Ob die flache Seite der Küche Oberschranke bekommen soll sind wir uns nicht sicher.

Ach so, die Decke wird evtl abgehängt um Spots einzusetzen.

Ich habe mich an einem 1. Plan versucht, denke da gibt es aber noch Verbesserungspotential. Aber für einen 1. Eindruck ganz ok denk ich. Kann leider keine Planungssoftware installieren da aktuell nur ein Firmenlaptop vorhanden und der streubt sich dagegen.

Aber ich hoffe auf Eure Rückmeldung und Anregungen.

Checkliste zur Küchenplanung

Personenkriterien und Ergonomie
Anzahl Personen im Haushalt:
2
Davon Kinder: keine
Körpergrößen aller Hauptbenutzer in cm (wegen Arbeitshöhe ): 1.76, 1.70
Welche Arbeitshöhe ist angedacht (in cm)?: ??

Gebäudekriterien
Art des Gebäudes:
Neu-/Umbau > Planänderungen möglich
Brüstungshöhe des Fensters (in cm): 90
Fensterhöhe (in cm): 107
Raumhöhe in cm: ca. 256
Heizung: Fußbodenheizung
Sanitäranschlüsse: vollkommen variabel

Einbaugerätekriterien
Ausführung Kühlgerät:
Side by Side (ca. 90cm breit)
Einbaukühlgerät Größe: N. a.
Ausführung Tiefkühl (TK)-Gerät: N. a.
Dunstabzugshaube: Umluft
Hochgebauter Backofen : ja
Geplante Heißgeräte: Einbaumikrowelle, Backofen
Hochgebauter Geschirrspüler : nein
Art des Kochfeldes: Induktion
Kochfeldbreite (ca. in cm): 80-90

Sitzmöglichkeiten

Sitzmöglichkeit in der Küche / im Küchenbereich: Keine
Sitzmöglichkeit: Für wieviel Personen?: nein
Sitzmöglichkeit: Tisch - wenn gesonderter Tisch oder offene Küche: Wird nach Bedarf neu gekauft
Gewünschte oder vorhandene Tischgröße: 240x100
Wofür soll der Sitzplatz in der Küche genutzt werden und wie häufig: -

Stauraumplanung

Was steht auf der Arbeitsplatte oder soll dort stehen?: Kaffeevollautomat, Thermomix, Brotbehälter, Obstschale
Welche weiteren Küchenmaschinen müssen in der Küche untergebracht werden: Allesschneider (z.B. in Schublade), Handrührgerät, Pürierstab
Was soll in der Küche außer den Standards untergebracht werden: Geschirr komplett (nichts in Ess-/Wohnzimmer)
Welchen Stauraum gibt es sonst noch: Keller

Kochgewohnheiten

Was/wie wird gekocht? (Alltagsküche, Menüs, Snacks usw): Alltagsküche, ab und zu Menüs
Wie häufig wird gekocht: (fast) täglich 1x warm
Wird alleine gekocht? Oder auch gemeinsam? Mit und für Gäste?: alleine

Spülen und Müll

Spülenform: 1 1/2 Becken mit Abtropffläche
Welche Mülltrennung soll in der Küche vorgehalten werden: Biomüll, Gelber Sack Müll, Restmüll

Sonstiges

Steht schon ein Küchenhersteller fest oder wird bevorzugt: bisher Häcker -Küchen gehabt, aber sind nicht festgelegt
Steht schon ein Gerätehersteller fest oder wird bevorzugt: kein fester Hersteller
Küchenstil: Grifflose Küche
Was stört an der bisherigen Küche und was soll die neue Küche unbedingt können? Warum?: etwas zu wenig Stauraum, zu kleiner Kühlschrank
Preisvorstellung (Budget): 15.000 - 20.000

Angehängte Dateien
 

Anhänge

  • EG.jpg
    EG.jpg
    96,5 KB · Aufrufe: 196
  • Küche.jpg
    Küche.jpg
    71,6 KB · Aufrufe: 203
  • Planung1.jpg
    Planung1.jpg
    34,3 KB · Aufrufe: 171
  • Planung2.jpg
    Planung2.jpg
    50,9 KB · Aufrufe: 174
  • Planung3.jpg
    Planung3.jpg
    47,6 KB · Aufrufe: 162
  • Planung4.jpg
    Planung4.jpg
    67,8 KB · Aufrufe: 209
Hallo und herzlich willkommen.

Das sieht schon ganz ordentlich aus, ABER, male doch in den Plan den Tisch mit Stühlen ein in realer Größe und dann noch Couch und Co. Denn ich kann mir das zusammen in dem Raum noch nicht vorstellen.

Wo soll der Fernseher seinen Platz finden?

Rein vom Gefühl müsste Kochen und Essen planlinks sein und chillen planrechts sonst passt das nicht.

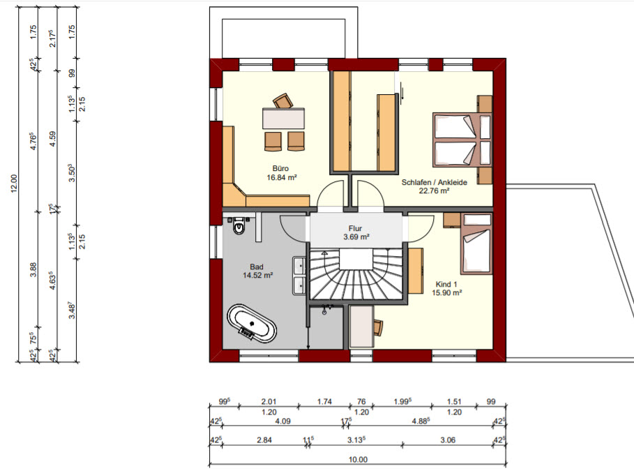
wie geht ihr eigentlich von der Garage ins Haus? Der eingestellte Plan erscheint mir nicht ganz das zu sein, was ihr bauen werdet? wie sieht denn das OG aus?
 
Zuletzt bearbeitet:
Hallo und herzlich willkommen.

Das sieht schon ganz ordentlich aus, ABER, male doch in den Plan den Tisch mit Stühlen ein in realer Größe und dann noch Couch und Co. Denn ich kann mir das zusammen in dem Raum noch nicht vorstellen.

Wo soll der Fernseher seinen Platz finden?

Rein vom Gefühl müsste Kochen und Essen planlinks sein und chillen planrechts sonst passt das nicht.

wie geht ihr eigentlich von der Garage ins Haus? Der eingestellte Plan erscheint mir nicht ganz das zu sein, was ihr bauen werdet? wie sieht denn das OG aus?
Vielen lieben Dank für deine Nachricht.
Ich hab mal den Esstisch und die Couch eingezeichnet. Der Esstisch spielt bei uns eine untergeordnete Rolle, da wir dort nur sitzen wenn wir Besuch haben. Daher wandert er in den Erker. TV steht an der Wand gegenüber der Couch. Die Küche ist planrechts, da wir rechts neben dem Haus einen 3m Streifen haben wo meine Outdoor-Küche entstehen wird.
Einen Eingang von der Garage ins Haus wollen wir nicht, man kann aber aus der Garage über die Terrassentür von außen rein.
Pläne von EG mit Couch und OG habe ich mal angehängt.
 

Anhänge

  • OG.jpg
    OG.jpg
    90,8 KB · Aufrufe: 138
  • EG1.jpg
    EG1.jpg
    73,8 KB · Aufrufe: 144
blöde Frage, ihr esst dann sitzend auf der Couch wenn nicht am Tisch?

Wenn der BBQ Streifen rechts vom Haus ist, also anschließend an die Garage, dann würde ich eine Tür von der Küche nach draußen machen, um das leidige tote Eck loszuwerden.

wialex1.jpgwialex2.jpgwialex3.jpg
 

Anhänge

  • wialex-evelin-PLAN1.KPL
    3,9 KB · Aufrufe: 106
  • wialex-evelin-PLAN1.POS
    16,9 KB · Aufrufe: 102

Ähnliche Beiträge

Neff Hausgeräte Ballerina Küchen Blum Bewegungstechnologie Weibel - Intelligente Küchenlüftung

Neff Spezial

Blum Zonenplaner

Weibel Abluft-Tuning

Weibel Abluft-Tuning
Zurück
Oben