Troschan
Mitglied
- Beiträge
- 7
Hi allerseits,
meine Frau und ich ziehen im Februar in eine Mietwohnung. Dies ist der Erstbezug dieser Wohnung.
Da unsere jetzige Küche nicht der Rede wert ist und Stückwerk aus 3 neuen Küchen, brauchen wir eine Neue.
Der Raum ist aber, auf Grund einer Schrägen, 2 Türen und einem Fenster auf 10,7 Quadratmetern fordernder in
der Planung als ursprünglich angenommen.
Wir wollten eigentlich bei einer IKEA Küche landen, da wir dachten, dass die einerseits preislich okay sind und andererseits auch bei einem erneuten Umzug (wer weiss das schon immer in Mietwohnungen was in 3 Jahren ist) ganz gut weiterverwendbar sind.
Andererseits sind die ersten Planungen auch bei einem Preis gelandet, wo sicherlich auch traditionelle Küchenbauer was einbringen könnten. Eigentlich wollten wir so um die 5.000 € inkl. allem ausgeben, wenn es jetzt 6.000 € wird, ist das auch okay, sollte das aber nicht deutlich übersteigen. Bei IKEA hat uns der günstige Preis der elektrischen Geräte etwas erstaunt, wir brauchen auch nicht das non-plus-ultra... Wir würden gerne eine Spülmaschine, ein Induktionsfeld, einen Ofen (bei Ikea mit Dampfgarer), einen Kühlschrank und einen Gefrierer (3 Fach oder so) eingebaut haben. Die Mikrowelle einzubauen erschien uns relativ teuer...
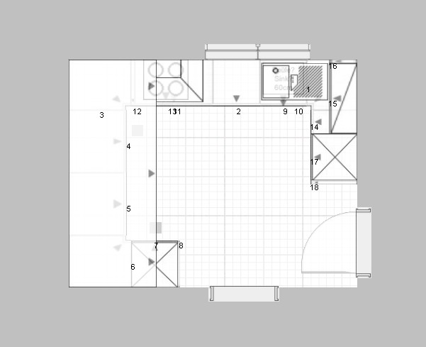
Ich kenne mich mit dem Alnoplaner nicht so aus, daher habe ich versucht den Raum darin nachzubauen, bin mir aber nicht wirklich sicher ob das so richtig ist.
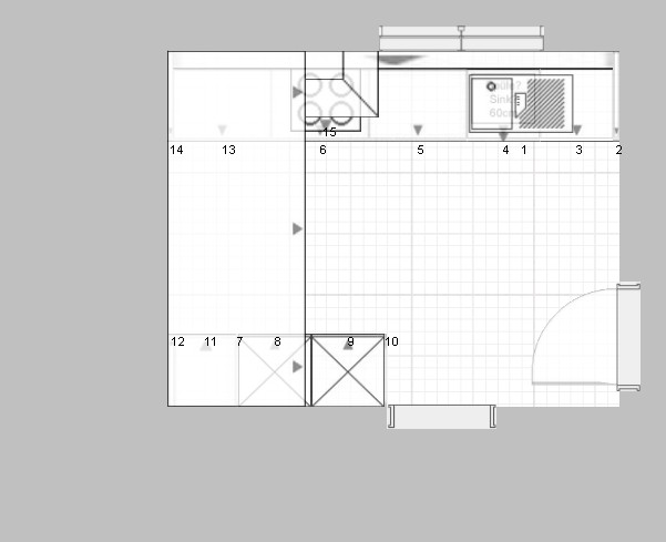
Im Ikeaplaner sieht das schon ganz gut aus, ich bin aber etwas unzufrieden mit der Planung und suche irgendwie noch nach einer Optimallösung.
Wir würden am liebsten einen hohen Backofen haben, ich bin mir aber nicht sicher, inwiefern man das Anschlußkabel dazu einfach unter den Schränken durchlegen kann?
Die Dunstabzugshaube geht auf Grund eines Schachtes nur fast direkt am Fenster und dann ca. 50 cm weiter links daneben... Zumindest als Abluft...
Zum IKea Grundriß:
1) Eck Nierenschrank
2) 30cm Regale
3) Herd/Abzugshaube
4) Spülmaschine
5) Spüle
6) Eckrondell 90x90
7) Schubladen 80cm
8) Einlegeböden 60cm
9) Kühlschrank 233 hoch
10) Einbaubackofen 144 hoch
11) Nur ein Korpus um die Arbeitsplatte stabil bis in die Ecke zu ziehen, kann auch größer sein als auf dem Bild
12 13) 2 Hängeschränke 40 cm hoch
Bezüglich der nebenliegenden Räume:
Die Tür an der rechten Seite führt in den Flur. Die Schiebetür an der unteren Seite führt direkt ins Wohnzimmer. Das Fenster ist auf der Skizze oben. Die Schräge auf der linken Seite.
Ich wäre euch sehr dankbar, wenn Ihr uns da irgendwie unterstützen könntet eine gute Standmöglichkeit in den Räumen zu finden
So wirklich happy bin ich mit meinen ganzen Planungen nicht wirklich...
Checkliste zur Küchenplanung von Troschan
Anzahl Personen im Haushalt : 2
Davon Kinder? : keine
Körpergrössen aller Hauptbenutzer (wegen Arbeitshöhe ) in cm : 182cm, 171 cm
Art des Gebäudes? : Bestandsbau, (kleinere) Umbauten möglich
Brüstungshöhe des Fensters (in cm) : 83
Fensterhöhe (in cm) : 100
Raumhöhe in cm: : 250
Heizung : Fussbodenheizung
Sanitäranschlüsse : fix
Ausführung Kühlgerät? : Integriert im Hochschrank (60cm)
Kühlgerät Größe : noch unbekannt
Ausführung Tiefkühl (TK)-Gerät : Im Kühlschrank ab 3 Schubladen unten
Dunstabzugshaube? : Abluft
Hochgebauter Backofen ? : Wenn möglich
Hochgebauter Geschirrspüler ? : nein
Kochfeldart? : Induktion
Kochfeldbreite ca. (in cm)? : 60
Spülenform: : Noch nicht festgelegt
Weitere geplante Heißgeräte : Einbaumikrowelle, Dampfgarer ohne Wasseranschluß
Küchenstil? : modern
Sitzmöglichkeit in der Küche / im Küchenbereich als : Keine
Sitzmöglichkeit: Für wieviel Personen? : nein
Sitzmöglichkeit: Tisch - wenn gesonderter Tisch oder offene Küche : Keine
Gewünschte o. vorhandene Tischgröße : Im Wohnzimmer ist ein Tisch
Wofür soll der Sitzplatz in der Küche genutzt werden? Wie häufig? : Gar nicht.
Welche Arbeitshöhe ist angedacht (in cm)? : 83 ?
Was steht auf der Arbeitsplatte oder soll dort stehen? : Kaffeemaschine, Wasserkocher, Messerblock
Welche weiteren Küchenmaschinen müssen in der Küche untergebracht werden? :
Was soll in der Küche außer den Standards untergebracht werden? : Geschirr komplett (nichts in Ess-/Wohnzimmer)
Welchen Stauraum gibt es sonst noch? : Hauswirtschaftsraum, Keller
Was/wie wird gekocht? (Alltagsküche, Menüs, Snacks usw) : Am ehesten dann mal Alltagsküche, mit Gästen auch eventuell mal mehr.
Wie häufig wird gekocht? : ab und zu
Wird alleine gekocht? Oder auch gemeinsam? Mit und für Gäste? : Meist am Wochenende zu 2. oder auch mal mit Gästen (2x im Monat)
Was stört an der bisherigen Küche und was soll die neue Küche unbedingt können? Warum? : Neue Wohnung - neue Küche
Steht schon ein Küchenhersteller fest oder wird bevorzugt? : Nö, nicht wirklich, wir dachten IKEA wäre gut weiterverwendbar wenn man mal auszieht.
Steht schon ein Gerätehersteller fest oder wird bevorzugt? : Nein, gut & günstig gesucht.
Preisvorstellung (Budget) : bis 3.000,-
meine Frau und ich ziehen im Februar in eine Mietwohnung. Dies ist der Erstbezug dieser Wohnung.
Da unsere jetzige Küche nicht der Rede wert ist und Stückwerk aus 3 neuen Küchen, brauchen wir eine Neue.
Der Raum ist aber, auf Grund einer Schrägen, 2 Türen und einem Fenster auf 10,7 Quadratmetern fordernder in
der Planung als ursprünglich angenommen.
Wir wollten eigentlich bei einer IKEA Küche landen, da wir dachten, dass die einerseits preislich okay sind und andererseits auch bei einem erneuten Umzug (wer weiss das schon immer in Mietwohnungen was in 3 Jahren ist) ganz gut weiterverwendbar sind.
Andererseits sind die ersten Planungen auch bei einem Preis gelandet, wo sicherlich auch traditionelle Küchenbauer was einbringen könnten. Eigentlich wollten wir so um die 5.000 € inkl. allem ausgeben, wenn es jetzt 6.000 € wird, ist das auch okay, sollte das aber nicht deutlich übersteigen. Bei IKEA hat uns der günstige Preis der elektrischen Geräte etwas erstaunt, wir brauchen auch nicht das non-plus-ultra... Wir würden gerne eine Spülmaschine, ein Induktionsfeld, einen Ofen (bei Ikea mit Dampfgarer), einen Kühlschrank und einen Gefrierer (3 Fach oder so) eingebaut haben. Die Mikrowelle einzubauen erschien uns relativ teuer...
Ich kenne mich mit dem Alnoplaner nicht so aus, daher habe ich versucht den Raum darin nachzubauen, bin mir aber nicht wirklich sicher ob das so richtig ist.
Im Ikeaplaner sieht das schon ganz gut aus, ich bin aber etwas unzufrieden mit der Planung und suche irgendwie noch nach einer Optimallösung.
Wir würden am liebsten einen hohen Backofen haben, ich bin mir aber nicht sicher, inwiefern man das Anschlußkabel dazu einfach unter den Schränken durchlegen kann?
Die Dunstabzugshaube geht auf Grund eines Schachtes nur fast direkt am Fenster und dann ca. 50 cm weiter links daneben... Zumindest als Abluft...
Zum IKea Grundriß:
1) Eck Nierenschrank
2) 30cm Regale
3) Herd/Abzugshaube
4) Spülmaschine
5) Spüle
6) Eckrondell 90x90
7) Schubladen 80cm
8) Einlegeböden 60cm
9) Kühlschrank 233 hoch
10) Einbaubackofen 144 hoch
11) Nur ein Korpus um die Arbeitsplatte stabil bis in die Ecke zu ziehen, kann auch größer sein als auf dem Bild
12 13) 2 Hängeschränke 40 cm hoch
Bezüglich der nebenliegenden Räume:
Die Tür an der rechten Seite führt in den Flur. Die Schiebetür an der unteren Seite führt direkt ins Wohnzimmer. Das Fenster ist auf der Skizze oben. Die Schräge auf der linken Seite.
Ich wäre euch sehr dankbar, wenn Ihr uns da irgendwie unterstützen könntet eine gute Standmöglichkeit in den Räumen zu finden
Checkliste zur Küchenplanung von Troschan
Anzahl Personen im Haushalt : 2
Davon Kinder? : keine
Körpergrössen aller Hauptbenutzer (wegen Arbeitshöhe ) in cm : 182cm, 171 cm
Art des Gebäudes? : Bestandsbau, (kleinere) Umbauten möglich
Brüstungshöhe des Fensters (in cm) : 83
Fensterhöhe (in cm) : 100
Raumhöhe in cm: : 250
Heizung : Fussbodenheizung
Sanitäranschlüsse : fix
Ausführung Kühlgerät? : Integriert im Hochschrank (60cm)
Kühlgerät Größe : noch unbekannt
Ausführung Tiefkühl (TK)-Gerät : Im Kühlschrank ab 3 Schubladen unten
Dunstabzugshaube? : Abluft
Hochgebauter Backofen ? : Wenn möglich
Hochgebauter Geschirrspüler ? : nein
Kochfeldart? : Induktion
Kochfeldbreite ca. (in cm)? : 60
Spülenform: : Noch nicht festgelegt
Weitere geplante Heißgeräte : Einbaumikrowelle, Dampfgarer ohne Wasseranschluß
Küchenstil? : modern
Sitzmöglichkeit in der Küche / im Küchenbereich als : Keine
Sitzmöglichkeit: Für wieviel Personen? : nein
Sitzmöglichkeit: Tisch - wenn gesonderter Tisch oder offene Küche : Keine
Gewünschte o. vorhandene Tischgröße : Im Wohnzimmer ist ein Tisch
Wofür soll der Sitzplatz in der Küche genutzt werden? Wie häufig? : Gar nicht.
Welche Arbeitshöhe ist angedacht (in cm)? : 83 ?
Was steht auf der Arbeitsplatte oder soll dort stehen? : Kaffeemaschine, Wasserkocher, Messerblock
Welche weiteren Küchenmaschinen müssen in der Küche untergebracht werden? :
Was soll in der Küche außer den Standards untergebracht werden? : Geschirr komplett (nichts in Ess-/Wohnzimmer)
Welchen Stauraum gibt es sonst noch? : Hauswirtschaftsraum, Keller
Was/wie wird gekocht? (Alltagsküche, Menüs, Snacks usw) : Am ehesten dann mal Alltagsküche, mit Gästen auch eventuell mal mehr.
Wie häufig wird gekocht? : ab und zu
Wird alleine gekocht? Oder auch gemeinsam? Mit und für Gäste? : Meist am Wochenende zu 2. oder auch mal mit Gästen (2x im Monat)
Was stört an der bisherigen Küche und was soll die neue Küche unbedingt können? Warum? : Neue Wohnung - neue Küche
Steht schon ein Küchenhersteller fest oder wird bevorzugt? : Nö, nicht wirklich, wir dachten IKEA wäre gut weiterverwendbar wenn man mal auszieht.
Steht schon ein Gerätehersteller fest oder wird bevorzugt? : Nein, gut & günstig gesucht.
Preisvorstellung (Budget) : bis 3.000,-
Anhänge
