I oder U?

Kitekat_11

Mitglied
Beiträge
22
Hallo liebes Küchen-Forum,

ich habe mich schon durch einige Beiträge gelesen und bin begeistert, was ihr aus Küchen alles so machen könnt. Vielleicht könnt ihr mir bei unserer Küche auch helfen, denn ich stecke bei der Planung momentan etwas fest.

Wir haben einen Neubau, schon errichtet, für den eine offene Wohnküche geplant ist. Kleinere Planungsänderungen sind noch möglich, Wände versetzen eher lieber nicht. Momentan schwanke ich zwischen den Varianten Insel oder U-Form wobei die Insel vielleicht ein bisschen zu klein ist, während mir die U-Form fast zu wuchtig erscheint. Aber vielleicht gibt es noch ganz andere Möglichkeiten, bin da ganz offen.

Vom Stil her sollte die Küche modern und reduziert (keine wuchtigen Oberschränke) ausfallen, damit sie sich gut in den Wohnraum einpasst. Oberflächen stehen noch nicht endgültig fest, müssen noch zwischen meinem Freund und mir ausdiskutiert werden ;-). Wichtiger ist mir erst mal der generelle Aufbau.

Grundrisse und meine bisherigen Planungsversuche habe ich schon mal eingestellt. Ich hoffe ich habe nichts wichtiges dabei vergessen. Ach ja, dass Speichern der Planungsansicht im Alnoplaner mit Strg+Alt+S hat bei mir nicht geklappt (warum auch immer). Hab mich mit der Erstellung von pdfs beholfen.

Vielen Dank schon mal für Eure Hilfe.

Liebe Grüße

Andrea

Checkliste zur Küchenplanung

Anzahl Personen im Haushalt: 2
Davon Kinder?:
Art des Gebäudes?: Neu-/Umbau, Planänderungen nicht möglich
Körpergrössen aller Hauptbenutzer (wegen Arbeitshöhe ) in cm: 172 und 189
Brüstungshöhe des Fensters (in cm): 95
Fensterhöhe (in cm): 124
Raumhöhe in cm: 260
Heizung: Fussbodenheizung
Sanitäranschlüsse: variabel an aktueller Wand
Ausführung Kühlgerät: Integriert im Hochschrank (60cm)
Kühlgerät Größe: noch unbekannt
Ausführung Tiefkühl (TK)-Gerät: Im Kühlschrank als kleines Fach oben
Dunstabzugshaube: Umluft
Backofen etc. hochgebaut?: Wenn möglich
Hochgebauter Geschirrspüler ?: Nein
Kochfeldart: Induktion
Kochfeldbreite ca. (in cm)?: 60
Spülenform: Noch nicht festgelegt
Geplante Heißgeräte: Standmikrowelle, Backofen , Dampfbackofen (DGC) ohne Wasseranschluß
Küchenstil: Modern
Sitzmöglichkeit in der Küche / im Küchenbereich: Überstehende Arbeitsplatte
Sitzmöglichkeit: Für wieviel Personen?: für 2 Personen
Sitzmöglichkeit: Tisch - wenn gesonderter Tisch oder offene Küche: Wird nach Bedarf neu gekauft
Gewünschte o. vorhandene Tischgröße:
Wofür soll der Sitzplatz in der Küche genutzt werden? Wie häufig?: zum Zugucken beim Kochen, kleine Snacks
Welche Arbeitshöhe ist angedacht (in cm)?: zwischen 90 und 100 cm
Was steht auf der Arbeitsplatte oder soll dort stehen?: Wasserkocher, Messerblock
Welche weiteren Küchenmaschinen müssen in der Küche untergebracht werden?: Toaster, Handrührgerät, Mixer, Pürierstab, Eierkocher
Was soll in der Küche außer den Standards untergebracht werden?:
Welchen Stauraum gibt es sonst noch?: Geschirr/Gläserschrank im Wohn-/Esszimmer, Keller
Was/wie wird gekocht? (Alltagsküche, Menüs, Snacks usw): 1-2 mal die Woche
Wie häufig wird gekocht?ab und zu[/COLOR]
Wird alleine gekocht? Oder auch gemeinsam? Mit und für Gäste?: meistens zu 2
auch mal für Gäste

Was stört an der bisherigen Küche und was soll die neue Küche unbedingt können? Warum?: zu hohe Hängeschränke, unübersichtliche Eckschränke
Welche Mülltrennung soll in der Küche vorgehalten werden?: Biomüll, Gelber Sack Müll, Restmüll
Steht schon ein Küchenhersteller fest oder wird bevorzugt?: nein
Steht schon ein Gerätehersteller fest oder wird bevorzugt?: nein
Preisvorstellung (Budget): bis 15.000,-
 
So und jetzt auch noch die versprochenen Dateien....
Grundriss_gesamt.jpgGrundriss_Küche.jpg
 

Anhänge

  • ALNO-Grundriss_1.KPL
    3,9 KB · Aufrufe: 202
  • ALNO-Grundriss_1.POS
    5,4 KB · Aufrufe: 181
  • ALNO_Grundriss.pdf
    28,6 KB · Aufrufe: 250
  • PLAN Insel.KPL
    3,9 KB · Aufrufe: 177
  • PLAN Insel.POS
    7,2 KB · Aufrufe: 206
  • PLAN U-Form.KPL
    3,9 KB · Aufrufe: 174
  • PLAN U-Form.POS
    7,5 KB · Aufrufe: 174
  • Variante_Insel.pdf
    54,7 KB · Aufrufe: 255
Variante_Insel_Ansicht_1.JPG Variante_Insel_Ansicht_2.JPG Variante_U-Form_Ansicht_1.JPG Variante_U-Form_Ansicht_2.JPG
oder auch hier (dauert wohl, bis ich mit dieser ganzen Hochladerei klar komme;-))
 

Anhänge

  • Variante_U-Form.pdf
    55,1 KB · Aufrufe: 246
Hallo kitekat und herzlich willkommen im Forum.

Das mit deinen dateien musst du nochmal machen, sortiert nämlich.

Pro post 1 Variante. Dazu gehören jeweils

pos+ kpl Datei
ein paar bildanischten
ALNO Grundriss mit dem snipping tool von windows erstellt.
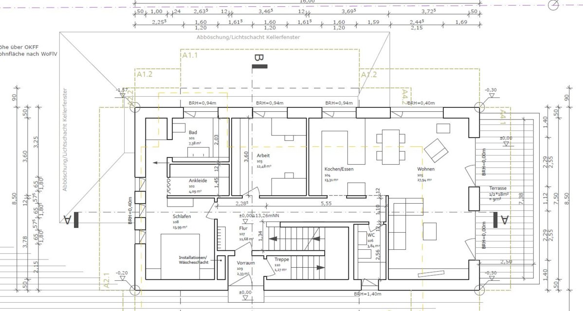
Richte die pläne nach deinem hausgrundriss aus.

Die Masse planunten sind von planlinks
85.5cm
durchgang?
kurze Wand?
Durchgang?

grundriss_kueche-jpg.185042
 
und die Wand planlinks ist 360cm lang oder weniger?

und das Fenster ist im Alno auch kleiner oder soll es 160cm breit werden?
 
Blätter mal durch die fertiggestellten Küchen, da gibt es viele Grundrisse wie Deinen - bewährt hat sich ein 2-Zeiler - also Wandzeile (wenn möglich Uebertief und mit Kochfeld) plus Spülenhalbinsel in 120cm tiefe. Durchgang sollte schon mindestens 100cm breit frei bleiben.
 
Hui, das ging aber schnell.
Dann hier nochmal vernünftig sortiert erst mal die Inselvariante. Ich hoffe diesmal vollständig.

Insel_Ansicht_1.JPG Insel_Ansicht_2.JPG Insel_Ansicht_3.JPG Insel_Ansicht_4.JPG Insel_ALNO_Grundriss.JPG

@Evelin
Die Masse Planunten links sind
Wandstummel 85,5 cm

Durchgang 119 cm

kurze Wand = Wandstück, dass aus statischen Gründen dort stehen muss 28 cm

Durchgang 119 cm

Wand Planlinks ist 353 cm

Das Fenster ist 147 cm breit


Liebe Grüße

Andrea
 

Anhänge

  • PLAN Insel.KPL
    3,9 KB · Aufrufe: 176
  • PLAN Insel.POS
    7,2 KB · Aufrufe: 160
Und hier nochmal die U-Form.

U-Form_ALNOgrundriss.JPG U-Form_Ansicht_2.JPG U-Form_Ansicht_1.JPG U-Form_Ansicht_3.JPG
 

Anhänge

  • PLAN U-Form.POS
    7,5 KB · Aufrufe: 182
  • PLAN U-Form.KPL
    3,9 KB · Aufrufe: 173
Hallo Vanessa,

an 2-Zeiler hatte ich auch schon gedacht, aber wenn man beide Zeilen durchzieht, dann erschien es mir irgendwie logisch, dann auch die Fensterseite mit einer Arbeitsplatte zu versehen, allein um Arbeitsfläche zu gewinnen. Außerdem ließt die Raumzeile dann irgendwie halb an Fenster an und halb nicht. Da würde mir noch ein vernünftiger Übergang zum Fenster fehlen.
Für Übertiefe an der Wandseite sind noch die Lichtschalter im Weg. Aber dass ließe sich ja vielleicht noch ändern, wenn man sie an die Stirnseite der Wand verlegt. Die Diskussionen über Koch- und Spülinsel habe ich auch schon verfolgt, aber das Verlegen der Abflussleitung zur Insel funktioniert in unserem Falle nicht. Außerdem kann ich mich mit der Idee einer Kochinsel ganz gut anfreunden.
Wir haben unsere leeren Umzugskarton schon mal dazu missbraucht die Insel- und Zweizeilervariante nachzubauen. Die Inselvariante ist momentan dabei der Favorit. Die Durchgänge habe ich etwas schmaler gemacht, damit die Insel nicht zu klein ausfällt. In wieweit das das praktikabel ist, weiss ich nicht. Das Kochen auf Pappkarton habe ich noch nicht ausprobiert :-). Die Tiefe der Insel ist nur 90 cm weil mir 120 cm bei der geringen Breite etwas wuchtig erschien. Reichen denn 30 cm zum dransitzen?


@ Black Lab

Die Küche gefällt mir sehr gut. Wenn ich das richtig erkenne, sind die Küchenzeilen allerdings deutlich länger als bei uns Platz ist. Ich habe immer ein bisschen die Befürchtung, dass es bei unserer geringeren Wandlänge (Planlinks) leicht gequetscht aussieht.

Liebe Grüße

Andrea
 
Hallo Andrea
Du findest in den fertiggestellten Küchen auch Beispiele mit angedockten Halbinseln halb vor dem Fenster, das ist kein Problem, auch wenn es Dir im ersten Moment ungewöhnlich erscheinen mag. Als freistehende Insel fehlt Dir sowohl Arbeitsfläche, als auch Stauraum. Kann man das Fenster nicht in eine Terrassentüre umwandeln? Dann hätte man auch den praktischen und bequemen direkten Weg in den Garten.

2-Zeiler ist günstiger (sowohl kostenmässig als auch vom Stauraum her) und lasse bitte 100cm Durchgänge, das sieht sonst nix aus und ist auch nicht praktisch.

Die Insel sollte schon 100cm tief sein, wenn Du eine Kochinsel möchtest. An einer überstehenden APL von 30cm kann man sitzen - für einen echten Essplatz benötigt man aber schon 40-45cm Beinfreiheit. Die Unterschränke auf der Insel, sollten auch in übertiefe sein - das gibt euch wertvollen Stauraum.
 
Ich habe einmal den Grundriss im Alno -Planer gedreht, damit die Ausrichtung mit dem eingestellten Grundriss übereinstimmt und es nicht zu Begriffsverwirrungen kommt.

Ich bin am planen, aber mit dem Ergebnis noch nicht zufrieden. Muss die Mikrowelle weiterhin in die Küche, wenn du einen BO und DGC hast? Sie würde einen dritten HS bedingen und das finde ich zu wuchtig.
 

Anhänge

  • kitekat_Grundriss.KPL
    3,9 KB · Aufrufe: 178
  • kitekat_Grundriss.POS
    5,9 KB · Aufrufe: 186
  • kitekat_Mela_Grundriss.JPG
    kitekat_Mela_Grundriss.JPG
    34,8 KB · Aufrufe: 167
Ich sehe gerade, dass ich Grundriss der Planung eingestellt habe. Ich lade noch einmal den leeren komplett hoch.

Könntet ihr euch vorstellen, die planuntere Wande, welche momentan eine Länge von 86,5 cm hat bis zum Pfeiler durchzuziehen? Ich finde, dass zwei solcher Durchbrüche nicht erforderlich sind.
 

Anhänge

  • kitekat_Grundriss.JPG
    kitekat_Grundriss.JPG
    29,4 KB · Aufrufe: 184
  • kitekat_Grundriss.POS
    5,9 KB · Aufrufe: 186
  • kitekat_Grundriss.KPL
    3,9 KB · Aufrufe: 173
Hallo,

sorry, dass Ihr so lange auf meine Antwort warten musstet. Bin jetzt wieder im Lande. Hab mal versucht eine Zweizeilervariante zu basteln. Sieht zwar nicht so schön aus, wie die von Mela aber geht vielleicht schon in die richtige Richtung.

Zweizeiler_ALNO_Grundriss.JPG Zweizeiler_Ansicht_1.JPG Zweizeiler_Ansicht_2.JPG Zweizeiler_Ansicht_3.JPG Zweizeiler_Ansicht_4.JPG

@Vanessa
Das Fenster lässt sich leider nicht in eine Terrassentür umwandeln weil man immer ca. 1,50 m runterspringen müsste, um auf den Boden zu kommen. Eine Terrasse dort aufzuschütten geht auch nicht, weil darunter noch ein Fenster für den Keller ist.

Die optimale Tiefe der Insel (bzw. der Raumzeile bei einem Zweizeiler) wäre dann bei Übertiefe der Schränke und ausreichend Beinfreiheit 110 bis 120 cm. Hm, auf den ALNO -Ansichten wirkt das in meinen Augen immer sehr groß für den Raum. Aber vielleicht ist dort die Perspektive etwas verzerrt. Wirken "übertiefe" Inseln bzw. Raumzeilen in Natura auch so?

Gibt es hier im Forum Beispiele für den Übergang zwischen Zweizeiler und Fenster? Denn die Arbeitsplatte nur zum Teil ins Fenster reinlaufen zu lassen, stelle ich mir komisch vor. Und die ganze Fensterbank als Arbeitsplatte zu gestalten wirkt vielleicht, als wenn dann eine U-Form auf halbem Wege stehen geblieben ist.

@ Mela
Mikrowelle muss nicht sein, wenn der DGC die Funktion ausreichend erfüllt. Hab aber noch keine Erfahrungswerte mit DGC. Bei Mikrowelle würde es auch ein Standgerät tun. Hätte nur keine Ahnung, wo das stehen sollte.
Ich gebe Dir recht, dass 3 HS zu wuchtig sind. Ich hatte bisher immer nur mit 1 HS geplant, weil ich 2 HS auch schon recht wuchtig finde. Und bei einen HS links und rechts der Wandzeile fand ich unpraktisch, weil auf der Fensterseite dadurch weniger Licht auf die Arbeitsfläche kommt.

Den ersten Durchgang vom Flur in die Küche könnte man theoretisch schließen. Ist das von den Laufwegen aber nicht unpraktisch, wenn man immer erst mal um den Pfeiler rum muss, um in die Küche zu kommen? Ein Grund den Durchgang zumindest nicht ganz zu schließen ist noch, dass der Flur sonst noch länger und dunkler wirkt. Aber vielleicht gibt es ja die Möglichkeit, das ganze wie eine Theke nur halbhoch zu schließen? Danke für die Anregung. Vielleicht habe ich die Idee, den Durchgang zu schließen etwas zu schnell aufgegeben:2daumenhoch:

@Evelin
Von außen macht die Größe und Anordnung sinn, weil es mehrere Fenster nebeneinander sind. Aber das hilft von innen natürlich nicht weiter ;-).Ändern lässt sich die Anordnung nicht.


Vielen Dank für die bisherigen Anregungen.

Liebe Grüße

Andrea
 
Habe den ersten Versuch fertig.

Deine Argumentation bezüglich des Flures kann ich nachvollziehen. Deswegen habe ich den Pfosten vergrößert und ein feststehendes Glaselement eingeplant. Die paar Schritte mehr in die Küche finde ich, sind zu verkraften. Nur den Pfosten dort stehen zu haben finde ich optisch nicht den Bringer.

Die Wandzeile habe ich dir in Übertiefe 70 cm geplant und die Seitenschränke mit einer Höhe von ca. 170 cm, damit es luftig bleibt. Ist aber nur ein Vorschlag. Auch habe ich dir die GSM hochgesetzt, da es einfach eine tolle Sache ist.

Beginnend planrechts oben:
Wange
hochgesetzte GSM
2,5 cm Wange ist erforderlich, da die GSM per se bereits 60 cm breit ist
60 Spüle, Becken ohne Abtropfe
40er MUPL
60er Auszug 3-3 mit Innenschublade wegen Optik

Halbinsel, oben beginnend:
hier habe ich auf Übertiefe verzichtet und nur einen 39 cm tiefen Drehtürenschrank gegengestellt um für den Essplatz ausreichend Platz zu haben.
Wange
60er Auszug
90er Auszug mit 80er Kochfeld
90er Auszug
Wange

gegengestellt:
120 cm Drehtür
überstehende AP für Sitzplätze
 

Anhänge

  • kitekat_Mela_Draufsicht.JPG
    kitekat_Mela_Draufsicht.JPG
    134,8 KB · Aufrufe: 180
  • kitekat_Mela_Grundriss.JPG
    kitekat_Mela_Grundriss.JPG
    45,8 KB · Aufrufe: 168
  • kitekat_Mela_Insel.JPG
    kitekat_Mela_Insel.JPG
    104,1 KB · Aufrufe: 179
  • kitekat_Mela_Spüle.JPG
    kitekat_Mela_Spüle.JPG
    98,1 KB · Aufrufe: 179
  • kitekat_Mela_rück.JPG
    kitekat_Mela_rück.JPG
    93,7 KB · Aufrufe: 199
  • kitekat_Mela.KPL
    3,9 KB · Aufrufe: 176
  • kitekat_Mela.POS
    11,8 KB · Aufrufe: 185
Das Regal finde ich schön. Ist vielleicht auch ein guter Abschluss für den Spritzschutz an der Wand. Die zwei unterschiedlichen Höhen zwischen den Hochschränken links und rechtes der Spüle würden mich glaube ich stören. Kann man die hochgesetzte GSM auch nach links (planunten) setzen und darüber den DGC? Reicht das von der Höhe?

Ich hatte auch schon überlegt, Spüle und Kochfeld beides an die Wandseite zu verlegen und die Raumseite allein als Arbeitsfläche zu nutzen. Ich bin mir aber nicht sicher, ob das Vorteile hat, außer, dass es vielleicht mehr Möglichkeiten bei der Dunstabzugshaube gibt.
Ich werde mal morgen Deine Planung als Grundlage nehmen und versuchen den Alnoplaner dazu zu überreden, meine Vorstellungen in Bilder zu übersetzen. Vielleicht schaffte ich es dann endlich auch Kochfeld und Backofen getrennt hinzubekommen :-)

Vielen Dank

Andrea
 
Kochfeld und Spüle zusammen an der planrechten Wand wird schwierig. Wenn die Hochschränke, dann planunten stehen würden, wird es zu eng zwischen Spüle und Kochfeld.
 
Einmal als Stellprobe. Die planlinke Seite habe ich in Übertiefe 75 cm geplant.
Nachteil für mich ist, dass Kühlschrank und BO realtiv weit vom Geschehen stehen.
 

Anhänge

  • kitekat_Mela2.KPL
    3,9 KB · Aufrufe: 176
  • kitekat_Mela2.POS
    11,5 KB · Aufrufe: 190
  • kitekat_Mela2_Draufsicht.JPG
    kitekat_Mela2_Draufsicht.JPG
    102,6 KB · Aufrufe: 193
  • kitekat_Mela2_Grundriss.JPG
    kitekat_Mela2_Grundriss.JPG
    38,1 KB · Aufrufe: 169
  • kitekat_Mela2_HS.JPG
    kitekat_Mela2_HS.JPG
    98,5 KB · Aufrufe: 185
  • kitekat_Mela2_Vorbereitung.JPG
    kitekat_Mela2_Vorbereitung.JPG
    74,6 KB · Aufrufe: 163
  • kitekat_Mela2_Zeile.JPG
    kitekat_Mela2_Zeile.JPG
    77,3 KB · Aufrufe: 184

Ähnliche Beiträge

Neff Hausgeräte Ballerina Küchen Blum Bewegungstechnologie Weibel - Intelligente Küchenlüftung

Neff Spezial

Blum Zonenplaner

Weibel Abluft-Tuning

Weibel Abluft-Tuning
Zurück
Oben