Unbeendet Erste Orientierungshilfe bezüglich Küche

KüchenGrym

Mitglied
Beiträge
147
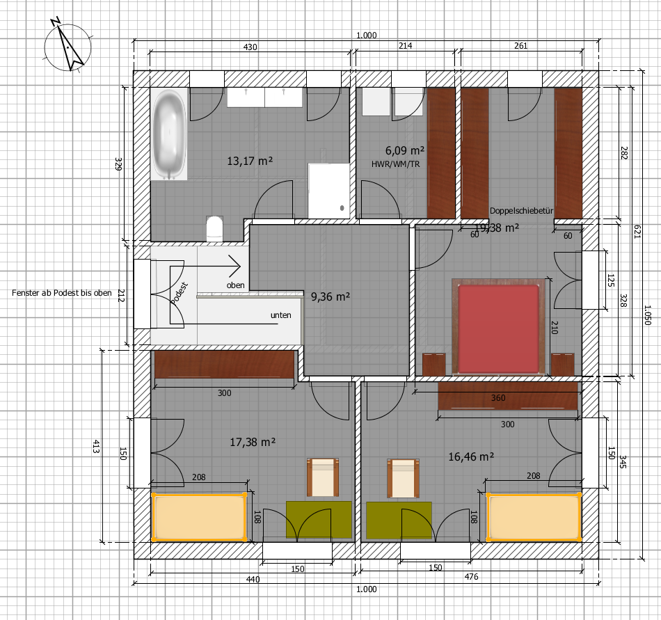
Wir werden nächstes Jahr ein Haus bauen und wollten uns schon mal grob orientieren, ob der von uns vorgesehen Platz überhaupt ausreicht bzw. was so gängige Standardmaße sind, welche wir zu beachten haben oder ob evtl. der gesamte Grundriss noch mal durchdacht werden muss. Wir sind im Moment zu dritt (mit einem 8 Monate alten Baby), aber tendenziell wollen wir noch mindestens ein weiteres Kind. Grundrisse wie folgt:

grundriss-total.PNG grundriss-küche.PNG

Ausrichtungspfeil gibt es ebenfalls auf der Gesamtübersicht. Grob gesagt ist unten SSW und die Gartenseite.

Wir hatten uns ganz grob überlegt an der linken Seite raumhohe Schränke anzuordnen und dort Kühlschrank, Gefrierschrank, Backofen , eingebaute Mikrowelle und Stauraum einzuordnen. Die obere Seite wäre dann klassisch Unterschränke, Arbeitsplatte und Hängeschränke und vor dem Fenster (Höhe, Breite, Brüstungshöhe alles noch variabel, überhaupt der gesamte Grundriss variabel) könnte man die Spüle einordnen. Die Halbinsel könnte das Kochfeld aufnehmen. Eine Theke dort möchten wir eigentlich nicht, da der Essplatz ja gleich daneben ist.

Es ist erst mal eine grobe Idee und wir möchten erst mal etwas Input, ob es sich hier überhaupt lohnt, weiter zu überlegen, oder ob das schon von Anfang an Mist ist.

Spezieller Müll wie Glas oder Gelber Sack könnte sicherlich im HWR eingeordnet werden, das muss nicht in der Küche bleiben.

Es wäre rein theoretisch denkbar, den Gefrierschrank in den HWR auszulagern, aber praktisch wollen wir das eigentlich nicht. Beispielsweise gibt es bei uns sehr oft Aufbackbrötchen und auch einiges an Gemüse ist im TK.

Es wird keine Abluft sondern Umluft, da wir eine kontrollierte Lüftungsanlage mit Wärmerückgewinnung einbauen wollen. Die lüftet natürlich nicht so schnell weg wie eine Dunstabzugshaube, allerdings tauscht auch die KWL die komplette Luft innerhalb von 2h aus.

Was mich beispielsweise auch interessieren würde sind gute Maße etwa für den Mittelgang bei dieser U-förmigen Küche bzw. G-förmigen Küche. Sind 120cm gut, man muss ja nicht nur dort laufen können sondern ggfs. auch mal einen Schrank öffnen?

Wie groß, wie breit, wie tief sollte so eine Koch-Halb-Insel sein? Wie schließt man die am besten zum Wohn/Essbereich hin ab, wenn man keine Theke möchte?

Gibt es sonst noch was zu beachten? Achja, Getränkekisten finden sicherlich im HWR Platz, ebenso evtl. einige langfristige Vorräte, aber ich möchte nicht wegen jedem Stück Zucker nach drüben rennen.

Checkliste zur Küchenplanung

Anzahl Personen im Haushalt: 4
Davon Kinder?: 2
Art des Gebäudes?: Neu-/Umbau, Planänderungen möglich
Körpergrössen aller Hauptbenutzer (wegen Arbeitshöhe ) in cm: 165 cm und 178 cm
Brüstungshöhe des Fensters (in cm): 100 cm (??)
Fensterhöhe (in cm): bis oben abzüglich Sturz/Rollladen
Raumhöhe in cm: 252 cm
Heizung: Fussbodenheizung
Sanitäranschlüsse: vollkommen variabel
Ausführung Kühlgerät: Integriert im Hochschrank (60cm)
Kühlgerät Größe: noch unbekannt
Ausführung Tiefkühl (TK)-Gerät: Eigenständiges Gerät bis 178 cm Höhe
Dunstabzugshaube: Umluft
Backofen etc. hochgebaut?: Wenn möglich
Hochgebauter Geschirrspüler ?: Wenn möglich
Kochfeldart: Induktion
Kochfeldbreite ca. (in cm)?: Wir haben im Moment 60 cm, ein wenig größer wäre sicher nicht schlecht
Spülenform: Noch nicht festgelegt
Geplante Heißgeräte: Einbaumikrowelle, Dampfbackofen (DGC) mit Wasseranschluß
Küchenstil: Modern
Sitzmöglichkeit in der Küche / im Küchenbereich: Keine
Sitzmöglichkeit: Für wieviel Personen?: Nein
Sitzmöglichkeit: Tisch - wenn gesonderter Tisch oder offene Küche: Keiner
Gewünschte o. vorhandene Tischgröße: -
Wofür soll der Sitzplatz in der Küche genutzt werden? Wie häufig?: -
Welche Arbeitshöhe ist angedacht (in cm)?: 95 cm
Was steht auf der Arbeitsplatte oder soll dort stehen?: Kaffeevollautomat, Wasserkocher, Messerblock, Toaster, Obstschale, Sonstiges (evtl. im Beitragstext benennen)
Welche weiteren Küchenmaschinen müssen in der Küche untergebracht werden?: Mixer, Pürierstab, Eierkocher, Sonstiges (evtl. im Beitragstext benennen)
Was soll in der Küche außer den Standards untergebracht werden?: Geschirr komplett (nichts in Ess-/Wohnzimmer)
Welchen Stauraum gibt es sonst noch?: Hauswirtschaftsraum
Was/wie wird gekocht? (Alltagsküche, Menüs, Snacks usw): Alles mögliche, wenn Gäste da sind auch mal Menüs
Wie häufig wird gekocht?: (fast) täglich 1x warm
Wird alleine gekocht? Oder auch gemeinsam? Mit und für Gäste?: Im Moment eher alleine, aber man möchte sich ja nicht per se die Möglichkeit verwehren, gemeinsam mit Freunden etwas zu kochen.
Was stört an der bisherigen Küche und was soll die neue Küche unbedingt können? Warum?: Küche hat zu wenig Arbeitsflächen und diese stehen voll mit Toaster, Wasserkocher, Mikrowelle ; Zahlreiche Küchenutensilien (Tortenplatten, Sektgläser, Biergläser, Weingläser, Bowle-Gefäß) passen nicht mehr in die Küche.
Welche Mülltrennung soll in der Küche vorgehalten werden?: Bio/Restmüll ungetrennt
Steht schon ein Küchenhersteller fest oder wird bevorzugt?: Nein
Steht schon ein Gerätehersteller fest oder wird bevorzugt?: Bezahlbare mittlere/gute Qualität, so etwas wie Siemens /Bosch ; keine Billig-Geräte aber Miele muss es auch nicht sein
Preisvorstellung (Budget): bis 10.000,-
 
Hallo KüchenGrym,

die Halbinsel scheint mir etwas zu kurz zum Kochen. Wenn Kinder im Haus sind, würde ich jeweils 40cm seitlich des Kochfelds einplanen. Bei einem 80cm Kochfeld wäre man also schon bei 160cm Länge. Soll noch auf der Insel gearbeitet werden, wären eher 200cm sinnvoll. Tiefe von 100cm ist ok.
Daher würde ich mal überlegen, ob eine reine Arbeitsinsel in Frage käme oder ob man die Küche etwas breiter bauen kann. Auch wird im Forum gerne eine Spülinsel empfohlen, da die meisten Arbeiten in der Küche in Wassernähe anfallen. Zudem ist eine Umluft-Haube für die Insel sehr teuer.

Statt die Küche rundum zu bauen, würde ich die Schränke vor dem Fenster weglassen, da zwei US-Zeilen einfach praktischer und günstiger sind. Auch hat man mehr Arbeitsplätze und blockiert sich beim Arbeiten nicht gegenseitig.

Die Hochschrankwand könnte aus drei Schränken à 60cm Breite bestehen, z.B. einer für den Kühlschrank, einer für den Backofen und einer mit hochgebautem GSP.
 
Sollen es wirklich 178er Kühlschrank und dann noch 178er TK-Schrank werden?

Ich würde da die 3 Hochschränke planlinks setzen, planoben dann Auszugsunterschränke mit Kochfeld. Das ist für eine DAH wesentlich einfacher, weil weniger Querströmungen. Planrechts am Fenster dann die Spüle kurz vor der Ecke zur Halbinsel, Halbinsel breiter und als Arbeitsinsel. Dann kann man prima auch mit mehreren Kochen, kann die Halbinsel auch für Backaktionen, Buffet anrichten usw. nutzen.
 
Vor allem wird es mit dem o.g.Budget unmöglich die Küche zu realisieren. Wenn du die Geräte mal rechnest, bist du schon deutlich über der Hälfte vom Budget.
 
Allein der DGC verbraucht schon 25% vom Budget.
Oder meintest du nur die Holzteile ?

LG Bibbi
 
Überlegt euch mal ob ihr es nicht doch schaffen könnt, die Baugenehmigung
(notfalls mit unvollständigen Unterlagen!) vor dem 01.01.2016 zu beantragen.
Ab dann gilt die neue EnEV und die verteuert jeden Neubau um min 25.000 €
haben mit 4 Architekten versichert. Es zählt der Eingangsstempel des Bauamts!

Euer Grundriss gefällt uns (!) sehr gut.

Ich würde im WZ planlinks das Fenster weglassen um mehr Schränke stellen
zu können. Das ist eh fast Norden .. und das Fragezeichen ist schon da ;-)

Die Haustür würde ich mit Glaselement an der Seite kaufen und dafür dort
das Fenster weglassen.

Das Büro irritiert mich. Es ist aufgebaut um Besucher/Mandanten zu empfangen
aber für diese gibts keine Sitzmöglichkeit.

Als Durchgangsbreiten rund um die Insel sollte ein Meter ausreichen. Also kann
die Insel etwas größer werden.

Planoben würde ich übertiefe APL und Schränke vorsehen. Das bringt viel
Arbeitsfläche und Stauraum für relativ wenig Geld.

Ich freu mich schon darauf eine Küche in den Maßen zu planen. Mal sehen
ich Zeit habe.
 
Ich lege mal meine Geräteplanung bei, damit du für einige Preise
ein Gefühl bekommen kannst. Alle meine Preise sind Angebote aus
dem Netz inclusive Porto aber ohne Einbau (mach ich bis aufs Gas
selbst) und ohne Garantie eines Küchenstudios.
Klar wirst du nicht alles von meiner Liste brauchen ... aber bedenke,
dass ich bei allen Geräten tagelang ausgesucht habe was was taugt
und was doch günstig ist und dass ich z.B. beim KS unter BSH -Niveau
(BSH ist die Firma, die ihre baugleichen Geräte mit den Schildchen Neff ,
Bosch , Gaggenau , Siemens , usw. beklebt) bin um Geld zu sparen.

Mit nur BSH-Geräten und im Küchenstudio wären ca 25 % mehr
durchaus angemessen.
 

Anhänge

  • Geräteliste.pdf
    43,2 KB · Aufrufe: 492
Zuletzt bearbeitet:
Mal einige Anmerkungen zu euren Maßen. Natürlich gebe ich dabei nur
meine Meinung als Laie wider!

Alle eure Maße sind im Moment Schall und Rauch, da der Architekt mit
anderen Mauerstärken zeichnen wird. Bei uns waren es 49 cm bei
Außenwänden, 16,5 cm bei tragenden und 11,5 cm bei nichttragenden
Wänden.
Dazu kommt, dass Architekten immer Rohbaumaße angeben. D.h. es
kommt Verputz, Fliessen, Anstrich, Tapete und all dies dazu. Für die
Küchenplanung braucht man aber die nutzbaren Innenmaße jeder Seite.

Planlinks wäre das ideale Innenmaß 270 cm (3 x 60 cm für Hochschrank ,
65 cm für Ecke, 15 cm für Übertiefe, 10 cm für Blenden und Wangen)

Planoben würde ich auf jeden Fall 75 cm APL einplanen. Diese Übertiefe
hat extrem viele Vorteile und ist relativ günstig machbar.
 
Daher würde ich mal überlegen, ob eine reine Arbeitsinsel in Frage käme oder ob man die Küche etwas breiter bauen kann. Auch wird im Forum gerne eine Spülinsel empfohlen, da die meisten Arbeiten in der Küche in Wassernähe anfallen. Zudem ist eine Umluft-Haube für die Insel sehr teuer.
Was wären denn gute Maße für eine reine Arbeitsinsel und was kommt da als "Unterbau" drunter? Spülinsel wollen wir eigentlich nicht, da wäre ja die Spüle (=Geschirr, Abwasch) Richtung Wohn-/Essbereich.

Statt die Küche rundum zu bauen, würde ich die Schränke vor dem Fenster weglassen, da zwei US-Zeilen einfach praktischer und günstiger sind. Auch hat man mehr Arbeitsplätze und blockiert sich beim Arbeiten nicht gegenseitig.
Wir würden die Spüle schon gerne vor dem Fenster haben. Zumal wir ja über der Spüle keinen Schrank haben wollen und das dort am Fenster ja sowieso passt.

Die Hochschrankwand könnte aus drei Schränken à 60cm Breite bestehen, z.B. einer für den Kühlschrank, einer für den Backofen und einer mit hochgebautem GSP.
So ungefähr haben wir uns das gedacht, ja.

Sollen es wirklich 178er Kühlschrank und dann noch 178er TK-Schrank werden?
Was ist mit 178 überhaupt gemeint? Die Höhe? also im Moment haben wir diese 178cm in der Höhe allerdings für Kühlschrank und Gefrierschrank kombiniert. Sowohl die etwa 100 cm Kühschrank als auch die etwa 70 cm Gefrierschrank sind allerdings ein bisschen zu wenig. Jetzt mit 2 Erwachsenen und einem Baby schon, später mit 2 Erwachsenen und 2 Kindern auf jeden Fall. Was sind gängige Standardmaße?

Ich würde da die 3 Hochschränke planlinks setzen, planoben dann Auszugsunterschränke mit Kochfeld. Das ist für eine DAH wesentlich einfacher, weil weniger Querströmungen. Planrechts am Fenster dann die Spüle kurz vor der Ecke zur Halbinsel, Halbinsel breiter und als Arbeitsinsel. Dann kann man prima auch mit mehreren Kochen, kann die Halbinsel auch für Backaktionen, Buffet anrichten usw. nutzen.

Das klingt gut. Passen die 120cm Breite zwischen Küchenzeile und Arbeitsinsel? Dort muss man ja auch mal einen Unterschrank öffnen.

Was wären gute Abmessungen für die Arbeitsinsel und was kommt dort als "Unterbau" hin?

Vor allem wird es mit dem o.g.Budget unmöglich die Küche zu realisieren. Wenn du die Geräte mal rechnest, bist du schon deutlich über der Hälfte vom Budget.

Allein der DGC verbraucht schon 25% vom Budget.
Oder meintest du nur die Holzteile ?

LG Bibbi

Zu den letzten beiden Quotes: Nehmt jetzt das Budget mal nicht 100% ernst, musste etwas angeben und meine jetzige Küche von Nolte mit BSH -Geräten hat ca. 5.000 EUR gekostet, also habe ich einfach mal das doppelte angesetzt. Letztendlich geht es eher darum, eine funktionale und gute Küche zu haben und wenn dann beim Preis wirklich zu viel heraus kommt, dann kann man noch mal überlegen, ob es uns das wert ist oder nicht.

Vielleicht wird es dann halt ein normaler Backofen statt Dampfgar/Mikrowollen/Backofen -Kombi.

Überlegt euch mal ob ihr es nicht doch schaffen könnt, die Baugenehmigung
(notfalls mit unvollständigen Unterlagen!) vor dem 01.01.2016 zu beantragen.
Das wird wohl leider nichts werden, weil der Bebauungsplan im Moment in der öffentlichen Auslage ist und vermutlich erst Januar oder Februar 2016 durch die übergeordnete Behörde beschlossen wird.


Ab dann gilt die neue EnEV und die verteuert jeden Neubau um min 25.000 €
haben mit 4 Architekten versichert. Es zählt der Eingangsstempel des Bauamts!
Der Primärenergiebedarf muss um 25 Prozent geringer sein und der Wärmeschutz der Gebäudehülle muss um 20 Prozent besser sein. Das sind aber sicher keine 25.000 EUR und auch heutzutage baut man ja nicht mehr nur den gesetzlichen Mindeststandard.

Euer Grundriss gefällt uns (!) sehr gut.
Supi :-)

Ich würde im WZ planlinks das Fenster weglassen um mehr Schränke stellen
zu können. Das ist eh fast Norden .. und das Fragezeichen ist schon da ;-)
Das Fenster ist auch ein Fragezeichen, weil wir dort evtl. die Garage anbauen wollen, wenn... ja wenn wir eine Garage überhaupt bauen. Andererseits könnte man die Garage auch noch in ca. 3 Meter Entfernung aufstellen.

Die Haustür würde ich mit Glaselement an der Seite kaufen und dafür dort
das Fenster weglassen.
Haben wir uns auch überlegt, aber reicht das von der Belichtung? Man muss bedenken, dass wir eine geschlossene Betontreppe einbauen (mit Holzbelag darauf), damit der Raum unter der Treppe als Abstellraum taugt. Das Fenster über dem Podest der Treppe ist doch recht weit weg vom Eingang um dorthin Licht zu spenden.

Das Büro irritiert mich. Es ist aufgebaut um Besucher/Mandanten zu empfangen
aber für diese gibts keine Sitzmöglichkeit.
Ist nur ein PC-Abstell-Raum. :-)
PC (statt im Wohnzimmer), Schränke zur Aufbewahrung von Akten, Unterlagen, Abstell, usw.
Die Ausrichtung ist so, weil ich gerne in den Raum und Richtung Tür blicken möchte und nicht den Raum und die Tür hinter mir haben möchte.
Evtl. könnte dort mal der Schreibtisch zur Seite gerückt werden und es wäre ein Gästezimmer mit aufblasbarer Matratze oder so. Das "dritte Zimmer" eben.

Als Durchgangsbreiten rund um die Insel sollte ein Meter ausreichen. Also kann
die Insel etwas größer werden.
Ok, aber mal angenommen ich mache dort einen Schrank auf (wie weit öffnet sich so ein Unterschrank, 50 cm?), dann sind da nur noch 50 cm? Oder ist das eher ein "Use Case" welcher zu vernachlässigen ist?

Planoben würde ich übertiefe APL und Schränke vorsehen. Das bringt viel
Arbeitsfläche und Stauraum für relativ wenig Geld.
Das klingt nach einer sehr guten Idee, wusste gar nicht dass es sowas gibt. Vielen Dank für den Tipp.

Ich freu mich schon darauf eine Küche in den Maßen zu planen. Mal sehen
ich Zeit habe.
Nochmal Supi. :-)
Es muss jetzt noch nicht alles im Detail geklärt werden, wir wollen erst mal grob abklären, ob das Küchenkonzept überhaupt so funktioniert. Wir wollen ja nicht einen Grundriss planen und bauen lassen und am Ende klappt das alles gar nicht.

Ich lege mal meine Geräteplanung bei, damit du für einige Preise
ein Gefühl bekommen kannst. Alle meine Preise sind Angebote aus
dem Netz inclusive Porto aber ohne Einbau (mach ich bis aufs Gas
selbst) und ohne Garantie eines Küchenstudios.
Klar wirst du nicht alles von meiner Liste brauchen ... aber bedenke,
dass ich bei allen Geräten tagelang ausgesucht habe was was taugt
und was doch günstig ist und dass ich z.B. beim KS unter BSH-Niveau
(BSH ist die Firma, die ihre baugleichen Geräte mit den Schildchen Neff ,
Bosch , Gaggenau , Siemens , usw. beklebt) bin um Geld zu sparen.

Mit nur BSH-Geräten und im Küchenstudio wären ca 25 % mehr
durchaus angemessen.

Neff ist auch BSH? Wusste ich gar nicht. Ich wusste zwar, dass Siemens und Bosch großteils baugleiche Geräte vertreiben und zusammen herstellen, aber Neff und Gaggenau auch? Aha.
Wie gesagt, das Budget ist nicht 100 Prozent fix. Wenn eine ordentliche Küche mehr kostet, dann ist das so.

Mal einige Anmerkungen zu euren Maßen. Natürlich gebe ich dabei nur
meine Meinung als Laie wider!

Alle eure Maße sind im Moment Schall und Rauch, da der Architekt mit
anderen Mauerstärken zeichnen wird. Bei uns waren es 49 cm bei
Außenwänden, 16,5 cm bei tragenden und 11,5 cm bei nichttragenden
Wänden.
Dazu kommt, dass Architekten immer Rohbaumaße angeben. D.h. es
kommt Verputz, Fliessen, Anstrich, Tapete und all dies dazu. Für die
Küchenplanung braucht man aber die nutzbaren Innenmaße jeder Seite.

Planlinks wäre das ideale Innenmaß 270 cm (3 x 60 cm für Hochschrank ,
65 cm für Ecke, 15 cm für Übertiefe, 10 cm für Blenden und Wangen)

Planoben würde ich auf jeden Fall 75 cm APL einplanen. Diese Übertiefe
hat extrem viele Vorteile und ist relativ günstig machbar.

Ganz so Schall und Rauch sind die Maße nicht, Außermauerwerk ist vielleicht noch 3-4cm zu gering (24cm Ziegel plus 12cm Dämmung = 36cm; Innenputz/Außenputz fehlt da noch ok), aber die tragenden Innenwände sind bereits mit 18cm und die nichttragenden Innenwände mit 12cm eingezeichnet. Sind die 270cm jetzt schon mit Sicherheitszuschlag oder ohne, d.h. sind die 10cm Blenden und Wangen notwendig oder sind die nur dazu da, eventuelle Abweichungen zu korrigieren?
49cm? Als monolithischer Ziegel? Da seid ihr ja auch ein gutes Stück über dem Mindeststandard z.b. und da würden sich dort durch die neue ENEV keine höheren Kosten ergeben. Auch unser 36cm-Aufbau (evtl. werden es auch 24+14) erfüllt z.B. schon die ENEV 2016. Aber das Thema hier nur am Rand.

Nur mal der Vollständigkeit halber hier der Grundriss im OG:

2333-og.PNG
 
Eine G-Küche ist die schlechtest mögliche Form für so einen kleinen Raum den Du produzierst damit lauter schmale Unterschränke und Ecken - deshalb solltest Du mit zwei gegenüberliegenden Arbeitsflächen planen und unter dem Fenster eben keine APL vorsehen. Du könntest auch statt dem Fenster eine Terrassentüre einbauen. Zeilenabstand 100cm wäre prima, die Halbinsel dafür 120cm tief. Der Durchgang sollte auch so ca 100-120cm sein, das reicht locker.
 
Ich versuche mal die vielen Punkte der Reihe nach abzuarbeiten:

1) Eine Arbeitsfläche ist ab 80cm Länge sinnvoll zu nutzen, je mehr, desto besser natürlich. Darunter Auszüge, einmal mit Dingen, die man beim vorbereiten braucht, von der Esszimmer Seite am besten Besteck und Geschirr.

2) Wie Vanessa sagt, sind zwei Zeilen plus Hochschränke das bessere Layout. Keine teuren Ecklösungen, mehr breite Schränke, keine nicht zugängliche Arbeitsfläche in den Ecken, mehr Bewegungsfläche in der Küche

3) Kühl und Gefriergeräte gibt es meist in den Höhen: 88, 102, 122, 145, 158, 178. Bei machen Herstellern über 2m Höhe und 75 und 90cm Breite

4) 120cm Abstand zwischen zwei Zeilen ist ideal. Vollauszüge öffnen ca. 55cm, also noch genug Platz davor zu stehen

5) Deine Geräte sind u.A. durch den DGC mit Festwasser so teuer, den gibt es glaube ich nur von Miele und Gaggenau . Lieber auf Festwasser verzichten und du kannst bei BSH ein Gerät finden

6) Bei Fenster in Haustürnähe unbedingt darauf achten, dass ein Sichtschutz wie Jalousien oder Plissees angebracht werden, denn man möchte nicht immer an der Tür gesehen werden

7) BSH sind alle von dir aufgeführten Marken, allerdings sind nicht alle Geräte baugleich. Neff baut z.B. eine andere Heißluft-Technik und Slide-Funktion in seine Öfen, die Steuerung von Öfen und Induktionsfelder ist bei jedem anders, Gaggenau stattet die Geräte ingesamt hochwertiger aus (Bsp. Edelstahl im Kühlschrank, bremsende Auszüge beim GSP)
 
Ich habe planrechts wie folgt geplant:

03 cm Blende
45 cm Schrank für Besen usw.
60 cm KS
02 cm Seitenwand für GSM
60 cm Hochgesezter GSM und BO
02 cm Seitenwand für GSM
03 cm Abstand zu den Unterschränken
75 cm US
---
250 cm

Planoben:
60 cm Hochschränke
05 cm Abstand
90 cm Auszugsschrank in 75 cm Tiefe
80 cm Kochfeldschrank in 75 cm Tiefe
90 cm Auszugsschrank in 75 cmTiefe
05 cm Blende
---
330 cm

Spüle und Kochfeld tauschen geht problemlos. Das ist wohl Geschmackssache
und ich bin selber da nicht sicher was schöner ist.

An der Zeile planrechts würde ich die Mauer weglassen um so deren Stärke
für die Zeile zu gewinnen. Dann den 45 Schrank gegen einen 60er tauschen
und dort die Mikrowelle rein.
 

Anhänge

  • KüchenKrym.POS
    8 KB · Aufrufe: 196
  • KüchenKrym.KPL
    3,9 KB · Aufrufe: 192
  • Krym 3.jpg
    Krym 3.jpg
    104,7 KB · Aufrufe: 242
  • Krym 2.jpg
    Krym 2.jpg
    80,1 KB · Aufrufe: 263
  • Krym 1.jpg
    Krym 1.jpg
    83,7 KB · Aufrufe: 245
  • Krym GR.jpg
    Krym GR.jpg
    59,1 KB · Aufrufe: 348
Schneeleopard, supi, vielen Dank dafür. Wir werden das noch mal ein wenig überdenken müssen. Wir wollten ja eigentlich keine Spülinsel, also eine Spüle Richtung Ess-/Wohnbereich, sondern eine Spüle unter dem Fenster. Ist das wirklich so viel extrem teurer?
 
G-Küche kostet deutlich mehr und zur Strafe hast du schlechteren und weniger Stauraum. Ausserdem kann in der Küche nur allein gearbeitet werden. Jürgens Planung ist gut.
 
Warum keine Spüleninsel? An der Spüle steht man deutlich häufiger und länger als am Kochfeld. Mit einer Spüleninsel arbeitet man dann deutlich mehr in Richtung Ess/Wohnzimmer als mit einer Kochinsel.
 
Gern geschehen.

Gegen 'Spüle unter dem Fenster' spricht in meinen Augen nicht 'extrem teurer'
sondern das dies eine komplett andere, schlechtere Lösung ist.

Die Schränke unter dem Fenster bringen nicht ganz soviel Stauraum wie in den
Ecken verloren geht. Dazu geht Platz zum Laufen und Stehen verloren da der
Innenraum enger wird.

Ob es teurer wird hängt vorallem davon ab, wie du die Ecken nutzt. Bei
'toten Ecken' bleiben die Schränke gleich bzw du brauchst etwas weniger.
Aber die Arbeitsplattenfläche wird größer. Mit Eckschränken und sauteuren
Spezialmechaniken wie z.B. 'LeMan-Auszügen' sind schnell mehrere tausend
Euro verbrannt ohne das die mehr Nutzen bringen.

Mit Spüle käme sowas raus:

Planoben:
60 cm Hochschränke
05 cm Abstand
60 cm Auszugsschrank in 75 cm Tiefe (statt 90 cm!)
80 cm Kochfeldschrank in 75 cm Tiefe
60 cm Auszugsschrank in 75 cmTiefe (statt 90 cm!)
65 cm Ecke
---
330 cm (davon 200 cm Unterschrank )

Planrechts:
65 cm Ecke
30 cm MUPL
80 cm Spüle
65 cm Ecke
---
240 cm (davon 110 cm Unterschrank)

Inseloben neu:
65 cm Ecke
90 cm Auszugsschrank (nur 60 cm tief!)
05 cm Wange
---
160 cm (davon 90 cm Unterschrank)

Inseloben alt:
60 cm Auszugsschrank
60 cm Spüle
40 cm MUPL
05 cm Blende
---
165 cm (davon 160 cm Unterschrank)

Veränderung in Schränken und geschätzt in Stauraumfläche:
Alt:
2 90er Schränke in 75 cm tief (Innenmaß bei 1-1-2-2: ca. 4,6 qm)
1 60er Schrank in 60 cm tief (Innenmaß bei 1-1-2-2: ca. 1,1 qm)
1 60er Spüle (Innenmaß bei Blende-2-2: ca. 0,5 qm)
Stauraumfläche: 6,2 qm
Neu:
2 60er Auszugsschrank in 75 cm tief (Innenmaß bei 1-1-2-2: ca. 2,9 qm)
1 90er Auszugsschrank in 60 cm tief(Innenmaß bei 1-1-2-2: ca. 1,8 qm)
1 80er Spüle (Innenmaß bei 1-1-2-2: ca. 0,7 qm)
Stauraumfläche: 5,4 qm

Ihr verliert durch die Umgestaltung zur Spüle vor dem Fenster also knapp
einen Quadratmeter Platz in den Schubläden und Auszügen und der MUPL
wäre auch kleiner und weit weg von der Spülmaschine.
 

Anhänge

  • Stauraum.jpg
    Stauraum.jpg
    62,1 KB · Aufrufe: 221
Zuletzt bearbeitet:
Meine Liebste hat mich eben an den Ohren gezogen und mir gesagt, dass
ich denke wie ein Mann. Ich soll das alles mit den Augen einer Frau sehen.
OK - also zur Ästhetik:

An oberster Stelle steht für mich bei dieser Küchenplanung das 'L mit Insel'.
Kochfeld und Spüle sind dabei austauschbar - sollten aber immer zusammen
beurteilt werden. Eine G-Küche mit drei Ecken lehnen wir beide ab (siehe oben)!

Die Spülinsel zum Raum zu bedeutet die Gefahr hoher Berge von gebrauchtem
Geschirrr direkt im Blickfeld vom Wohnzimmer aus. Deshalb mag meine Frau
diese nicht.
Dem kann man auf zwei Wegen vorbeugen: Alles immer gleich in die Spülmaschine
stellen und eine Spüle mit 2 Becken wählen als tiefergelegte, sichtgeschützte
Abstellfläche. Wenn man sich dann noch angewöhnt den GSP rechtzeitig laufen
zu lassen sollte diese Problem gelöst sein.

Der weitere Vorteil davon ist, dass dann die Kochstelle an einer Aussenwand
steht und man den Dunstabzug mit kürzestem Weg rausleiten kann. Kochen
auf der Insel macht da ev. heftige Probleme. Eine Abluftführung mit Bora
nach unten und dann durch den Keller kann mehr als 50 % Leistungsverlust
bedeuten!
 
genau! Spüleninsel mit einem sehr grossen oder zwei grossen Becken löst das Problem elegant. Wir legen hier im Forum auch immer grossen Wert darauf, dass der GSP so aus dem Weg positioniert ist, so dass man ihn während des Kochens offen lassen kann und laufend alles reinstellt.

Mein Mann und ich sind nur zu Zweit, aber die Maschine läuft bis zu 2x pro Tag, weil wir wirklich alles reinräumen, was nur irgend geht.... also auch Töpfe und Pfannen.
 

Ähnliche Beiträge

Neff Hausgeräte Ballerina Küchen Blum Bewegungstechnologie Weibel - Intelligente Küchenlüftung

Neff Spezial

Blum Zonenplaner

Weibel Abluft-Tuning

Weibel Abluft-Tuning
Zurück
Oben