Kanond
Mitglied
- Beiträge
- 20
Titel des Themas: Wohnküche
Hallo,
ich bin bei meiner Küchenplanung auf diese Seite gestoßen.
Vielleicht hat jemand gute Ideen für unser Projekt.
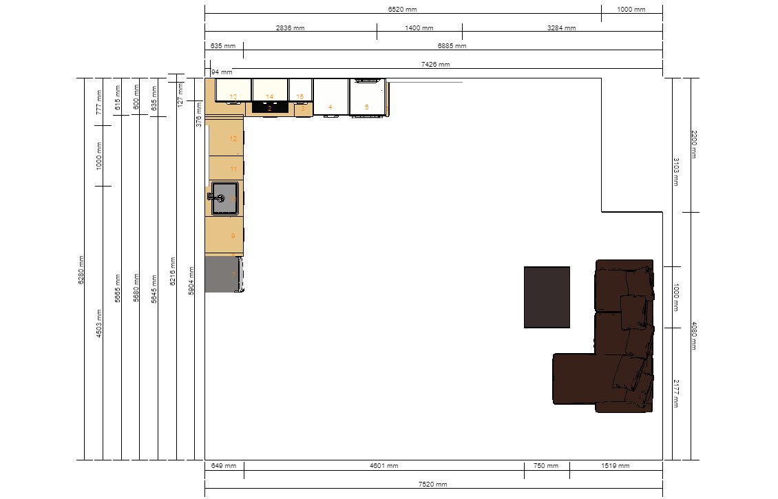
Wir planen in unserem neu erbauten Haus eine Wohnküche (Wohnen, Kochen und Essen) und ich habe keine gute Lösung, wie ich die Küche dimensionieren soll.
Derzeit schwanke ich zwischen einer Ecklösung, einer Ecklösung mit Insel und einer U- Lösung, praktisch eine Abtrennung zum Wohnraum.
Ich möchte nämlich zum einen Platz für genug Stauraum, zum anderen aber Richtung Terasse noch einen Tisch für acht Personen unterbringen.
Der Wasseranschluss ist unter dem Fenster, der Strom für das Backrohr an der Durchgangsseite. Die Tür ist nur ein Durchgang zum Vorrang und 140cm breit, beim Planer war nur 120 cm möglich!
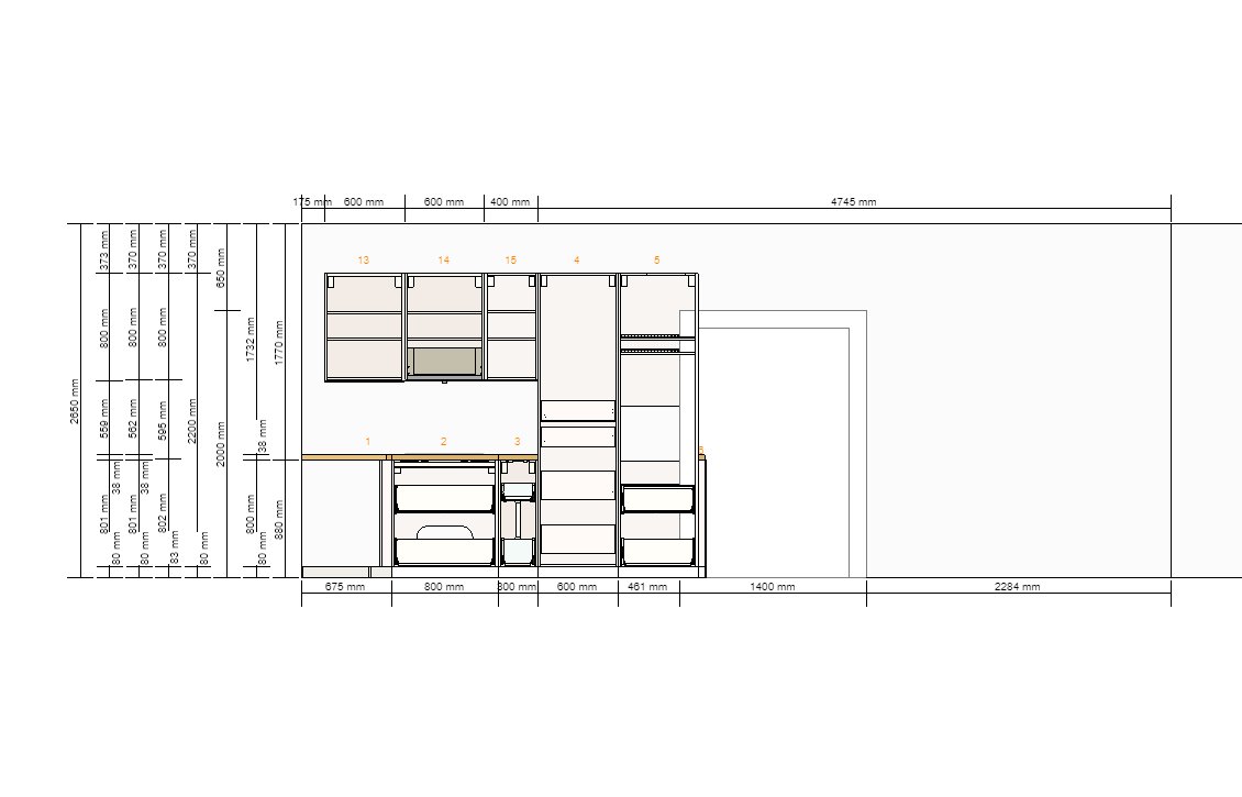
Wir würden eine Ikea Metod planen mit recyclter Oberfläche, sind aber offen!
Ich koche sehr gerne und viel. Mein fünfjähriges Kind ist oft mit in der Küche und sitzt auch gerne auf der Arbeitsfläche
Ich wäre sehr dankbar für Vorschläge und Ideen! Welche Schränke, wohin Geschirrspüler und MUPL , freistehenden oder integrierten Kühlschrank...
Liebe Grüsse aus Österreich!
Moni
Checkliste zur Küchenplanung
Personenkriterien und Ergonomie
Anzahl Personen im Haushalt: 3
Davon Kinder: 1
Körpergrößen aller Hauptbenutzer in cm (wegen Arbeitshöhe ): 174, 187
Welche Arbeitshöhe ist angedacht (in cm)?:
Gebäudekriterien
Art des Gebäudes: Bestandsbau > (kleinere) Umbauten möglich, Eigentum
Brüstungshöhe des Fensters (in cm):
Fensterhöhe (in cm):
Raumhöhe in cm:
Heizung: Heizkörper wie im Grundriss
Sanitäranschlüsse: variabel an aktueller Wand
Einbaugerätekriterien
Ausführung Kühlgerät: Stand-Alone bis 60cm Breite
Einbaukühlgerät Größe: N. a.
Ausführung Tiefkühl (TK)-Gerät: N. a.
Dunstabzugshaube: N. a.
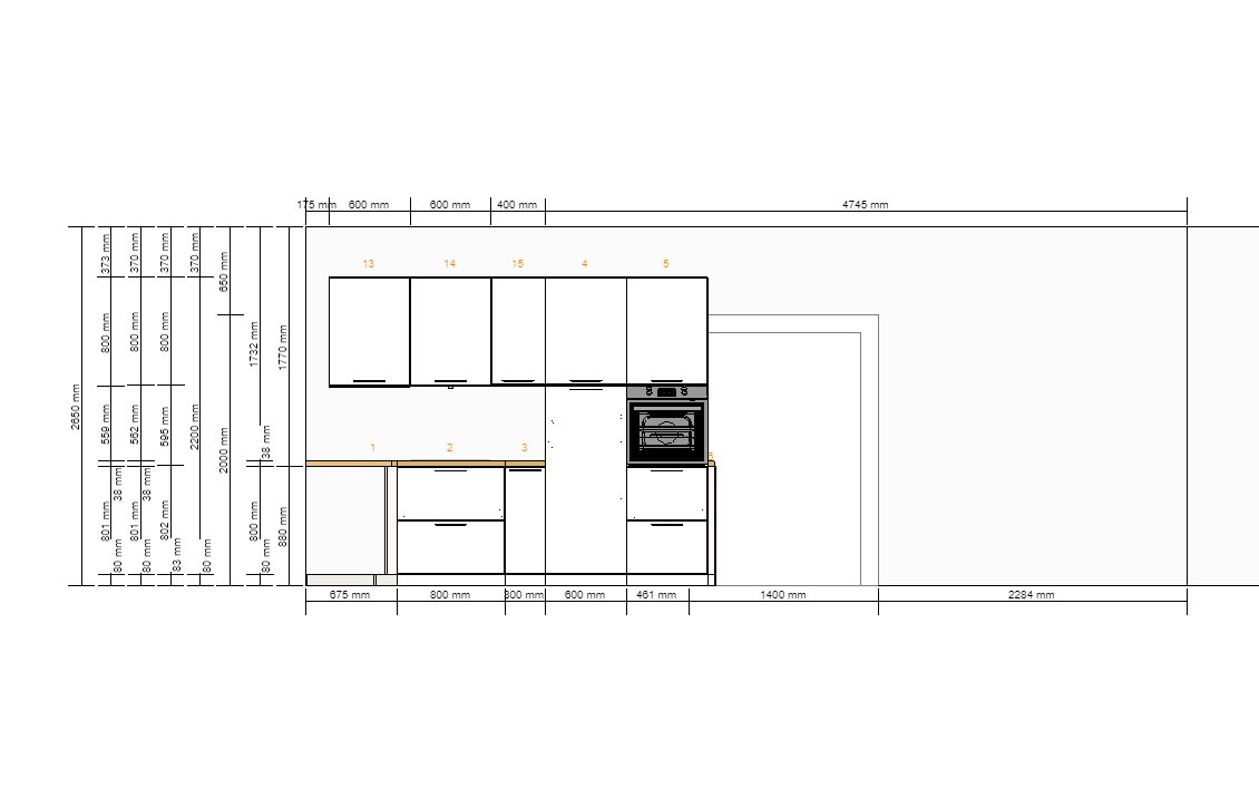
Hochgebauter Backofen : wenn möglich
Geplante Heißgeräte: Einbaumikrowelle, Backofen
Hochgebauter Geschirrspüler : nein
Art des Kochfeldes: Ceran (herkömmliche Beheizung)
Kochfeldbreite (ca. in cm):
Sitzmöglichkeiten
Sitzmöglichkeit in der Küche / im Küchenbereich: Keine
Sitzmöglichkeit: Für wieviel Personen?: N. a.
Sitzmöglichkeit: Tisch - wenn gesonderter Tisch oder offene Küche: Wird nach Bedarf neu gekauft
Gewünschte oder vorhandene Tischgröße: 200 cm
Wofür soll der Sitzplatz in der Küche genutzt werden und wie häufig:
Stauraumplanung
Was steht auf der Arbeitsplatte oder soll dort stehen?: Kaffeemaschine, Wasserkocher, Messerblock, Brotbehälter, Obstschale
Welche weiteren Küchenmaschinen müssen in der Küche untergebracht werden: Handrührgerät, Mixer, Pürierstab
Was soll in der Küche außer den Standards untergebracht werden: ALLE Vorräte
Welchen Stauraum gibt es sonst noch: N. a.
Kochgewohnheiten
Was/wie wird gekocht? (Alltagsküche, Menüs, Snacks usw): Alltagsküche
Wie häufig wird gekocht: (fast) täglich 2x warm
Wird alleine gekocht? Oder auch gemeinsam? Mit und für Gäste?: allein und gemeinsam, manchmal mit Gästen
Spülen und Müll
Spülenform: 1 Becken mit Abtropffläche
Welche Mülltrennung soll in der Küche vorgehalten werden: Altglas, Altpapier, Plastik, Metall total getrennt, Restmüll
Sonstiges
Steht schon ein Küchenhersteller fest oder wird bevorzugt:
Steht schon ein Gerätehersteller fest oder wird bevorzugt:
Küchenstil: N. a.
Was stört an der bisherigen Küche und was soll die neue Küche unbedingt können? Warum?: Fertige Küche war bereits in der Wohnung
zu klein dimensioniert
Geschirrspüler mitten im Raum
unnötige Wege
WENIG ARBEITSFLÄCHE
Preisvorstellung (Budget): offen
Angehängte Dateien
Hallo,
ich bin bei meiner Küchenplanung auf diese Seite gestoßen.
Vielleicht hat jemand gute Ideen für unser Projekt.
Wir planen in unserem neu erbauten Haus eine Wohnküche (Wohnen, Kochen und Essen) und ich habe keine gute Lösung, wie ich die Küche dimensionieren soll.
Derzeit schwanke ich zwischen einer Ecklösung, einer Ecklösung mit Insel und einer U- Lösung, praktisch eine Abtrennung zum Wohnraum.
Ich möchte nämlich zum einen Platz für genug Stauraum, zum anderen aber Richtung Terasse noch einen Tisch für acht Personen unterbringen.
Der Wasseranschluss ist unter dem Fenster, der Strom für das Backrohr an der Durchgangsseite. Die Tür ist nur ein Durchgang zum Vorrang und 140cm breit, beim Planer war nur 120 cm möglich!
Wir würden eine Ikea Metod planen mit recyclter Oberfläche, sind aber offen!
Ich koche sehr gerne und viel. Mein fünfjähriges Kind ist oft mit in der Küche und sitzt auch gerne auf der Arbeitsfläche
Ich wäre sehr dankbar für Vorschläge und Ideen! Welche Schränke, wohin Geschirrspüler und MUPL , freistehenden oder integrierten Kühlschrank...
Liebe Grüsse aus Österreich!
Moni
Checkliste zur Küchenplanung
Personenkriterien und Ergonomie
Anzahl Personen im Haushalt: 3
Davon Kinder: 1
Körpergrößen aller Hauptbenutzer in cm (wegen Arbeitshöhe ): 174, 187
Welche Arbeitshöhe ist angedacht (in cm)?:
Gebäudekriterien
Art des Gebäudes: Bestandsbau > (kleinere) Umbauten möglich, Eigentum
Brüstungshöhe des Fensters (in cm):
Fensterhöhe (in cm):
Raumhöhe in cm:
Heizung: Heizkörper wie im Grundriss
Sanitäranschlüsse: variabel an aktueller Wand
Einbaugerätekriterien
Ausführung Kühlgerät: Stand-Alone bis 60cm Breite
Einbaukühlgerät Größe: N. a.
Ausführung Tiefkühl (TK)-Gerät: N. a.
Dunstabzugshaube: N. a.
Hochgebauter Backofen : wenn möglich
Geplante Heißgeräte: Einbaumikrowelle, Backofen
Hochgebauter Geschirrspüler : nein
Art des Kochfeldes: Ceran (herkömmliche Beheizung)
Kochfeldbreite (ca. in cm):
Sitzmöglichkeiten
Sitzmöglichkeit in der Küche / im Küchenbereich: Keine
Sitzmöglichkeit: Für wieviel Personen?: N. a.
Sitzmöglichkeit: Tisch - wenn gesonderter Tisch oder offene Küche: Wird nach Bedarf neu gekauft
Gewünschte oder vorhandene Tischgröße: 200 cm
Wofür soll der Sitzplatz in der Küche genutzt werden und wie häufig:
Stauraumplanung
Was steht auf der Arbeitsplatte oder soll dort stehen?: Kaffeemaschine, Wasserkocher, Messerblock, Brotbehälter, Obstschale
Welche weiteren Küchenmaschinen müssen in der Küche untergebracht werden: Handrührgerät, Mixer, Pürierstab
Was soll in der Küche außer den Standards untergebracht werden: ALLE Vorräte
Welchen Stauraum gibt es sonst noch: N. a.
Kochgewohnheiten
Was/wie wird gekocht? (Alltagsküche, Menüs, Snacks usw): Alltagsküche
Wie häufig wird gekocht: (fast) täglich 2x warm
Wird alleine gekocht? Oder auch gemeinsam? Mit und für Gäste?: allein und gemeinsam, manchmal mit Gästen
Spülen und Müll
Spülenform: 1 Becken mit Abtropffläche
Welche Mülltrennung soll in der Küche vorgehalten werden: Altglas, Altpapier, Plastik, Metall total getrennt, Restmüll
Sonstiges
Steht schon ein Küchenhersteller fest oder wird bevorzugt:
Steht schon ein Gerätehersteller fest oder wird bevorzugt:
Küchenstil: N. a.
Was stört an der bisherigen Küche und was soll die neue Küche unbedingt können? Warum?: Fertige Küche war bereits in der Wohnung
zu klein dimensioniert
Geschirrspüler mitten im Raum
unnötige Wege
WENIG ARBEITSFLÄCHE
Preisvorstellung (Budget): offen
Angehängte Dateien
Anhänge
