topse
Mitglied
- Beiträge
- 8
Hallo Liebes Küchenforum Team,
letzte Woche waren mein Schatz und ich in einem kleinem Möbelhaus das sehr gute Preise, Plannung macht und viele zufriedene Kunden hat, davon mein Bruder, die Mama und zwei Arbeitskollegen.
Wir sind begeistert aus dem Studio raus und warten nun auf einen richtigen vorschlag von dem guten Mann.
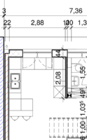
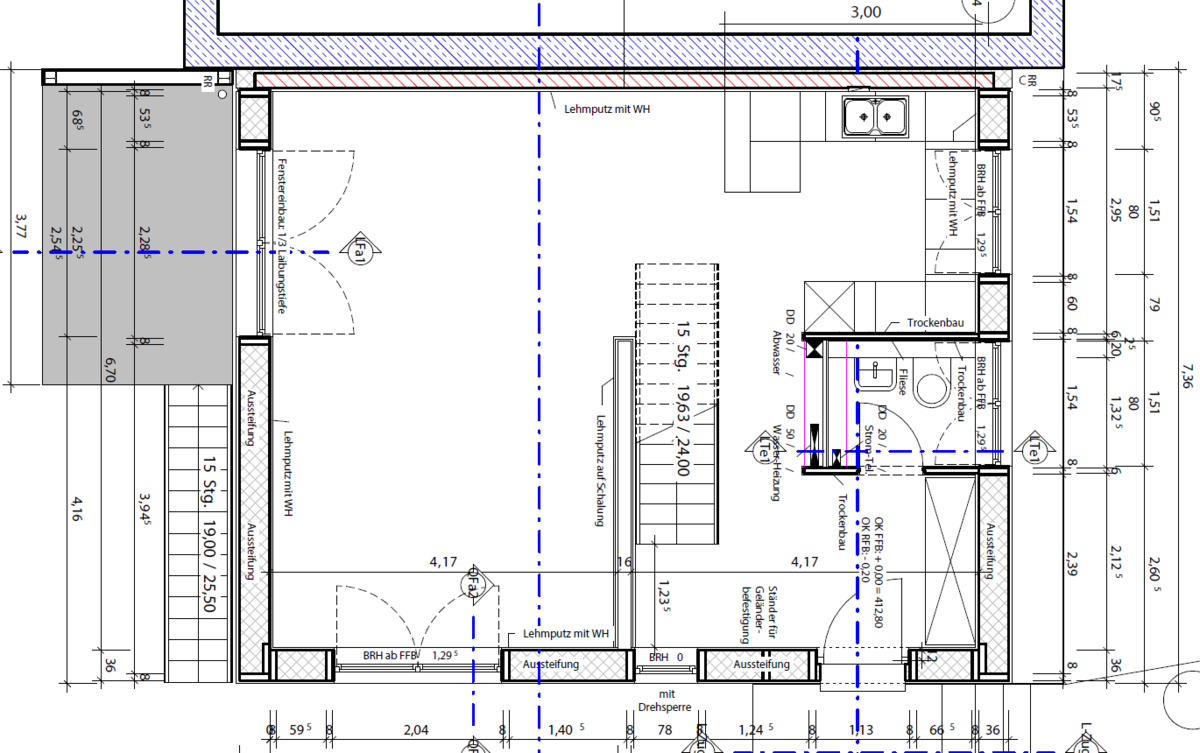
Im Vorgeschpräch, haben wir in der rechten Ecke ein Karussell und in der linken ein lemont Schrank eingeplant.
Beim Stöbern hier habe ich die Argumente gegen die beiden Schränke nicht übersehen können. Hier hoffe ich um nützliche Tipps.
Wir wollen den neuen Siemens Kühlschrank in Black inoxfreistehend, entweder 180/200 cm groß rechts unten, daneben ein hochgebauten Backofen und was mir heute gekommen darunter die Geschirrspülmaschine, da gleich das Wc angrenzt wird Wasser kein Problem sein.
Was können wir mit der rechten Ecke noch alles machen?
Irgendwie will ich da nur Schränke damit wir kein Dreckloch haben.
Unter dem Fenster soll mittig das Kochfeld (80cm), eine Esse ist erst mal nicht geplan, was durch unsere Bauweise nicht nötig ist, wird aber für eine Deckenesse alles vorbereitet!
Bei der Spüle sollen wenn die Spülmaschine weg ist nur Schubladen zur Verfügung stehen.
Aktuell ist vom Fenster aus der Lemont, Spülschrank (glaub 60cm) Spülmaschine und eine Verblendung besprochen.
Die Verblendung ist wegen der Theke, da soll ein 45er tiefer Schubladenschrank und von den Stühlen aus in der Ecke ein Türschrank (60cm tief) für Dinge die 1x Jahr benötigt werden, dieser bis hinter die Blende geht eingebaut werden. Ich möchte das so, aber irgendwie Zweifel ich gerade daran.
Ich hoffe das ich nicht zuviel Müll geschrieben habe, freue mich auf eure tipps und bedanke mich Schon mal recht herzlich im Voraus.
Gruß Tobi
PS es kommt nur Wandheizung zum Einsatz!
Checkliste zur Küchenplanung
Anzahl Personen im Haushalt: 2
Davon Kinder?:
Art des Gebäudes?: Neu-/Umbau, Planänderungen möglich
Körpergrössen aller Hauptbenutzer (wegen Arbeitshöhe ) in cm: 159 & 180
Brüstungshöhe des Fensters (in cm): 129
Fensterhöhe (in cm): 80
Raumhöhe in cm: 254
Heizung:
Sanitäranschlüsse:
Ausführung Kühlgerät: Stand-Alone bis 60 cm Breite
Kühlgerät Größe:
Ausführung Tiefkühl (TK)-Gerät: Im Kühlschrank ab 3 Schubladen unten
Dunstabzugshaube: keine
Backofen etc. hochgebaut?: Ja
Hochgebauter Geschirrspüler ?: Wenn möglich
Kochfeldart: Induktion
Kochfeldbreite ca. (in cm)?: 80
Spülenform: 1,5 Becken mit Abtropffläche
Geplante Heißgeräte:
Küchenstil: Modern
Sitzmöglichkeit in der Küche / im Küchenbereich: Überstehende Arbeitsplatte
Sitzmöglichkeit: Für wieviel Personen?: für 2 Personen
Sitzmöglichkeit: Tisch - wenn gesonderter Tisch oder offene Küche: Keiner
Gewünschte o. vorhandene Tischgröße:
Wofür soll der Sitzplatz in der Küche genutzt werden? Wie häufig?: Zum Kaffee trinken (Vollautomaten in der Ecke) und zuschauen/reden beim Kochen.
Welche Arbeitshöhe ist angedacht (in cm)?: 94
Was steht auf der Arbeitsplatte oder soll dort stehen?: Kaffeevollautomat
Welche weiteren Küchenmaschinen müssen in der Küche untergebracht werden?: Küchenmaschine, Wasserkocher, Toaster, Pürierstab
Was soll in der Küche außer den Standards untergebracht werden?: Geschirr komplett (nichts in Ess-/Wohnzimmer)
Welchen Stauraum gibt es sonst noch?: Geschirr/Gläserschrank im Wohn-/Esszimmer
Was/wie wird gekocht? (Alltagsküche, Menüs, Snacks usw): Alltagskuche, 2x im Jahr Kuchen backen, Weihnachtsgebäck, ca. 3x im Jahr was Größeres!
Wie häufig wird gekocht?: (fast) täglich 1x warm
Wird alleine gekocht? Oder auch gemeinsam? Mit und für Gäste?: Gemeinsam, ab und zu mit Gästen
Was stört an der bisherigen Küche und was soll die neue Küche unbedingt können? Warum?: AMC Töpfe sollen gut untergebracht werden! Daher der Lemont Wunsch!
Welche Mülltrennung soll in der Küche vorgehalten werden?: Gelber Sack Müll, Restmüll
Steht schon ein Küchenhersteller fest oder wird bevorzugt?: Nobilia , evtl. Rempp / Schmidt
Steht schon ein Gerätehersteller fest oder wird bevorzugt?: Siemens
Preisvorstellung (Budget): bis 10.000,-
letzte Woche waren mein Schatz und ich in einem kleinem Möbelhaus das sehr gute Preise, Plannung macht und viele zufriedene Kunden hat, davon mein Bruder, die Mama und zwei Arbeitskollegen.
Wir sind begeistert aus dem Studio raus und warten nun auf einen richtigen vorschlag von dem guten Mann.
Im Vorgeschpräch, haben wir in der rechten Ecke ein Karussell und in der linken ein lemont Schrank eingeplant.
Beim Stöbern hier habe ich die Argumente gegen die beiden Schränke nicht übersehen können. Hier hoffe ich um nützliche Tipps.
Wir wollen den neuen Siemens Kühlschrank in Black inoxfreistehend, entweder 180/200 cm groß rechts unten, daneben ein hochgebauten Backofen und was mir heute gekommen darunter die Geschirrspülmaschine, da gleich das Wc angrenzt wird Wasser kein Problem sein.
Was können wir mit der rechten Ecke noch alles machen?
Irgendwie will ich da nur Schränke damit wir kein Dreckloch haben.
Unter dem Fenster soll mittig das Kochfeld (80cm), eine Esse ist erst mal nicht geplan, was durch unsere Bauweise nicht nötig ist, wird aber für eine Deckenesse alles vorbereitet!
Bei der Spüle sollen wenn die Spülmaschine weg ist nur Schubladen zur Verfügung stehen.
Aktuell ist vom Fenster aus der Lemont, Spülschrank (glaub 60cm) Spülmaschine und eine Verblendung besprochen.
Die Verblendung ist wegen der Theke, da soll ein 45er tiefer Schubladenschrank und von den Stühlen aus in der Ecke ein Türschrank (60cm tief) für Dinge die 1x Jahr benötigt werden, dieser bis hinter die Blende geht eingebaut werden. Ich möchte das so, aber irgendwie Zweifel ich gerade daran.
Ich hoffe das ich nicht zuviel Müll geschrieben habe, freue mich auf eure tipps und bedanke mich Schon mal recht herzlich im Voraus.
Gruß Tobi
PS es kommt nur Wandheizung zum Einsatz!
Checkliste zur Küchenplanung
Anzahl Personen im Haushalt: 2
Davon Kinder?:
Art des Gebäudes?: Neu-/Umbau, Planänderungen möglich
Körpergrössen aller Hauptbenutzer (wegen Arbeitshöhe ) in cm: 159 & 180
Brüstungshöhe des Fensters (in cm): 129
Fensterhöhe (in cm): 80
Raumhöhe in cm: 254
Heizung:
Sanitäranschlüsse:
Ausführung Kühlgerät: Stand-Alone bis 60 cm Breite
Kühlgerät Größe:
Ausführung Tiefkühl (TK)-Gerät: Im Kühlschrank ab 3 Schubladen unten
Dunstabzugshaube: keine
Backofen etc. hochgebaut?: Ja
Hochgebauter Geschirrspüler ?: Wenn möglich
Kochfeldart: Induktion
Kochfeldbreite ca. (in cm)?: 80
Spülenform: 1,5 Becken mit Abtropffläche
Geplante Heißgeräte:
Küchenstil: Modern
Sitzmöglichkeit in der Küche / im Küchenbereich: Überstehende Arbeitsplatte
Sitzmöglichkeit: Für wieviel Personen?: für 2 Personen
Sitzmöglichkeit: Tisch - wenn gesonderter Tisch oder offene Küche: Keiner
Gewünschte o. vorhandene Tischgröße:
Wofür soll der Sitzplatz in der Küche genutzt werden? Wie häufig?: Zum Kaffee trinken (Vollautomaten in der Ecke) und zuschauen/reden beim Kochen.
Welche Arbeitshöhe ist angedacht (in cm)?: 94
Was steht auf der Arbeitsplatte oder soll dort stehen?: Kaffeevollautomat
Welche weiteren Küchenmaschinen müssen in der Küche untergebracht werden?: Küchenmaschine, Wasserkocher, Toaster, Pürierstab
Was soll in der Küche außer den Standards untergebracht werden?: Geschirr komplett (nichts in Ess-/Wohnzimmer)
Welchen Stauraum gibt es sonst noch?: Geschirr/Gläserschrank im Wohn-/Esszimmer
Was/wie wird gekocht? (Alltagsküche, Menüs, Snacks usw): Alltagskuche, 2x im Jahr Kuchen backen, Weihnachtsgebäck, ca. 3x im Jahr was Größeres!
Wie häufig wird gekocht?: (fast) täglich 1x warm
Wird alleine gekocht? Oder auch gemeinsam? Mit und für Gäste?: Gemeinsam, ab und zu mit Gästen
Was stört an der bisherigen Küche und was soll die neue Küche unbedingt können? Warum?: AMC Töpfe sollen gut untergebracht werden! Daher der Lemont Wunsch!
Welche Mülltrennung soll in der Küche vorgehalten werden?: Gelber Sack Müll, Restmüll
Steht schon ein Küchenhersteller fest oder wird bevorzugt?: Nobilia , evtl. Rempp / Schmidt
Steht schon ein Gerätehersteller fest oder wird bevorzugt?: Siemens
Preisvorstellung (Budget): bis 10.000,-
Anhänge















