harrybeau
Mitglied
- Beiträge
- 25
- Wohnort
- Rheinland-Pfalz
Hallo an alle Küchenplaner,
Ich lese schon seit einem Jahr in diesem Forum als Gast mit und nun geht es bei uns endlich auch mal ans Eingemachte - sprich wir planen eine Küche. Wir bedeutet in diesem Fall, ich, w. 50 J. darf träumen, planen und mich beraten lassen und mein Mann, 51will erst gaaanz zum Schluß den Vertrag unterschreiben. Da er ansonsten ein ganz Lieber ist, weder handwerklich geschickt ist noch sonstwie eine Ahnung von Kochen oder Küchen hat, bin ich da auf mich alleine gestellt.
Inzwischen habe ich viele Vorschläge schon "verinnerlicht"
So habe ich mich bereits mental von einem Eckschrank mit Karussell und einem Apotheker-Schrank verabschiedet. Toten Ecken sehe gelassen entgegen, Küchenpreise und Verkäufer können mich nicht mehr schocken und von IKEA -Küchenmöbel möchte ich mich jetzt nach 32 Jahren tiefer Freundschaft verabschieden.
Ich war bereits in einem Küchenstudio und habe mich mit einer Schüller -Küche angefreundet. Es soll eine Hochglanz-Küche werden, vielleicht ein Teil der Fronten mit Holzmuster oder die Arbeitsplatte mit Holzmuster, da bin ich mir noch nicht sicher. An Farben kommen in Frage magnolie weiß, trüffelbraun und terrabraun im Mix oder einzeln an jeder Wand - auch da bin ich noch offen.
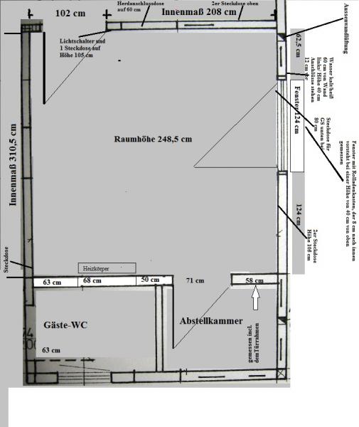
Schon fest eingeplant ist die Rasterhöhe 78 also 6er Raster und ein Sockel mit max 10 cm, einfach weil es mehr an Schrankraum hergibt, ich die Arbeitshöhe beibehalten kann und mir die Aufteilung 2 Schubladen, 2 Auszüge sinnvoll erscheint. Wichtig hierbei ist, dass ich dann aber auf die Höhe der Arbeitsplatte achten muss, da die Unterkante des Fensters 92 cm beträgt und deshalb die Arbeitshöhe maximal bei 91 cm liegen darf. Miteinzuplanen ist eine Zanker ZKK8418K Kühl-Gefrierkombi (Nischenmaß 178 cm) und ein Kombibackofen von Whirlpool MW C00 B (Nischenmaß 45 cm).
Ich bin neuersbedingt ein Fan von Auszügen und Schubladen. Bei den Hängeschränken möchte ich Lifttüren, wobei auch hier auf den 8cm vorspringenden Rolladenkasten zu achten ist. Geschirrspüler soll vollintegriert sein, rein aus optischen Gründen. Ich möchte im Gerätebereich vernünftige Geräte - wichtig ist mir hier dass es praktisch ist, optisch gut aussieht und preislich machbar ist.
Der Küchenberater hat mir eine Preisvorstellung von 7000 Euro für die besagte Schüller-Küche gemäß Bild 1 und 2 genannt incl. dem Heizungsüberbau mit Tisch. Der Preis entspricht ungefähr unseren Vorstellungen.
Mein erster Eindruck, als ich die Bilder sah, war: Die Seite mit dem Tisch gefällt mir überhaupt nicht. Der Hängeschrank an der Seite der DAH finde ich zu klotzig und der Abstand zwischen dem Spülbecken und dem Kochfeld zu gering.
Ich bin für alle Vorschläge offen - vielleicht habt ihr ein paar Tipps für mich, wie ich die Seite mit der Heizung hinbekomme. Notfalls verzichte ich auf einen Tisch, obwohl ich so gerne in der Küche sitze.
Viele Grüße
harrybeau
_______________________________________________
Checkliste zur Küchenplanung von harrybeau
Anzahl Personen im Haushalt : 5
Davon Kinder? : 2
Körpergrösse des Hauptbenutzers (wegen Arbeitshöhe) in cm : 168
Hochgebauter Geschirrspüler ? : nein
Hochgebauter Backofen ? : Ja
Art des Gebäudes? : Bestandsbau, Umbauten ausgeschlossen
Sanitäranschlüsse : fix
Dunstabzugshaube? : Abluft
Sitzmöglichkeit in der Küche erforderlich? : für 2 Personen
Gefriermöglichkeit? : bis 80 Liter
Ausführung Kühlgerät? : integriert
Küchenstil? : modern
Kochfeldbreite ca. (in cm)? : 80
Kochfeldart? : Induktion
Spülenform: : noch nicht festgelegt
Raumhöhe in cm: : 248,5
Brüstungshöhe des Fensters (in cm) : Unterkante Fenster 92 cm
Fensterhöhe (in cm) : 118 cm
Preisvorstellung (Budget) : bis 10.000,-
Ich lese schon seit einem Jahr in diesem Forum als Gast mit und nun geht es bei uns endlich auch mal ans Eingemachte - sprich wir planen eine Küche. Wir bedeutet in diesem Fall, ich, w. 50 J. darf träumen, planen und mich beraten lassen und mein Mann, 51will erst gaaanz zum Schluß den Vertrag unterschreiben. Da er ansonsten ein ganz Lieber ist, weder handwerklich geschickt ist noch sonstwie eine Ahnung von Kochen oder Küchen hat, bin ich da auf mich alleine gestellt.
Inzwischen habe ich viele Vorschläge schon "verinnerlicht"
Ich war bereits in einem Küchenstudio und habe mich mit einer Schüller -Küche angefreundet. Es soll eine Hochglanz-Küche werden, vielleicht ein Teil der Fronten mit Holzmuster oder die Arbeitsplatte mit Holzmuster, da bin ich mir noch nicht sicher. An Farben kommen in Frage magnolie weiß, trüffelbraun und terrabraun im Mix oder einzeln an jeder Wand - auch da bin ich noch offen.
Schon fest eingeplant ist die Rasterhöhe 78 also 6er Raster und ein Sockel mit max 10 cm, einfach weil es mehr an Schrankraum hergibt, ich die Arbeitshöhe beibehalten kann und mir die Aufteilung 2 Schubladen, 2 Auszüge sinnvoll erscheint. Wichtig hierbei ist, dass ich dann aber auf die Höhe der Arbeitsplatte achten muss, da die Unterkante des Fensters 92 cm beträgt und deshalb die Arbeitshöhe maximal bei 91 cm liegen darf. Miteinzuplanen ist eine Zanker ZKK8418K Kühl-Gefrierkombi (Nischenmaß 178 cm) und ein Kombibackofen von Whirlpool MW C00 B (Nischenmaß 45 cm).
Ich bin neuersbedingt ein Fan von Auszügen und Schubladen. Bei den Hängeschränken möchte ich Lifttüren, wobei auch hier auf den 8cm vorspringenden Rolladenkasten zu achten ist. Geschirrspüler soll vollintegriert sein, rein aus optischen Gründen. Ich möchte im Gerätebereich vernünftige Geräte - wichtig ist mir hier dass es praktisch ist, optisch gut aussieht und preislich machbar ist.
Der Küchenberater hat mir eine Preisvorstellung von 7000 Euro für die besagte Schüller-Küche gemäß Bild 1 und 2 genannt incl. dem Heizungsüberbau mit Tisch. Der Preis entspricht ungefähr unseren Vorstellungen.
Mein erster Eindruck, als ich die Bilder sah, war: Die Seite mit dem Tisch gefällt mir überhaupt nicht. Der Hängeschrank an der Seite der DAH finde ich zu klotzig und der Abstand zwischen dem Spülbecken und dem Kochfeld zu gering.
Ich bin für alle Vorschläge offen - vielleicht habt ihr ein paar Tipps für mich, wie ich die Seite mit der Heizung hinbekomme. Notfalls verzichte ich auf einen Tisch, obwohl ich so gerne in der Küche sitze.
Viele Grüße
harrybeau
_______________________________________________
Checkliste zur Küchenplanung von harrybeau
Anzahl Personen im Haushalt : 5
Davon Kinder? : 2
Körpergrösse des Hauptbenutzers (wegen Arbeitshöhe) in cm : 168
Hochgebauter Geschirrspüler ? : nein
Hochgebauter Backofen ? : Ja
Art des Gebäudes? : Bestandsbau, Umbauten ausgeschlossen
Sanitäranschlüsse : fix
Dunstabzugshaube? : Abluft
Sitzmöglichkeit in der Küche erforderlich? : für 2 Personen
Gefriermöglichkeit? : bis 80 Liter
Ausführung Kühlgerät? : integriert
Küchenstil? : modern
Kochfeldbreite ca. (in cm)? : 80
Kochfeldart? : Induktion
Spülenform: : noch nicht festgelegt
Raumhöhe in cm: : 248,5
Brüstungshöhe des Fensters (in cm) : Unterkante Fenster 92 cm
Fensterhöhe (in cm) : 118 cm
Preisvorstellung (Budget) : bis 10.000,-
Anhänge

