- Beiträge
- 23
AW: Rondelle wie sinnvoll eliminieren?
cooki,
du meinst also, ich kann ruhig ein stück wegflexen?
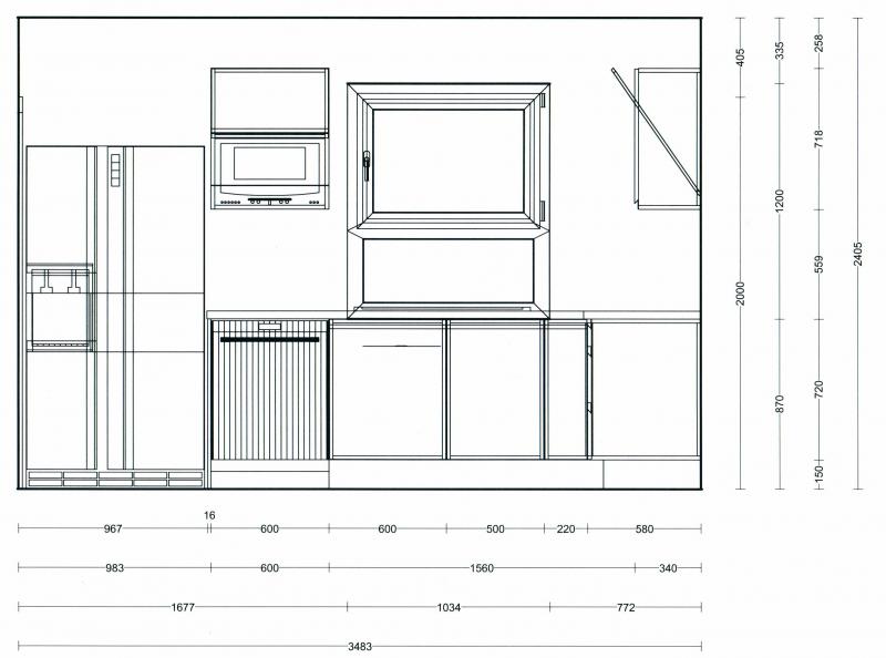
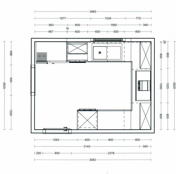
Ich habe mir eine Version ohne ein Rondell und statt dessen an der Kochseite ein 20er Auszug (Miniapotheker - zum Apothekerpreis!) und der US mit Tür rechts von der Spüle in 60 + Winkelstück. Preisersparnis gerade mal 150 Euro. Also haben wir es bei den 2 Rondellen gelassen.
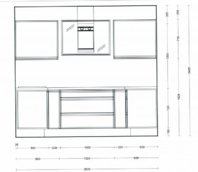
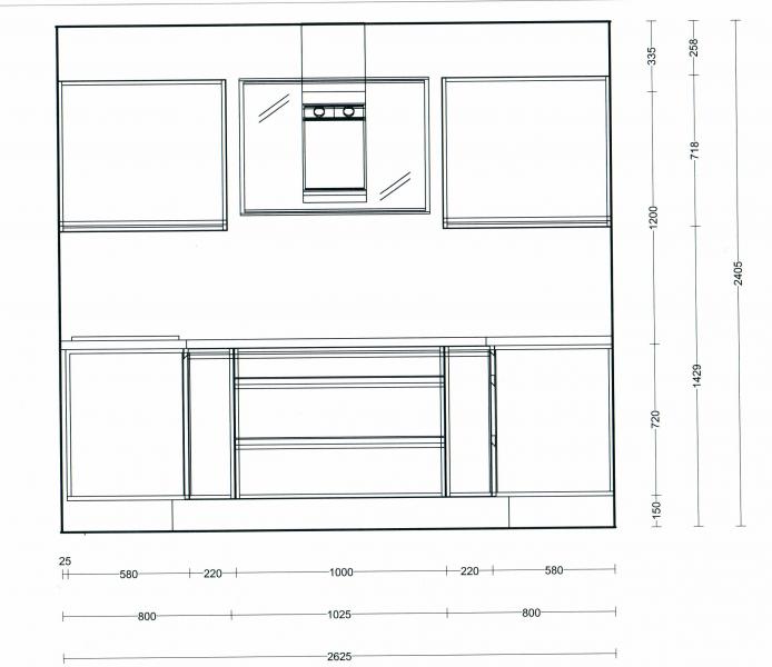
Die Hochschränke haben sich noch etwas verändert und der Kühli ist immer noch falsch eingezeichent - so soll es werden.
cooki,
du meinst also, ich kann ruhig ein stück wegflexen?
Ich habe mir eine Version ohne ein Rondell und statt dessen an der Kochseite ein 20er Auszug (Miniapotheker - zum Apothekerpreis!) und der US mit Tür rechts von der Spüle in 60 + Winkelstück. Preisersparnis gerade mal 150 Euro. Also haben wir es bei den 2 Rondellen gelassen.
Die Hochschränke haben sich noch etwas verändert und der Kühli ist immer noch falsch eingezeichent - so soll es werden.
Anhänge
-
Version 3 Mitte ohne Infos.jpg34,9 KB · Aufrufe: 129 -
Version 3 Frontal ohne Infos.jpg48,7 KB · Aufrufe: 138 -
Version 3 Links ohne Infos.jpg49,7 KB · Aufrufe: 135 -
Version 3 Oben ohne Infos.jpg53,6 KB · Aufrufe: 145 -
Version 3 Rechts ohne Infos.jpg40,9 KB · Aufrufe: 125 -
Version 3 Grundriss ohne Infos.jpg37,6 KB · Aufrufe: 132
