Peter´s neue Küche

peaches

Mitglied
Beiträge
6
Guten Tag,

ich heiße Peter, bin 45 Jahre alt, und plane im Spätsommer mit meiner Freundin in das dann errichtete Eigenheim einzuziehen.

Erstmal Glückwunsch zu dem Klasse Forum ! Ich habe einmal 8 Jahre ein Software Forum mit 5.000 Usern geleitet, und kann daher erahnen wieviel Arbeit Ihr Euch macht. :top:

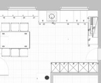
Geplant ist die Errichtung eines 1-geschossigen dänischen Architektenhauses mit offener Wohnküche. Die Deckenhöhe ist zwar mit 252,30 angegeben, dies ist die Höhe an den Außenwänden. Wohn-/Esszimmer und Küche sind Firsthoch (475).

Wir sind zunächstmal in das nächstbeste Möbelhaus gestolpert, und waren erschlagen von den Infos. Also zunächst neutral informieren, was hier sehr gut geht (Korpushöhen, Stauraumplanung etc.).

Die Besonderheit unserer Küche ist, dass wir quasi keine Speisekammer haben, alle Konserven, Lebensmittel und Tiefkühlschrank müssen also in die Küche.:(

Die Küche sollte eine U-Form haben, damit wir in dem Bauteil, welches Küche vom Esszimmer abgrenzt, ausreichend Stauraum haben. Spüle könnte ich mir vor dem Küchenfenster vorstellen, ansonsten schwebt mir eine einfache, schlichte, klassische Küche vor.

Das Budget ist zwar mit 10.000,- € angegeben, aber besser wäre so teuer wie nötig, so günstig wie möglich. Na ja, "gut bürgerlich" halt. Mit dem Alno Planer komme ich leider mehr schlecht als recht zurande, zudem ich halt auch gar nicht weiß, was wo sinnvoll zu plazieren ist.

Ich würde mich über eure Mithilfe freuen...

Gruß

Peter


Checkliste zur Küchenplanung von peaches

Anzahl Personen im Haushalt : 2
Davon Kinder? : keine
Körpergrössen aller Hauptbenutzer (wegen Arbeitshöhe ) in cm : 182
Art des Gebäudes? : Neu-/Umbau, Planänderungen möglich
Brüstungshöhe des Fensters (in cm) : 136,50
Fensterhöhe (in cm) : 85
Raumhöhe in cm: : 252,30
Heizung : Fussbodenheizung
Sanitäranschlüsse : vollkommen variabel
Ausführung Kühlgerät? : ganz "normaler Kühlschrank"
Kühlgerät Größe : noch unbekannt
Ausführung Tiefkühl (TK)-Gerät : Im Kühlschrank ab 3 Schubladen unten
Dunstabzugshaube? : Abluft
Hochgebauter Backofen ? : Wenn möglich
Hochgebauter Geschirrspüler ? : nein
Kochfeldart? : Ceran (herkömmlich)
Kochfeldbreite ca. (in cm)? : 60 (?)
Spülenform: : Noch nicht festgelegt
Weitere geplante Heißgeräte : Standmikrowelle
Küchenstil? : klassisch
Sitzmöglichkeit in der Küche / im Küchenbereich als : Arbeitsplatte in Tischhöhe
Sitzmöglichkeit: Für wieviel Personen? : nein
Sitzmöglichkeit: Tisch - wenn gesonderter Tisch oder offene Küche : Wird nach Bedarf neu gekauft
Gewünschte o. vorhandene Tischgröße : Esstisch für 6 Personen wird neu gekauft.
Wofür soll der Sitzplatz in der Küche genutzt werden? Wie häufig? : Sitzplätze nur im Esszimmer.
Welche Arbeitshöhe ist angedacht (in cm)? : 88
Was steht auf der Arbeitsplatte oder soll dort stehen? : Kaffeemaschine, Wasserkocher, Messerblock, Toaster, Brotbehälter
Welche weiteren Küchenmaschinen müssen in der Küche untergebracht werden? : Handrührgerät, Mixer, Pürierstab
Was soll in der Küche außer den Standards untergebracht werden? : ALLE Vorräte, Geschirr komplett (nichts in Ess-/Wohnzimmer)
Welchen Stauraum gibt es sonst noch? : Geschirr/Gläserschrank im Wohn-/Esszimmer
Was/wie wird gekocht? (Alltagsküche, Menüs, Snacks usw) : ambitionierter Hobbykoch, Alltagsküche von Lasagne über Wok bis Schweinebraten, Fisch und ab und zu einen Kuchen :-)
Wie häufig wird gekocht? : (fast) täglich 1x warm
Wird alleine gekocht? Oder auch gemeinsam? Mit und für Gäste? : täglich für 2 Personen, 1 mal im Monat für Gäste
Was stört an der bisherigen Küche und was soll die neue Küche unbedingt können? Warum? : Küche in Mietwohnung ist definitiv zu klein
Preisvorstellung (Budget) : bis 10.000,-
 

Anhänge

  • grundriss.jpg
    grundriss.jpg
    54,6 KB · Aufrufe: 360
  • Ansichten.jpg
    Ansichten.jpg
    56,6 KB · Aufrufe: 226
  • meins.KPL
    4,1 KB · Aufrufe: 175
  • meins.POS
    2,4 KB · Aufrufe: 162
  • vollbild.jpg
    vollbild.jpg
    31,9 KB · Aufrufe: 211
Zuletzt bearbeitet:
AW: Peter´s neue Küche

Hallo und herzlich willkommen. Darf ich nachfragen? Die Planungsdateien bitte wenn möglich als .jpg abspeichern und auch einstellen. Nicht Jeder hat den Alnoplaner hier.

Und: 10.000,- Euro für offene Wohnküche für ambitionierten Hobbykoch in dänischem Architektenhaus? Ich vermute, entsprechend anspruchsvolle Geräte.... designorientiert... Die 10.000,- Euro dann aber nur für die Möbel und nicht inklusive der Möbel, oder?

Zum Cerankochfeld empfehle ich hier nachzulesen:

https://www.kuechen-forum.de/forum/...set-und-geschirrspuelmaschine.html#post184693
 
AW: Peter´s neue Küche

Zum Abspeichern: die Planungsdateien sind keine jpegs, sondern haben die Endungen .KPL und .POS
Ansichten der Planung sind jpeg-Dateien; das sind sie aber ganz automatisch, wenn man sie im Alno -Vollbildmodus mittels Button oben im Bild abspeichert.
Der Grundriss wird dagegen im Planungsmodus mit strg+neu+s abgespeichert.

Aber das hast du ja schon gut hinbekommen.
 
AW: Peter´s neue Küche

Ich habe mal eine erweiterte Alnodatei mit Terrassentüren, Übergang Wohnzimmer und Fenstern mit angepaßter Brüstungshöhe angelegt.

Peter, vielleicht kannst du die Maße nochmal kontrollieren.
 

Anhänge

  • kf_peaches_20120319_leer.POS
    4,7 KB · Aufrufe: 179
  • kf_peaches_20120319_leer.kpl
    4,1 KB · Aufrufe: 182
AW: Peter´s neue Küche

ich habe mal geplant ;-)
dabei jedoch die vorgabe "U-form" außer acht gelassen, da ich denke das diese in Kombination mit SBS UND Viel Stauraum kaum realisierbar ist.

Des wegen jetzt wie folgt.

Bauliche veränderungen: Küchentür 65cm von der planunteren Wand entfernt, so ergbit sich dort eine Nische für viel Stauraum, ich würde die Küchentür sogar als in der Wand laufende Schiebetür favorisieren.


Bei der Küche auf einen 6 rastigen hersteller achten, das gibt eine Stauraumeben mehr und ist ab einer APL von 92 cm realisierbar.


Über den Hochschränken netweder geschlossen, evtl durch weitere Türen/Stauraum für Weihnachtskram oder so, oder nur durch Trockenbauweise wie eine Plat.te auf die Schränke setzen und darüber offen lassen, da kommt darauf an wie die Wand hinter dem Kamin angedacht ist, also Raumhoch, dann würde ich die Stauraumvarinate bevorzugen.

Also Hochschrankfront von links:
5 cm Blende
60cm mit Innenauszügen für Vorräte
50cm mit Innenauszügen für vorräte
60cm hochgebauter BO, Micro hinter einer Lifttür darüber
50cm mit Innenauszügen für Vorräte
50cm mit Innenauszügen für Geschirr
trockenauwand


Küchenzeile von links:

SbS

Spülenzeile in 75cm Tiefe, das erlaubt ein Arbeiten in 2 Reihen, also hinten steht z.B, die Kaffemaschine, vorne kann geschnippelt werden etc.

5cm Blende/Wange
60cm GSP (hier auf einen XXL GSp achten, ist ab 92cm APL möglich)
60cm Spüle, oben Putzreling, unten Stauraum
50cm Müll unter APL
40cm 1-1-1-3, für Gewürze , Ölflaschen etc. (könnte auch verbreitert werden, jeanchdem wie breit der SBS wird, damit dahinter noch genug Platz für den Essbereich ist.
Tote Ecke
120cm 1-1-2-2 mit Kochfeld mittig 60cm
Wange 5cm

EVTL würde ich mir dazu eine Mobile Kücheninsel gönnen, die man bei Bedarf in die Mitte des Raumes schieben und als Buffet, nutzen kann.
 

Anhänge

  • kf_peaches_20120319_LQ-var1.KPL
    4,1 KB · Aufrufe: 175
  • kf_peaches_20120319_LQ-var1.POS
    7,8 KB · Aufrufe: 159
  • P1.JPG
    P1.JPG
    25,1 KB · Aufrufe: 209
  • P2.jpg
    P2.jpg
    39,4 KB · Aufrufe: 225
  • P3.jpg
    P3.jpg
    38 KB · Aufrufe: 227
  • P1a.JPG
    P1a.JPG
    26,2 KB · Aufrufe: 198
AW: Peter´s neue Küche

Arbeitshöhe 88cm bei eine Grösse von über 180cm??

ARBEITSHÖHE ermitteln:


  • [*=1]z. B. Bügelbrett nehmen und in verschiedenen Höhen Probeschnippeln und messen, wenn es einem am bequemsten erscheint.
    [*=1]maximale Höhe ist oberkante Beckenknochen.

Sobald man die Schultern hochzieht ist es zu hoch; wenn man sich vorbeugt zu niedrig.
Ausführlicher in Optimale Arbeitshöhen beschrieben.

Warum sollen die Fenster so hoch liegen? Das bringt kaum Licht auf die Arbeitsfläche; Schissscharten sind etwas für Wehrbauten.
 
AW: Peter´s neue Küche

Hier eine Stauraummaximierende Variante.

Die Arbeitszeile ist in Uebertiefe 75cm (ca 36%mehr Stauraum für 10% Aufpreis). Die Rückwand ist voller Hochschränke (evt. kann man noch höher bauen durch Aufwätze für selten benötigtes wie Saisonale Deko & Keksdosen etc.

Trotzdem ist die Küche so offen, so dass man auch den Esstisch mal für 10 Personen ausziehen könnte.

Peaches10.JPGPeaches15.jpgPeaches11.jpg


Die Arbeitszeile:
4x 60cmx 40cm tiefe für Gläser, extra Geschirr & Tischdeko
dann der Tiefensprung auf 75cm Arbeitstiefe (da können hinten Dinge stehen und vorne kann man Schnibbeln.
45cm Auszug für Essig/Oel Kochzutaten
80cm Kochstellenschrank und Zubehör
80cm Küchenhelfer und tägliches Geschirr
40cm Biomüll unter der APL
40cm für Küchentücher und überzählige Backbleche
tote Ecke

Peaches13.jpg
nach der toten Ecke kommt 60cm Spülenschrank und GSP
Peaches12.jpg

Die Hochschränke
50cm Besenschrank
60cm BO & Backformen
60cm Kühlschrank
50cm Vorräte
50cm Geschirr & Gläser
Peaches14.jpg
 

Anhänge

  • kf_peaches_nn_v1.POS
    9,5 KB · Aufrufe: 188
  • kf_peaches_nn_v1.kpl
    4,1 KB · Aufrufe: 181
AW: Peter´s neue Küche

Hallo zusammen,

da komme ich von der Arbeit, und schon soviele Antworten...Ich muss mir erstmal nen Tee machen....

Ulla, designorientiert soll die Küche nicht sein, und hochwertige Geräte- öhm, ich würde sagen Mittelklasse genügt mir. Dänisches Architektenhaus - so war das ganze halt beworben. Ist schon etwas individuell, aber auch nicht wirklich abgehoben. Über einen Induktionsherd muss ich mal nachdenken, hatte bisher halt ein Ceranfeld, und war damit zufrieden.

KerstinB, oh, Du hast ja gleich den ganzen Raum nachgebaut. Die nördlichen Fenster sind jeweils 179,5 cm breit (ich kann Deine Alno -Küchenplaner-Datei leider nicht ändern), das linke nördliche Fenster sitzt 47,5 cm von der westlichen Wand (Innenmaß), dann kommen 131 cm Wand, dann kommt wieder 179,5 cm Fenster, "der Rest" ist wieder Wand bis zur 17,5 cm Wand. Wieviel "der Rest" ist läßt sich aus der Maßkette leider nicht herausrechnen. Aus dem maßstäblichen Plan gemessen, sind es 65 cm (wie in Deiner Datei). Ich treffe morgen die Architektin und frage sicherheitshalber nochmal nach. Die Tür ist 80 cm breit, und 20 cm von der Wand. Die Wand mit der Zugangstür in die Küche/Essraum ist (inkl Tür) 369,10 cm. Ich kann im Küchenplaner leider nicht vermaßen, also weiß ich leider nicht, ob Dein Maß stimmt. Bis auf die nördlichen Fensterbreiten scheint aber sonst alles richtig zu sein. :top:

littlequeen, waoh, das muss ich mir aber mal in Ruhe angucken, und eine Nacht drüber schlafen. Die große ungegliederte Fläche ist für mich sehr gewöhnungsbedürftig. Den Backofen in der Wand integriert finde ich nicht so prickelnd, da sehe ich große Laufwege mit möglicherweise heißem Essen , wenn ich zwischen Backofen und Arbeitsplatte /Spüle hin und her laufe (bin ja von Natur aus faul :-[). Arghh, jetzt wo ich den Kühlschrank in Deiner Visualisierung gesehen habe ....sorry, nein, ich möchte keinen freistehenden, sondern einen "ganz normalen", Kühlschrank, gerne in die Küchenzeile integriert. Schuldigung, mein Fehler, ich ändere den Fragebogen. Brauche ich einen xxl-Geschirrspüler für 2 Personen ?

Nice-nofret/Vanessa. Ich frage die Architektin morgen Mittag nochmal nach der Brüstungshöhe . Das stand so in einem Plan, den sie mir vor 6 Wochen gegeben hat....Ich hab eben nochmal die Höhe der Arbeitsplatte hier in meiner Mietwohnung gemessen (Baujahr 1994). Das sind 86 cm. wenn ich meinen rechten Arm anwinkel, ist der Abstand zwischen Arbeitsplatte und Fingerspitzen 16 cm. Ich komme also auf 87 cm, bei gutem Willen 88 cm. Größer werde ich wohl nicht, eher kleiner. ;-)

Oh, Vanessa, Du hast ja auch schon geplant. Auch nicht in U-Form, ist dort zu wenig Platz für eine Küche in U-Form ???
Macht die Spüle nicht mehr Sinn vor einem Fenster, dann kann man beim Spülen wenigstens rausgucken. So gucke ich gegen die Wand :'( Den Stauraum bis unter des Esszimmerfenster zu ziehen, ist möglicherweise eine gute Idee :top: Daran den Esstisch so hinzustellen, habe ich noch nicht gedacht. Mit der Zeile in der der Backofen integriert ist, kann ich mich nicht so richtig anfreunden, das wirkt so massiv, und einengend. Der Herd rückt in der Variante so weit Richtung Esszimmer,
ich glaub ich hätte lieber ein bisschen mehr Abstand zwischen Kochen und Essen (klingt jetzt blöd bei einer offenen Küche).

Für eure Planungsvorschläge erstmal vielen Dank, ich brauche nun etwas Zeit um das zu analysieren, und drüber nachzudenken. Weitere Ideen sind natürlich höchst willkommen !

Danke !! :-)

Peter
 
AW: Peter´s neue Küche

Peter, bei 182 cm Körpergröße ... dann solltest du doch tatsächlich mal nicht nur messen, sondern probieren.
ARBEITSHÖHE ermitteln
3 Methoden haben sich da etabliert:
- Ellbogen abwinkeln und von dort 15 cm runtermessen
- Höhe Beckenknochen messen
- z. B. Bügelbrett nehmen und in verschiedenen Höhen Probeschnippeln und messen, wenn es einem am bequemsten erscheint.
Idealerweise ergeben alle 3 Methoden ca. denselben Wert
Ausführlicher in Optimale Arbeitshöhen beschrieben.

__________________________Der Bereich Kochen / Essen ist nur 600 cm breit. Für einen ordentlichen Tisch rechne ich ca. 90/100 x 180/200 cm. Da ist eine U-Form schlecht. Zumal der Tisch ja auch etwas Abstand vom geplanten Kaminofen haben sollte, damit man sich nicht den Hintern verglüht ;-)

Die Tür zum Küchenbereich läßt die sich noch nach planoben schieben?

EDIT:
Wie ernst ist die Aussage "Alle Vorräte" sind unterzubringen, gemeint? Deshalb sind ja diese Schrankwände entstanden.
 
AW: Peter´s neue Küche

Hallo Kerstin,

nach der Beckenknochenmethode, ist mein Beckenknochen bei 99 cm.

Das ist natüprlich ganz was anderes, als bei der 15 cm-Armabwinkel-Methode.

Die Tür läßt sich noch verschieben, ja.

Der Abstand zwischen 2 Küchenzeilen - so hab ichs hier irgendwo gelesen - soll rd. 140 cm sein. Wenn ich nun noch 60 cm für die eine Zeile nehme, und 60 cm für die andere, komme ich auf eine Tiefe von 260. Verbleiben rd. 340 cm für den Esstisch. Wenn ich den Nord-Süd ausrichte habe ich je 1 m zum Sitzen und 1 m Tischbreite, ist das zu wenig/eng ? Achso, Du meinst, man kommt dann zu weit Richtung Ofen...

Hm.

Der Hauswirtschaftsraum ist 4m², da passt ein Regal 25 cm * 75 cm rein, und hinter die Tür des Hauswirtschaftsraumes ist 20 cm * 100 cm Platz. Ist also schon wirklich nicht viel Platz im HWR . Insofern müssen wirklich "fast" alle Vorräte in die Küche/Esszimmer.
 
AW: Peter´s neue Küche

Die beste Methode ist immer noch ausprobieren. Die anderen beiden Methoden geben nur grundsätzliche Werte.

Ich habe jetzt divers hin und her geschoben. Hochschränke sehen einfach am besten an der Wand planunten aus.

Die Tür also so gesetzt, dass dort 60 cm bleiben. Oberhalb der Tür wird es dann für ein U sehr eng, bzw. vor allem ermöglicht ein U nur eine ungünstige Schrankaufteilung.

Daher dort jetzt ein 2-Zeiler. Es reicht ein Zeilenabstand von ca. 105 cm. Ich habe bei mir nur 93 cm, aber auch da kann man gut arbeiten.
-

Die Kochfeldzeile in 75 cm Tiefe, damit kann man auch übertiefe Unterschränke stellen und man kann eine Wandhaube nutzen. 2x90er und 1x30er für Gewürze/Öle etc. Einer der 90er mit dem Kochfeld, dadrunter Kochbesteck, Töpfe, Auflaufformen, Backformen etc. Der zweite 90er kann Schüsseln, Tupperware, einen Auszug Vorräte, die man besonders oft benötigt (Mehl, Zucker, Salz usw) beinhalten.

Spülenzeile beginnt an der Wand mit der GSP, dann kann die wundervoll in eine Richtung ausgeräumt werden und man muß nicht immer um die Klappe herum. Dann Spülenschrank, oben leicht reduzierter Auszug (Becken reicht hier rein) mit Platz für Putzmittel etc., unten Auszug für z. B. Flaschenvorräte etc.

30er Müll direkt unter der APL (Bio-/Restmüll) ... der zweite Auszug unten kann dann auch für gelben Sack-Müll benutzt werden:
full

Und dann noch ein 60er Auszugsunterschrank insbesondere für Küchenhelfer, Folien, Elektrokleingeräte usw.
Von der Rückseite der Insel tiefenreduzierte Drehtürschränke für z. B. Tischdeko, Spiele, Vasen etc.

In der Hochschrankwand hinter der Tür ein Vorratsschrank, im unteren Bereich mit Innenauszügen, oben könnten eher Fachbretter für seltener benutzte Teile wie Fondue, Raclette, Thermoskannen etc. sein.

Dann Backofen /Mikrowelle , unten weiterhin Stauraum. Daneben dann ein 90er Unterschrank mit Hängeschrank. Hier insbesondere unten die Teller, Servierschüsseln, Gläser, Besteck etc. In den Hängeschränken evtl. Tassen, gute Gläser, Kaffeezubehör, Toaster usw. Hier kommt man auch gut dran, wenn der Koch noch am Wirbeln ist, der Tisch aber gedeckt werden soll.

Daneben dann die Kühl-/TK-Kombi. Auch die sowohl von der Spülenzeile als auch mal vom Tisch gut erreichbar.
__________________________
Unabhängig davon, ob ihr den Tisch so stellt, wie jetzt von mir eingeplant (finde ich kommunikativer Richtung Küche und es gibt mehr Freiraum zur Halbinsel) oder um 90° gedreht, ihr solltet darauf achten, dass bei der Terrassentür der linke Flügel zuerst öffnet. Dies wird auf jeden Fall der natürlichere Weg zur Terrasse sein.
 

Anhänge

  • kf_peaches_20120319_kb_var1.KPL
    4,1 KB · Aufrufe: 164
  • kf_peaches_20120319_kb_var1.POS
    10,8 KB · Aufrufe: 159
  • kf_peaches_20120319_kb_var1_Ansicht1.jpg
    kf_peaches_20120319_kb_var1_Ansicht1.jpg
    174,8 KB · Aufrufe: 195
  • kf_peaches_20120319_kb_var1_Ansicht2.jpg
    kf_peaches_20120319_kb_var1_Ansicht2.jpg
    210 KB · Aufrufe: 187
  • kf_peaches_20120319_kb_var1_Ansicht3.jpg
    kf_peaches_20120319_kb_var1_Ansicht3.jpg
    170,8 KB · Aufrufe: 177
  • kf_peaches_20120319_kb_var1_Ansicht4.jpg
    kf_peaches_20120319_kb_var1_Ansicht4.jpg
    183,7 KB · Aufrufe: 178
  • kf_peaches_20120319_kb_var1_Ansicht5.jpg
    kf_peaches_20120319_kb_var1_Ansicht5.jpg
    194,9 KB · Aufrufe: 193
  • kf_peaches_20120319_kb_var1_Ansicht6.jpg
    kf_peaches_20120319_kb_var1_Ansicht6.jpg
    187,8 KB · Aufrufe: 177
  • kf_peaches_20120319_kb_var1_Grundriss.jpg
    kf_peaches_20120319_kb_var1_Grundriss.jpg
    87,4 KB · Aufrufe: 172
AW: Peter´s neue Küche

Hallo Kerstin,

bin noch etwas erschlagen von der Arbeit.:sleep:

Mit dem 2-Zeiler könnte ich mich wirklich ernsthaft anfreunden. Gefällt mir sehr gut.
Das trent den Raum, ist praktisch (Spüle mit Blick nach draußen, Müllentsorgung unter der APl, neben Spüle, Stauraum Richtung Esszimmer). Die Stauraumplanung ist auf den ersten Blick insgesamt plausibel, muss ich mir nochmal verinnerlichen. Der Standort der TK/Gefrier-Kombi ist wegen der Erreichbarkeit von verschiedenen Seiten ein plus, zugleich habe ich aber auch Befürchtungen, wegen der Nähe zum Ofen.

Die Architektin meint allerdings den Ofen könne man auch noch ein wenig Richtung Wohnzimmer verschieben, sodass man mehr Abstand zum Kühlschrank bekommt. Die Architektin meint übrigens noch vieles mehr: die Brüstungshöhe ist 105 cm, nicht 135 wie ich gedacht hatte, der Wandabstand zwischen Fenster und nördlicher Wand ist in der Tat "mindestens" 60 cm (die Zeile mit dem Herd passt dort also real auch hin), und ich habe bis zum 18.04. Zeit zu überlegen, ob ich die Tür so verschieben möchte, dass die Hochschrankwand dort also auch noch hin passt.

In keiner Variante sind übrigens in der Kochzeile Hochschränke von Euch/Dir eingeplant, hat das einen tieferen Sinn ? Stelle mir Gewürze u. ä. gerne in der Nähe der Kochstelle praktisch vor....

Der Herd in der Hochschrankwand, daneben Kaffemaschine und Brotbehälter....da knabber ich noch dran.

Ein Freund von mir ist übrigends 1-2 cm kleiner wie ich, hat eine 20.000 € Küche, und meint seine APL ist 93 cm, und ich solle auf keinen Fall kleiner als 93 cm nehmen....:-)

Gut an den Vorschlägen finde ich auch: keine Apothekerschränke, keine LeMans , Rondelle, Magic Corner etc.

Die Fenster im Esszimmer sind übrigens fix (nicht zu öffnen). Die Terassentür, die sich öffnen lässt, ist dann im eigentlichen Wohnzimmer. Die Aufstellung des Esstisches Richtung Küche ist in der tat kommunikativer, und läßt auch Platz für Erweiterung.

Ich hab ja hier nun gelernt, dass es 5er und 6er Raster gibt, und das die Hersteller, unterschiedliche Korpushöhen haben. Welche Hersteller kämen da in Frage ? Alno , Bauformat , Pronorm , Häcker , Schüller ?

Vielen Dank für die bisherige Hilfe, nicht mehr lange und ich kann den Gang in das Küchenstudio meines Vertrauens antreten. :-)

Peter
 
AW: Peter´s neue Küche

Für Öle/Essige etc. hatte ich dir den 30er Unterschrank in der Kochfeldzeile angedacht.

Gewürze ... warum nicht so, in den Schubladen/Auszügen rechts vom Kochfeld:
full


-
Zu den genannten Alno , Bauformat , Pronorm , Häcker , Schüller kommen noch Ballerina , Beckermann usw. dazu.

Was stört dich am Backofen in der Hochschrankzeile? Verstehe ich überhaupt nicht deine Bedenken.
Die Bedenken wg. dem Kühlschrank kann ich nachvollziehen und auch, wenn man den Tisch mal um 90° dreht und verlängert wäre es günstig, der Kaminofen wäre noch etwas weiter planunten.

Mit Hochschränke eingeplant meinst du Hängeschränke? Habe ich doch einen eingeplant, über dem Unterschrank in der Hochschrankwand.

Ansonsten wären sie irgendwie fehl am Platz. Bei der Kochfeldzeile paßt sinnvoll maximal rechts vom Kochfeld einer, denn zwischen DAH und Hängeschrank sollten schon so 5 bis 10 cm Platz sein. Und, da ist keiner notwendig.

Egal ob das planrechte Fenster jetzt 60 cm aus der Ecke oder nur 45 cm aus der Ecke ist, die Kochfeldzeile paßt da so oder so, denn 105 cm Arbeitshöhe wirst du wohl nicht erreichen.

Ich bin 180 cm groß und habe 97 cm Arbeitshöhe. Du mußt das aber unbedingt probiert haben, Bügelbrett oder bisherige Arbeitshöhe und mal was festes unten drunter legen und dann erst das Schneidbrett. Und dann mal wirklich etwas länger schnippeln.
 
AW: Peter´s neue Küche

Nochmal zur Hochschrankwand ... die 60 cm hinter der Tür würde ich definitiv einplanen. Ich habe heute wirklich viel geschoben, Hochschränke würden ja sonst nur noch an die Wand mit der Küchentür passen. Das sieht aber alles irgendwie nicht so toll aus, gibt ungünstige Schrankbreiten bei den Unterschränken, erfordert auf jeden Fall eine Ecke usw.

Brotbehälter und Toaster etc. sind für mich eher Teile, die ich in einem Auszug deponieren würde. Das befreit die Arbeitsfläche.

Backofen ist dann direkt neben Abstellfläche, mit einer kleinen Drehung ist man auch am Spülen- oder Kochfeldblock usw. Es ist genügend Freiraum vor dem Backofen usw.
 
AW: Peter´s neue Küche

Hallo Kerstin,

ich habe ein Mega Problem:

Meine Architektin hat es auf Anhieb nicht gesehen, und ich auch schonmal garnicht. Trotzdem mein Fehler im Alno Grundriss. Gegenüber der Küche bfindet sich ja noch ein kleines Zimmer, und das erreicht man nur, wenn man durch eine Tür geht, wo jetzt die Hochschrankwand geplant ist. :'(

Vielleicht kann ich die Tür zum kleinen Zimmer noch etwas Richtung Ofen (links) verschieben, sodass ich zumindest 1/2 oder 1/3 Hochschrankwand bekomme, um Stauraum zu erhalten.

Läßt sich in der Kochzeile nicht das Schrankmaß verkleinern, sodass dort Herd und
Ofen hinpassen ? Ofen direkt neben der Tür hoch, dann ein wenig Arbeitsplatte , dann Herd, dann Gewürzschublade ? Ist dann alles etwas kleinteilig, aber das Haus hat auch nur knapp über 100 m² Wohnfläche.

Die Stauraumaufteilung in der Spülzeile hab ich mir genauer angeguckt, finde ich ganz klasse !

Lieben Gruß

Peter
 

Anhänge

  • tuer.jpg
    tuer.jpg
    65,2 KB · Aufrufe: 201
AW: Peter´s neue Küche

Zum Wohnzimmer hin kann man die Tür nicht versetzen?
 
AW: Peter´s neue Küche

Habe ich auch übersehen. :kiss: (wollte die Tür wohl nicht realisieren ;-) )

Hochschränke mit im anderen Bereich .. du verlierst mind. 60 cm von der APL dort. Da ja 2 Hochschränke mind. hin sollen. Und eigentlich sind es auch mehr als 60 cm, weil zwischen Hochschrank und Tür sollte man schon 20 cm Platz lassen, damit man beim Reinkommen nicht so vom Hochschrank erdrückt wird. Also, der APL- Platz in der Kochfeldzeile würde sich um ca. 80 cm reduzieren.

Desweiteren würde Stauraum reduziert werden.

Tür zum Arbeitszimmer vielleicht vom Gäste- oder Wohnzimmer aus? Vielleicht kann man auch Arbeits- und Gästezimmer auch einen Raum machen?
 
AW: Peter´s neue Küche

Klar habe ich die Türe gesehen ... aber da sie unpraktisch sitzt für Deine Küche und es ja noch genügend andere Wandstücke gibt, wo sie hin könnte, sehe ich da kein Problem.
 
AW: Peter´s neue Küche

Halli Hallo,

ich wollte eben kurz ein Status Update bezgl. meiner neuen Küche geben.

ich war zwischenzeitlich in einem kleinen Küchstudio, wo mir der Inhaber in 1,5 Stunden anliegende Küche "gebastelt" hat. Sein Betrieb baut nach eigenen Angaben rund 400 Küchen / Jahr ein.

Das Ganze hat noch Licht und Schatten in meinen Augen, mal schauen, was Ihr dazu sagt.

Auf der Seite der Wand der Hochbackofen, rechts davon der Kühlschrank mit einem kleinen Gefrierschrank (nur für Eiswürfel + 1 Pizza), links davon der Geschirrspüler , über dem Herd die Mikrowelle .

Ein separater Gefrierschrank soll nun doch in den Hauswirtschaftsraum, da wäre Platz, wenn ich Waschmaschine und Trockner übereinander Stapel.

Am Fenster die Spüle, rechts und links davon Rondelle :-(
Ganz unten unter der Spüle Abfall, darüber Putzmittel.

Dann Richtung Esszimmer der Herd mit Dunstabzugshaube, Rechts und Links Apothekerschränke :-( Unter dem Herd Platz für Töpfe und Pfannen.

Auf der Rückseite vom Herd (Richtung Esszimmer) dann nochmal Stauraum.

Die Küche soll eine "Nobilia " sein, Farbe Magnolia (matt), Arbeitsplatte und Wangen in Nußbaum, Arbeitsplattenhöhe nachdem er mich einmal von oben bis unten angeguckt hat: 91 cm. Er hat mir noch was von mit Folie und ohne Folie bei der Verarbeitung erzählt, da muss ich mich aber noch informieren, was das heißt.

Was mir noch nicht gefällt und nochmal bedacht werden muss:

- 2 Rondelle, 2 Apothekerschränke = die brauche ich nicht wirklich, vielleicht 1 Rondelle
- zwischen Tür und Kühlschrank ist nichtmal Platz für einen Lichtschalter.
- die Dunstabzugshaube ist zwar teilweise aus Glas, aber weil der Raum ja sehr hoch ist, weis ich nicht, wie das aussieht.
- der Abstand zwischen Herd und Backofen sind 130 cm, das ist zwar klasse in der Küche, aber ich befürchte, dadurch wird das Esszimmer zu klein. Das Esszimmer ist dann 3,2 m breit, könnte knapp reichen (1 m breiter Esstisch, 70-80 cm Sitztiefe
je Stuhl =2,60, macht rundrum jewels 30 cm freier Platz, reicht gerade um einen Stuhl zurückzuschieben ?!!)
- den Herd, die Spüle und den Ofen hat er bewusst in schwarz geplant...

Er hat mir nur die Ausdrucke mitgegeben, mehr würde es geben, wenn er den Auftrag bekommt.

Was mir wirklich gut gefällt ist das "Design" (Nußbaum, Magnolia matt, Wangen, schwarze Spüle etc.).

Bei der Preisfrage (wieviel ich den ausgeben will, habe ich mich geziert und gesagt, "soviel wie nötig, so wenig wie möglich", nach ein bisschen hin und her hat er dann 6.000-8000 € aus mir rausgekitzelt. Dabei hatte ich den Hintergedanken, dass es am Ende sowieso teurer wird, als zuerst verhandelt.

In dem Preis (8000,-) wären dann Constructa -Geräte (Siemens ?) mit einem Ceran-Kochfeld drin. Induktion wäre 1.000,- € teurer.

Was meint Ihr ?

LG

Peter
 

Anhänge

  • A.jpg
    A.jpg
    66,9 KB · Aufrufe: 266
  • B.jpg
    B.jpg
    64,9 KB · Aufrufe: 212
  • C.jpg
    C.jpg
    68,8 KB · Aufrufe: 221
AW: Peter´s neue Küche

Als erstes muss ich mal lachen ... Induktion alleine 1000 Euro teurer? Was soll denn das für ein Feld sein, wo einfache 60 cm Induktionsfelder bereits ab 300 Euro zu haben sind.

Soll es denn eine Kassettenfront werden? Das ist doch bestimmt Folie?

Der KFB hat dich mit 182 cm angeguckt und 91 cm Arbeitshöhe ermittelt? Hmm .. wie weit bist du denn mit unseren Tipps zur Arbeitshöhen-Ermittlung gekommen?

Nobilia ... 5 Raster und nur 72 cm Korpushöhe.

Kein Platz neben der Küchentür um einen Lichtschalter zu setzen ... das sieht doch schlecht geplant aus und macht es dort auch eng.

Mir gefällt die Planung leider gar nicht.

Was kann man denn mit der Tür zum Arbeitszimmer machen?
 

Ähnliche Beiträge

Neff Hausgeräte Ballerina Küchen Blum Bewegungstechnologie Weibel - Intelligente Küchenlüftung

Neff Spezial

Blum Zonenplaner

Weibel Abluft-Tuning

Weibel Abluft-Tuning
Zurück
Oben