Unbeendet Neue Küche nach Vollsanierung

Smirgold

Mitglied
Beiträge
11
Hallo,
wir haben eine alte DHH aus dem Jahr 1927 gekauft und werden diese nun vollsanieren.

Die Küche soll dabei an den alten Platz im Zentrum des Erdgeschosses untergebracht werden. Ich habe mit dem Küchenplaner von Ikea einen Versuch gestartet. Allerdings bin ich nicht auf Ikea festgelegt. Wir möchten auch gern eine Arbeitshöhe von ca. 92 cm, das ist bei Ikea ja schon grenzwertig. Ggf. wären auch unterschiedliche Höhen sinnvoll.

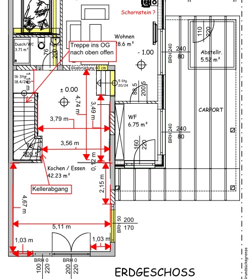
Besonderheiten (siehe Grundriss):

  • gelb hervorgehoben sind die alten Wände (können ignoriert werden)die eingezeichnete Küche ist nur ein Beispiel und kann ignoriert werden
  • Zugang Eingang/Wohnzimmer in Küche nordöstlich (offen mit 3 Stufen und Glasgeländer)
  • Nordwestlich Zugang zu Gästebad und zu Treppe ins erste OG
  • Treppe ins OG nach unten geschlossen (Zugang Keller) und nach oben hin offen
  • Südlich offener Übergang ins Esszimmer, Wand rechts von Übergang endet auf Arbeitsplattenhöhe. Arbeitsplatte soll dann etwas in Esszimmerbereich hineinragen.

Ich bin gespannt auf eure Meinungen.

Checkliste zur Küchenplanung

Anzahl Personen im Haushalt: 4
Davon Kinder?: 2
Art des Gebäudes?: Neu-/Umbau, Planänderungen möglich
Körpergrössen aller Hauptbenutzer (wegen Arbeitshöhe) in cm: 190 cm, 178 cm, 90 cm, 10 cm (noch im Bauch ;-))
Brüstungshöhe des Fensters (in cm): 95
Fensterhöhe (in cm):
Raumhöhe in cm:
270
Heizung: Fussbodenheizung
Sanitäranschlüsse: vollkommen variabel
Ausführung Kühlgerät: Stand-Alone bis 60 cm Breite
Kühlgerät Größe: noch unbekannt
Ausführung Tiefkühl (TK)-Gerät: Im Kühlschrank ab 3 Schubladen unten
Dunstabzugshaube: Abluft
Backofen etc. hochgebaut?: Wenn möglich
Hochgebauter Geschirrspüler ?: Wenn möglich
Kochfeldart: Induktion
Kochfeldbreite ca. (in cm)?: 60cm
Spülenform: 1,5 Becken mit Abtropffläche
Geplante Heißgeräte: Einbaumikrowelle, Backofen
Küchenstil: Modern
Sitzmöglichkeit in der Küche / im Küchenbereich: Überstehende Arbeitsplatte
Sitzmöglichkeit: Für wieviel Personen?: für 2 Personen
Sitzmöglichkeit: Tisch - wenn gesonderter Tisch oder offene Küche: Keiner
Gewünschte o. vorhandene Tischgröße:
Wofür soll der Sitzplatz in der Küche genutzt werden? Wie häufig?:
bei Übergang ins Esszimmer soll entweder die Arbeitsplatte überstehen oder etwas erhöht eine zweite Ebene in Barhöhe. Nutzung gelegentlich, z.B. schnelles Frühstück, für ein Getränk bei Besuch
Welche Arbeitshöhe ist angedacht (in cm)?:
Was steht auf der Arbeitsplatte oder soll dort stehen?:
Kaffeevollautomat, Wasserkocher, Messerblock, Küchenmaschine, Toaster, Brotbehälter
Welche weiteren Küchenmaschinen müssen in der Küche untergebracht werden?: Küchenmaschine, Mixer, Pürierstab, Eierkocher
Was soll in der Küche außer den Standards untergebracht werden?:
Welchen Stauraum gibt es sonst noch?:
Geschirr/Gläserschrank im Wohn-/Esszimmer, Speisekammer, Keller
Was/wie wird gekocht? (Alltagsküche, Menüs, Snacks usw): Alltagsküche
Wie häufig wird gekocht?: (fast) täglich 1x warm
Wird alleine gekocht? Oder auch gemeinsam? Mit und für Gäste?: auch gemeinsam
Was stört an der bisherigen Küche und was soll die neue Küche unbedingt können? Warum?: zu klein (in Wohnung), zu geringe Arbeitshöhe
Welche Mülltrennung soll in der Küche vorgehalten werden?: Altglas, Altpapier, Biomüll, Gelber Sack Müll, Restmüll
Steht schon ein Küchenhersteller fest oder wird bevorzugt?: Erster Entwurf wurde mit Ikea gemacht (mit E-Geräten ohne Kühlschrank 6325 €)
Steht schon ein Gerätehersteller fest oder wird bevorzugt?: Siemens /Bosch bervorzugt (neuer Kühl-/Gefrierschrank A+++ schon vorhanden)
Preisvorstellung (Budget): bis 10.000,-

EG.JPG
Anicht_Ikea_2D.JPG
Ansicht_Ikea_3D.JPG
Ansicht_Ikea_3D_2_Süd.JPG
Aufgang Treppe.JPG
 
Zuletzt bearbeitet:
Noch zwei kleine Ergänzungen:

Auf der Ostseite ist noch ein Fenster zwischen Arbeitsplatte und Oberschrank im Gespräch, um zu sehen, wer hineinkommt und etwas mehr Licht in die Küche zu bekommen.

Es würde vermutlich Sinn machen die Arbeitsplatte im Osten zu erhöhen, da hier GSM und Spüle untergebracht sind und durch die Spüle gut geschnippelt werden kann. Dann müsste der MUPL aber umgeplant werden...
 
Naja, das Kochfeld würde ich auch eher in der Küche und nicht außerhalb, wie momentan geplant...

Ist der Gesamtgrundriss genordet? Wo befindet sich denn der Raum im Gesamtgrundriss? Wenn es ein Innenraum ist, warum sprichst Du von Fenstern?

Damit wir uns verstehen, einigen wir uns bitte auf die Begriffe planoben (= oben im Plan, wenn man draufschaut), planunten, planlinks und planrechts.
 
Ja, die Grundrisse sind eingenordet. Im Gesamtgrundriss ist es der Raum in der Mitte, wo +-0.00 steht. Ist das dann planmitte? Das Fenster wäre nicht nach außen, sondern zum Eingangsbereich hin. Ungefähr da, wo jetzt die Spüle ist. Mit dem Herd hast du vermutlich recht. Man könnte ihn auf der Halbinsel belassen und auf die andere Seite packen, also näher an den Ofen.
 
Was ich an diese Planung nicht mag ist, dass die Bereiche Spülen - Vorbereiten - Kochen so entfernt voneinander sind, und der Kühlschrank getrennt von den anderen Hochschränken ist. Es sieht zufällig aus.

Mit planoben... etc. bezog ich mich auf dem reinen Küchengrundriss. Welche der im Grundriss abgebildeten Fenstern existieren tatsächlich? Gibt es den WC noch? Mit Küchenzugang?

Was ist diese eingezeichnete Tür dort, wo die Kellertreppe sein soll, planunten links?

Muss der Wandstümmel zwischen Küche und Esstisch stehen bleiben aus statischen Gründen? Wenn der weg könnte, könnte man ganz anders planen und die Durchgangssituation entschärfen.
 
Hallo Isabella,
vielen Dank für Deine gute Kritik.

Die Tür Planungen links ist der Zugang zum Keller.

Das mit dem Kühlschrank stimmt und wenn es eine bessere Lösung gibt, nehme ich die gerne auf.

Über die Variante den Wandstummel zu entfernen habe ich noch gar nicht nachgedacht, aber das gefällt mir sehr gut! Dann könnte man die Küche an der Wand planrechts in den Essbereich hineinziehen, z.B. bis zum Ende der Speisekammer. Das hätte auch den Vorteil, dass man den Bereich Fliesen könnte.
 
Kannst Du einfach mit Stift und Zettel den soll-Grundriss mit Türen und Fenstern skizzieren und hochladen? Ich verstehe immer noch nicht ganz, wie die Wege sind. Bleibt das Gäste-WC mit Tür in die Küche? Wenn die Tür planlinks unten der Kellerzugang ist, was ist die Tü planlinks oben, nah an der Stelle, wo Du das Kochfeld geplant hast?
 
Ja, das Gäste-WC soll planoben links zugänglich sein. Ich habe das nochmal aufgemalt und hoffe, dass es so verständlicher ist.
 

Anhänge

  • image.jpg
    image.jpg
    53,6 KB · Aufrufe: 261
Ja, endlich, danke! So alte Häuschen sind schön, aber halt wahrscheinlich öfters mal umgebaut worden.
"Vorrat" muss bleiben?

Wenn es mein Haus wäre, würde ich versuchen, ein kleines Flur für den Zugang nach oben und zum Gäste-WC abzutrennen, Kammer weg, Küche und Esstisch umtauschen.
 
Das mit dem Flurbereich finde ich gut. Die Speisekammer ist derzeit noch nicht gebaut und war eine Überlegung, um die Vorräte unterzubringen. Meinst du, es wäre praktischer die Lebensmittel stattdessen in zusätzlichen Küchenschränken zu verstauen?

Ein Detail, welches ich vergessen habe zu erwähnen gibt es noch. Der Garten befindet sich im Norden, ist also vom Wohnzimmer aus zugänglich. Nach Süden hin gibt es noch einen kleinen Vorgarten und die Straße. Daher macht es mehr Sinn, die Küche ins Zentrum zu rücken dachten wir, damit die Wege nicht so lang sind für das Frühstück im Garten.
 
Ok, ganz langsam kriege ich ein Gefühl für die Räumlichkeiten... ist die Treppe nach oben von der Küche aus sichtbar oder geschlossen?

Eigentlich ist Wasser und Abwasser über das Gäste-WC auch im Wohnzimmer zu bekommen - die Küche + Esstisch im jetzigen Wohnzimmer (Raumtausch, sozusagen) ist keine Option? Dann wäre der Weg zum Garten noch kürzer.

Egal wie, das Speisekämmerchen würde ich weglassen, ein Hochschrank mit Innenauszüge bzw. ein Hochschrank für Putzzeug kann alles aufnehmen und man ist in der Planung flexibler (und der nächste Umbau ist einfacher ;-)).
 
Okay, Speisekammer weglassen finde ich auch gut! Das Wohnzimmer vorne... Da müssen wir nochmal drüber nachdenken. Wir haben uns damals dafür entschieden, da dort 3,90m Deckenhöhe sind, aber aus Reinigungsgründen wäre das eventuell auch noch eine interessante Alternative.
 
es wäre hilfreich, wenn dieser Plan
eg-jpg.246048


ordentlich vermaßt wäre. Soll heißen, der Küchen- und Essbereich sowohl das Wohnzimmer, Wandlängen und vermasste Tür- und Fensterpositionen. Ansonsten ist es schlecht möglich, korrekte Pläne zu erstellen.

Was auch immer hilft, sind Bilder der Räumlichkeiten, wir sparen uns dann etwas Fragerei.
 
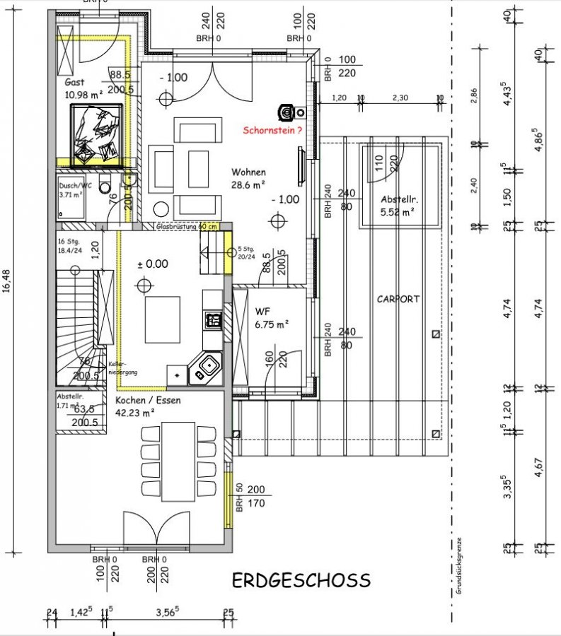
Hallo,

ich habe versucht einen bemaßten Grundriss des Koch- und Essbereiches zu erstellen und hoffe, dass es so besser ist. Der Tausch mit dem Wohnzimmer kommt für uns eher nicht in Frage, da wir uns nicht vorstellen können unser Wohnzimmer zur Straßenseite zu haben.

Bilder der Räumlichkeiten kann ich gern hochladen, allerdings ist es momentan entkernter Rohbau und die Durchbrüche sind noch nicht vorhanden.

Der Wandstummel planrechts auf Höhe des Kellerabgangs könnte wie bereits erwähnt auch weggelassen werden.
 

Anhänge

  • Grundriss_bemaßt2.jpg
    Grundriss_bemaßt2.jpg
    102,7 KB · Aufrufe: 256
Zuletzt bearbeitet von einem Moderator:
Man könnte die Küche planunten vorsehen, z.B. Hochschränke an die Planlinke Wand und eine Insel davor. Ist das ganze Bereich unterkellert? Der Esstisch könnte planrechts platziert werden (muss man überlegen wo genau) und evtl. eine Art Flurbereich abtrennen, damit man die Küchengeräusche nicht im oberen Stockwerk mitkriegt. Alles unausgereifte Überlegungen, aber das würde m.E. gut funktionieren.
 
danke für den vermaßten Plan. :top:

Was steht auf der Arbeitsplatte oder soll dort stehen?: Kaffeevollautomat, Wasserkocher, Messerblock, Küchenmaschine, Toaster, Brotbehälter

Wasserkocher braucht man mit Induktion nicht mehr, Brot passt in einen 2er Auszug.

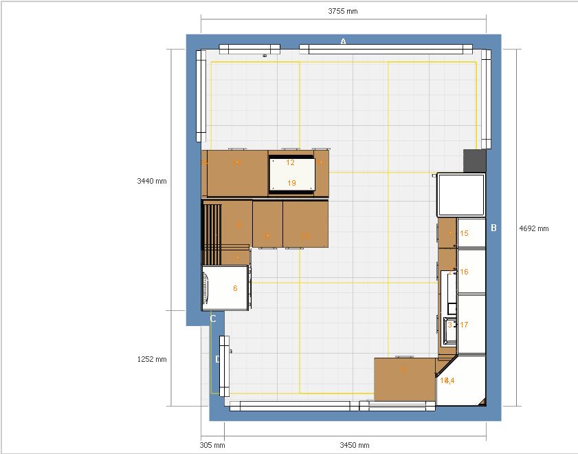
Auch ich wollte die Küche in dem schönen hellen Raum. Hier mal ein Beispiel.

Die Insel ist 270x100cm + Sichtseiten gross, der Zeilenabstand zur HS Wand beträgt 115cm.

Die Mikro ist über dem hochgestellten GSP links neben dem BO.

Das Kochfeld wollte ich an der Wand haben, es ist pro Tag wenig im Betrieb. Eine schöne grosse Arbeitsinsel mit Spüle ist vielfältig nutzbar, insbesondere mit Kindern.

An der Wand planrechts eine einfache Sitzbank, dickes board an der Wand befestigt, ein schmaler (80cm) Tisch davor.

smirgold21.JPG smirgold22.JPG smirgold23.JPG smirgold24.JPG smirgold25.JPG
 

Anhänge

  • smirgold-evelin-PLAN2.KPL
    3,9 KB · Aufrufe: 181
  • smirgold-evelin-PLAN2.POS
    16 KB · Aufrufe: 201
Wow, vielen Dank für eure Mühe. Das sieht echt schick aus! Stellt sich nur die Frage, was man da für Bodenbelag wählt und ob die Wege in den Garten nicht ganz schön lang sind. Was sich da gut machen würde ist ggf. später einmal einen Wintergarten nach Süden raus nachzurüsten. Wir laden euch dann zum Probekochen ein, wenn es fertig ist
 
ich wollte ganz sicher nicht in der dunkelsten Stelle im Haus kochen, in einem Durchgangsraum und gegenüber vom Klo.

Was den Bodenbelag betrifft, mag ich von Meister Nadura, ein Gemisch aus Holzfasern und Mineralien, angenehm warm und tolle moderne Fraben, 1 cm dick.
 
Evelin´s Planung ist wirklich durchdacht und ob du nun 1 m weiter laufen musst um auf die Terasse zu kommen macht den Kohl auch nicht fett.

Ich würde auch nicht gerne mitten im Durchgangsbereich in eine unpraktischen Küche kochen müssen.

LG
Sabine
 

Ähnliche Beiträge

Neff Hausgeräte Ballerina Küchen Blum Bewegungstechnologie Weibel - Intelligente Küchenlüftung

Neff Spezial

Blum Zonenplaner

Weibel Abluft-Tuning

Weibel Abluft-Tuning
Zurück
Oben