dachsbau
Mitglied
- Beiträge
- 10
Neue Küche für das neue Nest
Hallo liebe Forums-Mitglieder,
zwar hatten wir hier bereits einmal einen Thread, der Kauf des Hauses wurde damals aber nichts. Nun sind wir fündig geworden und haben zugeschlagen und ein relativ breites Reihenhaus gekauft.
Es soll eine neue Küche rein und man hat (im Rahmen des Budgets) natürlich die Qual der Wahl.
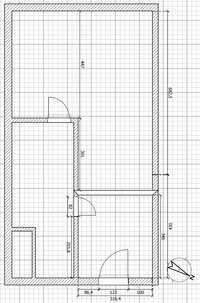
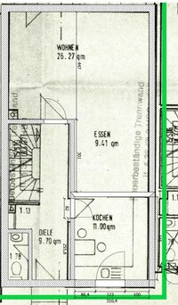
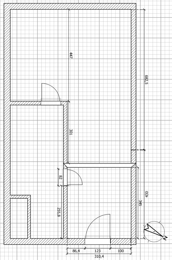
Die im Plan nicht schraffierte weiße Wand zwischen Kochen und Essen soll entfernt werden um einen großen Wohn / Essbereich zu schaffen. Das Stück Wand in der Visualisierung und im ALNO Planer, diente nur zum Abmessen der zukünftigen Zeilenlänge Plan rechts
Den Wasser-Anschluss habe ich leider noch nicht in der Position vermessen, vermute aber das er ca. 120 bis 180cm von der Außenwand entfernt Plan rechts sitzt.
Der auf den Bildern zu sehende Heizkörper wird entfernt und an anderer Stelle kommt ein Ersatz hin, damit man hier vors Fenster auch US setzen kann.
Der angehängte ALNO Plan ist eine aus dem Gedächtnis nachgebaute und leicht angepasste Planung eines Küchenstudios - leider haben wir hier bisher keine Ansichten zugesendet bekommen.
Die Planung basiert auf einer Häcker Classic Küche, folgendes weicht von der Planung des KFB ab:
- Plan links haben wir auf der Hochschrankseite noch einen 45er Vorratsschrank hinzugefügt.
- Plan oben wurde in der Insel ein offenes Regal geplant - das gefiel uns nicht so recht und laut den Beiträgen hier ist das auch recht teuer?
- Um das vom KFB vorgeschlagene Bora Pure Kochfeld darzustellen fehlte das Talent im ALNO Planer. Es wurde nicht direkt links am Ende der Insel geplant, sondern etwa mittig. Dazu müsste ja in einen 90er US, im ALNO Planer ist dass dann aber immer gleich ein 90er Kochfeld.
Konkret stellen sich die Fragen:
- Wie verhält es sich mit Abluft vs. Umluft? Beim Kochfeld auf der Insel wäre Abluft vermutlich unverhältnismäßig aufwändig (durch alle US hindurch)? Der KFB meinte für Abluft müsste die Bohrung vergrößert werden und man mache das aus energetischen Gründen eigentlich nicht mehr? Wenn ich mir die Kosten für Aktivkohlefilter bei Bora ansehe, kann nicht wirklich glauben, dass der Spareffekt die Kosten aufwiegt.
- Was sind die größten Kostentreiber bei der aktuellen Planung? Es sind aktuell außer KF noch keine Geräte geplant, daher werden wir vermutlich im Bereich um 15 Tsd. € landen, der Wunschpreis liegt mehr in Richtung der 10 Tsd. €
- Wo und wie würdet Ihr einen MUPL in die Planung integrieren? Die Idee fand ich ganz interessant.
- Empfiehlt es sich die Rückwand (statt Fliesenspiegel) mit durch das Küchenstudio zu beauftragen?
- Wisst ihr ob Küchenstudios (generell) auch fremde Griffe verbauen? Aus dem Häcker Sortiment hat uns keiner so recht gefallen.
Wir würden uns über Anmerkungen, Feedback und Ideen sehr freuen. Danke, dass ihr hier Eure Freizeit opfert um an den ganzen Küchenplanungen zu optimieren
Liebe Grüße
Checkliste zur Kuechenplanung
Personenkriterien und Ergonomie
Anzahl Personen im Haushalt: 2
Davon Kinder: keine
Körpergrößen aller Hauptbenutzer in cm (wegen Arbeitshoehe): 184, 172
Welche Arbeitshöhe ist angedacht (in cm)?: 91 oder 93cm
Gebäudekriterien
Art des Gebäudes: Bestandsbau > (kleinere) Umbauten möglich, Eigentum
Bruestungshöhe des Fensters (in cm): 94,5
Fensterhöhe (in cm): unbekannt
Raumhöhe in cm: 253
Heizung: Keine Heizung
Sanitäranschlüsse: fix
Einbaugerätekriterien
Ausführung Kühlgerät: Integriert im Hochschrank (60cm)
Einbaukühlgerät Größe: 178cm
Ausführung Tiefkühl (TK)-Gerät: Im Kühlschrank ab 3 Schubladen unten
Dunstabzugshaube: Umluft
Hochgebauter Backofen : ja
Geplante Heißgeräte: Einbaumikrowelle, Backofen
Hochgebauter Geschirrspüler : nein
Art des Kochfeldes: Induktionskochfeld
Kochfeldbreite (ca. in cm): 80
Sitzmöglichkeiten
Sitzmöglichkeit in der Küche / im Küchenbereich: Keine
Sitzmöglichkeit: Für wieviel Personen?: nein
Sitzmöglichkeit: Tisch - wenn gesonderter Tisch oder offene Küche: Vorhandener Tisch
Gewünschte oder vorhandene Tischgröße: 160x90
Wofür soll der Sitzplatz in der Küche genutzt werden und wie häufig: kein Sitzplatz in der Küche notwendig
Stauraum-Planung
Was steht auf der Arbeitsplatte oder soll dort stehen?: Kaffeevollautomat, Küchenmaschine, Brotbehälter
Welche weiteren Küchenmaschinen müssen in der Küche untergebracht werden: Wasserkocher, Handrührgerät, Mixer, Pürierstab, Sonstiges (evtl. im Beitragstext benennen)
Was soll in der Küche außer den Standards untergebracht werden: Geschirr komplett (nichts in Ess-/Wohnzimmer)
Welchen Stauraum gibt es sonst noch: Geschirr/Gläserschrank im Wohn-/Esszimmer, Keller
Kochgewohnheiten
Was/wie wird gekocht? (Alltagsküche, Menüs, Snacks usw): Alltagsküche
Wie häufig wird gekocht: (fast) täglich 1x warm
Wird alleine gekocht? Oder auch gemeinsam? Mit und für Gäste?: Meistens gemeinsam, ab und zu für (nicht mit) Gäste(n)
Spülen und Müll
Spülenform: 1 Becken mit Abtropffläche
Welche Mülltrennung soll in der Küche vorgehalten werden: Biomüll, Gelber Sack Müll, Restmüll
Sonstiges
Steht schon ein Küchenhersteller fest oder wird bevorzugt: bisher wurde im Küchenstudio mit Häcker geplant
Steht schon ein Gerätehersteller fest oder wird bevorzugt: nein
Küchenstil: Landhausküche
Was stört an der bisherigen Küche und was soll die neue Küche unbedingt können? Warum?: Aktuelle Küche in der Mietwohnung ist zu klein
Preisvorstellung (Budget): 10, max. 15 Tsd. €
Angehängte Dateien
Hallo liebe Forums-Mitglieder,
zwar hatten wir hier bereits einmal einen Thread, der Kauf des Hauses wurde damals aber nichts. Nun sind wir fündig geworden und haben zugeschlagen und ein relativ breites Reihenhaus gekauft.
Es soll eine neue Küche rein und man hat (im Rahmen des Budgets) natürlich die Qual der Wahl.
Die im Plan nicht schraffierte weiße Wand zwischen Kochen und Essen soll entfernt werden um einen großen Wohn / Essbereich zu schaffen. Das Stück Wand in der Visualisierung und im ALNO Planer, diente nur zum Abmessen der zukünftigen Zeilenlänge Plan rechts
Den Wasser-Anschluss habe ich leider noch nicht in der Position vermessen, vermute aber das er ca. 120 bis 180cm von der Außenwand entfernt Plan rechts sitzt.
Der auf den Bildern zu sehende Heizkörper wird entfernt und an anderer Stelle kommt ein Ersatz hin, damit man hier vors Fenster auch US setzen kann.
Der angehängte ALNO Plan ist eine aus dem Gedächtnis nachgebaute und leicht angepasste Planung eines Küchenstudios - leider haben wir hier bisher keine Ansichten zugesendet bekommen.
Die Planung basiert auf einer Häcker Classic Küche, folgendes weicht von der Planung des KFB ab:
- Plan links haben wir auf der Hochschrankseite noch einen 45er Vorratsschrank hinzugefügt.
- Plan oben wurde in der Insel ein offenes Regal geplant - das gefiel uns nicht so recht und laut den Beiträgen hier ist das auch recht teuer?
- Um das vom KFB vorgeschlagene Bora Pure Kochfeld darzustellen fehlte das Talent im ALNO Planer. Es wurde nicht direkt links am Ende der Insel geplant, sondern etwa mittig. Dazu müsste ja in einen 90er US, im ALNO Planer ist dass dann aber immer gleich ein 90er Kochfeld.
Konkret stellen sich die Fragen:
- Wie verhält es sich mit Abluft vs. Umluft? Beim Kochfeld auf der Insel wäre Abluft vermutlich unverhältnismäßig aufwändig (durch alle US hindurch)? Der KFB meinte für Abluft müsste die Bohrung vergrößert werden und man mache das aus energetischen Gründen eigentlich nicht mehr? Wenn ich mir die Kosten für Aktivkohlefilter bei Bora ansehe, kann nicht wirklich glauben, dass der Spareffekt die Kosten aufwiegt.
- Was sind die größten Kostentreiber bei der aktuellen Planung? Es sind aktuell außer KF noch keine Geräte geplant, daher werden wir vermutlich im Bereich um 15 Tsd. € landen, der Wunschpreis liegt mehr in Richtung der 10 Tsd. €
- Wo und wie würdet Ihr einen MUPL in die Planung integrieren? Die Idee fand ich ganz interessant.
- Empfiehlt es sich die Rückwand (statt Fliesenspiegel) mit durch das Küchenstudio zu beauftragen?
- Wisst ihr ob Küchenstudios (generell) auch fremde Griffe verbauen? Aus dem Häcker Sortiment hat uns keiner so recht gefallen.
Wir würden uns über Anmerkungen, Feedback und Ideen sehr freuen. Danke, dass ihr hier Eure Freizeit opfert um an den ganzen Küchenplanungen zu optimieren
Liebe Grüße
Checkliste zur Kuechenplanung
Personenkriterien und Ergonomie
Anzahl Personen im Haushalt: 2
Davon Kinder: keine
Körpergrößen aller Hauptbenutzer in cm (wegen Arbeitshoehe): 184, 172
Welche Arbeitshöhe ist angedacht (in cm)?: 91 oder 93cm
Gebäudekriterien
Art des Gebäudes: Bestandsbau > (kleinere) Umbauten möglich, Eigentum
Bruestungshöhe des Fensters (in cm): 94,5
Fensterhöhe (in cm): unbekannt
Raumhöhe in cm: 253
Heizung: Keine Heizung
Sanitäranschlüsse: fix
Einbaugerätekriterien
Ausführung Kühlgerät: Integriert im Hochschrank (60cm)
Einbaukühlgerät Größe: 178cm
Ausführung Tiefkühl (TK)-Gerät: Im Kühlschrank ab 3 Schubladen unten
Dunstabzugshaube: Umluft
Hochgebauter Backofen : ja
Geplante Heißgeräte: Einbaumikrowelle, Backofen
Hochgebauter Geschirrspüler : nein
Art des Kochfeldes: Induktionskochfeld
Kochfeldbreite (ca. in cm): 80
Sitzmöglichkeiten
Sitzmöglichkeit in der Küche / im Küchenbereich: Keine
Sitzmöglichkeit: Für wieviel Personen?: nein
Sitzmöglichkeit: Tisch - wenn gesonderter Tisch oder offene Küche: Vorhandener Tisch
Gewünschte oder vorhandene Tischgröße: 160x90
Wofür soll der Sitzplatz in der Küche genutzt werden und wie häufig: kein Sitzplatz in der Küche notwendig
Stauraum-Planung
Was steht auf der Arbeitsplatte oder soll dort stehen?: Kaffeevollautomat, Küchenmaschine, Brotbehälter
Welche weiteren Küchenmaschinen müssen in der Küche untergebracht werden: Wasserkocher, Handrührgerät, Mixer, Pürierstab, Sonstiges (evtl. im Beitragstext benennen)
Was soll in der Küche außer den Standards untergebracht werden: Geschirr komplett (nichts in Ess-/Wohnzimmer)
Welchen Stauraum gibt es sonst noch: Geschirr/Gläserschrank im Wohn-/Esszimmer, Keller
Kochgewohnheiten
Was/wie wird gekocht? (Alltagsküche, Menüs, Snacks usw): Alltagsküche
Wie häufig wird gekocht: (fast) täglich 1x warm
Wird alleine gekocht? Oder auch gemeinsam? Mit und für Gäste?: Meistens gemeinsam, ab und zu für (nicht mit) Gäste(n)
Spülen und Müll
Spülenform: 1 Becken mit Abtropffläche
Welche Mülltrennung soll in der Küche vorgehalten werden: Biomüll, Gelber Sack Müll, Restmüll
Sonstiges
Steht schon ein Küchenhersteller fest oder wird bevorzugt: bisher wurde im Küchenstudio mit Häcker geplant
Steht schon ein Gerätehersteller fest oder wird bevorzugt: nein
Küchenstil: Landhausküche
Was stört an der bisherigen Küche und was soll die neue Küche unbedingt können? Warum?: Aktuelle Küche in der Mietwohnung ist zu klein
Preisvorstellung (Budget): 10, max. 15 Tsd. €
Angehängte Dateien
Anhänge
-
Grundriss-Etage.jpg223,6 KB · Aufrufe: 206 -
Grundriss-bemaßt-ohne-Hintergrund.jpg129,5 KB · Aufrufe: 196 -
Grundriss-bemaßt.jpg136,1 KB · Aufrufe: 182 -
Plan-links.jpg49,7 KB · Aufrufe: 181 -
Plan-links-unten.jpg50,3 KB · Aufrufe: 178 -
Plan-oben.jpg52,4 KB · Aufrufe: 179 -
Plan-unten.jpg51,8 KB · Aufrufe: 183 -
Plan-rechts-unten.jpg71,7 KB · Aufrufe: 171 -
Plan-rechts-oben.jpg60 KB · Aufrufe: 168 -
Wasser1.jpg50,9 KB · Aufrufe: 195






