Unbeendet Neue Küche - Erstentwurf

frontloop

Mitglied
Beiträge
43
Hallo,

unsere neue Wohnung wird gerade gebaut, d.h. alle Anschlüsse etc sind noch frei änderbar.
Bezugstermin ist Herbst 2016, aber eben um die Anschlüsse richtig planen zu können, muss der Entwurf für die Küche stehen.

Elektrogeräteauswahl erfolgt dann kurzfristiger.


Zum Entwurf:
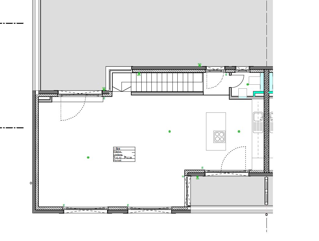
Auf der Zeichnung oben ist keine Tür sondern der Durchgang an der Treppe/WC vorbei zur Dachterrasse. Lässt sich halt in dem Planungstool so nicht darstellen.
Die Tür unten ist die Balkontür (zur Lodgia)

Hier geht's mir mal um die grundsätzliche Aufteilung.

Die Schrankbreiten sind variabel. Also ob z.B. über der Spüle ein 50er und ein 80er Schrank sind oder ein 100er und 30er, muss noch entschieden werden. Dafür müssen wir uns noch überlegen, was wo genau rein soll.

Was brauchen wir in der Küche alles?
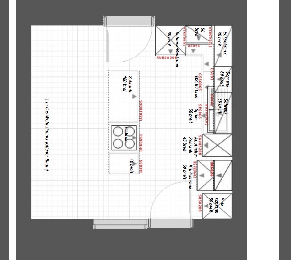
Im Uhrzeigersinn im Plan:
Schrank mit Backofen : Da auch Backutensilien (also Formen, etc) mit drin
Eckschrank unten: Töpfe, Pfannen
50er Schrank darüber: Schüsseln (Salat, Back-, etc)
Eckschrank darüber: ??
Geschirrspüler : klar
Spüle: Müll unter der Spüle
50er und 80er Schrank über GS: Teller, Tassen, Gläser
Apothekerschrank : Vorräte
Kühlschrank: klar
Darüber: Schrank für Kochbücher etc.
und zuletzt ein 50er Schrank für Putzmittel/Staubsauger

Im Küchenblock:
Ein 40er mit Schubladen für: Besteck, Kochbesteck (Pfannenwender etc)
60er Schrank mit Induktionsfeld. Darunter: Schublade mit Gewürzen etc
Ein 100er mit: ?? Vielleicht auch 1 60er und 1 40er. Noch unklar.

Dunstabzugshaube ist noch unklar. Mir würde so eine gut gefallen, die im Küchenblock integriert ist (Ausfahrbar) - Meinung dazu?

Auf den Eckschrank kommen Mikrowelle und Kaffeemaschine (Kapseln).

Der Block kann auch ein stück weiter Richtung Wohnzimmer gerückt werden (auf dem Plan ist der Durchgang zwischen Backofen und Küchenblock recht schmal).


Gibt's an der Planung grundsätzliche Kritikpunkte?

Checkliste zur Küchenplanung

Anzahl Personen im Haushalt: 2
Davon Kinder?: 2
Art des Gebäudes?: Neu-/Umbau, Planänderungen möglich
Körpergrössen aller Hauptbenutzer (wegen Arbeitshöhe ) in cm: 180
Brüstungshöhe des Fensters (in cm): 0
Fensterhöhe (in cm): 220
Raumhöhe in cm: 250
Heizung: Fussbodenheizung
Sanitäranschlüsse:
Ausführung Kühlgerät:
Stand-Alone bis 60 cm Breite
Kühlgerät Größe: bis 178 cm Höhe
Ausführung Tiefkühl (TK)-Gerät: Im Kühlschrank ab 3 Schubladen unten
Dunstabzugshaube: Umluft
Backofen etc. hochgebaut?: Ja
Hochgebauter Geschirrspüler ?: Nein
Kochfeldart: Induktion
Kochfeldbreite ca. (in cm)?: 60
Spülenform: Noch nicht festgelegt
Geplante Heißgeräte: Standmikrowelle, Backofen
Küchenstil: Modern
Sitzmöglichkeit in der Küche / im Küchenbereich: Keine
Sitzmöglichkeit: Für wieviel Personen?: Nein
Sitzmöglichkeit: Tisch - wenn gesonderter Tisch oder offene Küche: Keiner
Gewünschte o. vorhandene Tischgröße:
Wofür soll der Sitzplatz in der Küche genutzt werden? Wie häufig?:
Welche Arbeitshöhe ist angedacht (in cm)?:
Was steht auf der Arbeitsplatte oder soll dort stehen?:
Kaffeemaschine, Messerblock, Obstschale
Welche weiteren Küchenmaschinen müssen in der Küche untergebracht werden?: Wasserkocher, Toaster, Handrührgerät, Mixer, Pürierstab
Was soll in der Küche außer den Standards untergebracht werden?: Staubsauger/Wischer etc.
Welchen Stauraum gibt es sonst noch?: Geschirr/Gläserschrank im Wohn-/Esszimmer, Hauswirtschaftsraum, Keller
Was/wie wird gekocht? (Alltagsküche, Menüs, Snacks usw): Alltagsküche
Wie häufig wird gekocht?: (fast) täglich 1x warm
Wird alleine gekocht? Oder auch gemeinsam? Mit und für Gäste?: auch gemeinsam. Teilweise für Gäste.
Was stört an der bisherigen Küche und was soll die neue Küche unbedingt können? Warum?: Umzug
Welche Mülltrennung soll in der Küche vorgehalten werden?:
Steht schon ein Küchenhersteller fest oder wird bevorzugt?:
Nein
Steht schon ein Gerätehersteller fest oder wird bevorzugt?: Nein
Preisvorstellung (Budget): bis 15.000,-
 

Anhänge

  • entwurf.JPG
    entwurf.JPG
    85,9 KB · Aufrufe: 450
  • grundriss.JPG
    grundriss.JPG
    70,4 KB · Aufrufe: 414
  • visualisierung.JPG
    visualisierung.JPG
    101,4 KB · Aufrufe: 440
Hallöle, und erst ein Mal ganz herzlich :welcome: hier. Schöne Threaderöffnung und auch in den Alno hast Du dich schon eingearbeitet:top:.
Eine Bitte.... vom Grundriss der Küche eine Skizze mit Maßen hier einstellen, dann
können sich auch User ohne Alno einmischen.

WICHTIG:
Wir brauchen IMMER deine Alno-dateien mit den Endungen KPL und POS, sonst kann niemand mit deiner Planung arbeiten.

Die Planungskapatzitäten sind mal wieder angespannt, deshalb bitte nicht ungeduldig werden.
Bis dahin viel Spass im Forum und viel nützlichen Input wünscht
Samy
 
es fehlt ein gut vermasster Grundriss, mit Wasserposition usw. Das kann zB eine Handskisse sein.
 
Oh mei...

  • Bitte lege den ganzen Raum im Alno -Planer an, und möbliere ihn komplett.
  • Vermasster Grundriss
  • Schränke kann man aus diversen Gründen nicht direkt seitlich an die Wand klatschen, da benötigt man Blenden zwischen ca 2-5cm .. je nach Gegebenheiten auch mehr.
  • Kochinsel muss mindestens 90cm tief sein.
  • Durchgänge sollten nicht unter 80cm breit sein
  • Tote Ecken statt Eckschränken
  • Nie die Gewürze unter das Kochfeld, da wird es warm, und das mögen Gewürze nicht.
  • möglichst breite Schränke verplanen, die bieten mehr Stauraum und kosten zur Strafe auch noch weniger
 
Ich würde außerdem bei der kleinen Küche versuchen, den Stauraum zu optimieren, d.h. den 45er-Apotheker gegen einen Hochschrank mit Innenauszüge tauschen. Beim 2. passen mehr Stauebenen in der gleichen Höhe und man muss nicht den gesamten Schrankinhalt ausziehen, um an die Vorräte ranzukommen:
full

Was mich an einem Apotheker außerdem extrem stört ist, dass ich zur Seite treten muss, um an den Inhalt zu kommen.
 
hier nochmal ein Update, nachdem wir mit einem Küchenplaner gesprochen haben.

Die schränke sind jetzt so angelegt, wie vom Planer vorgeschlagen.
Einziger Unterschied: Das Spülbecken hat keine Abtropffläche. So kann diese Fläche als zusätzliche Arbeitsfläche genutzt werden.

Wir haben von links nach rechts:
- Hochschrank mit 50 oder 60cm Breite für Staubsauger, Putzmittel etc. (Muss in der Küche vorhanden sein).
- 60 er GS
- 60er Spüle mit Müll darunter
- 60er Schrank mit Auszügen
- 40er Apothekerschrank
- 60er Kühl-/Gefrierkombination

Oben:
3 Hängeschränke mit Türen. Ggf. können hier auch so quer liegende Schränke mit Klappe nach oben kommen.

Im Küchenblock:
Von vorne (also Küchenzeile im Rücken):
60 er Herd und Induktionskochfeld in der Mitte
links und rechts jeweils ein 50er Schrank mit Auszügen

Vorne im Küchenblock (also Wohnzimmer im Rücken):
2 60 er Schränke links und Rechts mit Türen
Mittig ein offenes Regal für Kochbücher etc.


Ums Eck bauen (wie in der ursprünglichen Fassung) geht aus Platzgründen/Anschlüsse nicht.


Im Moment steht auch die Idee im Raum statt einer Dunstabzugshaube so ein Bora -System einzubauen.
 

Anhänge

  • bild3.JPG
    bild3.JPG
    39,8 KB · Aufrufe: 314
  • angebot.KPL
    3,9 KB · Aufrufe: 228
  • angebot.POS
    7 KB · Aufrufe: 227
  • grundriss.jpg
    grundriss.jpg
    77,3 KB · Aufrufe: 311
Zuletzt bearbeitet:
Meine 5 Cent:

Deine beiden Pläne sind ungleich ausgerichtet und es fehlen Ansichten
der Planung. So machst du uns unnötig das Leben schwer.

Grundsätzlich solltest aufgrund der Maße in deinem Plan keine Küche
detailiert (!) planen und daher auch nicht bestellen. Das alles sind Rohbaumaße
und was du wirklich am Ende vorfindest kann schon mal 10 cm und mehr
davon abweichen. Dann muss umgeplant werden und das wird teuer oder
du planst jetzt mit überbreiten Blenden und verschenkst Raum.

Planlinks würde ich den Apothekerschrank weglassen. Die Dinger sind wirklich
zu teuer und relativ sinnfrei. Dahinter putzen geht kaum und die Mechaniken
sind ein Schwachpunkt.
Den Müll in der Spüle halte ich für eine veraltete und schlechte Lösung. Les mal
über das Konzept MUPL nach.

Meine Planung:
05er Blende
60er Hochschrank für Besen usw
60er GSP (hochgebaut und die Mikrowelle darüber) im Hochschrank
30er MUPL
60er Spüle mit 2 Auszügen (Mit Stahleinlegeboden - auch wenns extra kostet)
100er Auszugsschrank (maximale Breite!)
60er Hochschrank für KS
05er Blende
---
380 cm (laut vermutete Wandbreite)

Darüber:
100er Drehtürenschrank (2 x 50)
50er Glastürenschrank für Gläser usw
100er Drehtürenschrank (2 x 50)

Bei der Kochinsel wäre mir ein 60er Kochfeld zu klein. Daher ein 80er Schrank
und seitlich 2 x 40 cm oder auch 60er Schrank und 20er Auszug.
Der Abstand von 140 cm zur Zeile finde ich etwas zu viel.

Es wird spannend ob die Bora nicht doch deinen Finanzplan sprengt. Ich
plane für meine Küche ein Kochfeld von Neff und eine Haube mit ~ 900 qbm
Leistung für zusammen unter 1.500 €. Die billigste Bora liegt, soweit ich weiss,
deutlich über dem Dreifachen davon. Wohin willst du dabei die Luft leiten?
Nach unten durch die Decke wird bei einer Eigentumswohnung schwierig und
im Estrich abführen geht auch nicht .. bleibt nur sie dem Kochenden an die
Waden zu pusten. Der duftet dann und ist bei allen Hunden beliebt ;-)
 
Ich bin kein Fan von Kochfelder mitten im Raum und finde persönlich, dass Inseln dann so richtig spaß machen, wenn eine große zusammenhängende Fläche vorhanden ist, die man von drei Seiten erreichen kann. Das ist praktisch wenn mehrere Leute zusammen kochen oder wenn man Teige verarbeitet, Torten dekoriert oder auch was größeres bastelt. Da wäre ein Kochfeld mittendrin eher störend.

Ein Bora -Kochfeld fände ich noch störender, weil der Abzug auch noch die Kochfläche unterbricht, damit kann man die Fläche auch nicht einfach so abdecken und für die oben beschriebenen Aktivitäten verwenden.

Ein 60er Kochfeld wäre mir auch zu klein. Habt Ihr den Euch in Echt im Küchenstudio angeschaut?

Wäre bei Euch Wasser an der Insel möglich? Wenn ja, dann würde ich Kochfeld und Spüle tauschen.

Über Apotheker habe ich schon oben was geschrieben.

Der erwähnte mupl (Müll in einem Auszug direkt unter der Arbeitsplatte ) ist eine einfache und genial praktische Lösung, die man nicht mehr missen möchte.
 
@Schneeleopard:
- Der Raum ist nur ca. 350 cm breit. Geht also so nicht.
- Mit dem Apotheker den ich aktuell habe, bin ich eigentlich sehr zufrieden. Deswegen habe ich wieder einen verplant.
- Der Sinn/Vorteil von diesem MUPL erschließt sich mir nicht so ganz. Ich finde den Müll unter der Spüle eigentlich ganz gut untergebracht.
- Die 140cm Abstand Kochinsel - Zeile müssen sein, weil sonst die Balkontür nicht mehr aufgeht.

Das Bora -System war ein Vorschlag (der aktuell ausgearbeitet wird) von einem Küchenstudio . Schau ma mal, was die als Ergebnis liefern. Persönlich überzeugt mich das System noch nicht. Allerdings schaut so eine Dunstabzugshaube auch nicht soo toll aus.

@isabella: Wasser in der Insel ist nicht möglich
 
Naja, der Trick beim Müllbehälter direkt unterhalb der Arbeitsplatte ist, dass man z.B. Gemüsereste, Kartoffelschalen usw. direkt in dem Müllbehälter reinwischen kann: Die Treffsicherheit ist höher und man muss sich nicht bücken oder den Müll zum Eimer tragen. Ich schäle sogar z.B. Kartoffeln direkt in den Müllbehälter. Es ist einfach eine einfache aber wirkungsvolle Arbeitserleichterung.
 
es wäre nett, wenn der Etagengrundriss in pdf machbar wäre, damit man nicht mit der Lupe nach den Maßen suchen muss.

Hier noch ein anderer Vorschlag
An der Wand von planoben

5mm Blende
60er HS mit Kühlschrank
100er US mit 50er Spüle mittig eingebaut, damit rechts von der Spüle noch ca 85cm AP frei bleiben.
60er GSP
60er HS mit BO + Mikro
60er HS für Putzzeug
5mm Blende

2 x 80er OS

Die Insel ist 240cm + Wangen lang und 120cm tief.

Wegen dem Putzschrank ist leider ein hochgebauter GSP nicht möglich, ebenso ein MUPL hat keinen Platz. Es sei denn, man setzt die Spüle direkt neben den KS, da würde mir aber die Armfreiheit fehlen.

Frontloop21.JPG

Frontloop22.JPG Frontloop23.JPG
 

Anhänge

  • Frontloop_Evelin_PLAN2.KPL
    3,9 KB · Aufrufe: 208
  • Frontloop_Evelin_PLAN2.POS
    11,1 KB · Aufrufe: 210
es wäre nett, wenn der Etagengrundriss in pdf machbar wäre, damit man nicht mit der Lupe nach den Maßen suchen muss.

Hier noch ein anderer Vorschlag
An der Wand von planoben

5mm Blende
60er HS mit Kühlschrank
100er US mit 50er Spüle mittig eingebaut, damit rechts von der Spüle noch ca 85cm AP frei bleiben.
60er GSP
60er HS mit BO + Mikro
60er HS für Putzzeug
5mm Blende

2 x 80er OS

Die Insel ist 240cm + Wangen lang und 120cm tief.

Wegen dem Putzschrank ist leider ein hochgebauter GSP nicht möglich, ebenso ein MUPL hat keinen Platz. Es sei denn, man setzt die Spüle direkt neben den KS, da würde mir aber die Armfreiheit fehlen.

Anhang anzeigen 199095

Anhang anzeigen 199100 Anhang anzeigen 199097

Den Küchenblock quer reinstellen, ist durchaus eine denkbare Option. :top:

Backofen muss aber im Küchenblock bleiben, da dort der Anschluss ist. Sollte aber trotzdem gehen.

Damit kann der Hochschrank mit Backofen entfallen und durch einen normalen Unterschrank + Hängeschrank ersetzt werden. Die Mikrowelle steht dann einfach auf der Arbeitsfläche (was auch völlig ok so ist).
 
Evelins Entwurf ist schön und immerhin ist der Weg zwischen Insel und Zeile nicht mehr so riesig.

Wenn ihr den BO unterhalb der APL haben wollt, solltet Ihr schauen, dass das Bedienkonzept einigermaßen konfortabel von oben bedient werden kann. Die moderne Touch-Konzepte sind dafür konzipiert, dass man davor steht und sie auf Augenhöhe hat. Für den BO braucht man nur eine normale gesicherte Steckdose, müsste in einem Neubau kein Problem sein.

MW direkt auf der APL klaut Arbeitsfläche und fängt Staub - Was spricht gegen ein Fach?
 
MW auf der AP ist häßlich, altmodisch und passt nicht in das Konzept von modernen Küchen in einem Allraum.

Du meinst ist gibt keinen Strom an der Wandseite? der KS hat doch. Da würde ich mal mit den Bauherren reden. Ich kann mir nicht vorstellen, dass alle im Haus den BO unten mitten im Raum haben, ich würde mich wehemend dagegen wehren. Wie Isabella schon schreibt, man muss die Dinger in Augenhöhe haben.
 
Der Block müsste wahrscheinlich noch ein Stück zur Treppe. Der TE schrieb das die Balkontüre 140cm zum öffnen braucht.
Wenn der BO in der Insel bleibt, kann der GSP hochgebaut werden.
Aufteilung der Insel: 90-60-90 ( ist ja immer gut )
 
eine Tür, die 140cm breit ist?

wie schon geschrieben, ein leserliche Plan würde auch helfen

EDIT ich hatte die Tür genommen, die in seinem Plan war.
 
Die Tür hat einen Schwenkbereich von 120 cm. Gerade nochmal im Plan nachgemessen. Und dann halt noch so 10 - 20 cm Luft zur Insel, wenn die Tür vorbeischwenkt.

Strom für Backofen an der Wandseite ist nicht mehr möglich (Baufortschritt). Ob noch ein Hochschrank neben dem Kühlschrank Platz hat (da käme ja dann die Mikrowelle rein), muss ich prüfen. (Abstand Doppel-Steckdosen auf Arbeitsplatzhöhe könnte hier evtl. zu knapp sein).

Wobei ich immer noch der Meinung bin, dass GSP und BO nicht unbedingt hochbebaut sein müssen. Und auch eine eingebaute Mikrowelle sehe ich noch nicht als unbedingt notwendig.
 
Eigentlich würden 5 cm für den Schwenkbereich reichen ;-) .. Weder Tür noch Block ändern ständig ihre Position.

Und, wenn der Türflügel 120 cm ist, solche Türen sitzen ja meist nicht bündig mit der Wand, sondern sind rund 10 bis 20 cm Richtung Außen gesetzt. So sollte eigentlich Evelins Planung aufgehen.
 
Hi,

so sieht jetzt der eigentlich finale Entwurf vom Küchenplaner aus:

An der Wand hinten: Ein 60er Hochschrank für Putzmittel/Staubsauger etc. Daneben ein 30er Apotheker. Anschließend GSP und Spüle (Die Anschlüsse sind fest, so dass die die Schränke nach vorne versetzt werden, um dahinter die Leitungen zu führen). Dann noch ein 80er Schrank mit 1 Schub und 2 Auszügen. Rechts dann der Kühl-Gefrier-Schrank.
Unter der Spüle der Müll-Auszug.

Oben: 2 90er Hängeschränke mit Beleuchtung der APL an der Unterseite (3 Spots).

Küchenrückwand : Glas (lackierte Rückseite)

Im Küchenblock:
Den Küchenblock kann ich im Alno -Planer nicht so darstellen, wie er wirklich ist:
Wenn man in der Küche vor dem Küchenblock steht mit Blick auf den Esstisch:
Kochfeld an gezeichneter Stelle. Unter dem Kochfeld ein 100er Schrank mit 1 Schub, 2 Auszügen. Rechts daneben der Backofen (ist absichtlich so geplant).

Von Vorne (also Wohnzimmerseite des Küchenblocks):
3x45er Schränke mit Türen (Grifflos. Diese Lösung zum Antippen und dann geht die Tür auf).
Das Weinregal ist noch oben auf den Küchenblock raufgezogen und geht nach links den 1. 45er-Schrank entlang (Ist also so eine Art aufgesetztes "L"). Macht gleichzeitig Sichtschutz zum Kochfeld und bietet oben Platz für Gewürze etc (Vertiefung in dem Holz). Die Flaschen stellen den oberen Teil des "L" dar.

Ich hoffe, das konnte ich soweit verständlich beschreiben.

Ansonsten, die geplanten Geräte etc:

Küchenhersteller: Pronorm .
Modell: Proline128
Frontfarbe: Beton-optik
Sockel /Korpus: hellgrau

Elektrogeräte:
GSP: Siemens SX66P030EU
Backofen : Siemens HB674GBS1
Kochfeld: Siemens EH801FFB1E
Dunstabzug: Falmec E.ion Twister
Kühl-Gefrier-Schrank: Siemens KI86VVS30

APL: Nero Assoluto geflammt/gebürstet.

Preis lt. Küchenplaner: Ca. 17.000 €

Preis Elektrogeräte:
GSP: ca. 500 €
Backofen : ca. 650 €
Kochfeld: ca. 700 €
Dunstabzug: 1.900 €
Kühlschrank: 650 €
Gesamt ca.: 4.500 € ohne Einbau.


Passt das so und ist auch der Preis in einer angemessenen Region?

Checkliste zur Küchenplanung

Anzahl Personen im Haushalt: 2
Davon Kinder?:
Art des Gebäudes?:
Neu-/Umbau, Planänderungen nicht möglich
Körpergrössen aller Hauptbenutzer (wegen Arbeitshöhe ) in cm: 180
Brüstungshöhe des Fensters (in cm):
Fensterhöhe (in cm):
Raumhöhe in cm:
250
Heizung: Fussbodenheizung
Sanitäranschlüsse: variabel an aktueller Wand
Ausführung Kühlgerät: Integriert im Hochschrank (60cm)
Kühlgerät Größe: noch unbekannt
Ausführung Tiefkühl (TK)-Gerät: Im Kühlschrank ab 3 Schubladen unten
Dunstabzugshaube: Umluft
Backofen etc. hochgebaut?: Nein
Hochgebauter Geschirrspüler ?: Nein
Kochfeldart: Induktion
Kochfeldbreite ca. (in cm)?: 80
Spülenform: 1 Becken ohne Abtropffläche
Geplante Heißgeräte: Standmikrowelle, Backofen
Küchenstil: Modern
Sitzmöglichkeit in der Küche / im Küchenbereich: Gesonderter Tisch
Sitzmöglichkeit: Für wieviel Personen?: für 6 Personen
Sitzmöglichkeit: Tisch - wenn gesonderter Tisch oder offene Küche: Wird nach Bedarf neu gekauft
Gewünschte o. vorhandene Tischgröße:
Wofür soll der Sitzplatz in der Küche genutzt werden? Wie häufig?:
Welche Arbeitshöhe ist angedacht (in cm)?:
93
Was steht auf der Arbeitsplatte oder soll dort stehen?: Kaffeemaschine, Obstschale
Welche weiteren Küchenmaschinen müssen in der Küche untergebracht werden?: Wasserkocher, Toaster, Handrührgerät
Was soll in der Küche außer den Standards untergebracht werden?: Staubsauger/Wischer etc.
Welchen Stauraum gibt es sonst noch?: Geschirr/Gläserschrank im Wohn-/Esszimmer, Hauswirtschaftsraum, Keller
Was/wie wird gekocht? (Alltagsküche, Menüs, Snacks usw): Alles
Wie häufig wird gekocht?: (fast) täglich 1x warm
Wird alleine gekocht? Oder auch gemeinsam? Mit und für Gäste?: Zu zweit
Was stört an der bisherigen Küche und was soll die neue Küche unbedingt können? Warum?:
Welche Mülltrennung soll in der Küche vorgehalten werden?:
Altpapier, Biomüll, Gelber Sack Müll
Steht schon ein Küchenhersteller fest oder wird bevorzugt?:
Steht schon ein Gerätehersteller fest oder wird bevorzugt?:
Preisvorstellung (Budget):
bis 15.000,-
 

Anhänge

  • kueche_1.KPL
    3,9 KB · Aufrufe: 223
  • kueche_1.POS
    8,6 KB · Aufrufe: 212
  • Vollbild.JPG
    Vollbild.JPG
    143,1 KB · Aufrufe: 272
  • Vollbild2.JPG
    Vollbild2.JPG
    152,8 KB · Aufrufe: 262
  • grundriss2.pdf
    159,9 KB · Aufrufe: 253
Zuletzt bearbeitet:

Ähnliche Beiträge

Neff Hausgeräte Ballerina Küchen Blum Bewegungstechnologie Weibel - Intelligente Küchenlüftung

Neff Spezial

Blum Zonenplaner

Weibel Abluft-Tuning

Weibel Abluft-Tuning
Zurück
Oben