Neubau Tirol mit kleinem Budget

surdox

Mitglied
Beiträge
14
Hallo ich bräuchte eine Küche und habe auch schon konkrete Vorstellungen.
Ich habe bereits lange überlegt welche Schranksysteme für mich und meine Gewohnheiten am sinnvollsten wären, daher meine Vorstellungen, keine Ahnung ob das so funktioniert oder es kompletter Blödsinn ist.
Ich würde mich über jeden Tipp freuen, besonders wie ich es anstellen könnte die best mögliche Küche innerhalb meines Budgets zu bekommen.

Farben:
Fronten kaltes Weiß, matt
Arbeitsplatte Metallic Look mit rost (Nobilia metal art?) oder Dunkelgrau
Fußleiste Edelstahl oder Alu
Barbrett Eiche Natur

Auszüge und Türen sollten Blumotion oder ähnliches besitzen.
Griffe hätte ich gerne die horizontalen die von oben oder unten aufgeschraubt werden.

Vielen Dank!

Checkliste zur Küchenplanung

Anzahl Personen im Haushalt: 1
Davon Kinder?:
Art des Gebäudes?: Neu-/Umbau, Planänderungen nicht möglich
Körpergrössen aller Hauptbenutzer (wegen Arbeitshöhe ) in cm: 180
Brüstungshöhe des Fensters (in cm): 96
Fensterhöhe (in cm): 100
Raumhöhe in cm: mindestens 210 an Wand, ansteigend da Dachgeschoss
Heizung: Fussbodenheizung
Sanitäranschlüsse: fix
Ausführung Kühlgerät: Stand-Alone bis 60 cm Breite
Kühlgerät Größe: bis 178 cm Höhe
Ausführung Tiefkühl (TK)-Gerät: Nicht erforderlich bzw. steht woanders
Dunstabzugshaube: keine
Backofen etc. hochgebaut?: Ja
Hochgebauter Geschirrspüler ?: Nein
Kochfeldart: Ceran (herkömmlich)
Kochfeldbreite ca. (in cm)?: 60
Spülenform: 1,5 Becken mit Abtropffläche
Geplante Heißgeräte: Backofen
Küchenstil: Modern
Sitzmöglichkeit in der Küche / im Küchenbereich: Arbeitsplatte in Tischhöhe
Sitzmöglichkeit: Für wieviel Personen?: für 3 Personen
Sitzmöglichkeit: Tisch - wenn gesonderter Tisch oder offene Küche: Wird nach Bedarf neu gekauft
Gewünschte o. vorhandene Tischgröße:
Wofür soll der Sitzplatz in der Küche genutzt werden? Wie häufig?: frühstück, snacks
Welche Arbeitshöhe ist angedacht (in cm)?: 90-92cm
Was steht auf der Arbeitsplatte oder soll dort stehen?: Brotbehälter, Obstschale
Welche weiteren Küchenmaschinen müssen in der Küche untergebracht werden?: Handrührgerät
Was soll in der Küche außer den Standards untergebracht werden?: ALLE Vorräte, Geschirr komplett (nichts in Ess-/Wohnzimmer)
Welchen Stauraum gibt es sonst noch?: Speisekammer
Was/wie wird gekocht? (Alltagsküche, Menüs, Snacks usw): alles
Wie häufig wird gekocht?(fast) täglich 1x warm[/COLOR]
Wird alleine gekocht? Oder auch gemeinsam? Mit und für Gäste?: alleine
Was stört an der bisherigen Küche und was soll die neue Küche unbedingt können? Warum?:
Welche Mülltrennung soll in der Küche vorgehalten werden?: Biomüll, Restmüll
Steht schon ein Küchenhersteller fest oder wird bevorzugt?: Nein
Steht schon ein Gerätehersteller fest oder wird bevorzugt?: Keine Elektrogeräte benötigt, alles schon vorhanden.
Preisvorstellung (Budget): bis 5.000,-
 
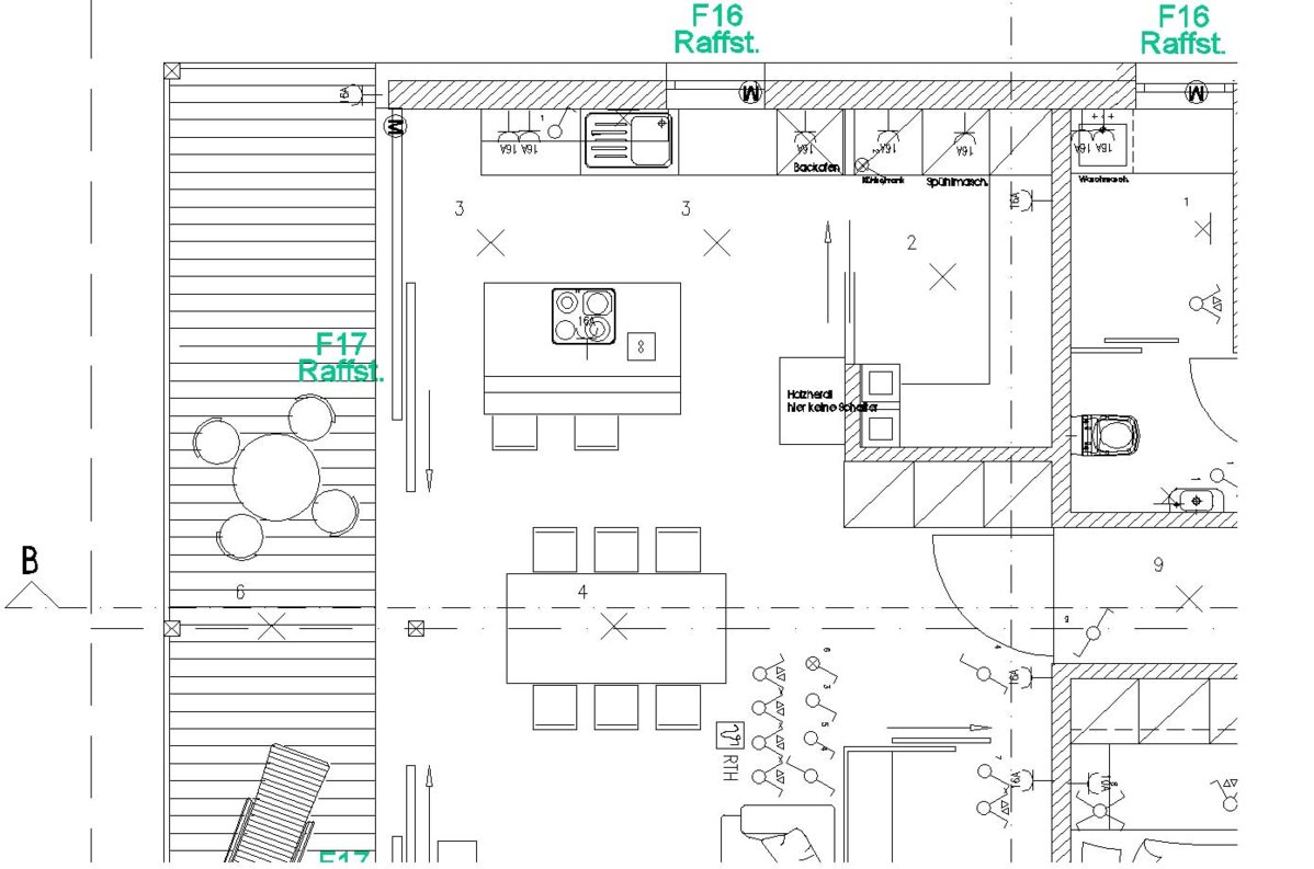
Hier der Grundriss. Im Alnoplaner habe ich die benötigten Teile nicht gefunden. (breite Schubladen, Schränke mit 40cm Tiefe)
 

Anhänge

  • Grundriss.jpg
    Grundriss.jpg
    79,1 KB · Aufrufe: 167
Hi surdox,
willkommen im Forum.

Du kannst alle Schränke und Gegenstände im Alno Planer mit der F4 Taste bezüglich der Maße bearbeiten.
Dein Plan von der Küche ist leider nicht komplett vermaßt und der Geschossgrundriss fehlt. Außerdem wäre ein Alno Leergrundriss vom gesamten Raum gut (Screenshot vom Grundriss und kpl. und pos. Datei dazu)
Wo kommt der Kühlschrank hin?
Vielleicht noch einen MUPL einplanen, das ist ein Müllausszug der direkt unter der Arbeitsplatte ist, dieser ermöglicht das einfache reinwischen von Schnippelabfällen.
Wird kein Geschirrspüler benötigt oder hab ich den übersehen?
Was und wieviel soll denn in der Küche gekocht werden?
 
Hier der Auszug vom aktuellen Plan, ich habe leider keinen mit den Maßen, jene die in meiner Zeichnung drinnen sind habe ich selbst vor Ort rausgemessen. Das Maß wo die Schiebetür genau kommt habe ich noch nicht, aber mit den Schränken wie eingezeichnet bleiben ca. 30-40cm bis zur Bodenschine. Die höhe der eingezeichneten Steckdosen und Schalter ist 1,06cm vom fertigen Boden.

Geschirrspüler kommt in die Speise zum Kühlschrank wegen dem Lärm.
Gekocht werden soll täglich abends, und Samstag, Sonntag auch zu mittag.


Plan.jpg
 
Wird das 1,5 Becken plus Abtropfe wirklich benötigt oder kommt das eher daher hatten wir schon immer machen wir auch weiter so? Die meisten hier haben sich für ein Becken ohne Abtropffläche entschieden und fühlen sich damit Pudel wohl. Was ich ein bisschen kritisch sehe ist der Abstand zwischen Spüle (Müll) und Geschirrspüler .
Den breiten Spülenschrank kannst du definitiv verschmälern und dafür einen MUPL noch daneben setzen.
Dunstabzughaube definitiv nicht gewünscht? Weil der Fettwrasen sich doch überall in so einem offenen Raum niederschlägt sollte das eigentlich obligatorisch sein, leider bei einer Kochinsel ziemlich teuer.
 
Hier die Alno Dateien, ich hoffe ich habs richtig gemacht.

Der Geschirrspüler ist so gewünscht da ich bis jetzt auch nie einen hatte und ich für mich alleine immer nur mit der Hand spüle, die 3 mal im Jahr kann ich auch ein bisschen weiter gehen.
Die Abtropfe ist gewünscht weil ich die immer benutze um das Abgespülte trocknen zu lassen bzw. Meine Tasse und das Schneidbrett stehen da immer.
Dunstabzugshaube ist keine gewünscht, da riesige Schiebetüren und genügend Fenster zum quer-lüften. Falls es doch eine braucht habe ich gesehen das der Schwede sowas zu halbwegs humanen Preisen hat.
Ich hoffe blos, dass sich das Budget halten lässt.
Hier noch ein Link zu Griffen wie sie mir gefallen würden: Griffleiste MALIBU CURVE Länge 245 mm, Aluminium Edelstahl Effekt: Amazon.de: Baumarkt
 

Anhänge

  • PLAN1.KPL
    3,9 KB · Aufrufe: 171
  • PLAN1.POS
    4,1 KB · Aufrufe: 164
Zuletzt bearbeitet:
Hallo Surdox und herzlich willkommen im Forum.

Juhu, endlich mal eine Speise, die nach meinem Geschmack ist.

Sei so gut und vermaße den Etagengrundriss, dh Küche und Speise.
 
Viele Wünsche fürs Budget ;-).

Sind die Elektrogeräte mit im Budget, auch die im HWR ?

Solche Griffe bekommst du im Studio nicht für 12€ pro Stück, und du hast circa 20 Stück davon.

Edelstahlsockel gibt es auch nicht umsonst. Evtl einen dunkelgrauen Sockel wie die Arbeitsplatte wählen?

Als Frontmaterial kommt wohl nur Melaminharz-beschichtet, evtl Schichtstoff in Frage. Die sind beide robust und in den günstigeren Preisklassen. Folienfront kann auch günstig sein und besticht optisch durch die fugenlosen Kanten, aber Folie hat den Nachteil, dass sie sich nach ein paar Jahren irreparabel von der Front lösen kann und der fällige Frontentausch ist teuer.
 
Viele Wünsche fürs Budget ;-).
Sind die Elektrogeräte mit im Budget, auch die im HWR ?
Nein, die Elektrogeräte sind komplett vorhanden wurden vor 2 Jahren erneuert und beim Abbruch ausgebaut und gelagert. Ich brauche nur die Möbelteile und die Spüle mit Armatur.

Solche Griffe bekommst du im Studio nicht für 12€ pro Stück, und du hast circa 20 Stück davon.
Der Link war nur ein Beispiel, mir gefällt die Optik, falls sonst nirgends mehr was gespart werden kann müssen halt die Griffe dran glauben.

Edelstahlsockel gibt es auch nicht umsonst. Evtl einen dunkelgrauen Sockel wie die Arbeitsplatte wählen?
Der Sockel muss nicht in Edelstahl sein, ich dachte mir nur es passt zu den Fliesen.
cacao-cpy-2.jpg

Als Frontmaterial kommt wohl nur Melaminharz-beschichtet, evtl Schichtstoff in Frage. Die sind beide robust und in den günstigeren Preisklassen. Folienfront kann auch günstig sein und besticht optisch durch die fugenlosen Kanten, aber Folie hat den Nachteil, dass sie sich nach ein paar Jahren irreparabel von der Front lösen kann und der fällige Frontentausch ist teuer.
Welches Material ist denn z.B. das Nobilia Premiumweiß mit Laser-kante?
 
Scheint Melaminharz zu sein, ist in Preisgruppe 2, und einer unserer Profis schreibt hier: Laser ist matt, günstig und kaum kaputt zu kriegen. Meine Lieblingsfront bei nobilia .

Also :2daumenhoch:.
 
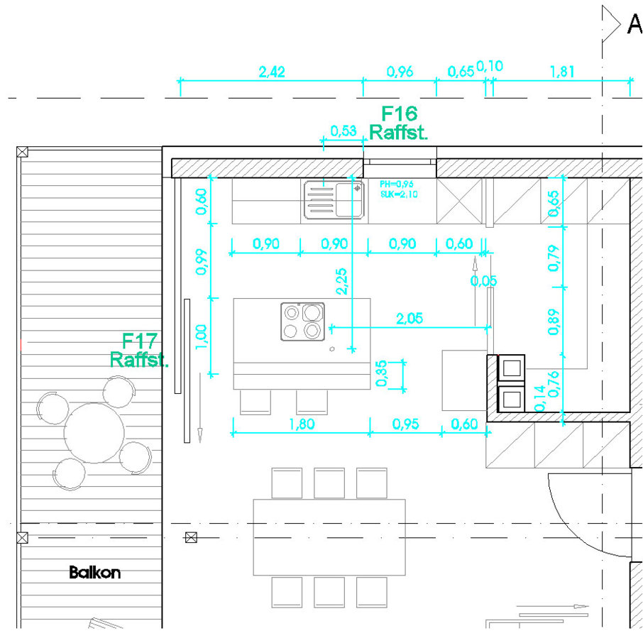
Hier die genauen Maße
 

Anhänge

  • Grundriss_bem.jpg
    Grundriss_bem.jpg
    116,2 KB · Aufrufe: 154
Hallo, ich habe nun 4 Angebote für die Küche eingeholt.
Die schränke wie laut meinem plan, nur die Hinterseite der Kücheninsel 46cm tief statt 40cm, da bei Nobilia das scheinbar ohne Aufpreis geht.

Fronten: Laser Premiumweiß 411
Korpuse: Premiumweiß
Arbeitsplatte : Dekor Metal Art
Fußleisten: Edelstahloptik
Griffe: Edelstahlfarbig 350
Spüle: Schöck 100cm schwarz mit Restebecken und Abtropfe
Armatur: mit Ausziehbrause
Barplatte: Eiche San Remo
Montagetermin: 1. Juliwoche 2015

Bei der Planung ist folgendes Problem aufgetaucht:
Die Kücheninsel ist 1800+2xSeitenwange, die Barplatte gibt es nur bis maximal 1800. Folglich wurde diese auf 1700 gekürzt und mittig Platziert damit sie rechts und links 5cm schmäler ist als die Kücheninsel. - Ist das eine gute Lösung?

Die angebotenen Preise sind:
Möbelkette A: 5.100€ - 50% Anzahlung, Rest bei Montage
Küchenstudio : 5.000€ - 50% Anzahlung, 30% 1 Woche vor Montage, Rest bei Montage
Möbelkette B (gleicher Konzern wie A): 4.800€ - 50% Anzahlung, 25% 1 Woche vor Montage, Rest bei Montage
Möbelkette C: 4.700€ - 35% Anzahlung, Rest bei Montage.

Sind diese Preise so okay, habt ihr Verbesserungsvorschläge?
 
Ich finde die Preise okay.

Ich würde den einen Schrank der Insel nur 80cm statt 90cm machen, plus Wangen macht das 180cm, Barplatte passt.
Den leichten Symmetrieunterschied siehst du eh nicht von der Ferne, da du so weit gar nicht wegstehen kannst.
 
Du glaubst nicht, dass man den Symmetrieunterschied vom Wohnraum aus an den 4 Türen unter der Barplatte erkennen kann wenn 2 40cm und 2 45 cm breit sind?
 
Ahhh, primär habe ich natürlich an die Seite zur Küche hin gedacht, die mit den Auszügen.
Zum WoZi hin könntest du außen zwei x 40cm nehmen, und in der mitte einen 90er mit zwei Türen.
Aber das stimmt schon, dann wird es komplizierter, schlechter zu befüllen, teurer.
 
Neff Hausgeräte Ballerina Küchen Blum Bewegungstechnologie Weibel - Intelligente Küchenlüftung

Neff Spezial

Blum Zonenplaner

Weibel Abluft-Tuning

Weibel Abluft-Tuning
Zurück
Oben