Küchenumzugsplanung für Neubau

littlesheep

Mitglied
Beiträge
6
Hallo, unsere bestehende Küche soll für unseren Neubau erweitert werden. Geplant ist, die vorhandene Küche möglichst sinnvoll und preiswert zu ergänzen.
Eine grobe Vorplanung ist durch den Schreiner erfolgt, der uns unsere bisherige Küche erstellt hat, anhand dieser wurden die Elektro- und Sanitärinstallation durchgeführt. Evtl kann man hier noch auf dem Boden unter den Unterschränken etwas schieben. Beabsichtigt ist entweder durch diesen Schreiner (entfernte Verwandtschaft) die Küche erweitern zu lassen, oder eben versuchen mit einem anderen Hersteller zu kombinieren, evtl. IKEA

Bei Plan 1 habe ich unsere bestehende Küche im Treppenhaus aufgebaut, zum rüberschubsen;-)
Die zwei Varianten sind meine bisherigen eigenen Vorstellungen,die zweite Frontfarbe wären dann die neu anzuschaffenden Teile.
ad Induktions-Kochfeld T44T90N0 Autarkes Elektro-Kochfeld mit integrierten Kochstellenreglern oder Alternative

und eine Abzugshaube.
Backofen und Spülmaschine wird weAuf jeden Fall neu angeschafft wird ein Kühlschrank wie z.B. der hier
KBes 4260 Premium BioFresh

Ebenso neu benötigt wird ein neues Induktions-Kochfeld
Neff - TT 4490 N Twist Pad.

Spülmaschine hochgebaut wäre wünschenswert, aber bei der Halbinsellösung habe ich keine Idee wie das umgesetzt werden kann.

Eckschrank mit Rondell ist (leider) vorhanden, meine Frau findet das sooo toll, ich nicht.
schon bezahlt---> wird irgendwie integriert.
ebenso wünscht sie einen Apothekerschrank , es wird halt ein Schrank mit Auszügen werden.

so, vielen Dank erstmal.

Michael


Wie gross sind die anderen Erwachsenen im Haushalt? Wie neu sind die Kiddies?

Antwort==>181cm ; 11, 8, 5 und 3 Jahre

Welche Arbeitshöhe ist angedacht? (Faustregel = abgewinkelter Ellenbogen ./. 15cm; bzw. nicht höher als Oberkante Hüftknochen; gemessen mit der im Haus üblicherweise getragenen Fussbekleidung)
Antwort==>momentan sind es 95cm, mir eher zu nieder, meiner Frau eher zu hoch

Was steht auf der APL rum? (Brotkorb, Obstschale, Messerblock, Wasserkocher, Kaffeemaschine, ....)
Antwort==>Brotkorb, Obstschale, Messerblock, Wasserkocher, Kaffeevollautomat, Thermomix, und Kruscht.

Welche Küchenmaschinen habt ihr in Gebrauch? (Mixer, Blender, Küchenmaschine, Kaffeevollautomat, Eismaschine ... )
Antwort==>Kaffevollautomat,Stab-Mixer, Toaster, Küchenmaschine, Waffeleisen,

Was soll in der Küche untergebracht werden? (Vorräte, Geschirr, Putzsachen, Bügelbrett, Getränkekisten, ..)
Antwort==>Vorräte, Geschirr, Töpfe, Tupperware,
keine Putzsachen

Was habt ihr sonst noch an Stauräumen? (Speisekammer, Hauswirtschaftsraum, Keller, Abseiten, Geschirrschrank im Esszimmer)
Antwort==>Keller,HWR

evtl. Geschirrschrank im Esszimmer

Wie häufig und aufwändig wird bei euch gekocht?
Antwort==>täglich
Kocht ihr allein oder gerne gemeinsam? Für und mit Gästen?
Antwort==>meist allein, manchmal zu zweit, mit Kind, mit Gästen eher selten.

Wie gross ist der Esstisch bzw. soll er werden?
Antwort==>mindestens 240x100cm

Was stört euch an der bisherigen Küche und was soll die neue Küche unbedingt können? Warum?
Antwort==>zu klein...

Wofür soll der Sitzplatz in der Küche genutzt werden? Wie häufig?
Antwort==>kein sitzplatz

_______________________________________________

Checkliste zur Küchenplanung von littlesheep

Anzahl Personen im Haushalt : 6
Davon Kinder? : 4
Körpergrösse des Hauptbenutzers (wegen Arbeitshöhe) in cm : 171
Hochgebauter Geschirrspüler ? : wenn möglich
Hochgebauter Backofen ? : Ja
Art des Gebäudes? : Neu-/Umbau, Planänderungen nicht möglich
Sanitäranschlüsse : fix
Dunstabzugshaube? : Abluft
Sitzmöglichkeit in der Küche erforderlich? : nein
Gefriermöglichkeit? : nein
Ausführung Kühlgerät? : Side by Side/Standalone
Küchenstil? : modern
Kochfeldbreite ca. (in cm)? : 90
Kochfeldart? : Induktion
Spülenform: : noch nicht festgelegt
Raumhöhe in cm: : 251 bis Holzbalken(23,5cm)
Brüstungshöhe des Fensters (in cm) : 149
Fensterhöhe (in cm) : 69
Preisvorstellung (Budget) :
 

Anhänge

  • Variante2.KPL
    4,1 KB · Aufrufe: 245
  • Variante1.KPL
    4,1 KB · Aufrufe: 233
  • Variante1.POS
    8,3 KB · Aufrufe: 235
  • Variante2.POS
    7,8 KB · Aufrufe: 236
  • PLAN1.POS
    7,1 KB · Aufrufe: 240
  • PLAN1.KPL
    4,1 KB · Aufrufe: 234
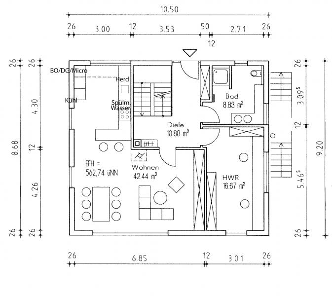
  • BauplanKueche.jpg
    BauplanKueche.jpg
    49 KB · Aufrufe: 244
Zuletzt bearbeitet von einem Moderator:
AW: Küchenumzugsplanung für Neubau

Hallo Michael!

Willkommen im Forum! :welcome:
Könntest du bitte auch Bilder deiner Planung anhängen? Nicht jeder hier hat den Alnoplaner und wüßte trotzdem eine Lösung wenn er es sehen könnte.

LG
Sabine
 
AW: Küchenumzugsplanung für Neubau

Ok, hier erst mal die leere Küche + Bestandsküche, auf dem 100er Unterschrank fehlt noch die Kochstelle, die beiden äußeren Hängeschränke sind ein offenes Regal aus Multiplex
 

Anhänge

  • Küche leer2.jpg
    Küche leer2.jpg
    43,6 KB · Aufrufe: 227
  • Küche leer1.jpg
    Küche leer1.jpg
    43,4 KB · Aufrufe: 221
  • Bestandsküche.jpg
    Bestandsküche.jpg
    92,3 KB · Aufrufe: 233
AW: Küchenumzugsplanung für Neubau

nun Variante 1
 

Anhänge

  • Variante1-1.jpg
    Variante1-1.jpg
    40,5 KB · Aufrufe: 226
  • Variante1-2.jpg
    Variante1-2.jpg
    44,3 KB · Aufrufe: 233
  • Variante1-3.jpg
    Variante1-3.jpg
    53,6 KB · Aufrufe: 220
AW: Küchenumzugsplanung für Neubau

und Variante 2 rote Front = neu grau= Bestand
jetzt hab ich noch ne 3. Variante, hier müsste ich allerdings noch dem Sanitärinstallateur klären, ob die Spüle zum Fenster kann, elektrisch wäre auch der Tausch Backofen /Spüma machbar.
 

Anhänge

  • Variante2-2.jpg
    Variante2-2.jpg
    39,3 KB · Aufrufe: 222
  • Variante2-1.jpg
    Variante2-1.jpg
    51,9 KB · Aufrufe: 222
  • Variante3-1.jpg
    Variante3-1.jpg
    46,9 KB · Aufrufe: 217
  • Variante3-2.jpg
    Variante3-2.jpg
    51,6 KB · Aufrufe: 213
Zuletzt bearbeitet:
AW: Küchenumzugsplanung für Neubau

Hallo Michael,
sehr schön, was du da schon alles zusammengetragen hast.

Ich hätte trotzdem ;-) noch Fragen:

- Wie hoch ist der Korpus der bestehenden Unterschränke?
- Die vorh. GSP ist ein vollintegrierbare GSP?
- Der vorhandene Hochschrank , nicht Backofen , da war bisher was drin und was soll jetzt rein?

Zum Wasseranschluß und evtl. Verlegung. Habt ihr einen Keller untendrunter? Verlegung könnte einfacher sein. Allerdings .. habt ihr Fußbodenheizung? Weißt du, ob die in der Küche bis an die Wandränder verlegt ist?

Zu den Arbeitshöhen ... evtl. liessen sich ja 2 unterschiedlich hohe Bereiche realisieren. Um die Spüle höher, zum Schnippeln auch für dich. Ums Kochfeld niedriger, zum Schnippeln eher für deine Frau.

Könntet ihr mal eure jeweilig idealen Arbeitshöhen ermitteln?
ARBEITSHÖHE ermitteln
3 Methoden haben sich da etabliert:
- Ellbogen abwinkeln und von dort 15 cm runtermessen
- Höhe Beckenknochen messen
- z. B. Bügelbrett nehmen und in verschiedenen Höhen Probeschnippeln und messen, wenn es einem am bequemsten erscheint.
Idealerweise ergeben alle 3 Methoden ca. denselben Wert
 
AW: Küchenumzugsplanung für Neubau

Hallo Kerstin, Hallo Sabine,
Dankeschön für eure Antworten.

Korpushöhe beträgt 76 cm
Vorhandener Geschirrspüler ist vollintegrierbar und ich möchte auch in Zukunft nichts anderes. Da fällt mir auf, bei den Varianten mit hochgebautem GSP hab ich den bestehenden nicht rausgenommen, der ist da als 60er Schrank verbaut...

vorhandene Hochschränke in einem ist momentan der Backofen und die Tuppersammlung,
im anderen ist jetzt der Kühlschrank integriert, der fliegt raus weil zu klein, wird umgebaut zu Stauraum mit Einlegefächern. Und im Fach überm Kühlschrank sind momentan Waffeleisen, Handrührer, Stabmixer, Toaster, Iso-Flaschen, Trinkflaschen...

Das ganze Geschirr ist jetzt in einem extra Schrank mehr gestopft als untergebracht, dies sollte zusätzlich in der Küche untergebracht werden(Halbinsel), oder alternativ in Schränken zwischen den beiden Terassentüren. Auch lagern wir momentan einige Vorräte auf die Bühnentreppe aus.

Zur Arbeitshöhe : Meine Frau findet die vorhandenen 95 gut, 93-94 wären Optimal, bei mir wären eher 96-97 optimal.

Meine Frau hat sich jetzt meine Varianten angeschaut, und möchte auf jeden Fall die Halbinsel haben, wegen der schön großen Arbeitsfläche und der räumlichen Trennung des Küchenbereiches vom restlichen Zimmer.

Zum Wasseranschluss, FBH ist in der Küche an den Rändern ausgespart man könnte also über den Keller gehn, klär ich aber noch mit meinem befreundeten Sanitär-Inst., den treffe ich am Sonntag.

Gruß Michael
 
AW: Küchenumzugsplanung für Neubau

Michael, schon mal als Hinweis vorneweg. Euren ehemaligen Kühlschrankumbau ... wählt Innenauszüge im Bereich bis ca. 150 cm Höhe. Da können dann z. B. auch Tellerstapel etc. stehen. Entweder kann euch euer Schreiner da etwas bauen oder ihr prüft mal, ob ihr Teile aus dem Ikea -Rationell-Programm verwenden könnt.

Die Ikeakorpusse sind übrigens nur 70 cm hoch.
 
AW: Küchenumzugsplanung für Neubau

Hallo Michael,
mal eine andere Variante mit Halbinsel, bei der der eigentliche Arbeitsbereich insgesamt eng beieinander ist.

Ich würde ja den Schreiner zur Ergänzung beauftragen .. die Halbinsel könnte dann z. B. aus 2x70er Elementen in Übertiefe (70 bis 75 cm ) sein.

GSP nur leicht erhöht .. die neuen Element wären ein Sockelunterbau mit Schublade und Schubladenfront in Auszugshöhe um den Fuß der GSP zu verkleiden sowie rechts und links passende Wangen.

Wenn man den neuen Kühlschrankumbau mit Innenauszügen und oben Fachböden ausstattet, dann kann er für Vorräte/Geschirr genutzt werden:
-

Generell finde ich einen Solokühlschrank neben einem Block von Hochschränken irgendwie nicht so schön ;-) ... deshalb habe ich ihn jetzt mal zwischen die Schränke gepackt.

Der Bereich vor der Terrassentür bleibt frei .. bei größerem Gästeaufkommen kann der Tisch dann problemlos verlängert werden.

EDIT:
Was mir selbst nicht so gefällt ... die Hochschranklinie versperrt ein wenig den Blick zum Fenster. Andererseits hast du ja bisher dort auch Hängeschränke hingehängt ... hmmm.
 

Anhänge

  • kf_littlesheep_20110121_Var1_Ansicht1.jpg
    kf_littlesheep_20110121_Var1_Ansicht1.jpg
    139,5 KB · Aufrufe: 216
  • kf_littlesheep_20110121_Var1_Ansicht2.jpg
    kf_littlesheep_20110121_Var1_Ansicht2.jpg
    110,9 KB · Aufrufe: 232
  • kf_littlesheep_20110121_Var1_Ansicht3.jpg
    kf_littlesheep_20110121_Var1_Ansicht3.jpg
    105,4 KB · Aufrufe: 225
  • kf_littlesheep_20110121_Var1_Ansicht5.jpg
    kf_littlesheep_20110121_Var1_Ansicht5.jpg
    130,6 KB · Aufrufe: 223
  • kf_littlesheep_20110121_Var1_Grundrissgesamt.jpg
    kf_littlesheep_20110121_Var1_Grundrissgesamt.jpg
    59,7 KB · Aufrufe: 220
  • kf_littlesheep_20110121_Var1.kpl
    4,1 KB · Aufrufe: 226
  • kf_littlesheep_20110121_Var1_Grundriss.jpg
    kf_littlesheep_20110121_Var1_Grundriss.jpg
    58,2 KB · Aufrufe: 212
  • kf_littlesheep_20110121_Var1_Ansicht4.jpg
    kf_littlesheep_20110121_Var1_Ansicht4.jpg
    143,9 KB · Aufrufe: 213
  • kf_littlesheep_20110121_Var1.POS
    9,1 KB · Aufrufe: 235
AW: Küchenumzugsplanung für Neubau

Vielen Dank Kerstin für deine Hilfe, dass mit den Innenauszügen werde ich so durchführen, damit erschlage ich ja auch gleich das APO-Problem.

Die Spüle ist am Fenster wohl wirklich besser aufgehoben.
Die Umstellung von Kühlschrank und Backofen erfordert doch einige Änderungen an der Elekroinstallation, hier muss ich mir noch einige Gedanken machen.

Gute Anstöße hast du mir gegeben, jetzt will ich das alles nochmals sortieren :-)
 

Ähnliche Beiträge

Neff Hausgeräte Ballerina Küchen Blum Bewegungstechnologie Weibel - Intelligente Küchenlüftung

Neff Spezial

Blum Zonenplaner

Weibel Abluft-Tuning

Weibel Abluft-Tuning
Zurück
Oben