Fertig mit Bildern Küchenplanung Neubau

Ich würd´s nicht machen. Das sieht echt seltsam aus. Je nach Haube ist das auch eine elende
Frickelei beim Putzen der DAH, wenn direkt ein Hängeschrank daneben ist.
Aber Du bist ja schön groß. :2daumenhoch:

Aber ich überlege gerade an @Land_Fraus Idee mit dem US in der Nische rum.
Wie die jetzt wirklich aussieht, kannst Du das mal aufzeichnen?
Wegen der Mindertiefe habe ich da nur Regale drüber gezeichnet.
Aber wenn Du den wenigstens in 60er Tiefe nehmen könntest, würden darüber dann auch Hängeschränke passen.

Wenn da keine Wand ist, fände ich es nicht schlimm, wenn so ca. 10 cm hervorgucken. Nur mehr würde ich nicht machen.

Du musst ja auch Dein Budget beim KFB im Auge behalten.
 
Ich würd´s nicht machen. Das sieht echt seltsam aus. Je nach Haube ist das auch eine elende
Frickelei beim Putzen der DAH, wenn direkt ein Hängeschrank daneben ist.
Aber Du bist ja schön groß. :2daumenhoch:

Aber ich überlege gerade an @Land_Fraus Idee mit dem US in der Nische rum.
Wie die jetzt wirklich aussieht, kannst Du das mal aufzeichnen?
Wegen der Mindertiefe habe ich da nur Regale drüber gezeichnet.
Aber wenn Du den wenigstens in 60er Tiefe nehmen könntest, würden darüber dann auch Hängeschränke passen.

Wenn da keine Wand ist, fände ich es nicht schlimm, wenn so ca. 10 cm hervorgucken. Nur mehr würde ich nicht machen.

Du musst ja auch Dein Budget beim KFB im Auge behalten.
Hi pewu,
das ist keine Nische, dahinter beginnt der Wohnbereich. Der 90-er US steht also frei. Was ich mir nur grade überlege ist , ob er zwingend nur bis zur Ecke gehen soll, oder ein Stückchen drüber hinaus und somit mit dem 50-er US „überlappt“, zb 10cm oder so...?
 
Wie habt Ihr, Dein KFB und Du, denn die Rückseite gestalten wollen?
 
und wenn ich den freistehenden US um 180° drehe und dafür die Zeile mit dem Herd um ca. 40-50cm verlängere. Dann hätte man noch ca. 80cm zum reingehen, so breit wär eine Tür ja auch. S.Bild.
oder wäre das dann zu voll?
1607347327811.jpg

1607347368884.jpg
 
Nee, ich bin raus hier.
Das ist doch "Versteckte Kamera" für gutmütige User-Schafe hier, gebt es zu.

Na, hamwa mal gelacht, gut. :rofl:
 
Nee, ich bin raus hier.
Das ist doch "Versteckte Kamera" für gutmütige User-Schafe hier, gebt es zu.

Na, hamwa mal gelacht, gut. :rofl:
hmm wieso?
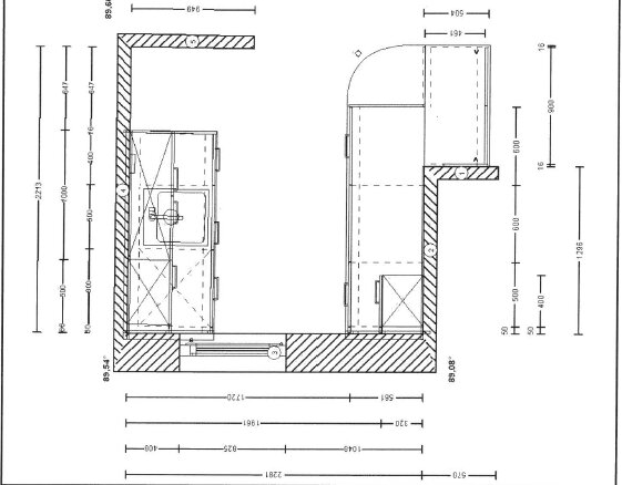
dahinter ist keine Wand, das hab ich doch gesagt, das kann man leider im nolte -küchenplaner nicht darstellen. Nochmal der Grundriss im Anhang.
 

Anhänge

  • 191024_5.3.2_Grundriss_Zeichnung.jpg
    191024_5.3.2_Grundriss_Zeichnung.jpg
    126,2 KB · Aufrufe: 144
Problem ist in diesem Thread, dass die Darstellungen alle unterschiedlich und möglichst an der Realität vorbei sind. Nicht existierende Wände, randomisierte Wasseranschlüsse, zig untaugliche Planungssoftware und keine einzige sinnvolle Grundrissansicht der Planungen.
Wenn Du mit dem Alno nicht kannst/willst, warum nimmst Du nicht Stift, Zettel und Lineal und zeichnest den Grundriss skaliert, dann kopierst ihn 10x und skizzierst die Möblierung oder schneidest skalierte Möbelschablonen, die Du herumschiebst und fotografierst? Das wäre einfacher für Dich und für uns.
 
Hallo zusammen,
nachdem die Küche beim Höffner nun endlich bestellt ist, möchte ich euch allen nochmal ein herzliches Dankeschön aussprechen. Ihr habt mir wirklich weitergeholfen, vor allem pewu!
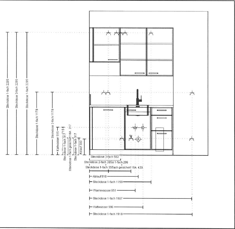
Für die etwas chaotische Darstellung möchte ich mich entschuldigen, leider habe ich keinen Alno -Küchenplaner und die Planung habe ich immer zwischen Tür und Angel gemacht. Ist sicher verbesserungswürdig.
Für die, die es interessiert, anbei die finale Planung.
Ich würde mich auch gerne erkenntlich zeigen, wo kann man spenden?

VG
pero
1608108676966.jpg
 
Ach, das ist ja toll, dass Du jetzt bestellt hast! Bist Du denn mit dem Budget hingekommen?
Vielen Dank fürs Blümchen. :top:

Und guck mal: Spendenkonto. Ich könnt auch noch mal....

Wir würden uns gaaaanz doll auf Fotos freuen! :2daumenhoch:
 
Das ist doch super! Und du sparst dir das Verlegen der Wasseranschlüsse, oder?
 
Ach, das ist ja toll, dass Du jetzt bestellt hast! Bist Du denn mit dem Budget hingekommen?
Vielen Dank fürs Blümchen. :top:

Und guck mal: Spendenkonto. Ich könnt auch noch mal....

Wir würden uns gaaaanz doll auf Fotos freuen! :2daumenhoch:
Ging so, hab jetzt auf 5400€ verhandelt und nen 400€-Warengutschein :think:
Ohne Geräte natürlich...

Fotos mach ich wenn sie da ist :-)
 
Das ist doch super! Und du sparst dir das Verlegen der Wasseranschlüsse, oder?
Leider nicht. Aber ist nicht weiter schlimm, bezahlt ist das eh schon und jetzt ist es auch nicht so schlimm, wenn man die AP ein Stück vorzieht. Mit der Ecklösung wär das halt total blöd gewesen, weil die ganze Fensterseite mitgewandert wäre...

1608110832301.jpg
 
Hallo zusammen,

wie versprochen Fotos von der Küche. Abdeckung vom GSP ist inzwischen auch da und die Mikro hängt auch drin :-)

VG
pero87
 

Anhänge

  • IMG_1796.jpeg
    IMG_1796.jpeg
    118,8 KB · Aufrufe: 128
  • IMG_1738 (2).jpeg
    IMG_1738 (2).jpeg
    69,6 KB · Aufrufe: 130

Ähnliche Beiträge

Neff Hausgeräte Ballerina Küchen Blum Bewegungstechnologie Weibel - Intelligente Küchenlüftung

Neff Spezial

Blum Zonenplaner

Weibel Abluft-Tuning

Weibel Abluft-Tuning
Zurück
Oben