puerbe23
Mitglied
- Beiträge
- 1
Küchenplanung Neubau - Speis Ja/Nein?
Hallo ihr Lieben,
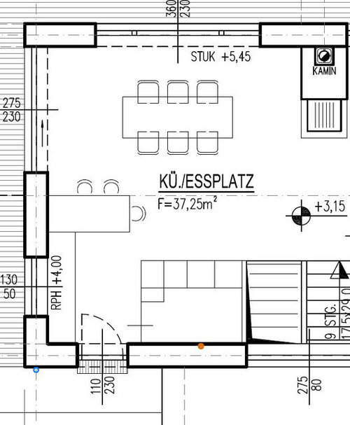
ich brauche eure Hilfe. Diesmal geht es um die Küchenplanung, welche wir nun auch bald finalisieren möchten.
Die Idee der aktuellen Küche stammt von mir und wurde sowohl von unserem Architekten, als auch vom aktuellen Küchenstudio so übernommen.
Uns war es grundsätzlich sehr wichtig eine Speisekammer unterzubringen, auch wenn sie nur rund 2m2 haben wird. Wir sind es einfach von der jetzigen Wohnsituation so gewohnt. Unterbringen wollen wir vor allem: Getränkekisten, Zwiebel, Kartoffeln, Marmeladengläser (wir kochen selbst ein), Katzenfutter, Küchenmaschine, Keksdosen, Raclettegrill usw.
Sowohl dem Architekten, als auch dem Küchenstudio ist keine bessere Lösung für den zur Verfügung stehenden Platz eingefallen … Bevor wir nun aber Nägel mit Köpfen machen wollen wir bei euch nochmal nachfragen:
1.) Wie findet Ihr die Lösung bzw. hättet ihr eine andere Variante gewählt? Die Balkontür könnte auch an die rechte Außenwand, das wäre absolut kein Thema!
2.) Habt ihr persönlich eine Speisekammer? Wenn nein, geht sie euch wirklich ab?
Man muss dazu sagen, dass ich bereits mehrere Varianten ohne Speisekammer durchgespielt habe und natürlich wirkt die Küche dann luftiger … aber die Speisekammer fehlt eben.
Ich danke euch im Voraus für eure Meinungen
Liebe Grüße Bea
Checkliste zur Küchenplanung
Personenkriterien und Ergonomie
Anzahl Personen im Haushalt: 2
Davon Kinder: keine
Körpergrößen aller Hauptbenutzer in cm (wegen Arbeitshöhe ): 185, 170
Welche Arbeitshöhe ist angedacht (in cm)?: 95
Gebäudekriterien
Art des Gebäudes: Neu-/Umbau > Planänderungen möglich
Brüstungshöhe des Fensters (in cm): 100
Fensterhöhe (in cm): 85
Raumhöhe in cm: 310
Heizung: Fußbodenheizung
Sanitäranschlüsse: vollkommen variabel
Einbaugerätekriterien
Ausführung Kühlgerät: Integriert im Hochschrank (60cm)
Einbaukühlgerät Größe: 178cm
Ausführung Tiefkühl (TK)-Gerät: Im Kühlschrank ab 3 Schubladen unten
Dunstabzugshaube: Umluft
Hochgebauter Backofen : wenn möglich
Geplante Heißgeräte: Dampfbackofen (DGC) ohne Wasseranschluß
Hochgebauter Geschirrspüler : wenn möglich
Art des Kochfeldes: Induktion
Kochfeldbreite (ca. in cm): 80
Sitzmöglichkeiten
Sitzmöglichkeit in der Küche / im Küchenbereich: Überstehende Arbeitsplatte
Sitzmöglichkeit: Für wieviel Personen?: Für 2 Personen
Sitzmöglichkeit: Tisch - wenn gesonderter Tisch oder offene Küche: Wird nach Bedarf neu gekauft
Gewünschte oder vorhandene Tischgröße: 240x100
Wofür soll der Sitzplatz in der Küche genutzt werden und wie häufig: Frühstück, 1x am Tag
Stauraumplanung
Was steht auf der Arbeitsplatte oder soll dort stehen?: Kaffeemaschine, Messerblock, Obstschale
Welche weiteren Küchenmaschinen müssen in der Küche untergebracht werden: Küchenmaschine, Allesschneider (z.B. in Schublade), Handrührgerät
Was soll in der Küche außer den Standards untergebracht werden: ALLE Vorräte, Getränkekisten, Geschirr komplett (nichts in Ess-/Wohnzimmer)
Welchen Stauraum gibt es sonst noch: Hauswirtschaftsraum
Kochgewohnheiten
Was/wie wird gekocht? (Alltagsküche, Menüs, Snacks usw): Alltagsküche
Wie häufig wird gekocht: (fast) täglich 1x warm
Wird alleine gekocht? Oder auch gemeinsam? Mit und für Gäste?: Alleine koche + gemeinsames kochen mit max. 2 Personen in der Küche
Spülen und Müll
Spülenform: 1 Becken mit Abtropffläche
Welche Mülltrennung soll in der Küche vorgehalten werden: Biomüll, Gelber Sack Müll, Restmüll
Sonstiges
Steht schon ein Küchenhersteller fest oder wird bevorzugt:
Steht schon ein Gerätehersteller fest oder wird bevorzugt:
Küchenstil: Klassisch
Was stört an der bisherigen Küche und was soll die neue Küche unbedingt können? Warum?:
Preisvorstellung (Budget): 20.000
Hallo ihr Lieben,
ich brauche eure Hilfe. Diesmal geht es um die Küchenplanung, welche wir nun auch bald finalisieren möchten.
Die Idee der aktuellen Küche stammt von mir und wurde sowohl von unserem Architekten, als auch vom aktuellen Küchenstudio so übernommen.
Uns war es grundsätzlich sehr wichtig eine Speisekammer unterzubringen, auch wenn sie nur rund 2m2 haben wird. Wir sind es einfach von der jetzigen Wohnsituation so gewohnt. Unterbringen wollen wir vor allem: Getränkekisten, Zwiebel, Kartoffeln, Marmeladengläser (wir kochen selbst ein), Katzenfutter, Küchenmaschine, Keksdosen, Raclettegrill usw.
Sowohl dem Architekten, als auch dem Küchenstudio ist keine bessere Lösung für den zur Verfügung stehenden Platz eingefallen … Bevor wir nun aber Nägel mit Köpfen machen wollen wir bei euch nochmal nachfragen:
1.) Wie findet Ihr die Lösung bzw. hättet ihr eine andere Variante gewählt? Die Balkontür könnte auch an die rechte Außenwand, das wäre absolut kein Thema!
2.) Habt ihr persönlich eine Speisekammer? Wenn nein, geht sie euch wirklich ab?
Man muss dazu sagen, dass ich bereits mehrere Varianten ohne Speisekammer durchgespielt habe und natürlich wirkt die Küche dann luftiger … aber die Speisekammer fehlt eben.
Ich danke euch im Voraus für eure Meinungen
Liebe Grüße Bea
Checkliste zur Küchenplanung
Personenkriterien und Ergonomie
Anzahl Personen im Haushalt: 2
Davon Kinder: keine
Körpergrößen aller Hauptbenutzer in cm (wegen Arbeitshöhe ): 185, 170
Welche Arbeitshöhe ist angedacht (in cm)?: 95
Gebäudekriterien
Art des Gebäudes: Neu-/Umbau > Planänderungen möglich
Brüstungshöhe des Fensters (in cm): 100
Fensterhöhe (in cm): 85
Raumhöhe in cm: 310
Heizung: Fußbodenheizung
Sanitäranschlüsse: vollkommen variabel
Einbaugerätekriterien
Ausführung Kühlgerät: Integriert im Hochschrank (60cm)
Einbaukühlgerät Größe: 178cm
Ausführung Tiefkühl (TK)-Gerät: Im Kühlschrank ab 3 Schubladen unten
Dunstabzugshaube: Umluft
Hochgebauter Backofen : wenn möglich
Geplante Heißgeräte: Dampfbackofen (DGC) ohne Wasseranschluß
Hochgebauter Geschirrspüler : wenn möglich
Art des Kochfeldes: Induktion
Kochfeldbreite (ca. in cm): 80
Sitzmöglichkeiten
Sitzmöglichkeit in der Küche / im Küchenbereich: Überstehende Arbeitsplatte
Sitzmöglichkeit: Für wieviel Personen?: Für 2 Personen
Sitzmöglichkeit: Tisch - wenn gesonderter Tisch oder offene Küche: Wird nach Bedarf neu gekauft
Gewünschte oder vorhandene Tischgröße: 240x100
Wofür soll der Sitzplatz in der Küche genutzt werden und wie häufig: Frühstück, 1x am Tag
Stauraumplanung
Was steht auf der Arbeitsplatte oder soll dort stehen?: Kaffeemaschine, Messerblock, Obstschale
Welche weiteren Küchenmaschinen müssen in der Küche untergebracht werden: Küchenmaschine, Allesschneider (z.B. in Schublade), Handrührgerät
Was soll in der Küche außer den Standards untergebracht werden: ALLE Vorräte, Getränkekisten, Geschirr komplett (nichts in Ess-/Wohnzimmer)
Welchen Stauraum gibt es sonst noch: Hauswirtschaftsraum
Kochgewohnheiten
Was/wie wird gekocht? (Alltagsküche, Menüs, Snacks usw): Alltagsküche
Wie häufig wird gekocht: (fast) täglich 1x warm
Wird alleine gekocht? Oder auch gemeinsam? Mit und für Gäste?: Alleine koche + gemeinsames kochen mit max. 2 Personen in der Küche
Spülen und Müll
Spülenform: 1 Becken mit Abtropffläche
Welche Mülltrennung soll in der Küche vorgehalten werden: Biomüll, Gelber Sack Müll, Restmüll
Sonstiges
Steht schon ein Küchenhersteller fest oder wird bevorzugt:
Steht schon ein Gerätehersteller fest oder wird bevorzugt:
Küchenstil: Klassisch
Was stört an der bisherigen Küche und was soll die neue Küche unbedingt können? Warum?:
Preisvorstellung (Budget): 20.000
